Arquimaster - Medio digital de arquitectura, diseño y construccion Estas visitando la version anterior,
para ver la version actual realiza click aca

 

     
       
 
Climanet - Doble Vidrio Hermetico DVH
Matyser - Materiales y servicios para la construccion
Cursos de arquitectura y diseño de espacios
Hosting de sitios web
Cursos de arquitectura y diseño
Bara
Oficinas ACBC (Ciudad de México) - Pascal Arquitectos
Curso Postproducción de render arquitectónico con SketchUp y Photoshop
 

Ficha técnica
Proyecto: Oficinas ACBC
Diseño Arquitectónico y de Interiores: Pascal Arquitectos, Carlos y Gerard Pascal
Ubicación: Torre Arcos Bosques, Paseo de los Tamarindos Nº 400 A, Colonia Bosques de las Lomas, Delegación Cuajimalpa en la Ciudad de México
Fecha: 2010
Superficie construida: 512 m2
Fotos: Jaime Navarro
Sitio web: https://www.pascalarquitectos.com

Ver planos del proyecto

Este proyecto de oficinas fue diseñado para una compañía que desarrolla centros comerciales.

El concepto inicial se basó en la idea de generar espacios funcionales de carácter moderno.

La intención del diseño fue la de crear a través del lenguaje y el ambiente, una arquitectura totalmente alejada a lo institucional basándose en la premisa de la oficina como una segunda casa en donde se vive la mayor parte del tiempo.

Se manejó mezcla de materiales naturales como los mármoles y maderas, en contraste con vidrios templados de color, acero inoxidable y hierro, generando composiciones equilibradas en el color y texturas, simultáneamente una combinación entre lo moderno y lo cálido.

En el vestíbulo de elevadores el contraste entre el mármol calacata blanco y las placas de acero patinado negro crean un efecto de alguna manera contradictorio.

Este acceso conduce al vestíbulo de recepción el cual cambia a un ambiente elegante y cálido en sus tonos a través de la iluminación.

Para esta zona se utilizó mármol rosso levanto, lambrines de madera de papagayo y un cristal negro que flota mostrando una pantalla de cristal líquido que aparece y desaparece temporalmente.

De esta zona se accede al pasillo que comunica al resto de las áreas que componen el conjunto en los cuales se manejan diferentes planos con distintos materiales que ocultan la iluminación indirecta.

El área operativa está compuesta de un gran salón con estaciones de trabajo.

A lo largo de este espacio se colocó un mural alusivo al giro de la empresa y piso de alfombra para el amortiguamiento acústico.

Asimismo cuenta con cancelería de cristal que permite la entrada de luz a través de los privados.

Al final del pasillo se localiza la recepción secretarial del área ejecutiva, la cual se encuentra delimitada por puertas de cristal grabado con figuras geométricas, decorada con una pintura de José Villalobos y grabados de Piranessi.

Esta parte del proyecto comprende dos oficinas ejecutivas, sala de juntas y un lounge, todos ellos con mobiliario contemporáneo, lambrines de madera y plafones que se combinan con plafones de yeso a través de buñas en las cuales se ocultan las inyecciones de aire acondicionado.

El cortinaje de terciopelo complementa el ambiente dándole un toque residencial y elegante.

En la sala de consejo se manejaron los mismos materiales y plafones con luz directa e indirecta a través de placas de onix.

Por último cabe mencionar que estas oficinas cuentan con un espacio no muy común: una sala de descanso con bar el cual brinda la oportunidad para pláticas y reuniones informales y en la que se incluyó una barra de metal con placas de mármol arabescato.


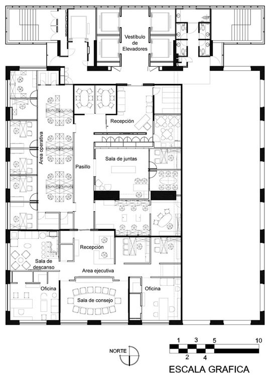
Planos
Realice click en los links para ver los planos.

[1] Planta
[2] Detalle área operativa
[3] Detalle sala de juntas
[4] Detalle pasillo principal
[5] Detalle vestíbulo acceso


Imágenes

Realice click sobre las imágenes para ampliarlas.


Ver ficha técnica y datos de contacto al pie de página.

 
 
Para publicar en esta sección contáctenos. Importante: Arquimaster no se responsabiliza por la información brindada por terceros, la que se publica en este sitio sólo en caracter meramente informativo.
   
   

Noticias
informes especiales
bienal de arquitectura BA11
bienal de arquitectura BA09
publicaciones

Artículos
notas y artículos de interés
arquitectura legal
diseño de iluminación
software de arquitectura y diseño

Recursos
curso de decoracion (gratis/online)
archivo temático
descargas externas
curso de croquis (gratis/online)

Precios y costos
precios de materiales, indices y
costos m2 de construcción

Proyecto
obras construidas
proyectos para concursos
proyectos de estudiantes
arquitectos destacados
obras destacadas

Diseño
diseño industrial y mobiliario
diseño interior y decoración
Casa FOA 2009
Casa FOA 2010
Casa FOA 2011
Casa FOA 2012
Casa FOA 2013
Casa FOA 2014
Estilo Pilar 2010
Estilo Pilar 2012

Construcción
materiales y tecnologías
novedades de empresas
sector inmobiliario

Agenda
cursos y seminarios
congresos y bienales
charlas y eventos
exposiciones y muestras
concursos

Facultad
becas y subsidios
posgrados y maestrías
donde estudiar

Varios
ofertas laborales arquitectura, diseño y construccion
suscripcion newsletter (gratis)
redes sociales
publicidad

Arquimaster en Facebook
Arquimaster en Twitter
Arquimaster en LinkedIn
Arquimaster en Pinterest