
|
 |
 |
 |
 |
 |
 |
 |
 |
 |
 |
 |
 |
| |
Ficha técnica
Nombre: Escuela
de negocios Bridgestone Firestone Argentina
Ubicación: Lavallol, Pcia. de Buenos Aires,
Argentina
Programa: Salas de reuniones, sala de informática, auditorio-microcine,
servicios
Período: 2003 (proyecto) - 2004 (finalización)
Comitente: Bridgestone Firestone Argentina
Equipo: Arq. Gustavo Ghibaudi, Facundo Anatrella, Maximiliano Seif (concepción,
diseño y dirección de obra)
Colaboración: Arq. Débora Bessa (colaboradora)
Datos técnicos: Enobra SA (constructor), CG SA (revestimiento externo),
Alumbra (piel de vidrio), Philips (iluminación), Fenix (equipamiento),
Brignone (climatización), TodoMusica (audio y video)
Superficie: 680 m2
|
|
La necesidad de un espacio educativo
para los empleados de Bridgestone-Firestone de Argentina,
ubicada en Llavallol, provincia de Buenos Aires, fue
el puntapié inicial para un nuevo emprendimiento
arquitectónico paradigmático.
La idea era
aprovechar un antiguo galpón, pero
tras los primeros estudios de proyecto nos dimos cuenta
que el programa de funciones debería ser un poco
más complejo y no podíamos estar atados
a la configuración existente. Propusimos que el
nuevo edificio seria concebido como un centro de capacitación
y convenciones polifuncional.
Así empezamos a proyectar
lo que hoy es la nueva Escuela de Negocios Bridgestone.
Un
terreno particularmente angosto y muy largo, contenido
por la gran nave de 300m de extensión del depósito
de neumáticos y el Camino de Cintura era el sitio
destinado al desafío de crear un nuevo edificio,
luego de la demolición del galpón obsoleto.
Lo
que podría parecer un obstáculo para
la implantación jugó a favor nuestro, entendimos
que un edificio representativo de Bridgestone debería
transmitir toda la velocidad y desarrollo tecnológico
de la Empresa y sus neumáticos, y estar al lado
de una vía rápida ya era una aproximación
conceptual interesante.
Generamos un edificio de forma
alargada de un poco mas de 50 metros y sección ovalada como si la estela
generada por el rodamiento del neumático hubiese
sido capturada y materializada en el perfil de la obra;
las extremidades inclinadas del edificio parecen querer
seguir hacia adelante representando el compromiso con
la innovación y el crecimiento.
Las premisas que
guiaron el proyecto fueron la consolidación
de una nueva imagen institucional-corporativa, la contemporaneidad
arquitectónica y la flexibilidad.
La visión que se tiene desde la autopista es
la de un logo abstracto, un nuevo símbolo de la
modernización de la empresa.
Desde el acceso se
comprende claramente el nuevo complejo ya que su implantación
y el estacionamiento preferencial de la Escuela de Negocios
se reconocen como algo distinto
en el sector oeste de la Planta.
La piel exterior de paneles
de aluminio compuesto representó un
desafío técnico porque era inusual aplicar
este material de esta forma, insistimos en estudiar profundamente
y desarrollar el detalle de esta piel sobre la cubierta
interna de chapa y las zinguerías, ya que era
importante tener asegurada la total estanqueidad del
sistema, además estaríamos trabajando con
techos en distintos niveles lo cual genera una cámara
de ventilación y aislamiento de la cubierta y
las fachadas, que revelan la esencia del edificio y sus
ideas generadoras, una nave de aluminio con aplicaciones
de chapa perforada en los colores corporativos cortada
por una raja de piel de vidrio negro con parasoles que
acentúan la horizontalidad, los tubos externos
que marcan el ritmo de los módulos de la construcción,
recomponen virtualmente la sección del edificio
y enfatizan la analogía del rodamiento de un neumático.
Todo
el edificio está elevado sobre un basamento
y el acceso principal se da a partir de un ambiente de
transición semi cubierto jerarquizado.
La recepción, que con la administración
compone el primer bloque funcional, reafirma el compromiso
de todo el proceso de diseño que evidencia el
cuerpo exterior de la obra, la misma lógica se
incorpora en todos los ambientes, con las proporciones,
los elementos arquitectónicos, sus formas, materialidades
y los colores institucionales y complementarios.
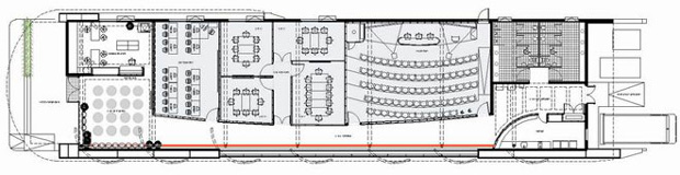
El hall
central es el articulador principal de toda la Escuela,
se desarrolla en forma de arco, lo que permite
cierta privacidad cuando todavía se está en
la recepción además de acentuar el sentido
de recorrido propuesto por la exhibición de imágenes
a lo largo de este espacio, dónde el muro de chapa
horizontal color rojo refuerza el carácter industrial
de la obra.
En el segundo bloque se ubican las salas de
reuniones informática y el auditorio-microcine. Las salas
están diseñadas para proveer la máxima
posibilidad de usos, paneles móviles permiten
su integración entre si y con el hall central.
El
auditorio tiene capacidad para 86 personas (3 espacios
reservados para discapacitados) y está equipado
con un moderno sistema de audio y video. El escalonado
permite una perfecta visión para todos los espectadores
y la disposición en el sentido más ancho
acerca al espectador a las pantallas de proyección
y al estrado.
En la parte trasera están los espacios de servicio,
el office se encuentra dentro de un volumen curvo que
hace contrapunto con la gran curva del pasillo del hall
central, dialogando también a partir de su materialidad
de chapa de aluminio puesta en sentido vertical, los
sanitarios y la plataforma técnica terminan de
componer este sector.
Todo fue pensado sin barreras arquitectónicas
para personas discapacitadas, como los accesos, espacios
preferenciales, sanitarios, texturas de referencia de
ubicación y medios de salida de escape. Se buscó maximizar
la utilización de luz natural y están optimizados
todos los sistemas energéticos y de seguridad.
La
nueva Escuela de Negocios Bridgestone plasma un singular
concepto de espacio de trabajo y educación contemporáneo,
donde la única constante es el cambio.
Planos
[1] Planta general
[2] Cortes longitudinales
[3] Corte transversal
[4] Vista acceso
[5] Vista lateral
[6] Implantación
[7] Vista
conjunto
Realice
click sobre los nombres de los planos para ampliarlos
Acerca
de los proyectistas
AGS Arquitectura
AGS Arquitectura es Arq. Gustavo H. Ghibaudi, Arq. Débora
de Souza Bessa, MMO Facundo Anatrella, MMO Maximiliano
Seif.
Arquitectura es ideología construida. La cultura
es, sin duda, la mayor riqueza de un pueblo, y también
lo es intercambiar o simplemente llevar a conocer sus
códigos y elementos. El fenómeno cultural
en nuestro continente es resultado de un mix tan variado
cuanto especial. En esta
historia de invasiones, construcción y destrucción,
idas y venidas, acá se plasmaron elementos que
materializaron lo que hoy llamamos de "latinidad".
Fomentar
el intercambio entre los países latinoamericanos
empezando por lo que representa el Mercosur, es reafirmar
la fuerza de la producción cultural local y su
postura hacia la comunidad mundial. Somos un estudio
mixto, formado por argentinos y brasileños.
Creemos que se puede hacer arquitectura de gran calidad
el Latinoamérica, gran parte de la buena producción
realizada, está acá, es nuestra.
No defendemos
una postura "folclorista" o "anti
arquitectura no latina", pero sí la propuesta
de revisitar algunos conceptos y aprender más
de nuestros maestros y paradigmas locales. Aprendimos
que podemos moldear con igual calidad el hormigón
o el metal, desde que cada decisión
proyectual sea un concepto en sí mismo, que podemos
aplicar el regionalismo crítico sin dejar de ser
contemporáneos, y que podemos superar la modernidad
y ser modernos, de nuevo.
Arq. Gustavo H. Ghibaudi.
Universidad de Buenos Aires, Facultad de Arquitectura,
Diseño y Urbanismo,
2001. Docente en Diseño Arquitectónico,
cátedra Llauró. Empezó trabajando
en estudios de arquitectura importantes, entre ellos
el del Arquitecto Clorindo Testa, donde participó de
varias competencias internacionales como el Citta della
Culture, Milán (que recibió una mención
honorífica) y nacionales, como el concurso para
el campus de la Universidad de San Luis, obra recién
terminada (Estudio Clorindo Testa. SEPRA arquitectos.
Bodas, Miani, Anger) o el Concurso Nacional de Ideas
Area Nuevo Colegiales.
Arq. y Urbanista Débora de Souza Bessa.
Universidad de Buenos Aires, Facultad de Arquitectura,
Diseño y Urbanismo. Posgrado Carrera de Especialización
Proyecto Urbano, 2002. Universidad Federal Rio de Janeiro,
Facultad de Arquitectura y Urbanismo, 1998. Docente en
Introducción a la Arquitectura Contemporánea,
cátedra Marcos. En Rio de Janeiro trabajó en
arquitectura comercial y residencial hasta profundizarse
en los temas urbanos, cuando trabajaba en el estudio
que ganó el Concurso Rio Cidade II y realizó la
recualificación urbana de Realengo (1996-1998).
En el estudio MoVLe participó del Proyecto Célula
Urbana, trabajo en conjunto con la Escuela Bauhaus de
Dessau, Alemania. RJ, 2001-2002 para renovación
de una zona carenciada de la ciudad carioca.
|