 |
 |
 |
 |
 |
 |
 |
 |
 |
 |
 |
 |
 |
| |
Green Box, la Vivienda-Jardín
sostenible del Futuro
El arquitecto Luis de Garrido presenta su último prototipo de
vivienda
sostenible, Green Box, en la ciudad de New York (martes 21 de abril, Museo Glasshouse,
Chelsea Arts Tower, 545 West 25th Street). La vivienda se construirá en
Barcelona con motivo de la Feria Internacional de la Construcción Construmat
2009 (se presenta el lunes 20 de abril, y se exhibe del 20 al 25 de abril, en
el Recinto Gran Via. Palacio 1. Av. Joan Carles I, 58. Fira Catalunya. Barcelona).
Green Box es la primera Vivienda-Jardín modular, prefabricada, reutilizable,
transportable, con ciclo de vida infinito, bioclimática, con un consumo
energético cero, y que no genera residuos.
Debido a sus avanzadas características Green Box se construirá tan
solo en 15 días (del 4 al 19 de abril), y el proceso podrá verse
en tiempo real en internet.
El edificio incluye en su interior una Exposición Multimedia de Proyectos
de Arquitectura Sostenible y Vivienda Social Sostenible, de Luis de Garrido ("Arquitecto
del año 2008" por la ISBA) "Naturalezas Artificiales VI".
Innovaciones mas destacadas
en Green Box
Ciclo de vida infinito
Todos los componentes de Green Box han sido diseñados
para montarse en seco a base de tronillos, clavos y por presión. De este
modo se pueden extraer fácilmente del edificio, para poder ser reparados,
reutilizados o restituidos. De este modo, el edificio puede perdurar hasta el
infinito, con muy bajo consumo energético.
Transportabilidad. Por piezas independientes
El conjunto de elementos de Green Box (incluso el jardín
inclinado y el jardín vertical) ha sido diseñado para que se pueda
montar y desmontar fácilmente, y de forma indefinida. Por este motivo,
estos elementos se pueden transportar a cualquier lugar, para montarse fácilmente
(en menos de una semana) tantas veces como sea necesario.
Eliminación absoluta de residuos
Los componentes de Green Box han sido realizados en fábrica,
sin generar residuo alguno. Del mismo modo, se monta sin generar residuos, y
se desmonta sin generar residuos. Las claves del logro son: la industrialización
absoluta, el diseño de los sistemas de ensamblado, y el sistema compositivo
empleado en el diseño del conjunto arquitectónico.
Flexibilidad extrema
Debido a su diseño, Green Box puede ampliarse, reducirse,
o incluso adoptar otros tipo de configuración arquitectónica. Del
mismo modo, el interior de Green Box es diáfano, y ha
sido diseñado para adoptar cualquier distribución posible de compartimentación
y reconfiguración espacial.
Industrialización total
Todos los componentes de Green Box han sido realizados en fábricas
diferentes. Estos componentes se han ensamblado en la ubicación del edificio,
obteniendo el edificio. Ni un solo componente se ha realizado "in situ".
Por supuesto, esto obliga a la realización de un buen proyecto arquitectónico.
Alto grado de bioclimatismo
Green Box ha sido diseñado para
tener el mejor comportamiento bioclimático posible.
Es decir, que el edificio se caliente al máximo,
por si mismo, en invierno, y se refresque al máximo,
por si mismo, en verano. Todo ello, sin necesidad de
aparatos. Simplemente por su diseño arquitectónico
y sin ningún coste adicional.
Autosuficiencia energética
Green Box tiene un consumo energético
cero de energías convencionales.
Green Box se calienta en invierno por medio de
la combinación de 3 sistemas diferentes:
1. Correcto diseño bioclimático
2. Incorporación de un sistema de captores solares térmicos
(para el A.C.S. y la calefacción por suelo radiante)
3. Incorporación de un económico e ingenioso sistema arquitectónico
de energía geotérmica.
Del mismo modo, Green Box se refresca en verano por medio de la combinación
de 2 sistemas diferentes:
1. Correcto diseño bioclimático
2. Incorporación de un económico e ingenioso sistema arquitectónico
de energía geotérmica.
La iluminación de extraordinario bajo consumo (leds), y los electrodomésticos
de alta eficiencia energética, se alimentan por la electricidad generada
por los captores fotovoltaicos.
La energía necesaria para la calefacción del suelo radiante y el
agua caliente sanitaria procede de la combinación de un sistema geotérmico
y un sistema solar. No es necesaria la utilización de ningún otro
sistema, ni conexión a la red eléctrica. Green Box es
un edificio autosuficiente.
Jardín vertical doble (en ambas
caras de un muro)
Es el primer caso de jardín vertical a ambos lados de un muro. Aparte
de los atractivos formales, el sistema proporciona un equilibrio perfecto entre
aislamiento, inercia térmica, transpirabilidad, oxigenación, e
iluminación. De hecho es un primer paso de cómo manipular elementos
vegetales vivos, como envolventes arquitectónicas y elementos compositivos
arquitectónicos estructurales.
Jardín vertical desmontable y transportable
por módulos
El jardín vertical doble se ha construido a base de paneles celulares
de polietileno, atornillados a una estructura metálica portante. De este
modo, cada panel vegetal se puede componer por separado en el invernadero (para
controlar su diseño y estimular el crecimiento de las especies vegetales),
y trasladarse al edificio cuando sea necesario (con plantas ya crecidas). Del
mismo modo, se puede extraer cada panel vegetal del edificio, con el fin de trasladarlo
a otro lugar, repararse y reutilizarse, tantas veces como se desee.
Diseño del jardín autóctono
de la cubierta ajardinada
El jardín de la cubierta ajardinada se ha proyectado a base de especies
vegetales autóctonas, sin apenas consumo de agua. El diseño del
jardín se inspira en la eterna lucha entre el Tigre y el Dragón.
El equilibrio entre el Yin y el Yang, que simboliza la actividad humana en la
Tierra. Un guiño que simboliza el deseo de Green Box de
ofrecer un camino sensato para conseguir otra arquitectura. Una arquitectura
que permita el equilibrio entre los seres vivos, y el equilibrio de los seres
vivos con el planeta.
Diseño de la cubierta ajardinada inclinada
como continuidad del suelo circundante (100%
edificación/100% zona verde)
Uno de los objetivos en el diseño de Green Box es proporcionar
a la vivienda una cubierta ajardinada transitable, a modo de continuidad con
el terreno. Por ello se ha proyectado una cubierta ajardinada con 12º de
inclinación que se extiende hasta el nivel del suelo. De este modo los
paseantes pueden caminar cómodamente, y acceder hasta el final de la cubierta.
Es decir, Green Box permite que en un terreno se construya con
una ocupación del 100%, y al mismo tiempo, se garantice una zona verde
del 100%.
Interiorismo reversible
Todos los acabados interiores de Green Box son reversibles.
Es decir, se pueden retirar, recuperar y sustituir fácilmente. Todos los
acabados se han ensamblado por presión, o con tornillos. De este modo
se pueden reparar, y sustituir fácilmente. Este concepto se extiende incluso
a los acabados del baño y cocina, los sanitarios y el mobiliario de la
cocina.
El interiorismo se ha inspirado en los 12 signos del zodiaco europeo y los 12
animales del zodiaco chino. Un guiño que simboliza el deseado equilibrio
con la Tierra, y el Cosmos, que se pretende lograr con este prototipo. Los signos
del zodiaco se han ilustrado por medio de perforaciones retroiluminadas en los
paramentos interiores. La luz dorada de los acabados, contrasta con el color
azul del cielo interior, creando un ambiente ensoñador, místico,
que invita a la meditación, y la reflexión.
Utilización de nuevos productos ecológicos
En la construcción de Green Box se han utilizado nuevos
productos ecológicos de reciente fabricación, y muy innovadores
(aislantes reciclando toallitas de aviones, aislantes reciclando vasos, aislantes
reciclando botellas de vidrio, paneles ECO reciclando vidrios, tornillos, chatarra,
panelate, paneles de policarbonato estrusionado, panelate, pinturas ecológicas
GEA, etc).
Estructura transportable, a base de paneles
de hormigón y perfiles metálicos
El sistema constructivo utilizado en Green Box a base de elementos
estructurales atornillados (paneles de hormigón, perfiles metálicos)
permite su transportabilidad, sin necesidad de transporte especial.
Cimentación transportable
La misma cimentación del prototipo se ha realizado mediante un doble nivel
de placas de hormigón armado. Las placas de hormigón armado se
unen entre sí por medio de perfilaría metálica atornillada.
De este modo se consiguen dos cosas. En primer lugar la creación de una
cámara de aire subterránea que permite el enfriamiento del aire
de ventilación en verano (y el calentamiento del aire de ventilación
en invierno). En segundo lugar, permite que, si se decide desmontar el edificio,
y trasladarlo a otro lugar, no quede ni rastro de su construcción, ya
que incluso la cimentación se puede transportar. Un edificio 100% sostenible,
que no deja ni rastro.
Bajo precio
El sistema constructivo empleado, permite la reducción hasta un 50% de
los costes de construcción. Esto lo convierte en un modelo de construcción
para el nuevo orden social y económico de los próximos años.
Sitio web: http://www.luisdegarrido.com
|
|
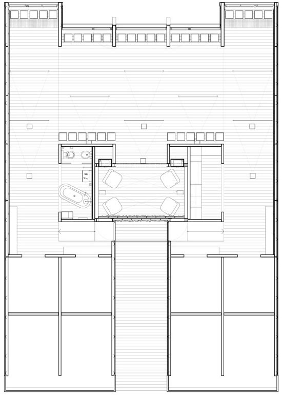
Ver
planos de la obra
Prototipo de
vivienda
sostenible diseñada por Luis de Garrido.
Se emplazará en New York (Museo Glasshouse) y se construirá en
Barcelona en el marco de Construmat
2009.
Green Box tiene el máximo nivel de sostenibilidad.
El
prototipo cumple perfectamente con los 5 pilares
básicos en los que se asienta el concepto
de Arquitectura Sostenible:
1. Optimización
de recursos y materiales.
2. Disminución de residuos y emisiones al medio
ambiente.
3. Disminución del consumo energético y
uso de energía renovable.
4. Mejora de la calidad de vida y la salud humanas.
5. Reducción del precio de construcción
y mantenimiento del edificio.
1. Optimización de
recursos y materiales
Utilización de materiales
recuperados, reutilizados y reciclados.
Todos los materiales incluidos en Green Box son reutilizados
y reciclados. Del mismo modo, todos los materiales son
recuperables, reutilizables y reciclables. Sin excepción
alguna.
Reutilización
Todos los componentes del prototipo se pueden utilizar
una y otra vez, por lo que su ciclo de vida es infinito.
Nula
toxicidad
Los materiales utilizados no tienen ningún tipo
de emisión, ni de sustancia dañina para
el medio ambiente.
Elevada durabilidad
El prototipo tiene una durabilidad infinita, ya que es
fácilmente reparable.
2. Disminución de
residuos y emisiones
En la fabricación
de los materiales: En la obtención de
los materiales componentes de la Green Box no
se ha generado ningún
tipo de residuo, ni de emisiones.
En la construcción
del prototipo: No se van a generar residuos de ningún tipo en
el montaje del prototipo. Las piezas se van a colocar
simplemente por presión, gravedad o empresillamiento,
por lo que todos los componentes pueden recuperarse,
y reutilizarse de nuevo.
En la vida útil del edificio: No hay ningún residuo, ni ninguna emisión
durante la vida útil del prototipo.
En el desmantelamiento: El prototipo ha sido
diseñado de tal modo que
no se genere ningún residuo en su desmantelamiento.
Todos los materiales quedarán intactos y listos
para volver a utilizarse tantas veces como sea necesario.
3.
Disminución del consumo energético
y uso de energía renovable
Obtención
de materiales:
Todos los materiales han sido elegidos por su bajo consumo
energético. Además, como todos los materiales
son prefabricados, se ha disminuido al máximo
el consumo energético necesario.
Construcción: Se
va a utilizar una energía mínima ya
que se ha empleado un sistema modular de construcción.
Por este motivo, tan sólo un equipo de 5 personas será necesario
para el montaje.
Desmantelamiento: El
desmantelamiento es muy sencillo y consume muy poca energía,
ya que sólo hay que quitar las piezas una a una en orden
inverso a como se han colocado en
el montaje.
Transporte del material
y mano de obra: Los materiales y la mano de obra serán
de Barcelona. No existe la necesidad de mano de obra
especializada.
Vida útil: La vida útil
del prototipo conseguido puede decirse que es infinita,
ya que si alguna pieza se rompe, simplemente
se repara o se sustituye por una alternativa.
4. Mejora
de la calidad de vida y la salud humanas
No existen
emisiones tóxicas para el hombre,
los animales y el medio ambiente en ninguna etapa de
la fabricación de cada una de las piezas del prototipo,
ni durante su vida útil (si se construyera para
permanecer), ni en su desmantelamiento.
5. Reducción del precio de construcción
y mantenimiento del edificio
Los costes de mantenimiento
del prototipo son muy bajos. El único mantenimiento
a corto plazo es la limpieza. En cuanto al personal de
mantenimiento del prototipo
no ha sido necesario.
Características Bioclimáticas
1. Sistemas
de generación de calor
La vivienda se calienta por si misma, de dos modos:
1.
Evitando enfriarse: debido a su alto aislamiento térmico,
y disponiendo grandes superficies vidriadas solo al
sur.
2. Debido a su cuidadoso y especial diseño
bioclimático, y su perfecta orientación
N-S, la vivienda se calienta por efecto invernadero,
radiación solar directa, y calefacción
por suelo radiante solar, y permanece caliente durante
mucho tiempo, debido a su alta inercia térmica.
2.
Sistemas de generación de fresco
La vivienda se refresca por sí misma, de tres
modos:
1. Evitando calentarse: disponiendo la mayor parte
de la superficie vidriada al sur y apenas al oeste,
disponiendo de protecciones solares para la radiación
solar directa e indirecta (un tipo de protección
diferente para cada uno de los huecos con diferente orientación)
y disponiendo un aislamiento adecuado.
2. Refrescándose
mediante un sistema de enfriamiento arquitectónico
de aire por medio de galerías subterráneas.
Por otro lado, debido a la alta inercia térmica
del edificio, el fresco acumulado durante la noche, se
mantiene durante la práctica totalidad del día
siguiente.
3. Evacuando el aire caliente al exterior
de la vivienda, a través de las ventanas superiores
del patio cubierto central. La forma inclinada de la
cubierta potencia la convección natural y proporciona
un efectivo "efecto chimenea" para extraer
el aire caliente del interior de la vivienda.
Por otro lado, la gran torre central esta recubierta
por paneles de madera cemento. Al calentarse estos paneles
por efecto de la radiación solar, se calienta
el aire del interior. Al calentarse, este aire asciende
y escapa por las perforaciones de los paneles. De este
modo se genera una corriente de succión, que extrae
el aire recalentado de la vivienda. De este modo, la
vivienda se mantiene fresca en todo momento.
3. Sistemas
de acumulación (calor o fresco)
El calor generado durante el día en invierno se
acumula en el forjado sanitario y en los muros de carga
de hormigón, manteniendo caliente la vivienda
durante la noche. Del mismo modo, el fresco generado
durante la noche en verano se acumula en el forjado sanitario
y en los muros de carga, manteniendo fresca la vivienda
durante el día. La cubierta ajardinada de alta
inercia térmica, refuerza este proceso.
4. Sistemas
de transferencia (calor o fresco)
El calor generado por efecto invernadero y radiación
natural se reparte en forma de aire caliente por todo
el edificio desde el invernadero central. Del mismo modo,
el sistema de calefacción por suelo radiante se
extiende por toda la vivienda. El calor acumulado en
los muros de carga se transmite a las estancias laterales
por radiación.
El aire fresco generado en las galerías subterráneas
se reparte por la vivienda por medio de un conjunto de
rejillas repartidas en el forjado de la vivienda. Esta
corriente de aire refresca todas las estancias de la
vivienda.
5. Ventilación natural
La ventilación del edificio se hace de forma continuada
y natural, a través de los propios muros envolventes,
lo que permite una ventilación adecuada, sin pérdidas
energéticas. Este tipo de ventilación es
posible ya que todos los materiales utilizados son transpirables
(cerámica, aislamientos naturales, paneles de
hormigón, paneles de madera-cemento, pinturas
orgánicas).
Componentes ecológicos
1. Cimentación
Paneles prefabricados de hormigón armado.
2. Estructura horizontal
Paneles prefabricados de hormigón armado, ensamblados entre sí por
medio de perfilaría metálica atornillada.
Perfilaría metálica atornillada.
3. Recubrimientos interiores
Paneles de madera, panelate, policarbonato, paneles ECO, metacrilato, y pinturas
ecológicas GEA.
4. Elementos de distribución
Paneles de policarbonato, metacrilato, y hormigón armado.
5. Fachada
Fachada ventilada a base de placas de cerámica extrusionada, sujetas mediante
perfiles metálicos de chapa plegada. Aislamientos de fachada realizados
reciclando toallitas de papel de los aviones, y botellas de plástico.
6. Solados
Parket ecológico tratado con aceites y con madera FSC. Paneles ECO.
7. Pinturas
Pinturas ecológicas GEA con disolvente al agua, sin biocidas, pigmentos
orgánicos y CPV alto.
8. Aislamiento
Aislamientos realizados reciclando toallitas de papel de los aviones, y botellas
de plástico. Aislamiento de lana de oveja, cáñamo y fibra
de madera.
9. Recubrimientos exteriores y parasoles en
las ventanas
Madera de IPE con tratamiento de sales de Borax y acabados a base de lasurses.
10. Carpintería exterior
Carpintería de madera laminada de castaño.
11. Vidrios
Vidrios dobles (6-10-4) con cámara de aire.
12. Cubierta
Cubierta ajardinada con aislamiento a base de fibra de madera (8 cm), lámina
impermeabilizante Sopralene, lámina de filtro de fibras sintéticas
no tejidas, lámina de drenaje geotextil, y sustrato vegetal (40% arena,
60% residuos vegetales).
13. Remates y vierteaguas
Chapa galvanizada lacada en rojo.
14. Estructura del jardín vertical
Paneles reticulares de 50x50 cm. desmontables, para albergar la vegetación
y el sistema de riego hidropónico.
15. Jardín vertical
Especies vegetales adaptadas al mediterráneo, con riego hidropónico.
16. Jardín inclinado (de la cubierta ajardinada)
Especies vegetales autóctonas del mediterráneo, sin necesidad de
riego (lavanda, romero, tomillo).
17. Iluminación
Se utilizarán exclusivamente luminarias a base de leds.
18. Instalación de fontanería
Tuberías de polipropileno.
19. Instalación de saneamiento
Tuberías de polietileno.
20. Instalación eléctrica
Tuberías de polipropileno y cables libres de halogenuros.
21. Sistema solar térmico
Captores solares térmicos para la generación de A.C.S.
22. Calderas y suelo radiante solar
Calderas de condensación, y captores solares de alto rendimiento.
23. Sistema geotérmico
Sistema geotérmico por pilotaje, integrado con el sistema solar y calderas
de condensación.
Ciclo de vida infinito
Todos
los componentes de Green Box han sido
diseñados
para montarse en seco a base de tornillos, clavos y por
presión. De este modo se pueden extraer fácilmente
del edificio, para poder ser reparados, reutilizados
o restituidos. De este modo, el edificio puede perdurar
hasta el infinito, con muy bajo consumo energético.
Reutilización
y Transportabilidad
El conjunto de elementos
de Green Box (incluso el jardín
inclinado y el jardín vertical) ha sido diseñado
para que se pueda montar y desmontar fácilmente,
y de forma indefinida. Por este motivo, estos elementos
se pueden transportar a cualquier lugar, para montarse
fácilmente (en menos de una semana) tantas veces
como sea necesario.
Planos
Realice click en los links para ver los planos.
[1] Planta
baja
[2] Planta
de techos
[3] Axonométrica
[4] Despiece
base
[5] Despiece
torre
Imágenes
Realice click sobre las imágenes para ampliarlas.
Ver
ficha técnica y datos de contacto al
pie de página.
|