Arquimaster - Medio digital de arquitectura, diseño y construccion Estas visitando la version anterior,
para ver la version actual realiza click aca

 

     
       
 
Climanet - Doble Vidrio Hermetico DVH
Matyser - Materiales y servicios para la construccion
Cursos de arquitectura y diseño de espacios
Anclaflex
Curso Introducción a Revit: Modela tus proyectos arquitectonicos
Bara
Bar Lounge Nisha Acapulco (México) - Pascal Arquitectos
Curso Visualización arquitectónica con 3ds Max y Corona Renderer
 

Ficha técnica
Arquitectura y Diseño de Interiores: Carlos Pascal y Gerard Pascal, Pascal Arquitectos
Construcción: Pascal Arquitectos
Ubicación: Centro Comercial Shopping "La Isla", Bouelvard de las Naciones Nº 1832
Área construida: 560 m2
Fecha: 2009
Fotografía: Sófocles Hernández
Sitio web: http://www.pascalarquitectos.com

Ver planos de la obra

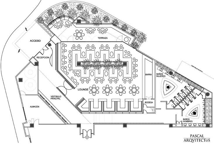
El bar lounge se ubica en Acapulco. Es un lugar para el entretenimiento dedicado a la exaltación de los sentidos por medio de la arquitectura, la gente, la música y las imágenes, lográndose así un ambiente alterno y virtual.

Se accede al lugar a través de un vestíbulo que simula el interior de una nave forrada de madera, donde se encuentran cinco pantallas de alta definición enmarcadas por óvalos a modo de ventanas, que proyectan por momentos un cielo con nubes que viajan a alta velocidad o imágenes del fondo del mar convirtiéndose en un submarino.

Un vestíbulo oscuro conduce al lounge completamente recubierto en madera con vista a una terraza, dentro de este espacio se agrupan pequeñas salas con sofás.

En un extremo se encuentran varias pantallas de alta definición enmarcados como si fueran cuadros en una sala y en el otro se integra una barra de 15 metros de largo tras la cual se encuentra colocada una pantalla de la misma longitud por tres metros de alto proyectando videos en alta resolución.

Las barras presentan un diseño geométrico iluminado por leds que cambian de color.

Los baños son un espacio de reunión forrado en su totalidad de cristal.

En el caso de las mujeres es de color rojo con una banca blanca y una gran palmera central, y en el de los hombres vidrio negro y azul, con una barra triangular central con una jardinera con plantas tropicales.

El manejo del color en todos y cada de los espacios del lugar genera una experiencia visual única complementada por la música, las imágenes de los videos y el ambiente en general.


Planos
Realice click en los links para ver los planos.

[1] Planta
[2] Corte 1
[3] Corte 2
[4] Detalle barra
[5] Detalle acceso
[6] Vista acceso


Imágenes

Realice click sobre las imágenes para ampliarlas.


Ver ficha técnica y datos de contacto al pie de página.

 
Curso Representacion de espacios arquitectonicos con 3D Studio Max
 
Si usted es profesional, este es su espacio para publicar su obra o proyecto (en forma gratuita). Para más información visitar la sección contacto: click aquí.
   
   

Noticias
informes especiales
bienal de arquitectura BA11
bienal de arquitectura BA09
publicaciones

Artículos
notas y artículos de interés
arquitectura legal
diseño de iluminación
software de arquitectura y diseño

Recursos
curso de decoracion (gratis/online)
archivo temático
descargas externas
curso de croquis (gratis/online)

Precios y costos
precios de materiales, indices y
costos m2 de construcción

Proyecto
obras construidas
proyectos para concursos
proyectos de estudiantes
arquitectos destacados
obras destacadas

Diseño
diseño industrial y mobiliario
diseño interior y decoración
Casa FOA 2009
Casa FOA 2010
Casa FOA 2011
Casa FOA 2012
Casa FOA 2013
Casa FOA 2014
Estilo Pilar 2010
Estilo Pilar 2012

Construcción
materiales y tecnologías
novedades de empresas
sector inmobiliario

Agenda
cursos y seminarios
congresos y bienales
charlas y eventos
exposiciones y muestras
concursos

Facultad
becas y subsidios
posgrados y maestrías
donde estudiar

Varios
ofertas laborales arquitectura, diseño y construccion
suscripcion newsletter (gratis)
redes sociales
publicidad

Arquimaster en Facebook
Arquimaster en Twitter
Arquimaster en LinkedIn
Arquimaster en Pinterest