Arquimaster - Medio digital de arquitectura, diseño y construccion Estas visitando la version anterior,
para ver la version actual realiza click aca

 

     
       
 
Climanet - Doble Vidrio Hermetico DVH
Matyser - Materiales y servicios para la construccion
Cursos de arquitectura y diseño de espacios
Anclaflex
Curso Introducción a Revit: Modela tus proyectos arquitectonicos
Bara
Módulos de Viviendas (Concurso "La Vivienda de Madera para un mejor medio ambiente") - Mariel Cámara y Arq. Ezequiel Muñoz
Curso Visualización arquitectónica con 3ds Max y Corona Renderer
 

Ficha técnica
Nombre: Módulos de Viviendas
Autores: Mariel Cámara, Arq. Ezequiel Muñoz
Lugar: Mar del Plata, Buenos Aires, Argetina
Año: 2007
Universidad: Facultad de Arquitectura, Urbanismo y Diseño, Universidad Nacional de Mar del Plata
Premio: Concurso Internacional de Estudiantes de Arquitectura en Madera "La vivienda de madera para un mejor medio ambiente", segundo puesto, FITECMA 2007
Sitio web: http://www.moirearqs.com.ar

Ver planos del proyecto

Ubicación (contexto)
El proyecto se ubica en la ciudad de Mar del Plata, provincia de Buenos Aires. La ciudad se encuentra en la zona bioambiental templada fría. Las temperaturas promedio de la mayor parte del año son inferiores a la de confort.

La trama de la ciudad se organiza en forma de damero, situándose el norte aproximadamente a 45º respecto a la misma. Para el desarrollo del proyecto elegimos un terreno típico y mínimo de la zona suburbana (10 por 23 metros).

La idea constructiva de nuestro proyecto surge a partir de la situación económica y social de nuestra ciudad. Mar del Plata cuenta con un elevado déficit de viviendas a causa de la enorme brecha entre los salarios y los valores de la construcción. Para satisfacer esta necesidad diseñamos módulos de vivienda construibles en serie, en fábrica.

Idea general (premisas)
La morfología de la casa surge con la idea de generar una vivienda económica, flexible, en constante evolución y a la vez respetuosa con el medio ambiente, ya no entendiendo a la vivienda como una máquina de habitar sino como una máquina de generar hábitat.

La idea consiste en generar una vivienda económica que evolucione constantemente ya sea creciendo o decreciendo, adaptándose a las necesidades de cada familia, acompañando el ciclo de la vida.

La vivienda
La estrategia se basa en generar distintas respuestas a las diversas situaciones climáticas del terreno. La forma compacta de la casa contribuye a tener menor pérdida de calor a través de la envolvente.

Hacia el suroeste se ubican los servicios formando una franja que sirve de fuelle entre las condiciones climáticas menos favorables y la vivienda.

Hacia el noreste se realiza un tratamiento en las fachadas compuesto por distintos sistemas solares pasivos que se utilizan para aprovechar las energías ambientales.

La utilización de techos planos (con escasa pendiente) nos da la posibilidad de crecer
verticalmente para evitar impacto negativo en el terreno.

La racionalidad de la propuesta y el sistema constructivo utilizado hacen posible que los módulos de viviendas se adapten a terrenos de topografía diversa, pudiéndose implantar tanto en terrenos planos, irregulares e inundables.

El módulo base (átomo) puede cambiar la distribución de los ambientes y fachadas de acuerdo a las condiciones de cada lote en particular (flexibilidad del sistema constructivo y diseño).

La vivienda posee una gran flexibilidad, el dormitorio de planta baja se puede transformar en un espacio de trabajo con acceso independiente.

Otra posibilidad es generar un ambiente integrado quitando el tabique que divide el comedor del dormitorio, ya que el mismo no es estructural.

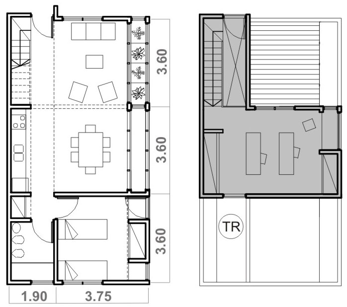
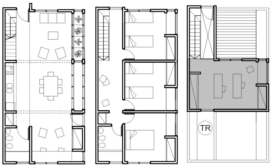
La vivienda mínima, formada por un módulo base, se compone de estar comedor, cocina lavadero, baño, dormitorio y parrilla conectada al comedor por un deck. Este, a su vez, se utiliza para guardar el automóvil.

En el diseño de los ambientes del módulo base, se tiene en cuenta las medidas mínimas y su desarrollo en una planta, para posibilitar su utilización por personas de movilidad reducida.

Proponemos instalar en el jardín una huerta de 90 m2, superficie indicada para abastecer a una familia tipo o brindar la posibilidad de formar un emprendimiento familiar. El invernadero es útil para germinar las semillas y luego transplantarlas a la huerta.

Etapabilidad
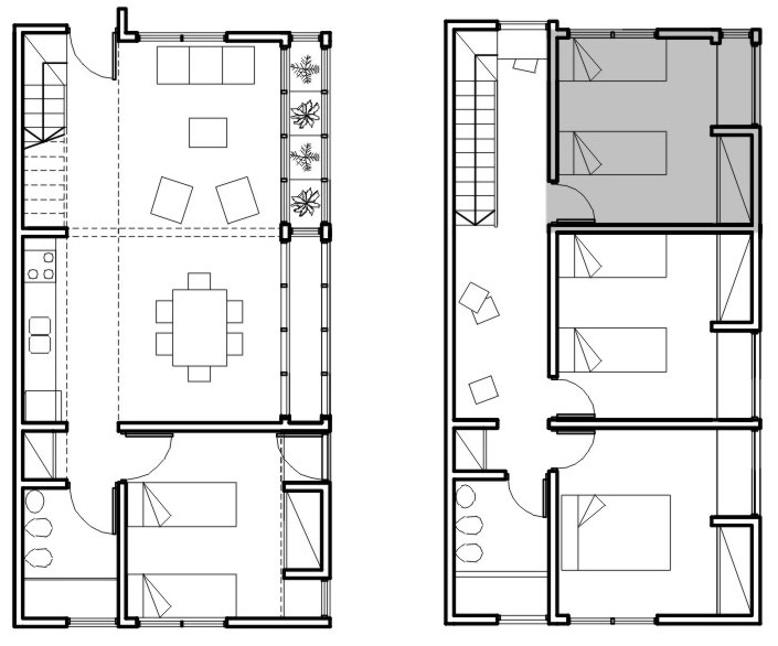
Tal como se puede observar, la vivienda crece y decrece verticalmente adaptándose a los diferentes momentos de la vida de sus habitantes, dependiendo el punto de partida de las necesidades de cada uno.

En los casos de decrecimiento, los módulos retirados se reutilizan total o parcialmente según las condiciones en las que se encuentren. A su vez, pueden modificarse para luego ser utilizados en otra vivienda, de esta forma, se logran importantes reducciones en los costos de los nuevos módulos, construidos con materiales reciclados.

Funcionamiento térmico
Para generar un ambiente confortable, utilizamos sistemas solares pasivos, ya que los consideramos los más apropiados para la realidad económica de Mar del Plata.

La fachada con orientación más favorable se conforma por distintos sistemas de tratamiento solar:

El estar posee un invernadero, que durante el invierno eleva la temperatura del ambiente y durante el verano refrigera la fachada.

El comedor tiene una doble fachada que durante el invierno permite pasar la radiación solar y en el verano mantiene fresca la fachada.

Todos los dormitorios contienen un muro trombe, compuesto por botellas de plástico reutilizadas llenas de agua que acumulan calor durante el día y lo arrojan al ambiente durante la noche.

Los parasoles móviles proporcionan una eficiente sombra en verano, y permiten pasar la radiación solar en invierno.

Recoleccion de aguas pluviales
Una de las estrategias utilizadas para el ahorro del agua, es la recolección y aprovechamiento de agua de lluvia. A través de las terrazas se recolecta el agua de lluvia que se almacena en una cisterna, pasando previamente por un filtro de malla fina. El agua es impulsada por una bomba eléctrica hacia el interior de la vivienda para alimentar el lavarropas, el depósito del inodoro y el bidet.

Calentamiento de agua
Para ahorrar energía en el calentamiento de agua se utiliza un sistema complementario de calentamiento solar pasivo, con el que obtenemos agua caliente, entre 45 y 75 ºC.

Reutilizacion de aguas grises (agua recolectada de la pileta de cocina, lavatorio del baño y ducha)
Para el ahorro de agua es muy útil reciclar las aguas grises y utilizarlas para el riego de la huerta.

Para que las aguas grises no sean dañinas a la salud es importante no almacenarlas mucho tiempo y depositarlas rápidamente en un sitio orgánicamente activo.

Las aguas grises son recolectadas por caños de polipropileno, filtradas, y distribuidas reguladamente a través de mangueras porosas, en zanjas de infiltración realizadas en la huerta cada 45 cm.

Las zanjas son recubiertas por materia orgánica: hojas secas, rastrojo, turba, etc, que filtran y oxigenan el agua antes de ser absorbida por la huerta.

Tecnología y materiales
Al realizar gran cantidad de tareas en fábrica se limita el trabajo de obra a cimentación, montaje de módulos y colocación de revestimientos, de esta forma, obtenemos reducciones muy importantes en los costos y los tiempos de obra.

El sistema estructural que adoptamos, es el ballom frame, con estructura de muros de eucalipto saligna (2x4") y estructura de entrepisos de MLE de eucalipto (2x6" y 2x5"), todos los paneles son cubiertos con una placa en cada lado de OSB logrando la rigidez necesaria del módulo completo para el traslado.

Los materiales fueron elegidos por su bajo impacto ambiental, características técnicas, alta disponibilidad en la zona y bajo costo (por ejemplo el eucalipto saligna se extrae de bosques implantados).

Por otro lado, proponemos recuperar carpinterías de madera, tales como pinotea, cedro, roble y pisos de pinotea de excelente calidad para reutilizarlos en nuestros módulos de vivienda, obteniéndolos de demoliciones, que se realizan actualmente, de gran cantidad de edificios, construidos en las décadas del '50 y '60.

Proyecto urbano
El conjunto de viviendas lo definimos en un lote de 43.3x43.3 metros (un cuarto de manzana).

El criterio fundamental para el armado de los conjuntos fue lograr buenas orientaciones y espacios de huertas para todas las viviendas.

Los espacios comunes se definen a partir de circulaciones de acceso a las viviendas y plazas. Prevemos, espacios para el estacionamiento de vehículos.


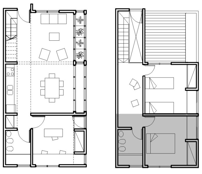
Planos
Realice click en los links para ver los planos.

[1] P. etapa 0 (módulo base)
[2] Planta etapa 1
[3] Planta etapa 2
[4] Planta etapa 3
[5] Planta etapa 4
[6] Paneles estructurales
[7] Detalle constructivo (*)
[8] Proyecto urbano

(*) Detalle encuentro muro/entretecho (adición)


Imágenes

Realice click sobre las imágenes para ampliarlas.

 
Curso Representacion de espacios arquitectonicos con 3D Studio Max
 
Si usted es profesional, este es su espacio para publicar su obra o proyecto (en forma gratuita). Para más información visitar la sección contacto: click aquí.
   
   

Noticias
informes especiales
bienal de arquitectura BA11
bienal de arquitectura BA09
publicaciones

Artículos
notas y artículos de interés
arquitectura legal
diseño de iluminación
software de arquitectura y diseño

Recursos
curso de decoracion (gratis/online)
archivo temático
descargas externas
curso de croquis (gratis/online)

Precios y costos
precios de materiales, indices y
costos m2 de construcción

Proyecto
obras construidas
proyectos para concursos
proyectos de estudiantes
arquitectos destacados
obras destacadas

Diseño
diseño industrial y mobiliario
diseño interior y decoración
Casa FOA 2009
Casa FOA 2010
Casa FOA 2011
Casa FOA 2012
Casa FOA 2013
Casa FOA 2014
Estilo Pilar 2010
Estilo Pilar 2012

Construcción
materiales y tecnologías
novedades de empresas
sector inmobiliario

Agenda
cursos y seminarios
congresos y bienales
charlas y eventos
exposiciones y muestras
concursos

Facultad
becas y subsidios
posgrados y maestrías
donde estudiar

Varios
ofertas laborales arquitectura, diseño y construccion
suscripcion newsletter (gratis)
redes sociales
publicidad

Arquimaster en Facebook
Arquimaster en Twitter
Arquimaster en LinkedIn
Arquimaster en Pinterest