 |
 |
 |
 |
 |
 |
 |
 |
| |
Ficha
técnica
Nombre del proyecto: EuroCenter RM (Centro
de Alto Rendimiento Rafa Márquez)
Ubicación: Calle Camino Arenero S/N, Fraccionamiento "El
Bajío" Zapopan, Jalisco
Nombre del despacho o arquitecto: Carloz Chavez
Arquitectos
Colaboradores: Arq. Carloz Chávez, Arq.
Mario Andrade, Arq. Jorge Heredia, Arq. Roberto Jaramillo,
Arq. Eric Ramírez, Arq. Moisés Cobián,
Arq. Francisco Olivas, Arq. Fátima Ruíz,
Arq. Javier Milanés, Arq. Manuel Gómez,
Arq. Fernando Corona, Arq. Omar Boyás
Créditos: LDI. Paulina Durán, Interiorismo.
LDI. Elizabeth Chávez, Interiorismo. LDI.
Aria Combs, Interiorismo. Delta, Instalaciones. Herman
Millar, Mobiliario. Arq. Apolonio Vázquez,
Ingenierías. Ing. Jesús Caloca, Ingenierías
Superficie del terreno: 75,800.00 m2 (7.58 has)
Superficie construida: 18,033.30 m2
Fecha: enero 2009 (inicio de obra)
Fotografía (imágenes virtuales):
Arq. Roberto Carlos Jaramillo Saavedra
Video: http://www.youtube.com/watch?v=crwMeTOGJjY
Sitio web: http://www.carlozchavez.com
|
|
Ver
planos de la obra
El proyecto denominado Eurocenter
Rafa Márquez
A.C., se localiza al oeste de la zona conurbada
de Guadalajara, en el municipio de Zapopan, Jalisco.
El proyecto está destinado a la formación
deportiva de jugadores profesionales de futbol, complementándose
con un complejo de alojamiento tipo internado para equipos
de futbol de visita en la ciudad ya sea de pretemporada,
concentraciones y/o selecciones nacionales.
El proyecto se compone principalmente de dos elementos,
el C.A.R. Centro de Alto Rendimiento y
el I.D.C.
Internado de Concentración.
El C.A.R. es el edificio principal del
proyecto en el cual se ubican principalmente las
terrazas.
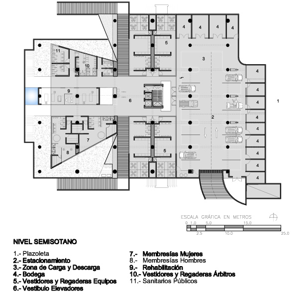
Cuenta con área de vestidores, duchas,
vapor, sauna, centro de rehabilitación, área
de prensa, salón de usos múltiples, salón
galería Rafa Márquez, gimnasio profesional,
souveniers, Nike store, 10 locales comerciales, 3 restaurantes
con terrazas, terraza V.I.P. y área de administración,
desarrollado en una superficie de aproximadamente 7500
m2 de construcción en 6 niveles, logrando que
desde sus terrazas puedan tener una vista de 360°.
Dentro del programa del C.A.R. se localizan 4
canchas,
de las
cuales 2 son de entrenamiento con medidas de 70x40
m con pasto sintético, las otras 2 son de medidas
profesionales de 105x70 m, una de césped natural
y la principal de pasto sintético, y con intención
de ser cubierta posteriormente teniendo así la
primera cancha de futbol profesional techada en México.
Esta cuenta con iluminación profesional y las
otras con iluminación de entrenamiento.
El I.D.C. es el complemento del Eurocenter
el cual tiene un programa arquitectónico bastante
completo para este proyecto atípico (denominado
así por
ser único en su género, al no tener en
México un referente similar de internado en el
deporte).
El reto es el de poder internar a la vez a
dos equipos de futbol y tener el menor contacto posible
entre
ellos, por lo cual se creó un ala de habitaciones
independientes por equipo con su propia suite y salón
de usos múltiples.
Así también,
cuenta con dos gimnasios profesionales, 2 vestidores
con duchas,
sauna, vapor y rehabilitación independientes, área
médica, salón de prensa, vestíbulo
principal, estancia magna, comedor, salón de proyecciones,
terrazas y un amplio jardín con piscina recreativa
y de rehabilitación, todo esto para los equipos.
En el área de servicio tenemos lo necesario
para su mejor funcionamiento, como administración,
bodegas, cuarto de calderas, plantas de emergencia de
energía eléctrica, cocina industrial, comedor
de empleados, vestidores de empleados, lavandería
y demás.
Una parte importante de este centro
es la formación de jugadores profesionales a los
cuales se destinó un área de dormitorios
dentro de este hotel, que por ser todavía prospectos
evitamos el tener contacto con el área de jugadores
profesionales, pero aún así dándoles
buenas instalaciones.
Para el uso del hotel contamos
con una cancha profesional de 105x70 m con césped
natural, iluminación tipo estadio, areneros y
rampas de potencia para pretemporadas. Además
cuenta con estacionamiento para miembros
y visitas, estacionamiento de servicio, estacionamiento
para jugadores y administrativos y estacionamiento para
público y prensa, como también espacio
para trailers de transmisión de señal de
los partidos, espacio para una ambulancia, 1 caseta principal
y una
caseta de público, graderías para mas 2000
personas y pista de jogging.
La construcción se pretende realizar en un programa
de trabajo de 24 meses. El sistema constructivo es
con estructura hibrida entre acero y concreto.
Contaremos
también con abastecimiento de agua de pozo, tratamiento
de aguas residuales para riego, captación de aguas
pluviales, sistema de riego, planta de emergencia de
energía eléctrica, iluminación por
medio de foto celdas, reforestación de arbolado.
La construcción es relativamente
mínima en afectación, pues se pretende
que la mayor cantidad de claro sea de absorción
de agua pluvial hacia los mantos freáticos por
localizarnos en la zona del Bajío.
El 85% de
la superficie son áreas jardinadas, por
eso denominamos este proyecto un proyecto de arquitectura
verde.
Planos
Realice click en los links para ver los planos.
[1] Planta
de conjunto
[2] Planta
nivel ingreso
[3] Planta
semisótano
[4] Planta
nivel terrazas 1
[5] Planta
nivel terrazas 2
[6] Planta
nivel SUM
[7] Planta
nivel restaurant
[8] Vista
norte
[9] Vista
sur
[10] Vista
este
[11] Vista
oeste
Imágenes
Realice click sobre las imágenes para ampliarlas.
[1] Vista edificio
[2] Vista edificio principal
[3] Vista de conjunto
[4] Vista hotel concentración
[5] Vista ingreso principal
[6] Maqueta virtual
[7] Maqueta virtual
[8] Entrevista con Rafa Márquez
|