Arquimaster - Medio digital de arquitectura, diseño y construccion Estas visitando la version anterior,
para ver la version actual realiza click aca

 

     
       
 
Climanet - Doble Vidrio Hermetico DVH
Matyser - Materiales y servicios para la construccion
Cursos de arquitectura y diseño de espacios
Anclaflex
Curso Introducción a Revit: Modela tus proyectos arquitectonicos
Bara
Casa Temixco (Chilpancingo, Guerrero, México) - OM Arquitectos
Curso Visualización arquitectónica con V-Ray Next para SketchUp
 

Ficha técnica
Nombre del proyecto: Casa Temixco
Ubicación: Alfonso G. Alarcón Nº 9, Col. Temixco II Chilpancingo, Guerrero, México
Proyectistas: OM Arquitectos (Arq. Cozovi Isaac Ocampo Guzmán y
Arq. Urb. Edwin Hernández Montelongo)
Colaboraciones: Arq. Urb. Areli Martínez García (Proyecto arquitectónico), Ing. Alejandro Reyes Marín (Ingeniería), OM Arquitectos/Arq. Urb. Mario Rosas Hernández (Construcción), Construalum/Héctor Hugo Araujo López (Aluminio)
Superficie del terreno: 225 m2
Superficie construida: 530 m2
Fecha: febrero 2009
Fotógrafo: Ignacio Álvarez Salgado

Ver planos de la obra

El proyecto se desarrolla en un terreno de 225 m2 de forma regular con tres frentes.

Los clientes, un matrimonio joven con una hija, demandaban un programa específico: garage para seis vehículos, jardín, espacios amplios y una terraza.

Por lo tanto se optó por trabajar el proyecto en tres niveles, y con una distribución de la planta en "L".

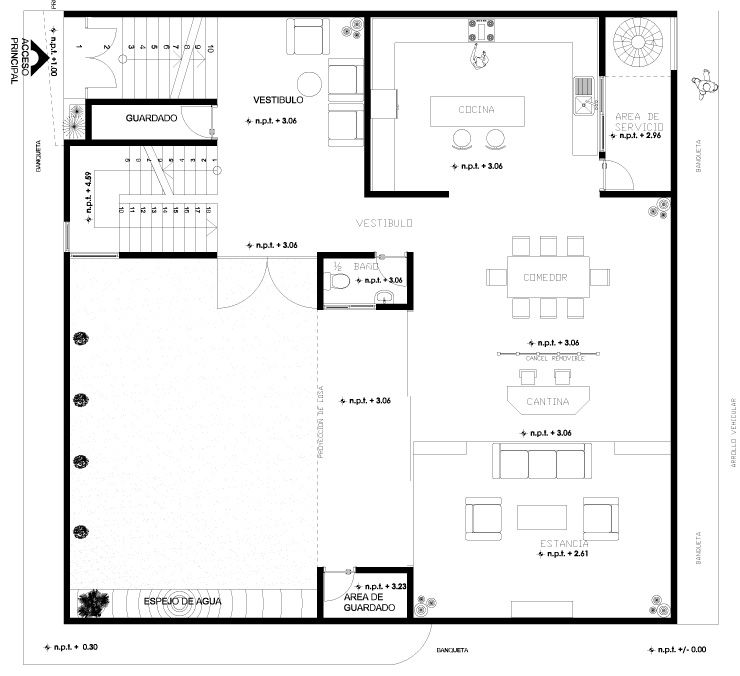
En el primer nivel se ubica la cochera y áreas de servicio, cuarto de lavado y bodega.

En el segundo nivel se encuentra el acceso principal con un vestíbulo a doble altura, la cocina y el área social que se abre hacia un jardín que busca apropiarse de los jacarandás existentes en el exterior.

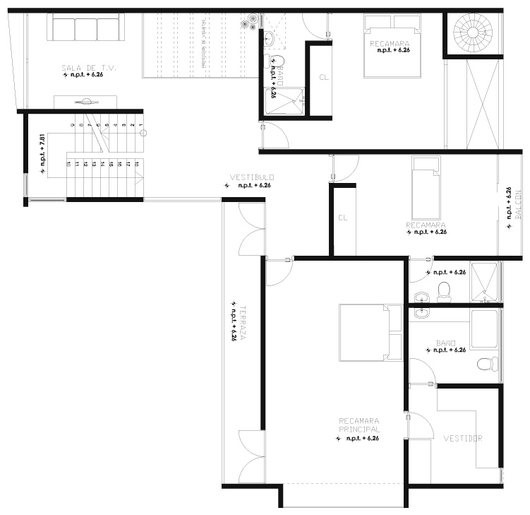
En el tercer nivel se ubican las recámaras (dormitorios) que se abren hacia el sur a una calle poco transitada y con vegetación abundante.

La casa se presenta por fuera cerrada con un juego de volúmenes con distintos materiales y transparencias que enmarcan las mejores vistas, intentando dialogar con el contexto de casas, que se cierran al exterior para abrirse a patios o jardines.

El proyecto apuesta por una solución espacial volcada al exterior sin renunciar a la privacidad, con una propuesta formal clara y sencilla alejada de falsos regionalismos.


Planos
Realice click en los links para ver los planos.

[1] Planta baja
[2] Planta alta


Imágenes

Realice click sobre las imágenes para ampliarlas.

Ver ficha técnica y datos de contacto al pie de página.


Acerca del estudio proyectista

OM Arquitectos
es un taller multidiciplinario, dedicado al diseño arquitectónico, urbanismo, construcción y el desarrollo de espacios habitables, con base en Chilpancingo, Guerrero, México, creado en 2007 con el firme compromiso de darle a nuestros clientes un ambiente de confort, seguridad y plusvalía.

Kozovi Isaac Ocampo Guzmán (México 1975). Arquitecto por la Universidad Autónoma Metropolitana Xochimilco, 2000 en la cual realiza el diplomado en tendencias actuales en vivienda, ha colaborado como director de construcción en varias empresas, realizando obras para dependencias como ISSFAM e ISSSTE, actualmente es director del taller de arquitectura OM/Arquitectos.

Edwin Hernández Montelongo (Chilpancingo 1973). Arquitecto Urbanista por la Universidad Autónoma de Guerrero,1997 ha colaborado como asesor en diversas empresas como TELMEX y grupo Walmart, Director Responsable de Obra No 118 en Chilpancingo y 1678 de AMDROC, desempeñándose actualmente como director administrativo del taller de arquitectura OM/Arquitectos.

 
Curso Representacion de espacios arquitectonicos con 3D Studio Max
 
Si usted es profesional, este es su espacio para publicar su obra o proyecto (en forma gratuita). Para más información visitar la sección contacto: click aquí.
   
   

Noticias
informes especiales
bienal de arquitectura BA11
bienal de arquitectura BA09
publicaciones

Artículos
notas y artículos de interés
arquitectura legal
diseño de iluminación
software de arquitectura y diseño

Recursos
curso de decoracion (gratis/online)
archivo temático
descargas externas
curso de croquis (gratis/online)

Precios y costos
precios de materiales, indices y
costos m2 de construcción

Proyecto
obras construidas
proyectos para concursos
proyectos de estudiantes
arquitectos destacados
obras destacadas

Diseño
diseño industrial y mobiliario
diseño interior y decoración
Casa FOA 2009
Casa FOA 2010
Casa FOA 2011
Casa FOA 2012
Casa FOA 2013
Casa FOA 2014
Estilo Pilar 2010
Estilo Pilar 2012

Construcción
materiales y tecnologías
novedades de empresas
sector inmobiliario

Agenda
cursos y seminarios
congresos y bienales
charlas y eventos
exposiciones y muestras
concursos

Facultad
becas y subsidios
posgrados y maestrías
donde estudiar

Varios
ofertas laborales arquitectura, diseño y construccion
suscripcion newsletter (gratis)
redes sociales
publicidad

Arquimaster en Facebook
Arquimaster en Twitter
Arquimaster en LinkedIn
Arquimaster en Pinterest