Arquimaster - Medio digital de arquitectura, diseño y construccion Estas visitando la version anterior,
para ver la version actual realiza click aca

 

     
       
 
Climanet - Doble Vidrio Hermetico DVH
Matyser - Materiales y servicios para la construccion
Cursos de arquitectura y diseño de espacios
Anclaflex
Curso Introducción a Revit: Modela tus proyectos arquitectonicos
Bara
Estudio de abogados (Lima, Perú) - Arq. José Orrego
Curso Introducción al dibujo arquitectónico a mano alzada
 

Ficha técnica
Nombre: Estudio de abogados
Ubicación: San Isidro, Lima, Perú
Proyecto: Arq. José A. Orrego Herrera
Programa: Salas de reuniones, oficinas de los socios del estudio, oficinas de abogados y personal de apoyo, servicios generales, biblioteca, cafetería, zona administrativa, archivos, etc.
Sitio web: http://www.metropolisperu.com

Para proyectar el estudio de uno de los estudios de abogados más importante del Perú se convocó a un concurso privado donde el estudio del Arq. José A. Orrego Herrera resultó ganador con una propuesta de reciclaje y puesta en valor de una antigua clínica ubicada entre el distrito de San Isidro en Lima, Perú.

El planteamiento general buscó recuperar la estructura original de la casa eliminando los muros y divisiones creadas en el interior para que esta antigua casa, intervenida hasta en 5 oportunidades, recuperara los amplios espacios originales.

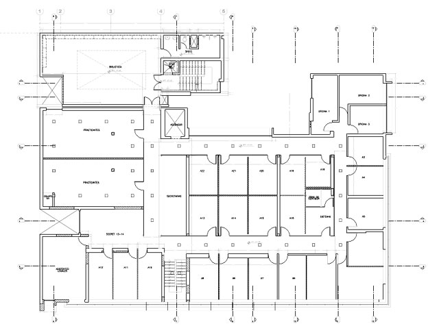
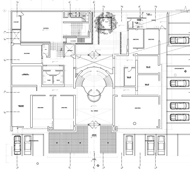
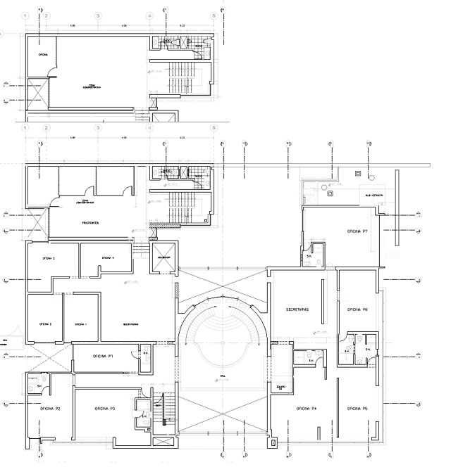
En el interior se organizó el programa del estudio de manera que en el primer nivel se atendieran a los clientes visitantes en las salas de reuniones, en el segundo piso se ubicaron las oficinas de los socios del estudio y en el tercer piso se distribuyeron abogados y personal de apoyo.

Un edificio existente, adyacente a la construcción, se utilizó para colocar servicios generales, la biblioteca, la cafetería, la zona administrativa y archivos.

En esta última zona se ubicó una escalera que comunicara todos los niveles del estudio y permitiera tener una circulación interna para todo el estudio.

La casa se recuperó en su forma original interior, salvando la gran escalera monumental que tenía la misma y que pasó a formar parte del centro de toda la construcción.

El ingreso fue la zona más intervenida donde se buscó crear una doble altura que realzara el espacio central de la casa y que se vinculara con un segundo ingreso principal propuesto en la parte posterior, de uso restringido para los que trabajan en el estudio.

Para la fachada se propuso un plomo único para poder colocar una fachada de vidrio negro y alerones de aluminio de acuerdo a un diseño elaborado para este proyecto. La intención era crear una caja negra exterior que sintetizara de alguna manera la solidez, formalidad, sobriedad y equilibrio, valores propios de un estudio de abogados.

La solidez del volumen propuesto se sublimó con el remarco en granito azul ala de mariposa alrededor de la puerta de doble altura de manera que anuncie la importancia del espacio principal al ingresar.

Para afianzar la monumentalidad del recorrido hacia el interior del edificio, se creó un puente sobre un espejo de agua para suavizar la dureza del paralelepípedo de vidrio negro con el sonido y movimiento del agua. Tanto los materiales usados, vidrio negro, vidrio arenado, granito y agua, son una metáfora que asocia al estudio de abogados con conceptos tales como transparencia, solidez y credibilidad.

En el interior se trabajó con carpintería color nogal en proporción monumental combinada con vidrios arenados para crear pantallas luminosas de afuera hacia adentro en el día y de adentro hacia fuera en la noche por el tratamiento de iluminación propuesto.

Para que el edificio exista en la noche y no se desmaterialice por el color oscuro del vidrio, se propusieron alerones en aluminio color natural que son iluminados desde el piso para crear una caja virtual de franjas horizontales.

Expresión de la fachada. Una condición importante en el tratamiento de las caras del edificio, ha sido el evitar utilizar curvas o elementos muy llamativos que eventualmente pasen de moda. La propuesta resuelve la atemporalidad de la edificación con un tratamiento purista y racional, de manera que esta fachada tenga vigencia en el tiempo como solución arquitectónica y no pase de moda por un uso llamativo o por tratamientos muy elaborados.

Considerando que el proyecto es para un estudio de abogados, se ha buscado las metáforas arquitectónicas necesarias que sean consecuentes con el mismo. En esta visión se ha evitado la línea curva como tema y se ha favorecido en la solución en base a líneas rectas propias de un edificio asociado al derecho.

Planos
[1] Planta accesos
[2] Planta 1º piso
[3] Planta 2º piso
[4] Vista accesos
[5] Vista lateral

Realice click sobre los nombres de los planos para ampliarlos


Acerca del proyectista

La oficina del arquitecto José Orrego Herrera es uno de los estudios más importantes de diseño contemporáneo en el Perú. Con más de 19 años haciendo arquitectura tienen hasta la fecha más de 400 proyectos desarrollados entre centros comerciales, edificios de oficinas, casas y diseños comerciales.

 
Curso de Introduccion a Sketchup: Visualizacion arquitectonica y modelado D
 
Si usted es profesional, este es su espacio para publicar su obra o proyecto (en forma gratuita). Para más información visitar la sección contacto: click aquí.
   
   

Noticias
informes especiales
bienal de arquitectura BA11
bienal de arquitectura BA09
publicaciones

Artículos
notas y artículos de interés
arquitectura legal
diseño de iluminación
software de arquitectura y diseño

Recursos
curso de decoracion (gratis/online)
archivo temático
descargas externas
curso de croquis (gratis/online)

Precios y costos
precios de materiales, indices y
costos m2 de construcción

Proyecto
obras construidas
proyectos para concursos
proyectos de estudiantes
arquitectos destacados
obras destacadas

Diseño
diseño industrial y mobiliario
diseño interior y decoración
Casa FOA 2009
Casa FOA 2010
Casa FOA 2011
Casa FOA 2012
Casa FOA 2013
Casa FOA 2014
Estilo Pilar 2010
Estilo Pilar 2012

Construcción
materiales y tecnologías
novedades de empresas
sector inmobiliario

Agenda
cursos y seminarios
congresos y bienales
charlas y eventos
exposiciones y muestras
concursos

Facultad
becas y subsidios
posgrados y maestrías
donde estudiar

Varios
ofertas laborales arquitectura, diseño y construccion
suscripcion newsletter (gratis)
redes sociales
publicidad

Arquimaster en Facebook
Arquimaster en Twitter
Arquimaster en LinkedIn
Arquimaster en Pinterest