Arquimaster - Medio digital de arquitectura, diseño y construccion Estas visitando la version anterior,
para ver la version actual realiza click aca

 

     
       
 
Climanet - Doble Vidrio Hermetico DVH
Matyser - Materiales y servicios para la construccion
Cursos de arquitectura y diseño de espacios
Anclaflex
Curso Introducción a Revit: Modela tus proyectos arquitectonicos
Bara
Residencia PC-1 (Seattle, EEUU) - Pb Elemental Architecture
Curso Autodesk Revit para principiantes
 

Ficha técnica
Nombre: Residencia PC-1
Proyectista: Pb Elemental Architecture
Ubicación: Seattle, Washington, EEUU
Año de construcción: 2008
Área construida: 265 m2
Sitio web: http://www.elementalarchitecture.com

Ver planos del proyecto

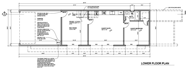
PC-1 es una casa certificada de 5 estrellas Built Green. La casa de 265 m2 incluye una unidad habitacional extra de 1 habitación más estudio con cocina, lavandería, 1 baño, sala, comedor y patio externo privado en el nivel inferior.

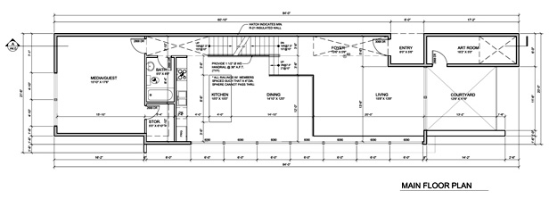
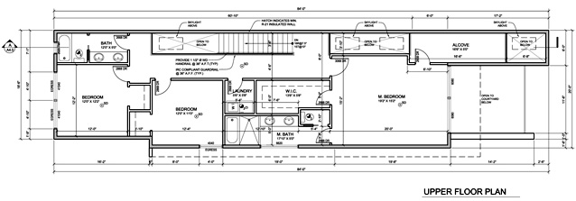
La casa principal cuenta con garaje para dos autos con cuarto intermedio, 3 habitaciones, 2 baños y oficina.

El area de la sala, comedor y cocina cuenta con un sistema de paneles translucidos de policarbonato de gran dimensión que se extienden desde el primer nivel hasta la habitación principal en el segundo nivel.

Paneles translucidos de policarbonato
Desde el amanecer hasta el atardecer, los muros translucidos brillan con abundante luz natural y cambian con el clima de Seattle.

El sistema de paneles translucidos ofrecen una generosa luz natural con un filtro UV del 99,9% y otorgan un alto aislamiento térmico.

Los residentes pueden seguir el sutil movimiento de las nubes o de los arboles cercanos a medida que se replica las sombras sobre el muro translucido percibiéndose en la habitación principal y el área social.

Durante la noche, un sistema de iluminación LED programable de alta eficiencia construido en medio de los paneles de policarbonato otorga infinitos colores de intensidad variable para adaptarse al estado de humor de los residentes o para actividades vespertinas.

Desde el exterior, la casa PC-1 se visualiza como una linterna ámbar o como un night club de rojo intenso. Los paneles de policarbonato no contaminan, son 100% reciclables, tienen un peso de 1/6 comparado con el vidrio, y ofrecen una resistencia al golpe 200 veces superior al vidrio.

Espacios convertibles
El área social presenta un sistema de puertas de vidrio plegables que se abren aumentando el espacio.

El área del deck está enmarcada por una pantalla de cedro con marcos de acero que pivotea para abrirse manualmente. El área del deck se transforma de un comedor íntimo y cerrado o área de recreación a un extrovertido deck completamente abierto al antejardín como un área espaciosa de entretenimiento bajo un toldo de cedro enmarcado de acero.

Sistema de recolección de aguas lluvias
Un sistema de recolección de aguas ubicado debajo del deck recoge un total de 4,000 galones de agua lluvia que es filtrada y bombeada hacia el sistema de irrigación que suple los servicios de lavandería, red contraincendios y los sanitarios. Cuando el nivel es bajo, el sistema cambia utilizando la red pública.

Materiales, terminaciones y sistemas
El uso de materiales puros como el concreto, acero, vidrio, paneles de concreto y bambú fue fundamental por su durabilidad, minimizacion a largo plazo del impacto ambiental y honestidad de diseño/función.

Las terminaciones cuentan con bajo o cero VOC (Químicos Orgánicos Volátiles).

Los materiales con contenido reciclado incluyen mesones de Paperstone, laminado Ipe reciclado, Maxipanel, Swisspearl, bambú negro cultivado en sitio y madera diseñada.

La cocina cuenta con gabinetes de Henrybuilt.

La casa PC-1 está calefaccionada mediante calor radiante del piso de una caldera de condensación de alta eficacia, 93%+, también utilizadas para DHW (agua caliente de uso sanitario).

El sistema de iluminación incluye interruptores, teclados numéricos y pantalla táctil para programar los colores de los paneles translucidos.

El sistema de sonido NUVO Grand Concerto permite el completo control de aparatos como un Ipod o sintonizador de 6 zonas de audición por toda la casa.


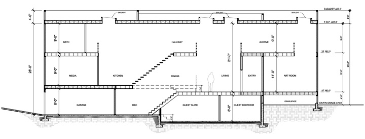
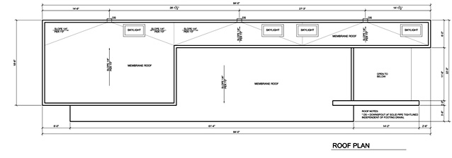
Planos
Realice click en los links para ver los planos.

[1] Planta nivel inferior
[2] Planta principal
[3] Planta superior
[4] Planta de techos
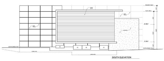
[5] Vista sur
[6] Vista este
[7] Corte longitudinal


Imágenes

Realice click sobre las imágenes para ampliarlas.


Acerca de los proyectistas
Fundada en 2004, Pb Elemental Architecture es una práctica interdisciplinaria involucrada en el diseño riguroso e investigación que da paso a la innovación de edificios iconos y ambientes urbanos dinámicos. Su objetivo es crear soluciones ingeniosas ante las limitaciones de diseño, analizando las relaciones entre espacio, programa, forma, presupuesto y materialidad.

En cualquier medio en crecimiento, Pb Elemental Architecture es una práctica dinámica en evolución que responde a las condiciones sociales, culturales, políticas, y tecnológicas de la vida moderna. Con proyectos a nivel mundial, el trabajo de la firma se extiende desde lo residencial, comercial, hoteles y edificios institucionales hasta grandes proyectos de planeamiento urbano y concursos internacionales de arquitectura y diseño. Pb Elemental Architecture fue galardonada en 2007 con la mención de honor de AIA American Institute of Architects y recibió el premio de diseño en 2008 por su contribución a la estructura urbana de Seattle.

Con su oficina principal en Seattle, Washington, Pb Elemental Architecture abrió recientemente oficinas en Hong Kong, Iquique y Lima.

 
Curso Representacion de espacios arquitectonicos con 3D Studio Max
 
Si usted es profesional, este es su espacio para publicar su obra o proyecto (en forma gratuita). Para más información visitar la sección contacto: click aquí.
   
   

Noticias
informes especiales
bienal de arquitectura BA11
bienal de arquitectura BA09
publicaciones

Artículos
notas y artículos de interés
arquitectura legal
diseño de iluminación
software de arquitectura y diseño

Recursos
curso de decoracion (gratis/online)
archivo temático
descargas externas
curso de croquis (gratis/online)

Precios y costos
precios de materiales, indices y
costos m2 de construcción

Proyecto
obras construidas
proyectos para concursos
proyectos de estudiantes
arquitectos destacados
obras destacadas

Diseño
diseño industrial y mobiliario
diseño interior y decoración
Casa FOA 2009
Casa FOA 2010
Casa FOA 2011
Casa FOA 2012
Casa FOA 2013
Casa FOA 2014
Estilo Pilar 2010
Estilo Pilar 2012

Construcción
materiales y tecnologías
novedades de empresas
sector inmobiliario

Agenda
cursos y seminarios
congresos y bienales
charlas y eventos
exposiciones y muestras
concursos

Facultad
becas y subsidios
posgrados y maestrías
donde estudiar

Varios
ofertas laborales arquitectura, diseño y construccion
suscripcion newsletter (gratis)
redes sociales
publicidad

Arquimaster en Facebook
Arquimaster en Twitter
Arquimaster en LinkedIn
Arquimaster en Pinterest