Arquimaster - Medio digital de arquitectura, diseño y construccion Estas visitando la version anterior,
para ver la version actual realiza click aca

 

     
       
 
Climanet - Doble Vidrio Hermetico DVH
Matyser - Materiales y servicios para la construccion
Cursos de arquitectura y diseño de espacios
Anclaflex
Curso Introducción a Revit: Modela tus proyectos arquitectonicos
Bara
Residencias Dakota (Seattle, EEUU) - Pb Elemental Architecture
Curso Autodesk Revit para principiantes
 

Ficha técnica
Nombre: Residencias Dakota
Proyectista: Pb Elemental Architecture
Ubicación: Seattle, Washington, EEUU
Año de construcción: 2008
Área construida: 650 m2
Sitio web: http://www.elementalarchitecture.com

Ver planos del proyecto

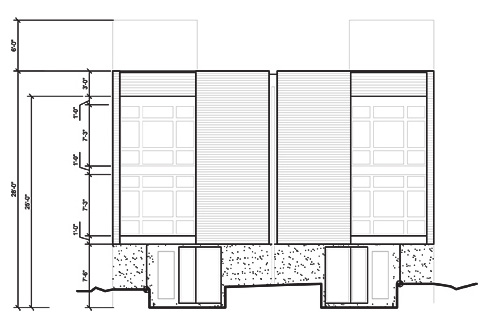
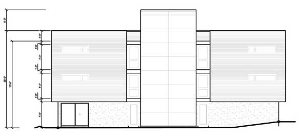
El proyecto de cuatro unidades (cada unidad de 162.5 m2), es una casa localizada en un pequeño suburbio del sur de Seattle llamado Beacon Hill.

Rodeada por una antigua historia de casas de un solo piso en ladrillo, la audaz construcción multifamiliar se eleva 3 niveles para rematar en una generosa terraza con un deck en cedro.

El diseño comienza en el nivel de acceso donde los residentes adquieren un sentido de privacidad bajando unos cuantos escalones, detrás de un muro de concreto para acceder a las viviendas.

Las viviendas están envueltas en pisos de concreto esmaltado y madera de bambú.

La escalera en concreto y acero es un punto focal de diseño sobre el cual se posan los ojos al acceder a cada unidad.

Los elementos de diseño incluyen ventanas de piso a techo, lo cual se repite en cada uno de los niveles.

El trabajo simétrico en las fachadas hace de las 4 unidades un solo edificio.

Una zona social en la que el comedor se integra a la cocina, algo habitual por estos días, fortalece la relación cocinar/comer/compartir.


Planos
Realice click en los links para ver los planos.

[1] Planta general
[2] Planta baja
[3] Planta 1º piso
[4] Planta 2º piso
[5] Planta techos
[6] Vista este
[7] Vista norte


Imágenes

Realice click sobre las imágenes para ampliarlas.


Acerca de los proyectistas
Fundada en 2004, Pb Elemental Architecture es una práctica interdisciplinaria involucrada en el diseño riguroso e investigación que da paso a la innovación de edificios iconos y ambientes urbanos dinámicos. Su objetivo es crear soluciones ingeniosas ante las limitaciones de diseño, analizando las relaciones entre espacio, programa, forma, presupuesto y materialidad.

En cualquier medio en crecimiento, Pb Elemental Architecture es una práctica dinámica en evolución que responde a las condiciones sociales, culturales, políticas, y tecnológicas de la vida moderna. Con proyectos a nivel mundial, el trabajo de la firma se extiende desde lo residencial, comercial, hoteles y edificios institucionales hasta grandes proyectos de planeamiento urbano y concursos internacionales de arquitectura y diseño. Pb Elemental Architecture fue galardonada en 2007 con la mención de honor de AIA American Institute of Architects y recibió el premio de diseño en 2008 por su contribución a la estructura urbana de Seattle.

Con su oficina principal en Seattle, Washington, Pb Elemental Architecture abrió recientemente oficinas en Hong Kong, Iquique y Lima.

 
Curso Representacion de espacios arquitectonicos con 3D Studio Max
 
Si usted es profesional, este es su espacio para publicar su obra o proyecto (en forma gratuita). Para más información visitar la sección contacto: click aquí.
   
   

Noticias
informes especiales
bienal de arquitectura BA11
bienal de arquitectura BA09
publicaciones

Artículos
notas y artículos de interés
arquitectura legal
diseño de iluminación
software de arquitectura y diseño

Recursos
curso de decoracion (gratis/online)
archivo temático
descargas externas
curso de croquis (gratis/online)

Precios y costos
precios de materiales, indices y
costos m2 de construcción

Proyecto
obras construidas
proyectos para concursos
proyectos de estudiantes
arquitectos destacados
obras destacadas

Diseño
diseño industrial y mobiliario
diseño interior y decoración
Casa FOA 2009
Casa FOA 2010
Casa FOA 2011
Casa FOA 2012
Casa FOA 2013
Casa FOA 2014
Estilo Pilar 2010
Estilo Pilar 2012

Construcción
materiales y tecnologías
novedades de empresas
sector inmobiliario

Agenda
cursos y seminarios
congresos y bienales
charlas y eventos
exposiciones y muestras
concursos

Facultad
becas y subsidios
posgrados y maestrías
donde estudiar

Varios
ofertas laborales arquitectura, diseño y construccion
suscripcion newsletter (gratis)
redes sociales
publicidad

Arquimaster en Facebook
Arquimaster en Twitter
Arquimaster en LinkedIn
Arquimaster en Pinterest