Arquimaster - Medio digital de arquitectura, diseño y construccion Estas visitando la version anterior,
para ver la version actual realiza click aca

 

     
       
 
Climanet - Doble Vidrio Hermetico DVH
Matyser - Materiales y servicios para la construccion
Cursos de arquitectura y diseño de espacios
Anclaflex
Curso Introducción a Revit: Modela tus proyectos arquitectonicos
Bara
Casa en Palabritas (Lima, Perú) - José Orrego Herrera arq.
Curso Autodesk Revit para principiantes
 

Ficha técnica
Proyecto: Casa de playa en Palabritas
Proyectista: Metropolis Arquitectura, Arq. José Orrego Herrera
Ubicación: Playa Palabritas, Lima, Perú
Sitio web: http://www.metropolisperu.com

Ver planos de la obra

La casa se ubica en un lote en primera fila y se ha diseñado para que la arquitectura actúe como un marco de la vista hacia la playa y las islas que se encuentran en el frente.

La estética de la casa celebra el verano con sus curvas de línea moderna que nos recuerda a la arquitectura brasileña de los años sesenta.

Toda la casa ha sido trabajada en color blanco con acentos en color rojo tanto en elementos principales como la piscina, así como con el mobiliario.

La casa recuerda elementos competitivos utilizados en las películas de Stanley Kubrick con el uso de elementos curvos y blancos contrastados con detalles color rojo.

El exterior de la casa está trabajado como una caja blanca elevada, expuesta por el frente.

Uno de los lados tiene una celosía de concreto en base a una composición contemporánea con perforaciones que permite darle una transparencia desde el interior sin perder intimidad.

La sala y el comedor están dispuestos en el frente de manera que se integren a la terraza desplegando las mamparas de vidrio.

Al interior se ha trabajado un patio interior en un nivel inferior donde confluyen los dormitorios y el estar, de manera que se pueda tener una zona intima para estos ambientes.

El dormitorio se encuentra en la primera planta y está ubicado de manera que pueda ver el mar a través de sus espacios.

Todo el conjunto ha buscado crear un contraste del color rojo sobre superficies blancas de manera que los espacios son amplificados por el contraste de los detalles.

Desde el interior de la sala, se ofrece un gran marco arquitectónico que muestra el paisaje de la playa, la isla y el atardecer.


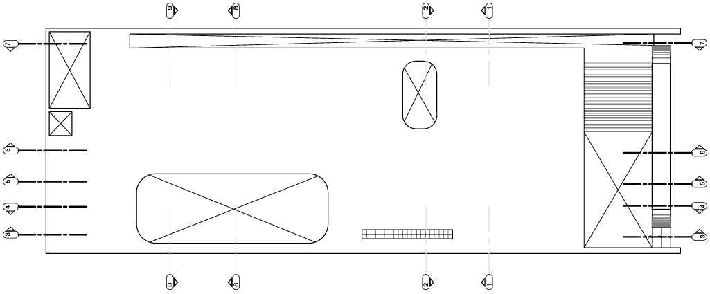
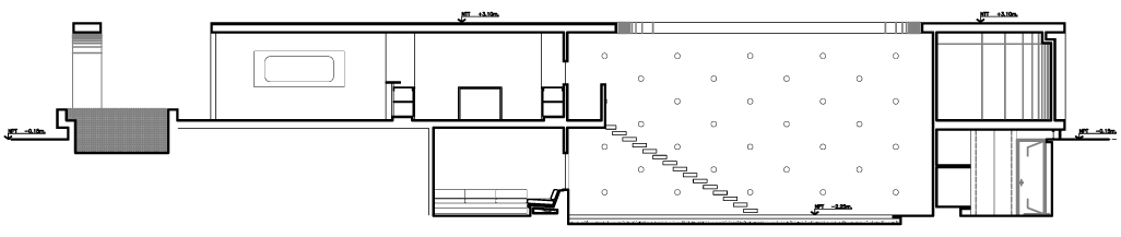
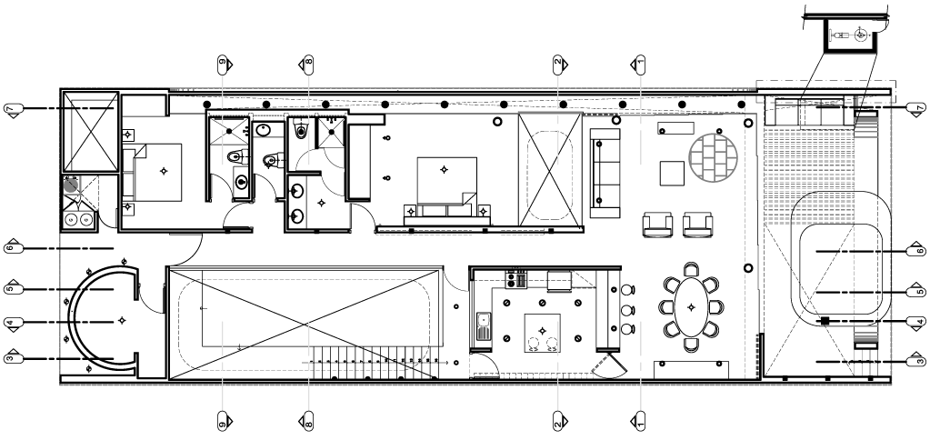
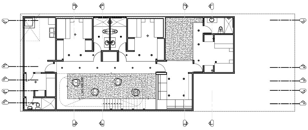
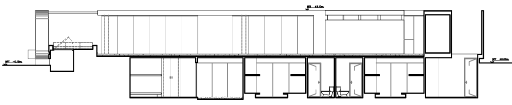
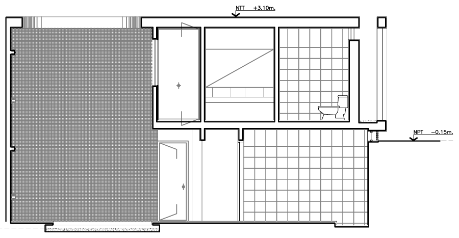
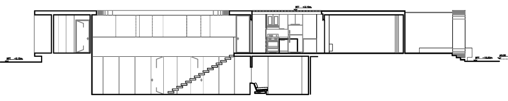
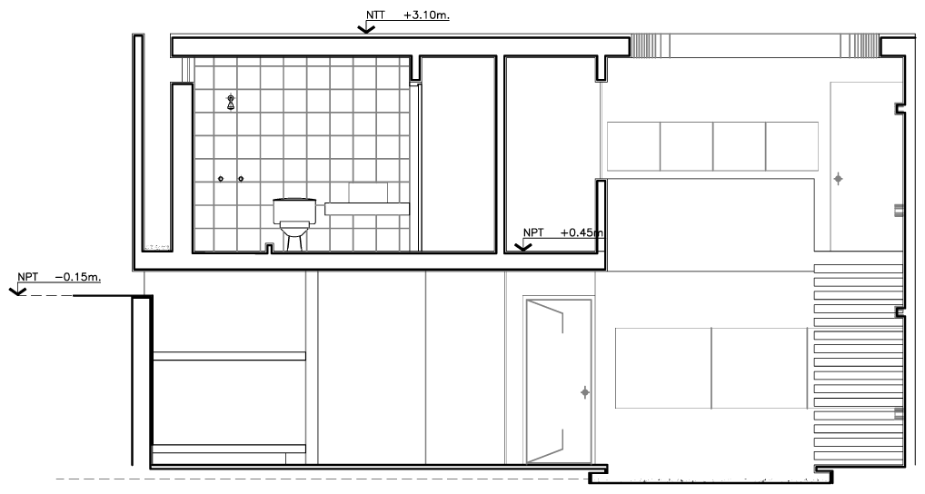
Planos
Realice click en los links para ver los planos.

[1] Planta inferior
[2] Planta baja
[3] Planta de techos
[4] Vista frente
[5] Vista contrafrente
[6] Vista lateral
[7] Corte 1-1
[8] Corte 2-2
[9] Corte 3-3
[10] Corte 4-4
[11] Corte 5-5
[12] Corte 6-6
[13] Corte 7-7
[14] Corte 8-8
[15] Corte 9-9


Imágenes

Realice click sobre las imágenes para ampliarlas.

Ver ficha técnica y datos de contacto al pie de página.


Acerca del proyectista
Arq. José Orrego Herrera

Como proyectista ha participado en concursos privados y se ha especializado en diferentes áreas proyectuales tales como:

Cementerios y culto
Oficinas corporativas
Restaurantes
Proyectos comerciales (desde arquigrafia, módulos, tiendas, cines, tiendas de departamentos, supermercados y centros comerciales de mediano y gran formato)
Casas de playa
Imagen comercial
Reciclajes

Con más de 20 años dedicado exclusivamente al diseño, lleva desarrollados hasta la fecha más de 400 proyectos realizados por encargos privados de distinto tipo.

En la actualidad lidera una de los estudios de arquitectura más importantes del Perú.

 
Curso Representacion de espacios arquitectonicos con 3D Studio Max
 
Si usted es profesional, este es su espacio para publicar su obra o proyecto (en forma gratuita). Para más información visitar la sección contacto: click aquí.
   
   

Noticias
informes especiales
bienal de arquitectura BA11
bienal de arquitectura BA09
publicaciones

Artículos
notas y artículos de interés
arquitectura legal
diseño de iluminación
software de arquitectura y diseño

Recursos
curso de decoracion (gratis/online)
archivo temático
descargas externas
curso de croquis (gratis/online)

Precios y costos
precios de materiales, indices y
costos m2 de construcción

Proyecto
obras construidas
proyectos para concursos
proyectos de estudiantes
arquitectos destacados
obras destacadas

Diseño
diseño industrial y mobiliario
diseño interior y decoración
Casa FOA 2009
Casa FOA 2010
Casa FOA 2011
Casa FOA 2012
Casa FOA 2013
Casa FOA 2014
Estilo Pilar 2010
Estilo Pilar 2012

Construcción
materiales y tecnologías
novedades de empresas
sector inmobiliario

Agenda
cursos y seminarios
congresos y bienales
charlas y eventos
exposiciones y muestras
concursos

Facultad
becas y subsidios
posgrados y maestrías
donde estudiar

Varios
ofertas laborales arquitectura, diseño y construccion
suscripcion newsletter (gratis)
redes sociales
publicidad

Arquimaster en Facebook
Arquimaster en Twitter
Arquimaster en LinkedIn
Arquimaster en Pinterest