Arquimaster - Medio digital de arquitectura, diseño y construccion Estas visitando la version anterior,
para ver la version actual realiza click aca

 

     
       
 
Climanet - Doble Vidrio Hermetico DVH
Matyser - Materiales y servicios para la construccion
Cursos de arquitectura y diseño de espacios
Anclaflex
Curso Introducción a Revit: Modela tus proyectos arquitectonicos
Bara
Casa en San Isidro Labrador (Tigre, Buenos Aires) - Jorge Pizzini arq.
Curso Sketching conceptual para arquitectura y diseño
 

Ficha técnica
Nombre: Vivienda de fin de semana
Ubicación: San Isidro Labrador, lote 305, Tigre, Pcia. Buenos Aires
Proyectista: arq. Jorge Pizzini

Ver planos del proyecto

En este caso, el comitente encargo una vivienda de fin de semana en el barrio náutico San Isidro Labrador, ubicado en Tigre, Pcia. de Buenos Aires.

Las tareas comenzaron desde la elección del terreno.

Las condiciones eran ubicación (sobre laguna mayor) y orientación (sol de la tarde sobre el jardín).

La vivienda debería tener uso de fin de semana, visuales a la laguna y un anexo, a modo de Loft, el cual tendría que funcionar en forma independiente de la casa.

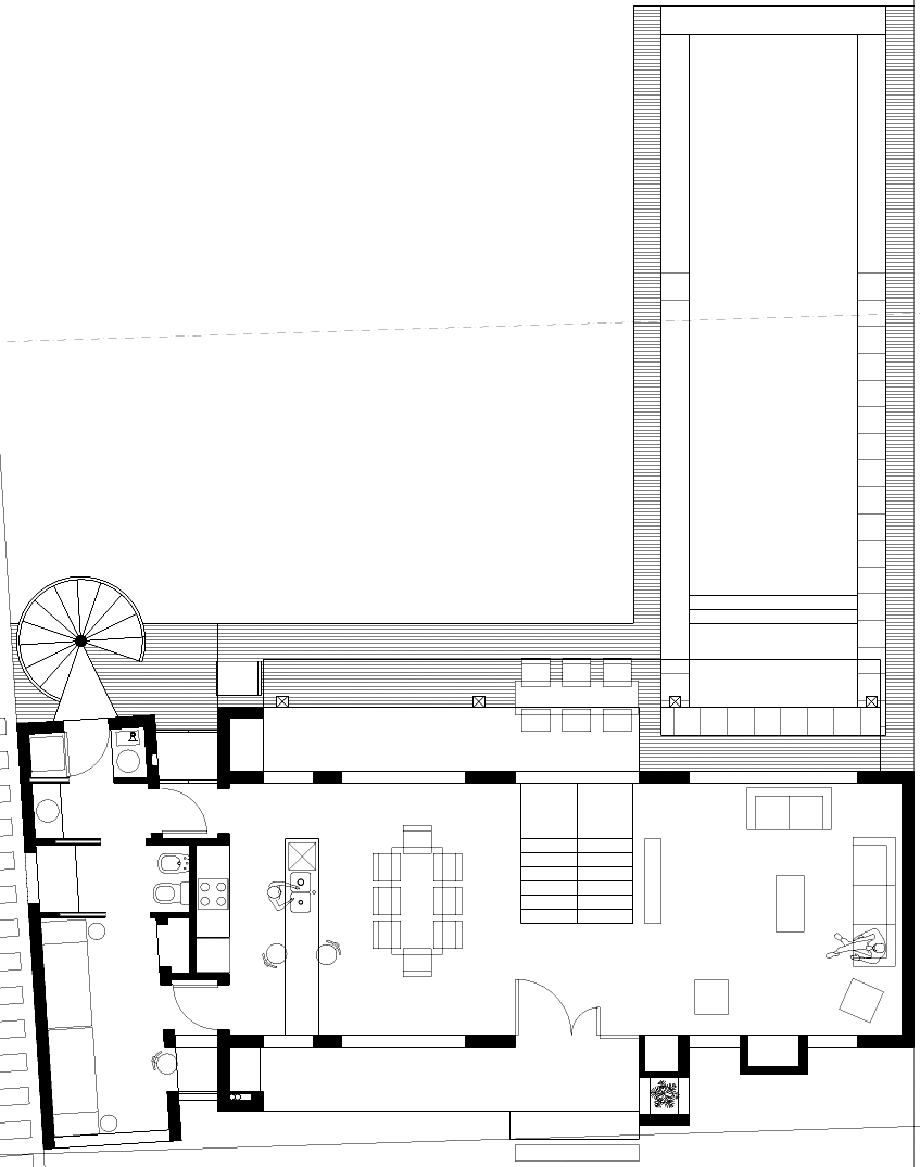
Se propuso una planta baja con cocina integrada al living y una escalera central de hormigón plegado, como protagonista del espacio central.

La zona de servicios tiene doble acceso, desde el dormitorio de huéspedes y/o servicio y desde el antebaño de servicio y/o toilette.

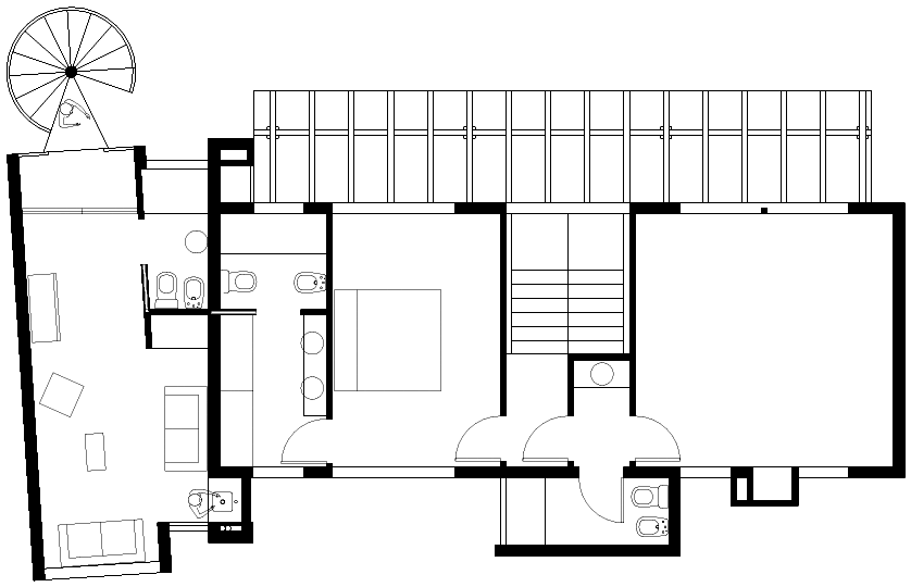
En planta alta se dispusieron dos dormitorios en suite, que se expanden hacia una gran terraza/deck, la cual balconea sobre la piscina, orientada hacia la laguna.

Al loft se accede desde una escalera caracol exterior, forrada en deck de lapacho.

Sobre la laguna se construyó un muelle náutico.


Planos
Realice click en los links para ver los planos.

[1] Planta baja
[2] Planta alta
[3] Vista frente
[4] Vista contrafrente
[5] Vista lateral este
[6] Vista lateral oeste
[7] Corte transversal
[8] Corte longitudinal


Imágenes

Realice click sobre las imágenes para ampliarlas.


Ver ficha técnica y datos de contacto al pie de página.

 
Curso Representacion de espacios arquitectonicos con 3D Studio Max
 
Si usted es profesional, este es su espacio para publicar su obra o proyecto (en forma gratuita). Para más información visitar la sección contacto: click aquí.
   
   

Noticias
informes especiales
bienal de arquitectura BA11
bienal de arquitectura BA09
publicaciones

Artículos
notas y artículos de interés
arquitectura legal
diseño de iluminación
software de arquitectura y diseño

Recursos
curso de decoracion (gratis/online)
archivo temático
descargas externas
curso de croquis (gratis/online)

Precios y costos
precios de materiales, indices y
costos m2 de construcción

Proyecto
obras construidas
proyectos para concursos
proyectos de estudiantes
arquitectos destacados
obras destacadas

Diseño
diseño industrial y mobiliario
diseño interior y decoración
Casa FOA 2009
Casa FOA 2010
Casa FOA 2011
Casa FOA 2012
Casa FOA 2013
Casa FOA 2014
Estilo Pilar 2010
Estilo Pilar 2012

Construcción
materiales y tecnologías
novedades de empresas
sector inmobiliario

Agenda
cursos y seminarios
congresos y bienales
charlas y eventos
exposiciones y muestras
concursos

Facultad
becas y subsidios
posgrados y maestrías
donde estudiar

Varios
ofertas laborales arquitectura, diseño y construccion
suscripcion newsletter (gratis)
redes sociales
publicidad

Arquimaster en Facebook
Arquimaster en Twitter
Arquimaster en LinkedIn
Arquimaster en Pinterest