Arquimaster - Medio digital de arquitectura, diseño y construccion Estas visitando la version anterior,
para ver la version actual realiza click aca

 

     
       
 
Climanet - Doble Vidrio Hermetico DVH
Matyser - Materiales y servicios para la construccion
Cursos de arquitectura y diseño de espacios
Anclaflex
Curso Introducción a Revit: Modela tus proyectos arquitectonicos
Bara
Casa Roca (Lima, Perú) - Gomez De La Torre y Guerrero arqs.
Curso Sketching conceptual para arquitectura y diseño
 

Ficha técnica
Nombre: Casa Roca
Proyectistas: Arq. Enrique Gomez De La Torre y Arq. Maria del Carmen Guerrero
Ubicación: Chacarrilla del Estanque, Surco, Lima, Perú
Área del terreno: 560 m2
Área construida: 504 m2
Año: 2005
Sitio web: https://www.gomezdelatorreyguerrero-arquitectos.com

Ver planos del proyecto

El proyecto comenzó como una remodelación de una casa existente, pero conforme se fue desarrollando el programa requerido por la familia que la habitaría, paso a ser un proyecto integral.

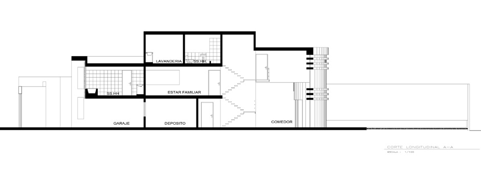
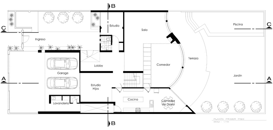
La casa tiene un ingreso vidriado al lobby, el cual nos conduce a una estancia de doble altura, trabajada con un puente vidriado y un gran ventanal curvo hacia el jardín.

Tanto el puente como la escalera son de acero y ayudan a dar la escala al comedor.

La sala y el lobby mantienen un juego de techos, siendo el del lobby el más bajo, la sala a un nivel intermedio y finalmente el comedor a un nivel más alto.

El puente que conecta el dormitorio principal con el resto de la casa, balconea a la zona social desde el cual se puede disfrutar del gran espacio de la estancia.

Se desarrolla así una amplia e iluminada área social, orientada hacia el jardín posterior, la cual tiene dos niveles y medio de altura.

Los grandes ventanales curvos permiten el registro visual desde el estar familiar en el segundo nivel (primer piso) haciéndolo partícipe también del área verde.


Planos
Realice click en los links para ver los planos.

[1] Planta baja
[2] Planta 1º piso
[3] Planta 2º piso
[4] Corte A-A
[5] Corte B-B
[6] Corte C-C


Imágenes

Realice click sobre las imágenes para ampliarlas.


Ver ficha técnica y datos de contacto al pie de página.

 
Curso Representacion de espacios arquitectonicos con 3D Studio Max
 
Si usted es profesional, este es su espacio para publicar su obra o proyecto (en forma gratuita). Para más información visitar la sección contacto: click aquí.
   
   

Noticias
informes especiales
bienal de arquitectura BA11
bienal de arquitectura BA09
publicaciones

Artículos
notas y artículos de interés
arquitectura legal
diseño de iluminación
software de arquitectura y diseño

Recursos
curso de decoracion (gratis/online)
archivo temático
descargas externas
curso de croquis (gratis/online)

Precios y costos
precios de materiales, indices y
costos m2 de construcción

Proyecto
obras construidas
proyectos para concursos
proyectos de estudiantes
arquitectos destacados
obras destacadas

Diseño
diseño industrial y mobiliario
diseño interior y decoración
Casa FOA 2009
Casa FOA 2010
Casa FOA 2011
Casa FOA 2012
Casa FOA 2013
Casa FOA 2014
Estilo Pilar 2010
Estilo Pilar 2012

Construcción
materiales y tecnologías
novedades de empresas
sector inmobiliario

Agenda
cursos y seminarios
congresos y bienales
charlas y eventos
exposiciones y muestras
concursos

Facultad
becas y subsidios
posgrados y maestrías
donde estudiar

Varios
ofertas laborales arquitectura, diseño y construccion
suscripcion newsletter (gratis)
redes sociales
publicidad

Arquimaster en Facebook
Arquimaster en Twitter
Arquimaster en LinkedIn
Arquimaster en Pinterest