Arquimaster - Medio digital de arquitectura, diseño y construccion Estas visitando la version anterior,
para ver la version actual realiza click aca

 

     
       
 
Climanet - Doble Vidrio Hermetico DVH
Matyser - Materiales y servicios para la construccion
Cursos de arquitectura y diseño de espacios
Anclaflex
Curso Introducción a Revit: Modela tus proyectos arquitectonicos
Bara
Casa MLJ (Cuba Fatima, Pcia. Buenos Aires) - RADOVICHARQS (Guillermo Radovich Arquitecto)
Curso Sketching conceptual para arquitectura y diseño
 

Imágenes
[1] a [12] Vistas Casa MLJ terminada
[13] Esquema del proceso de Adición + Transformación
[14] Vivienda existente

Ficha técnica
Obra: Casa MLJ
Ubicación: Barrio Cuba Fatima, Pcia. Buenos Aires
Proyectista: Guillermo Radovich Arquitecto (RADOVICHARQS)
Colaboradores: Florencia Loubes, Cristina Kuon, Rodrigo Alonso
Proyecto y construcción: 2008/2009
Superficie cubierta nueva: 124 m2
Superficie cubierta existente: 240 m2
Superficie semicubierta: 65 m2
Superficie patio de acceso: 15 m2

Ver planos de la obra

Adición + Transformación

Tomamos este trabajo como una tarea difícil de agregarle a una casa existente que se desarrollaba toda en planta baja, una superficie no muy importante en planta alta cuidando las proporciones y al mismo tiempo lograr una transformación de la imagen.

Como primera medida, después de haber consensuado el programa a adicionar con el cliente, decidimos crear toda una banda envolvente blanca que unifique lo existente con lo nuevo.

Esta banda deja, en una esquina, un vacío que nos permite desarrollar la ampliación en vertical y al mismo tiempo parte de este vacío lo utilizamos como patio de acceso.

Se decidió que la materialización de la ampliación en vertical, debía ser de un material totalmente opuesto al de la banda perimetral blanca.

Se usaron 150 m2 tablas de lapacho 3"x1" de espesor puestas verticalmente sobre alfajías de curupay de 3"x1".

El resto de la construcción se realizó de muros portantes y losa cerámicas con fundaciones de zapatas corridas.

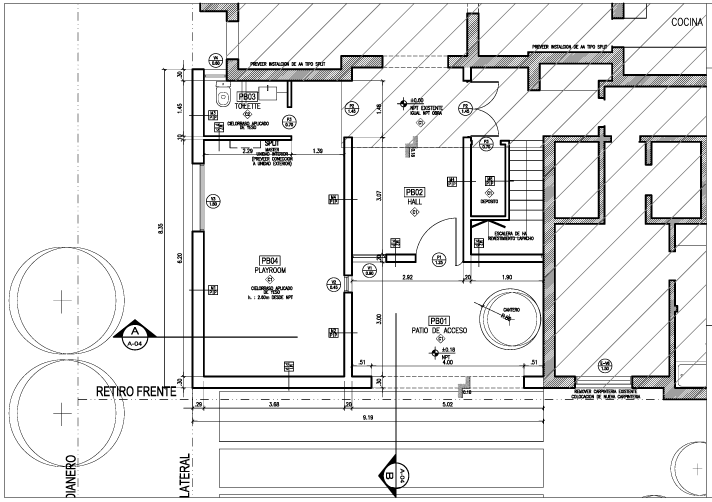
Programa en planta baja: hall acceso, circulación vertical, toilette, playroom.

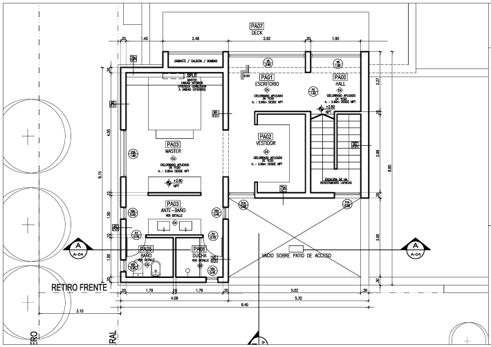
Programa en planta alta: escritorio, vestidor, master suite.


Planos
Realice click en los links para ver los planos.

[1] Planta baja
[2] Planta alta
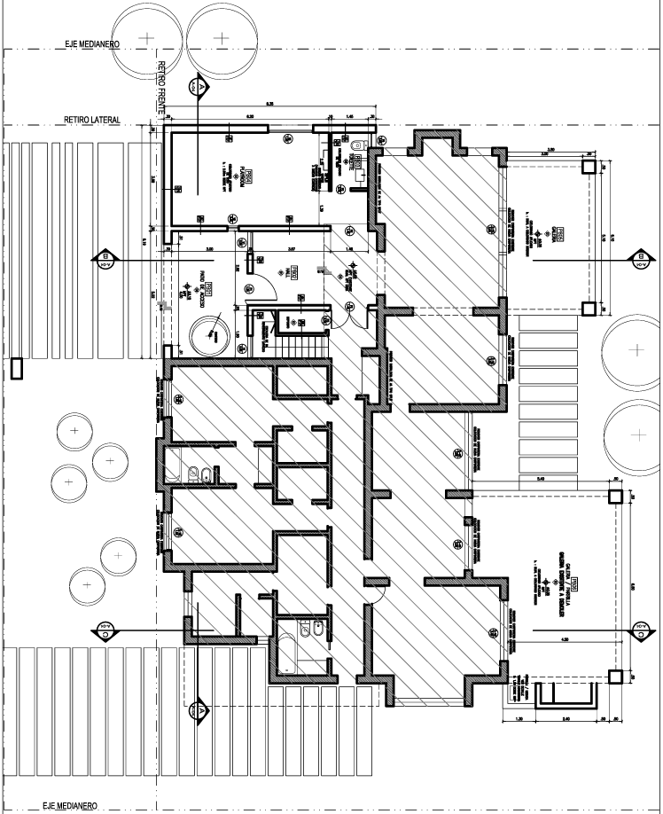
[3] Planta de conjunto
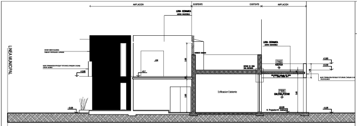
[4] Corte 1
[5] Corte 2
[6] Vista 1
[7] Vista 2


Imágenes

Realice click sobre las imágenes para ampliarlas.

Ver ficha técnica y datos de contacto al pie de página.

 
Curso Técnica de presentación para proyectos arquitectónicos
 
Si usted es profesional, este es su espacio para publicar su obra o proyecto (en forma gratuita). Para más información visitar la sección contacto: click aquí.
   
   

Noticias
informes especiales
bienal de arquitectura BA11
bienal de arquitectura BA09
publicaciones

Artículos
notas y artículos de interés
arquitectura legal
diseño de iluminación
software de arquitectura y diseño

Recursos
curso de decoracion (gratis/online)
archivo temático
descargas externas
curso de croquis (gratis/online)

Precios y costos
precios de materiales, indices y
costos m2 de construcción

Proyecto
obras construidas
proyectos para concursos
proyectos de estudiantes
arquitectos destacados
obras destacadas

Diseño
diseño industrial y mobiliario
diseño interior y decoración
Casa FOA 2009
Casa FOA 2010
Casa FOA 2011
Casa FOA 2012
Casa FOA 2013
Casa FOA 2014
Estilo Pilar 2010
Estilo Pilar 2012

Construcción
materiales y tecnologías
novedades de empresas
sector inmobiliario

Agenda
cursos y seminarios
congresos y bienales
charlas y eventos
exposiciones y muestras
concursos

Facultad
becas y subsidios
posgrados y maestrías
donde estudiar

Varios
ofertas laborales arquitectura, diseño y construccion
suscripcion newsletter (gratis)
redes sociales
publicidad

Arquimaster en Facebook
Arquimaster en Twitter
Arquimaster en LinkedIn
Arquimaster en Pinterest