Arquimaster - Medio digital de arquitectura, diseño y construccion Estas visitando la version anterior,
para ver la version actual realiza click aca

 

     
       
 
Climanet - Doble Vidrio Hermetico DVH
Matyser - Materiales y servicios para la construccion
Cursos de arquitectura y diseño de espacios
Anclaflex
Curso Introducción a Revit: Modela tus proyectos arquitectonicos
Bara
Residencia Capitol (Seattle, EEUU) - Pb Elemental Architecture
Curso Diseño e impresión 3D de maquetas arquitectónicas
 

Ficha técnica
Nombre: Residencia Capitol
Proyectista: Pb Elemental Architecture
Ubicación: Seattle, Washington, EEUU
Año de construcción: 2007
Área construida: 157 m2
Sitio web: http://www.elementalarchitecture.com

Ver planos del proyecto

El proyecto incluye 157 m2 de espacio habitable, garaje para un automóvil, área de acceso y áreas verdes en un pequeño lote centrado en la comunidad urbana Capitol Hill en Seattle.

Los elementos exteriores distinguen las diferentes áreas de la residencia.

Habitaciones extras y una escalera revestida con paneles de aluminio negro, mientras que las áreas principales, nivel común y habitación principal están perfilados con paneles de aluminio blanco, cedro y vidrio.

Grandes ventanales mirando hacia la calle añaden un elemento voyerista, otorgando vistas intimas de la habitación principal y el living.

Vigas expuestas de cedro, pisos de concreto esmaltado y la escalera con soportes de acero.

Triforios (ventanas) ubicados cerca del techo permiten que la luz se mueva continuamente por la casa.

Varios triforios son utilizados en los baños y pasillos disminuyendo el uso de energía, permitiendo mayor uso de la luz natural.


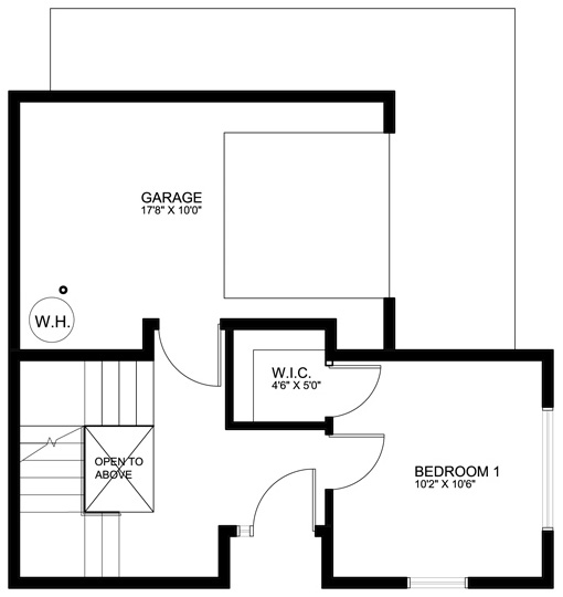
Planos
Realice click en los links para ver los planos.

[1] Planta baja
[2] Planta 1º piso
[3] Planta 2º piso
[4] Vista sur
[5] Vista este
[6] Vista oeste


Imágenes

Realice click sobre las imágenes para ampliarlas.


Acerca de los proyectistas
Fundada en 2004, Pb Elemental Architecture es una práctica interdisciplinaria involucrada en el diseño riguroso e investigación que da paso a la innovación de edificios iconos y ambientes urbanos dinámicos. Su objetivo es crear soluciones ingeniosas ante las limitaciones de diseño, analizando las relaciones entre espacio, programa, forma, presupuesto y materialidad.

En cualquier medio en crecimiento, Pb Elemental Architecture es una práctica dinámica en evolución que responde a las condiciones sociales, culturales, políticas, y tecnológicas de la vida moderna. Con proyectos a nivel mundial, el trabajo de la firma se extiende desde lo residencial, comercial, hoteles y edificios institucionales hasta grandes proyectos de planeamiento urbano y concursos internacionales de arquitectura y diseño. Pb Elemental Architecture fue galardonada en 2007 con la mención de honor de AIA American Institute of Architects y recibió el premio de diseño en 2008 por su contribución a la estructura urbana de Seattle.

Con su oficina principal en Seattle, Washington, Pb Elemental Architecture abrió recientemente oficinas en Hong Kong, Iquique y Lima.

 
Curso Técnica de presentación para proyectos arquitectónicos
 
Si usted es profesional, este es su espacio para publicar su obra o proyecto (en forma gratuita). Para más información visitar la sección contacto: click aquí.
   
   

Noticias
informes especiales
bienal de arquitectura BA11
bienal de arquitectura BA09
publicaciones

Artículos
notas y artículos de interés
arquitectura legal
diseño de iluminación
software de arquitectura y diseño

Recursos
curso de decoracion (gratis/online)
archivo temático
descargas externas
curso de croquis (gratis/online)

Precios y costos
precios de materiales, indices y
costos m2 de construcción

Proyecto
obras construidas
proyectos para concursos
proyectos de estudiantes
arquitectos destacados
obras destacadas

Diseño
diseño industrial y mobiliario
diseño interior y decoración
Casa FOA 2009
Casa FOA 2010
Casa FOA 2011
Casa FOA 2012
Casa FOA 2013
Casa FOA 2014
Estilo Pilar 2010
Estilo Pilar 2012

Construcción
materiales y tecnologías
novedades de empresas
sector inmobiliario

Agenda
cursos y seminarios
congresos y bienales
charlas y eventos
exposiciones y muestras
concursos

Facultad
becas y subsidios
posgrados y maestrías
donde estudiar

Varios
ofertas laborales arquitectura, diseño y construccion
suscripcion newsletter (gratis)
redes sociales
publicidad

Arquimaster en Facebook
Arquimaster en Twitter
Arquimaster en LinkedIn
Arquimaster en Pinterest