Arquimaster - Medio digital de arquitectura, diseño y construccion Estas visitando la version anterior,
para ver la version actual realiza click aca

 

     
       
 
Climanet - Doble Vidrio Hermetico DVH
Matyser - Materiales y servicios para la construccion
Cursos de arquitectura y diseño de espacios
Anclaflex
Curso Introducción a Revit: Modela tus proyectos arquitectonicos
Bara
Vivienda multifamiliar Pescadores (Villa Mercedes, San Luis) - Estudio Pereira y Asociados
Curso Diseño e impresión 3D de maquetas arquitectónicas
 

Ficha técnica
Proyecto: Vivienda multifamiliar Pescadores
Autor: Estudio Pereira y Asociados (arq. Guillermo Horacio Pereira)
Localización: Villa Mercedes, San Luis, Argentina
Año de proyecto: 2006
Superficie cubierta: 280 m2
Programa: 3 departamentos sin usos comunes

Ver planos de la obra

El lote de escasas dimensiones (14 metros de frente y 10 metros de fondo) condicionó nuestro proyecto.

Además del requerimiento de que fueran viviendas individuales con cocheras también separadas.

Las cocheras pueden o no ser parte habitable en las viviendas.

Las mismas se integran fácilmente a través de puertas corredizas plegadizas.

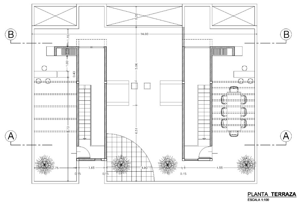
Aprovechamos los voladizos, los encastres entre viviendas, los patios que son únicamente de ventilación e iluminación, y las terrazas accesibles con asadores individuales.

Creemos que la gente quiere, cuando vive en departamento, tener su cochera, su ingreso, su asador, su patio aunque sea mínimo, asi como cuando en planes de viviendas los que allí viven tratan de diferenciarse de los demas, pintando sus casas, cambiando fachadas, etc.

Consideramos que no somos muy buenos para compartir usos en las viviendas, lo que es de todos, no es de nadie.


Planos
Realice click en los links para ver los planos.

[1] Planta baja
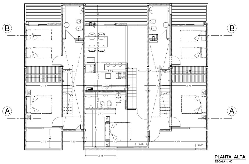
[2] Planta alta
[3] Planta de techos
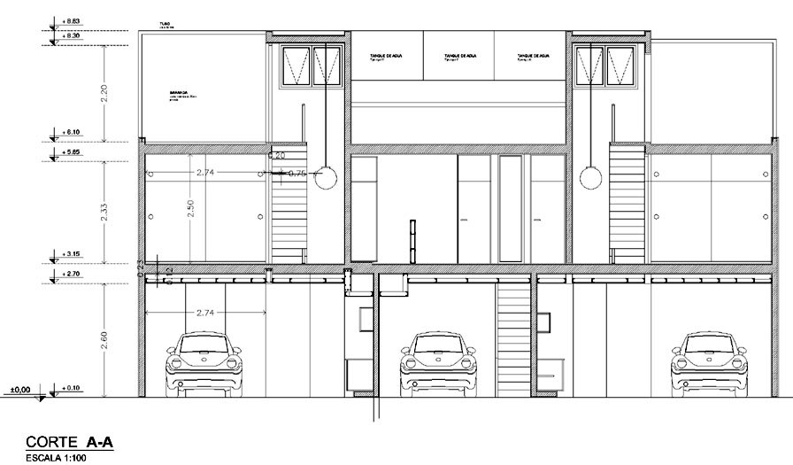
[4] Corte A-A
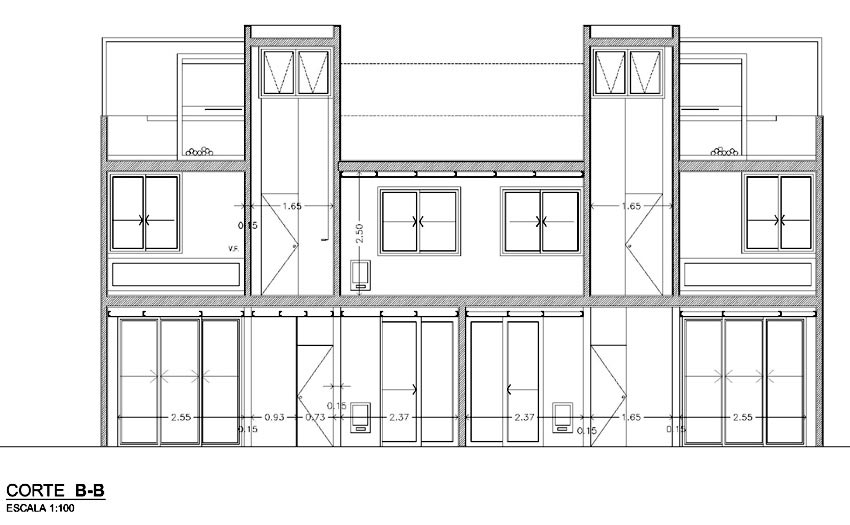
[5] Corte B-B
[6] Fachada


Imágenes
Realice click sobre las imágenes para ampliarlas.

Ver ficha técnica y datos de contacto al pie de página.


Acerca del Estudio Pereira y Asociados
El arq. Guillermo Horacio Pereira es egresado de la Universidad Nacional de Córdoba.

La búsqueda en la arquitectura comienza en el año 1999.

En 2005 se fusiona con 518studio en Córdoba, y ya desde 2006 se integra a la firma Pereira y asociados ubicado en Villa Mercedes, San Luis, Argentina.

 
Curso Técnica de presentación para proyectos arquitectónicos
 
Si usted es profesional, este es su espacio para publicar su obra o proyecto (en forma gratuita). Para más información visitar la sección contacto: click aquí.
   
   

Noticias
informes especiales
bienal de arquitectura BA11
bienal de arquitectura BA09
publicaciones

Artículos
notas y artículos de interés
arquitectura legal
diseño de iluminación
software de arquitectura y diseño

Recursos
curso de decoracion (gratis/online)
archivo temático
descargas externas
curso de croquis (gratis/online)

Precios y costos
precios de materiales, indices y
costos m2 de construcción

Proyecto
obras construidas
proyectos para concursos
proyectos de estudiantes
arquitectos destacados
obras destacadas

Diseño
diseño industrial y mobiliario
diseño interior y decoración
Casa FOA 2009
Casa FOA 2010
Casa FOA 2011
Casa FOA 2012
Casa FOA 2013
Casa FOA 2014
Estilo Pilar 2010
Estilo Pilar 2012

Construcción
materiales y tecnologías
novedades de empresas
sector inmobiliario

Agenda
cursos y seminarios
congresos y bienales
charlas y eventos
exposiciones y muestras
concursos

Facultad
becas y subsidios
posgrados y maestrías
donde estudiar

Varios
ofertas laborales arquitectura, diseño y construccion
suscripcion newsletter (gratis)
redes sociales
publicidad

Arquimaster en Facebook
Arquimaster en Twitter
Arquimaster en LinkedIn
Arquimaster en Pinterest