Arquimaster - Medio digital de arquitectura, diseño y construccion Estas visitando la version anterior,
para ver la version actual realiza click aca

 

     
       
 
Climanet - Doble Vidrio Hermetico DVH
Matyser - Materiales y servicios para la construccion
Cursos de arquitectura y diseño de espacios
Anclaflex
Curso Introducción a Revit: Modela tus proyectos arquitectonicos
Bara
Proyecto Centro Cultural ex Usina Concordia (Entre Ríos, Argentina) - Fernando Ariel Vignoni, Lorena V. Sánchez, Maricarmen Comas
Curso Autodesk Revit para principiantes
 

Ficha técnica
Nombre: Centro Cultural ex Usina Concordia
Premio: 1er. Premio Concurso Nacional de Anteproyectos para la Refuncionalización, Preservación y Puesta en valor del Edificio de Calle Alberdi y San Juan, ex Usina en Concordia, Entre Ríos
Autores: arquitectos Fernando Ariel Vignoni, Lorena V. Sánchez, Maricarmen Comas
Asesora de diseño del paisaje: María Luz de Irigoyen
Lugar: Concordia, Entre, Ríos, Argentina
Fecha: 2009

Ver planos del proyecto

El proyecto obtuvo el 1er. Premio en el Concurso Centro Cultural ex Usina Concordia.

El viernes 18 de diciembre de 2009 se dieron a conocer en la ciudad de Concordia, los ganadores del Concurso Nacional de Anteproyectos para la Refuncionalización, Preservación y Puesta en valor del Edificio de Calle Alberdi y San Juan, ex Usina en Concordia, Entre Ríos.

El equipo está conformado por los arquitectos Fernando Ariel Vignoni, Lorena V. Sánchez, Maricarmen Comas y la asesora en diseño del paisaje María Luz de Irigoyen.

¿Cual es la intervención que da respuesta a uno de los aspectos más convocantes del llamado a concurso, la puesta en valor de un edificio con riqueza histórica y sentimental para el país, para los habitantes de la ciudad de Concordia?

Propuesta urbana
1- Establecer un diálogo coherente y respetuoso con el entorno, de marcado carácter residencial y escala barrial.

2- Generar espacio urbano público.

3- Reciclar el viejo edificio de la Usina potenciando su valor arquitectónico como símbolo de una época.

Propuesta arquitectónica
1- Recomponer el tejido en la esquina de Alberdi y Rivadavia conformando una sola pieza arquitectónica entre la usina y las oficinas administrativas.

2- Crear el pasaje cultural que surge de la demolición de los edificios existentes en el lugar. Utilizarlo para el desarrollo en el subsuelo de la Biblioteca. Continuar el solado de la vereda en la calle Alberdi como elemento integrador de las partes pasaje+vereda+calle.

3- Reciclaje de la usina para que funcione como salón de usos múltiples, respetando su volumetría original y sólo operando en el sector de acceso desde la calle Alberdi creando una conexión entre el pasaje y la vereda.

Desarrollo de la propuesta
Los tres programas a desarrollar debían contribuir a destacar al edificio de la usina como eje de la propuesta. Su volumetría constructiva original y su carga sentimental contribuían a que por su sóla presencia en el entorno tomara importancia.

Por lo tanto se opta por intervenir en la conformación del nuevo edificio respetando la espacialidad de la usina como espacio ideal para el desarrollo del programa de salón de usos múltiples-museo, armar el nuevo edificio de oficinas comerciales en relación a los edificios existentes de la esquina conformando una pieza arquitectónica con la usina, pero armando un marco neutro en contraste con el viejo edificio y en el espacio liberado por la demolición de los edificios existentes, armar la biblioteca en el subsuelo y dejar el pasaje para usos exteriores del salón principal.

El punto centrífugo de conexión entre estos 3 grandes programas (SUM-Biblioteca-Oficinas Comerciales) debía estar entonces dentro del Edificio a Refuncionalizar.

Se crea un Hall distribuidor y Foyer con Acceso desde Calle Alberdi (reforzando no sólo la Fachada que da sobre esta calle y con una extensión de casi 90 metros de longitud) sino también un recorrido urbano que une la Plaza principal de Concordia 25 de Mayo con otros puntos destacados de la Ciudad.

Programas/edificio

Salón de usos múltiples/museo

- Puesta en valor y reciclaje de la piel exterior e interior recomponiendo los sectores dañados o modificados en el transcurso del tiempo.

- Intervención en los vanos de las fachadas para otorgar mayor conexión visual y espacial entre el pasaje y el edificio, así como entre el edificio (sector museo) y la calle Alberdi, creando un escaparate de exhibición de los objetos desde el exterior.

- Intervención en el sector hall de acceso liberando por completo la fachada para la mejor relación entre el interior y el exterior del edificio desde la calle Alberdi, así como también del lado del pasaje.

- Tratamiento acústico y lumínico del recinto a través de un sistema de piel de paneles acústicos que permitan el cerramiento total de la sala o su apertura según el uso propuesto.

- Creación del museo en la nave del edificio más cercana a la calle Alberdi. Se exhiben los objetos para ser vistos tanto en una recorrida por el edificio, como también en los eventos a desarrollar en el salón principal. Su futura ubicación tendrá relación visual con el exterior desde la vereda. Se ubica el cartel de Luz y Fuerza en el sector de hall de acceso.

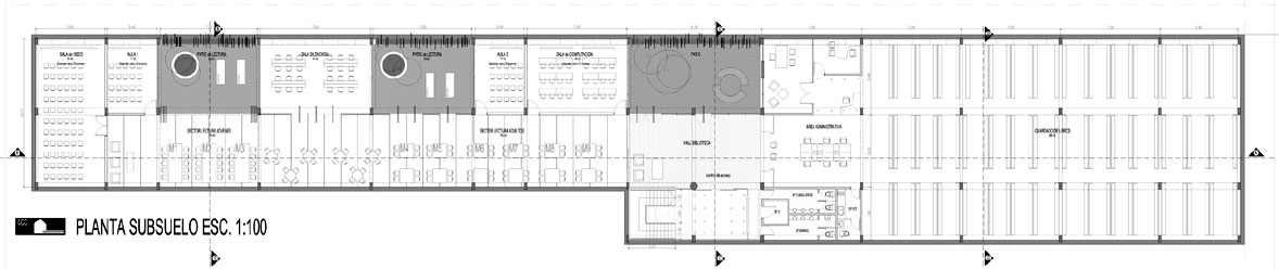
Biblioteca/pasaje cultural
- El funcionamiento de la biblioteca exigía disponer un programa de salas de lectura y otro de depósito de libros en relación con el edificio principal La Usina. Como estrategia se evitó separar las partes del programa entonces se pensó en el desarrollo del mismo en una sola planta, lo que mejoraba el funcionamiento evitando circulaciones excesivas y la demora de tiempo en la entrega de la información.

Las salas de lectura debían tener un control de la iluminación natural y también debían armar un espacio agradable y controlado. A su vez el depósito de libros exigía ciertas condiciones de control de temperatura e iluminación especial. Se optó por ubicar la biblioteca debajo del pasaje, ya que nos permitía tener todo el programa en una misma planta, con iluminación controlada por patios y por sobre todas las cosas no generar un volumen de competencia con el edificio de la Usina.

Los patios son pulmones verdes (árboles y arbustos) que contribuyen al bienestar y paisaje del edificio. Se genera en el hall de acceso al centro cultural un núcleo de circulación vertical que permite acceder al sector subsuelo Biblioteca con control de acceso al recinto.

- El pasaje se jerarquiza con la aparición de diferentes situaciones espaciales que visualmente conectan los patios de la biblioteca. Se crean sectores de estar entre patios y se libera el resto como solado de circulación. Posee un acceso controlado en la calle San Juan oficiando de acceso peatonal a nivel para el salón de usos múltiples y la biblioteca. En la otra esquina por la calle Rivadavia se desarrolla el acceso vehicular y estacionamiento para vehiculos y camiones.

- Estructura: Submuración, losas y vigas de hormigón armado in situ.

- Cerramiento patios: Carpinterías de aluminio con vidrios DVH. Apertura controlada.

Oficinas comerciales
- Se desarrolla un edificio de planta baja libre y dos pisos con la totalidad del programa destinado a oficinas comerciales. La ubicación responde a la conformación de la pieza arquitectónica de esquina en el sector de los edificios desarticulados.

- Siendo un programa de servicio a la comunidad se preveé un acceso independiente por la calle Rivadavia, coindiciendo con el acceso vehicular controlado por seguridad. Se crea entonces la flexibilidad de uso con relación al centro cultural, permitiendo horarios diferentes para las diferentes actividades.

- Una doble piel conforma la envolvente del edificio. Una primera piel de vidrio con control de apertura rodea el volumen del edificio. La segunda piel, estructura metálica con malla microperfodada, actúa como medio para envolver la esquina y penetrar en el edificio reciclado jerarquizando el acceso y creando un diálogo entre lo nuevo y lo viejo. Recompone el tejido sobre los edificios que no se pueden intervenir por dentro y genera un fondo neutro para destacar la usina en el entorno.

- En el sector hall de acceso penetra la piel generando el acceso principal al centro cultural por la calle Alberdi. Esta misma piel arma la fachada de acceso al salón principal desde hall. También la intersección de los tres programas desarrolla un núcleo vertical de circulación conectando la biblioteca en planta subsuelo y las oficinas en las plantas 1º y 2º, creando una situación espacial de relaciones visuales en diferentes alturas.

- La estructura se resuelve con un sistema de losas sin vigas que descarga en un sistema de columnas perimetrales y núcleo de circulación vertical.

- Los envolventes se materializarán con doble piel de vidrio más paneles de chapa microperforada. Control de la iluminación en las áreas de oficinas.

Espacio publico/vereda
- Se ensancha la vereda ocupando el sector de la calle Alberdi frente a la fachada más larga del edificio.

- Esta intervención arma el marco necesario junto con la intervención paisajística y de iluminación para la implantación del nuevo centro cultural, flexibilizando su uso durante los fines de semana como explanada de actividades al aire libre en relación al edificio.

Etapas
Cada programa se puede realizar en forma independiente del otro en las etapas que se deseen desarrollar.

Accesos y relaciones
Acceso principal al Centro Cultural por la calle Alberdi. Acceso secundario a nivel al Centro Cultural por el pasaje calle San Juan. Acceso secundario personal y oficinas administrativas calle Rivadavia. Acceso vehicular a playa de estacionamiento calle Rivadavia.


Planos
Realice click en los links para ver los planos.

[1] Planta subsuelo
[2] Planta baja
[3] Planta área comercial 1
[4] Planta área comercial 2
[5] Planta de techos
[6] Corte perspectivado
[7] Corte longitudinal
[8] Corte transversal AA
[9] Corte transversal BB
[10] Vista Pasaje Cultural
[11] Vista calle San Juan
[12] Vista calle Alberdi
[13] Vista calle Rivadavia
[14] Foto aérea
[15] Esquemas


Imágenes

Realice click sobre las imágenes para ampliarlas.

 
Curso Técnica de presentación para proyectos arquitectónicos
 
 
Si usted es profesional, este es su espacio para publicar su obra o proyecto (en forma gratuita). Para más información visitar la sección contacto: click aquí.
   
   

Noticias
informes especiales
bienal de arquitectura BA11
bienal de arquitectura BA09
publicaciones

Artículos
notas y artículos de interés
arquitectura legal
diseño de iluminación
software de arquitectura y diseño

Recursos
curso de decoracion (gratis/online)
archivo temático
descargas externas
curso de croquis (gratis/online)

Precios y costos
precios de materiales, indices y
costos m2 de construcción

Proyecto
obras construidas
proyectos para concursos
proyectos de estudiantes
arquitectos destacados
obras destacadas

Diseño
diseño industrial y mobiliario
diseño interior y decoración
Casa FOA 2009
Casa FOA 2010
Casa FOA 2011
Casa FOA 2012
Casa FOA 2013
Casa FOA 2014
Estilo Pilar 2010
Estilo Pilar 2012

Construcción
materiales y tecnologías
novedades de empresas
sector inmobiliario

Agenda
cursos y seminarios
congresos y bienales
charlas y eventos
exposiciones y muestras
concursos

Facultad
becas y subsidios
posgrados y maestrías
donde estudiar

Varios
ofertas laborales arquitectura, diseño y construccion
suscripcion newsletter (gratis)
redes sociales
publicidad

Arquimaster en Facebook
Arquimaster en Twitter
Arquimaster en LinkedIn
Arquimaster en Pinterest