Arquimaster - Medio digital de arquitectura, diseño y construccion Estas visitando la version anterior,
para ver la version actual realiza click aca

 

     
       
 
Climanet - Doble Vidrio Hermetico DVH
Matyser - Materiales y servicios para la construccion
Cursos de arquitectura y diseño de espacios
Anclaflex
Curso Introducción a Revit: Modela tus proyectos arquitectonicos
Bara
Vivienda en Somosaguas (Madrid, España) - A-cero (Joaquín Torres architects)
Curso Autodesk Revit para principiantes
 

Ficha técnica
Obra: Vivienda en Somosaguas
Ubicación: Madrid, España
Proyectista: A-cero (Joaquín Torres architects)
Sitio web: http://www.a-cero.com

Ver planos de la obra

El estudio de arquitectura y urbanismo A-cero, dirigido por el arquitecto Joaquín Torres y su socio Rafael Llamazares, presenta una nueva vivienda, construida a las afueras de Madrid, que resume la evolución del lenguaje del estudio así como sus desarrollos técnicos.

Este edificio sintetiza el camino emprendido por el estudio desde su expansión internacional, con notorios proyectos en lugares como Dubai y la República Dominicana, integrando una mayor riqueza espacial y libertad formal que subraya la íntima relación que existe entre la línea de A-cero y las formas de ciertas corrientes del arte contemporáneo.

La casa se entiende como una gran escultura, para su propietario, gran amante y conocedor del arte moderno, se concibe la vivienda como una pieza escultórica de color gris sobre un pedestal blanco (el prisma).

La escultura de formas suaves y elegantes que representa la gran pieza gris aprovecha la pendiente existente para integrarse perfectamente en el terreno y aprovechar las vistas que la parcela ofrece del paisaje exterior, espacios verdes, fauna y los lagos.

De ahí y por la importancia que se otorga al agua, las cubiertas se inundan para conseguir una continuidad con el elemento común del agua.

Comienza la visión en las cubiertas, pasando por la piscina exterior y terminando en el lago.

Destaca el profundo estudio de la luz y orientación de las estancias de día para un mejor aprovechamiento energético, regulando la temperatura y creando circulaciones de aire que refrescan las salas.

De volúmenes rotundos y líneas curvas elegantes, se repite este esquema en el interior de la vivienda y el color marca y separa estancias: en la planta alta y baja las paredes son de color gris (formaría parte de la escultura) y en la planta sótano son de color blanco (formaría parte del pedestal).

La calidad del diseño se logra a través de la elección de materiales: hormigón en fachada y suelos cerámicos que aportan gran resistencia y durabilidad. El suelo elegido, gres porcelánico de color blanco y de gran formato, permite ofrecernos una sensación de continuidad, característica que como apreciamos se repite a lo largo del proyecto.

Desde la primera impresión, la vivienda presenta claramente sus intenciones, formas arriesgadas y estilizadas que, gracias a un sutil manejo de las curvas, la emparentan armónicamente con su contexto natural sin renunciar a un marcado carácter moderno.

Dominan los volúmenes horizontales, que se van superponiendo en capas, a partir de un sótano parcialmente visible, formando estratos que aparentan emerger naturalmente del terreno.

Esta impresión se ve subrayada por el tratamiento de las fachadas, donde se han utilizado muros de hormigón coloreados en un tono oscuro y texturizados con geometrías regulares que recuerdan formaciones pétreas.

El manejo de un lenguaje capaz de integrar características del entorno natural dentro de un lenguaje formal contemporáneo, es una de las características de los proyectos recientes del estudio, donde se nota claramente la influencia de artistas como David Nash, y, en general de la escultura minimalista y el land art.

El interior de la vivienda acoge un programa variado, que es aprovechado para generar una mayor riqueza espacial lograda gracias a diferencias de niveles y alturas y a la volumetría particular algunas de las estancias.

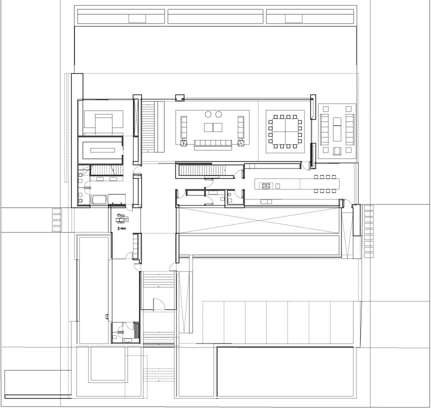
En la planta baja, se destaca el vestíbulo principal, situado bajo una cubierta curva que añade un punto de grandeza al espacio, desde donde se reparten todas las circulaciones de la vivienda, dando acceso al salón, comedor, dormitorio principal, vestidor y cuarto de baño anexo, gimnasio, piscina interior, cocina y office.

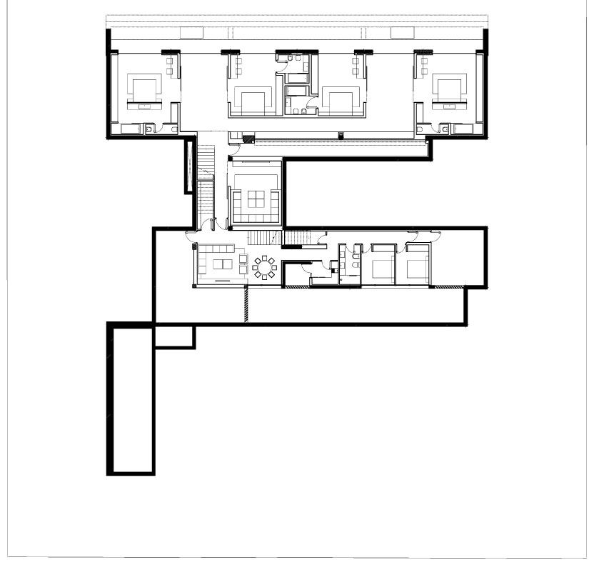
En la planta alta se ubica una zona de estar de forma alargada y cubierta curvilínea, que disfruta de una excelente luz natural y vistas sobre el entorno.

La planta sótano está dedicada al ocio y la salud, y acoge los siguientes espacios: txoko, cuarto de juegos, vestuarios de la piscina exterior, chill out, cuarto de masajes, sala de cine, bodega, gimnasio, trasteros así como la zona de servicio y las instalaciones de toda la vivienda.

Siguiendo con la línea de otros proyectos del estudio, en el interior los espacios se liberan de columnas y otros elementos que puedan interrumpir su continuidad, dominando los colores claros y las formas puras.

En los suelos se utiliza gres porcelanico techlan blanco en gran formato y los baños van revestidos en chapa de aluminio lacado de color blanco.

Las ventanas se tratan como paños completos de cristal, creando una mayor relación entre el interior y el exterior de la vivienda, donde las terrazas se convierten en prolongaciones naturales del espacio.

Destaca el amplio ventanal del salón que al ocultarse, permite que esta estancia quede integrada en la terraza.

Nuevamente continuidad, relación exterior-interior.


Planos
Realice click en los links para ver los planos.

[1] Planta baja
[2] Planta subsuelo
[3] Planta techos
[4] Sección
[5] Vista noreste
[6] Vista noroeste


Imágenes

Realice click sobre las imágenes para ampliarlas.

Ver ficha técnica y datos de contacto al pie de página.


Acerca de los proyectistas
A-cero, estudio de arquitectura y urbanismo, es una sociedad creada en 1996 cuya actividad se centra en el desarrollo integral de proyectos de arquitectura.

El equipo humano, liderado por Joaquín Torres, ha ido creciendo de forma proporcional a la actividad desarrollada.

Disponemos de instalaciones en Madrid, A Coruña, Dubai y próximamente en República Dominicana.

En los últimos tiempos la demanda de nuestros clientes nos ha hecho ampliar el campo de actuación hasta la gestión de obra, realizando entregas llave en mano de trabajos previamente diseñados por nosotros.

En nuestra trayectoria profesional hemos mantenido colaboraciones con empresas constructoras y promotoras presentándonos a concursos o realizando labores de consultoría con otros estudios de arquitectura e ingeniería desarrollando conjuntamente proyectos, y con bufetes de abogados, colaborando en temas de gestión y planeamiento urbanístico.

Nuestro método de trabajo parte del estudio profundo del programa de necesidades de nuestro cliente.

Los materiales y los detalles se desarrollan simultáneamente a nuestra capacidad de imaginar, proyectar y persuadir.

En este proceso la arquitectura aparece sola.

 
Curso Técnica de presentación para proyectos arquitectónicos
 
Si usted es profesional, este es su espacio para publicar su obra o proyecto (en forma gratuita). Para más información visitar la sección contacto: click aquí.
   
   

Noticias
informes especiales
bienal de arquitectura BA11
bienal de arquitectura BA09
publicaciones

Artículos
notas y artículos de interés
arquitectura legal
diseño de iluminación
software de arquitectura y diseño

Recursos
curso de decoracion (gratis/online)
archivo temático
descargas externas
curso de croquis (gratis/online)

Precios y costos
precios de materiales, indices y
costos m2 de construcción

Proyecto
obras construidas
proyectos para concursos
proyectos de estudiantes
arquitectos destacados
obras destacadas

Diseño
diseño industrial y mobiliario
diseño interior y decoración
Casa FOA 2009
Casa FOA 2010
Casa FOA 2011
Casa FOA 2012
Casa FOA 2013
Casa FOA 2014
Estilo Pilar 2010
Estilo Pilar 2012

Construcción
materiales y tecnologías
novedades de empresas
sector inmobiliario

Agenda
cursos y seminarios
congresos y bienales
charlas y eventos
exposiciones y muestras
concursos

Facultad
becas y subsidios
posgrados y maestrías
donde estudiar

Varios
ofertas laborales arquitectura, diseño y construccion
suscripcion newsletter (gratis)
redes sociales
publicidad

Arquimaster en Facebook
Arquimaster en Twitter
Arquimaster en LinkedIn
Arquimaster en Pinterest