Arquimaster - Medio digital de arquitectura, diseño y construccion Estas visitando la version anterior,
para ver la version actual realiza click aca

 

     
       
 
Climanet - Doble Vidrio Hermetico DVH
Matyser - Materiales y servicios para la construccion
Cursos de arquitectura y diseño de espacios
Anclaflex
Curso Introducción a Revit: Modela tus proyectos arquitectonicos
Bara
Edificio Amsterdam 315 (Col. Condesa, Ciudad de México, México) - JSª
Curso Autodesk Revit para principiantes
 

Ficha técnica
Obra: Edificio Amsterdam 315
Autor: JSª
Arquitectura: JSª
Javier Sánchez
Colaboradores: Juan Carral, Julián Martínez, Julia Cerruti, Leticia Nuñez, Angelica Soberanes
Localización: Amsterdam 315, Col. Condesa, Ciudad de México
Area: 2894 m2
Tipología: vivienda urbana, 17 departamentos (130 m2 promedio)
Fecha de proyecto: 2005
Construcción: Waldo Higuera, Diego Yturbe, José Antonio Hernández
Fotógrafo: Luis Gordoa
Sitio web: http://www.jsa.com.mx

Ver planos de la obra

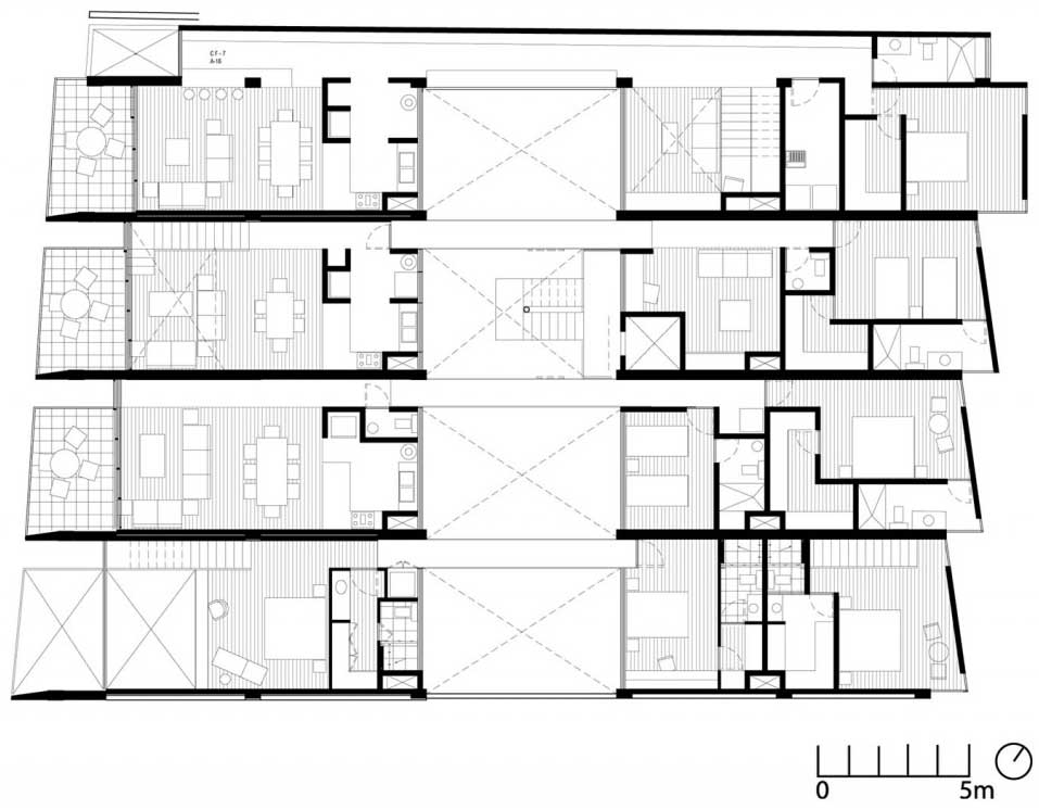
Los departamentos cuentan con el área pública en el bloque que da a la Avenida Amsterdam y el área privada en el bloque que da al patio interior y trasero de la propiedad.

Ambas áreas están comunicadas por un puente vidriado que hace las veces de acceso y unión.

En algunos casos se accede a la planta superior de los departamentos y al bajar a la planta inferior está el puente que comunica ambos espacios, y en otras ocasiones funciona al revés.

Con esto se logra que un sólo sistema vertical de elevador y escaleras resuelva los accesos a todos los departamentos.

Por otro lado, la disposición intermitente de los puentes en el patio interior genera un espacio desordenado que es resultado de la diversidad de tipologías que se logran a partir del sistema planteado, los departamentos fueron hechos "a medida" conforme se iban vendiendo.

El proyecto ha recibido los siguientes reconocimientos:

- Medalla de Plata en la IX Bienal de Arquitectura Mexicana (2006).

- Mención en la V Bienal Iberoamericana de Arquitectura y Urbanismo (2006).

- Primer premio Obras Cemex en la categoría diseño de conjunto habitacional, niveles medio y alto (2006).

- International Architecture Awards for the best new global design organizado por el Chicago Athenaeum: Museum of Architecture and Design and the Metropolitan Arts Press Ltd. (2007).


Planos
Realice click en los links para ver los planos.

[1] Planta inferior dpto.
[2] Planta superior dpto.
[3] Corte longitudinal


Imágenes
Realice click sobre las imágenes para ampliarlas.

Ver ficha técnica y datos de contacto al pie de página.

 
Curso Técnica de presentación para proyectos arquitectónicos
 
Si usted es profesional, este es su espacio para publicar su obra o proyecto (en forma gratuita). Para más información visitar la sección contacto: click aquí.
   
   

Noticias
informes especiales
bienal de arquitectura BA11
bienal de arquitectura BA09
publicaciones

Artículos
notas y artículos de interés
arquitectura legal
diseño de iluminación
software de arquitectura y diseño

Recursos
curso de decoracion (gratis/online)
archivo temático
descargas externas
curso de croquis (gratis/online)

Precios y costos
precios de materiales, indices y
costos m2 de construcción

Proyecto
obras construidas
proyectos para concursos
proyectos de estudiantes
arquitectos destacados
obras destacadas

Diseño
diseño industrial y mobiliario
diseño interior y decoración
Casa FOA 2009
Casa FOA 2010
Casa FOA 2011
Casa FOA 2012
Casa FOA 2013
Casa FOA 2014
Estilo Pilar 2010
Estilo Pilar 2012

Construcción
materiales y tecnologías
novedades de empresas
sector inmobiliario

Agenda
cursos y seminarios
congresos y bienales
charlas y eventos
exposiciones y muestras
concursos

Facultad
becas y subsidios
posgrados y maestrías
donde estudiar

Varios
ofertas laborales arquitectura, diseño y construccion
suscripcion newsletter (gratis)
redes sociales
publicidad

Arquimaster en Facebook
Arquimaster en Twitter
Arquimaster en LinkedIn
Arquimaster en Pinterest