Arquimaster - Medio digital de arquitectura, diseño y construccion Estas visitando la version anterior,
para ver la version actual realiza click aca

 

     
       
 
Climanet - Doble Vidrio Hermetico DVH
Matyser - Materiales y servicios para la construccion
Cursos de arquitectura y diseño de espacios
Anclaflex
Curso Introducción a Revit: Modela tus proyectos arquitectonicos
Bara
Vivienda unifamiliar en Sandiche (Asturias, España) - OmasC arquitectos
Curso Dibujo arquitectónico: de la imaginación a la conceptualización
 

Ficha técnica
Obra: Vivienda unifamiliar
Proyectistas: OmasC arquitectos (Iria Comoxo y David Olmos)
Ubicación: Candamo, Asturias, España
Arquitecto Técnico: Juan Heredia Álvarez.
Constructor: Ramón Iglesias Sánchez S.L.
Iluminación: Metalux S.L.
Mobiliario: Módulor Galería S.L.
Fecha: 2009
Fotografía: Mariano Casas

Ver planos de la obra

En el núcleo rural de Sandiche, Asturias, próximo al río Nalón, con magníficas vistas, se encuentra esta vivienda de fin de semana.

Volumétricamente se resuelve en una única planta, respondiendo a la escala rural del emplazamiento.

Implantada lateralmente, se aparta de la calle lo suficiente para permitir el estacionamiento junto a la casa y el recorrido peatonal se realiza a través de unas losas de piedra apoyadas en el terreno.

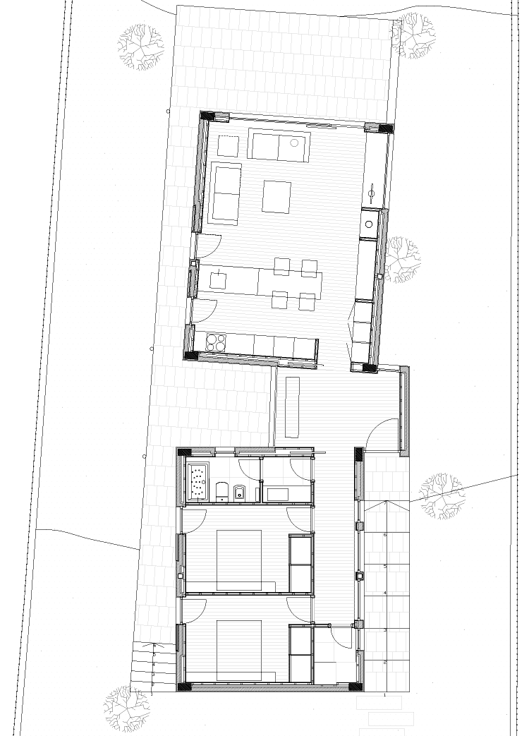
Tres piezas articuladas entre sí organizan el espacio y marcan los usos: zona de día y zona de noche, ambas unidas por una pieza central que se disloca ligeramente para marcar el punto de acceso y se convierte en bisagra de las otras dos que giran levemente buscando la mejor orientación.

Luz natural, soleamiento correcto y contacto con la naturaleza.

Así el dimensionamiento de los vanos es capaz de asegurar diferentes situaciones.

El resultado es un vano-puerta que abre todas las estancias (comunes y privadas) de la casa al exterior, subvirtiendo la lógica de que la ventana no es un elemento de paso.

La cubierta, inclinada a un agua, se prolonga en una de las fachadas laterales, en la parte Sur, conquistando un espacio exterior cubierto vinculado directamente con la zona de día.


Planos
Realice click en los links para ver los planos.

[1] Planta del proyecto


Imágenes

Realice click sobre las imágenes para ampliarlas.

Ver ficha técnica y datos de contacto al pie de página.


Acerca de los proyectistas
OmasC arquitectos es un despacho de arquitectura fundado por David Olmos e Iria Comoxo en el año 2008, arquitectos formados en la Escuela de Arquitectura de la Universidad de La Coruña, una estructura abierta que desarrolla proyectos de arquitectura, urbanismo y diseño de interiores siempre buscando la calidad a través de una minuciosa elaboración de los mismos y la colaboración activa entre clientes y especialistas.

El proceso constructivo se considera parte inseparable de su actividad, desde la concepción inicial del edificio hasta la dirección y ejecución de las obras, y en el que el control de plazos y precios es una cuestión prioritaria. La elaboración del proyecto se refuerza mediante la elaboración de maquetas y diseño asistido.

Se complementan con una red de colaboradores externos para el desarrollo de aspectos técnicos como el cálculo de estructuras y de instalaciones, mediciones y presupuestos, diseño de iluminación, arqueología, estudios de Impacto Ambiental y estudios de geología y geotecnia, para garantizar la excelencia de los proyectos realizados por el estudio.

 
Curso Técnica de presentación para proyectos arquitectónicos
 
Si usted es profesional, este es su espacio para publicar su obra o proyecto (en forma gratuita). Para más información visitar la sección contacto: click aquí.
   
   

Noticias
informes especiales
bienal de arquitectura BA11
bienal de arquitectura BA09
publicaciones

Artículos
notas y artículos de interés
arquitectura legal
diseño de iluminación
software de arquitectura y diseño

Recursos
curso de decoracion (gratis/online)
archivo temático
descargas externas
curso de croquis (gratis/online)

Precios y costos
precios de materiales, indices y
costos m2 de construcción

Proyecto
obras construidas
proyectos para concursos
proyectos de estudiantes
arquitectos destacados
obras destacadas

Diseño
diseño industrial y mobiliario
diseño interior y decoración
Casa FOA 2009
Casa FOA 2010
Casa FOA 2011
Casa FOA 2012
Casa FOA 2013
Casa FOA 2014
Estilo Pilar 2010
Estilo Pilar 2012

Construcción
materiales y tecnologías
novedades de empresas
sector inmobiliario

Agenda
cursos y seminarios
congresos y bienales
charlas y eventos
exposiciones y muestras
concursos

Facultad
becas y subsidios
posgrados y maestrías
donde estudiar

Varios
ofertas laborales arquitectura, diseño y construccion
suscripcion newsletter (gratis)
redes sociales
publicidad

Arquimaster en Facebook
Arquimaster en Twitter
Arquimaster en LinkedIn
Arquimaster en Pinterest