Arquimaster - Medio digital de arquitectura, diseño y construccion Estas visitando la version anterior,
para ver la version actual realiza click aca

 

     
       
 
Climanet - Doble Vidrio Hermetico DVH
Matyser - Materiales y servicios para la construccion
Cursos de arquitectura y diseño de espacios
Anclaflex
Curso Introducción a Revit: Modela tus proyectos arquitectonicos
Bara
Vivienda 19 en La Finca (Pozuelo de Alarcón, Madrid, España) - A-cero (Joaquín Torres architects)
Curso Dibujo arquitectónico: de la imaginación a la conceptualización
 

Ficha técnica
Obra: Vivienda unifamiliar en urbanización La Finca
Ubicación: Pozuelo de Alarcón, Madrid, España
Proyectista: A-cero (Joaquín Torres architects)
Superficie construida: 1600 m2
Superficie del terreno: 4000 m2
Sitio web: http://www.a-cero.com

Ver planos de la obra

Vivienda unifamiliar diseñada por A-cero, uno de los máximos exponentes del minimalismo residencial que el estudio de arquitectura, dirigido por Joaquín Torres, ha creado.

Volúmenes rotundos, líneas rectas y sencillez de formas configuran la estructura de esta nueva casa, ubicada en la madrileña urbanización La Finca (Pozuelo de Alarcón).

Se trata de una de una de las cien viviendas que se encuentran ya edificadas en este exclusivo complejo residencial formado por grandes espacios verdes, lagos y escultóricas construcciones residenciales, diseñadas todas por A-cero.

La fachada de la vivienda consta de grandes ventanales que, junto a la claridad del mármol travertino del que está hecha, aportan gran luminosidad al conjunto.

Tiene una superficie construida de 1.600 metros cuadrados y se desarrolla en tres plantas (sótano, planta baja y alta) adaptándose a la pendiente del terreno en que se alza.

En el piso inferior se ha dispuesto el garaje y los espacios de servicio, mientras que en la planta baja se hallan los espacios más públicos (salón, comedor, cuarto de estar, etc.) y en la alta los dormitorios y habitaciones que requieren más intimidad.

La vivienda se encuentra en una parcela inclinada de más de 4.000 metros cuadrados, donde A-cero ha diseñado también una espectacular piscina de casi 80 metros cuadrados, cuyas geométricas formas armonizan con la arquitectura limpia que caracteriza este proyecto.


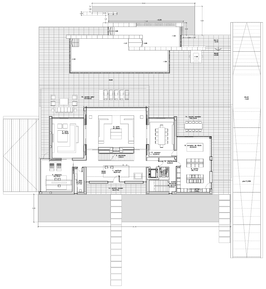
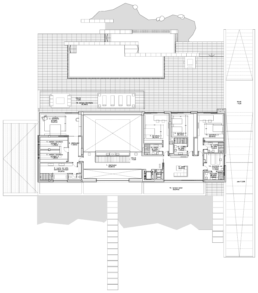
Planos
Realice click en los links para ver los planos.

[1] Planta baja
[2] Planta alta


Imágenes

Realice click sobre las imágenes para ampliarlas.

Ver ficha técnica y datos de contacto al pie de página.


Acerca de los proyectistas
A-cero, estudio de arquitectura y urbanismo, es una sociedad creada en 1996 cuya actividad se centra en el desarrollo integral de proyectos de arquitectura.

El equipo humano, liderado por Joaquín Torres, ha ido creciendo de forma proporcional a la actividad desarrollada.

Disponemos de instalaciones en Madrid, A Coruña, Dubai y próximamente en República Dominicana.

En los últimos tiempos la demanda de nuestros clientes nos ha hecho ampliar el campo de actuación hasta la gestión de obra, realizando entregas llave en mano de trabajos previamente diseñados por nosotros.

En nuestra trayectoria profesional hemos mantenido colaboraciones con empresas constructoras y promotoras presentándonos a concursos o realizando labores de consultoría con otros estudios de arquitectura e ingeniería desarrollando conjuntamente proyectos, y con bufetes de abogados, colaborando en temas de gestión y planeamiento urbanístico.

Nuestro método de trabajo parte del estudio profundo del programa de necesidades de nuestro cliente.

Los materiales y los detalles se desarrollan simultáneamente a nuestra capacidad de imaginar, proyectar y persuadir.

En este proceso la arquitectura aparece sola.

 
Curso Técnica de presentación para proyectos arquitectónicos
 
Si usted es profesional, este es su espacio para publicar su obra o proyecto (en forma gratuita). Para más información visitar la sección contacto: click aquí.
   
   

Noticias
informes especiales
bienal de arquitectura BA11
bienal de arquitectura BA09
publicaciones

Artículos
notas y artículos de interés
arquitectura legal
diseño de iluminación
software de arquitectura y diseño

Recursos
curso de decoracion (gratis/online)
archivo temático
descargas externas
curso de croquis (gratis/online)

Precios y costos
precios de materiales, indices y
costos m2 de construcción

Proyecto
obras construidas
proyectos para concursos
proyectos de estudiantes
arquitectos destacados
obras destacadas

Diseño
diseño industrial y mobiliario
diseño interior y decoración
Casa FOA 2009
Casa FOA 2010
Casa FOA 2011
Casa FOA 2012
Casa FOA 2013
Casa FOA 2014
Estilo Pilar 2010
Estilo Pilar 2012

Construcción
materiales y tecnologías
novedades de empresas
sector inmobiliario

Agenda
cursos y seminarios
congresos y bienales
charlas y eventos
exposiciones y muestras
concursos

Facultad
becas y subsidios
posgrados y maestrías
donde estudiar

Varios
ofertas laborales arquitectura, diseño y construccion
suscripcion newsletter (gratis)
redes sociales
publicidad

Arquimaster en Facebook
Arquimaster en Twitter
Arquimaster en LinkedIn
Arquimaster en Pinterest