Arquimaster - Medio digital de arquitectura, diseño y construccion Estas visitando la version anterior,
para ver la version actual realiza click aca

 

     
       
 
Climanet - Doble Vidrio Hermetico DVH
Matyser - Materiales y servicios para la construccion
Cursos de arquitectura y diseño de espacios
Anclaflex
Curso Introducción a Revit: Modela tus proyectos arquitectonicos
Bara
Casa en San Eliseo (San Vicente, Bs. As.) - Meneghetti Arqs.
Curso Introducción al dibujo arquitectónico a mano alzada

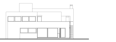
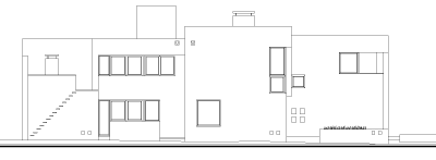
La vivienda proyectada por Juan Pablo y Juan Sebastián Meneghetti se encuentra ubicada en el San Eliseo & Golf Country Club (San Vicente, Buenos Aires) sobre un terreno de 930 m2 (22 por 40 metros). Consta de 360 m2 cubiertos y otros 42 semicubiertos, y fue pensada como vivienda permanente de una familia con seis hijos pequeños y adolescentes.

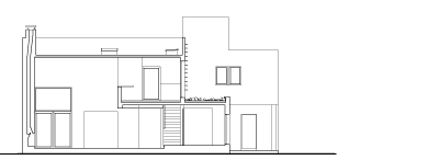
El proyecto utiliza un lenguaje contemporáneo, que sin recurrir a un estilo típicamente moderno, escapa a los habituales modelos de vivienda de country, con un lenguaje formal simple, de planos lisos y volúmenes limpios que configuran un sosegado juego de luces y sombras. Desde un principio, los proyectistas acordaron con el cliente que la casa tendría un lenguaje contemporáneo y sobrio, que no pasara de moda.

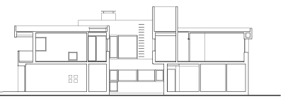
La vivienda ocupa uno de los bordes del country, disponiendo así, de amplias vistas hacia el campo circundante. Muy vinculada con el exterior, conforma una distribución clara y fluida del espacio interior, a la vez que aprovecha el entorno y la luz natural sin comprometer la intimidad de la vivienda en cuanto a su relación con el espacio exterior.

Se logra un contrapunto permanente interior-exterior, que permite ganar vistas al campo desde los diferentes espacios de la vivienda. De esta forma se logra un concepto de dualidad: la casa es privada pero, a la vez, muy relacionada con el exterior. Recibe mucha luz natural sin por ello exponer el interior.

Para los proyectistas, uno de los desafíos fue lograr luminosidad sin perder privacidad. Para lograr esto, se ubicaron claraboyas y ventanas a gran altura. Por esta razón se estudió cuidadosamente la ubicación y la forma de los aventanamientos, evitando las grandes superficies vidriadas que comprometieran dicha intimidad.

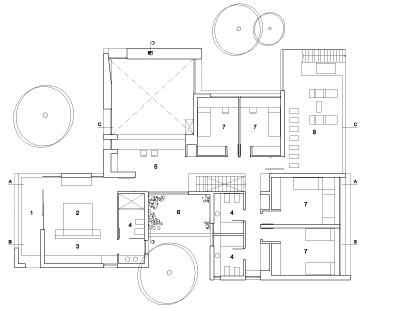
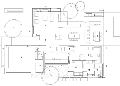
La distribución de las distintas funciones sigue un esquema tradicional, sin embargo los ambientes no se concretan como sectores estancos sino que a menudo interactúan entre sí, y en directa correspondencia con los hábitos y actividades de la familia a quien está destinada la vivienda.

En la planta baja se ubican los espacios públicos y las áreas de servicio: hall, living, comedor principal, toilette, estudio de los hijos pequeños, cocina comedor diario, expansión, garage, sala de maquinas, despensa, lavadero, cuarto y baño de servicio. En cambio, en la planta baja se disponen el estudio principal, los cinco dormitorios (uno principal en suite con vestidor, otros cuatro para los hijos), dos baños, patio y terraza.

En el tratamiento del espacio interior los proyectistas buscaron que tuviera mucha fluidez y que los ambientes no fueran cerrados en sí mismos.

Aplicando este concepto, el living y el comedor no configuran dos ambientes separados ni tampoco conforman un solo living comedor. El comedor principal se conecta con una expansión hacia el campo a través de una puerta corrediza vidriada.

El estudio de los hijos mayores se asoma sobre el living de doble altura y socializa con el mismo, conservando indirectamente las vistas al exterior, a la vez que se conecta con un patio interior. Por el contrario, el estudio de los hijos pequeños se ubica adyacente a la cocina -uno de los lugares más usados de la casa-, separados por una puerta vidriada corrediza, que al abrirse permite disfrutar del paisaje exterior.

La vivienda se concretó con el uso austero de materiales y el riguroso cuidado del detalle. Los muros exteriores exhiben una terminación color blanco arenoso que se torna algo celeste o anaranjado, de acuerdo a la luz del día.

Según señala el arquitecto Juan Pablo Meneghetti, el proyecto se inspira en ciertos criterios arquitectónicos y formales de Horacio Baliero, quien fuera titular de la cátedra de la FADU/UBA en la que –por caso- se formó su hermano Juan Sebastián Meneghetti.

La obra recibió la Primera Mención Honorífica del Premio Instancia Distrital. CAPBA Distrito II.

Para ampliar las fotos y planos realice click sobre los mismos.

 

Ficha técnica
Ubicación: San Eliseo Golf & Country Club, San Vicente. Lote 2-229
Proyecto y dirección: Arq. Juan Pablo Meneghetti y Juan Sebastián Meneghetti
Superficie del terreno: 930 m2 (22x40 metros)
Superficie cubierta: 360 m2
Superficie semicubierta: 42 m2
Año de proyecto: 2003
Año de construcción: 2004
Programa: [planta baja] hall, estar, comedor principal, toilete, estudio hijos pequeños, cocina comedor diario, expansión, garage, sala de máquinas, despensa, lavadero, cuarto y baño de servicio. [planta alta] estudio hijos mayores, cinco dormitorios (uno en suite con vestidor), dos baños, patio, terraza.

 
Curso de Introduccion a Sketchup: Visualizacion arquitectonica y modelado D
 
Si usted es profesional, este es su espacio para publicar su obra o proyecto (en forma gratuita). Para más información visitar la sección contacto: click aquí.
   
   

Noticias
informes especiales
bienal de arquitectura BA11
bienal de arquitectura BA09
publicaciones

Artículos
notas y artículos de interés
arquitectura legal
diseño de iluminación
software de arquitectura y diseño

Recursos
curso de decoracion (gratis/online)
archivo temático
descargas externas
curso de croquis (gratis/online)

Precios y costos
precios de materiales, indices y
costos m2 de construcción

Proyecto
obras construidas
proyectos para concursos
proyectos de estudiantes
arquitectos destacados
obras destacadas

Diseño
diseño industrial y mobiliario
diseño interior y decoración
Casa FOA 2009
Casa FOA 2010
Casa FOA 2011
Casa FOA 2012
Casa FOA 2013
Casa FOA 2014
Estilo Pilar 2010
Estilo Pilar 2012

Construcción
materiales y tecnologías
novedades de empresas
sector inmobiliario

Agenda
cursos y seminarios
congresos y bienales
charlas y eventos
exposiciones y muestras
concursos

Facultad
becas y subsidios
posgrados y maestrías
donde estudiar

Varios
ofertas laborales arquitectura, diseño y construccion
suscripcion newsletter (gratis)
redes sociales
publicidad

Arquimaster en Facebook
Arquimaster en Twitter
Arquimaster en LinkedIn
Arquimaster en Pinterest