Arquimaster - Medio digital de arquitectura, diseño y construccion Estas visitando la version anterior,
para ver la version actual realiza click aca

 

     
       
 
Climanet - Doble Vidrio Hermetico DVH
Matyser - Materiales y servicios para la construccion
Cursos de arquitectura y diseño de espacios
Anclaflex
Curso Introducción a Revit: Modela tus proyectos arquitectonicos
Bara
Casa Film (Funes, Pcia. Santa Fe, Argentina) - I + GC [arquitectura]
Curso Diseño e impresión 3D de maquetas arquitectónicas
 

Ficha técnica
Obra: Casa Film
Ubicación: Funes Hills Cadaqués (Unidad 73), Funes, Provincia de Santa Fe, Argentina
Proyecto: I + GC [arquitectura] (Matías Blas Imbern y Agustina González Cid)
Arquitectos Asociados: Guillermo Bas, Juan José Perseo
Colaborador: Fernando Imbern
Cálculo Estructura: Ing. Gustavo Bordachar
Superficie lote: 800 m2
Superficie cubierta: 170 m2
Superficie semicubierta: 60 m2
Superficie espejo de agua: 37 m2
Año: 2008

Ver planos de la obra

Emplazada en la ciudad de Funes, dentro del barrio cerrado Funes Hills Cadaqués y presentando las ventajas características del asentamiento suburbano, la obra busca lograr el contacto permanente interior-exterior, tan deseado por la gente que elije vivir en dichos lugares.

La casa, concebida para una familia joven con hijos, se resuelve a partir de una estrategia simple: el empleo de dos cintas -films- que a modo de planos plegados la implantan en el terreno, la organizan programáticamente y definen la identidad formal de la obra.

Estas van a ser las encargadas de dar unidad a la totalidad de las partes.

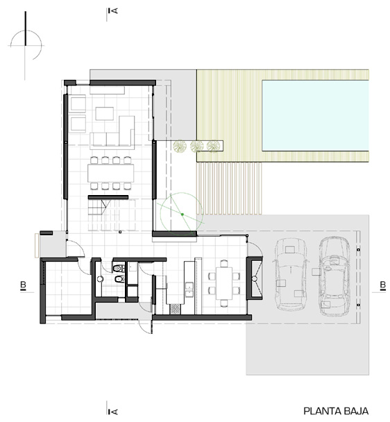
La disposición de las mismas en L, abre la vivienda hacia las mejores orientaciones, buscando la fluidez espacial hacia el interior del lote.

La pileta, ubicada en el centro del conjunto, fue pensada como el corazón alrededor del cual se dispone la totalidad de los locales y el parque, convirtiéndose de este modo en protagonista de la vida de la casa, a la cual miran todos los espacios de la misma.

A su vez, la implantación de esta permite liberar una importante superficie de terreno para el desarrollo de actividades deportivas y/o recreativas.

Todos los espacios comunes de la vivienda se disponen en planta baja, privilegiando el contacto directo con el terreno en los ambientes más dinámicos -living, cocina, comedor, quincho.

En la planta alta se ubican los dormitorios, favoreciendo la intimidad y las visuales elevadas por sobre el manto verde del country.

El ingreso principal se produce a través de un hall en doble altura que aloja la escalera y genera una verdadera continuidad visual del terreno a través de su transparencia, produciendo una sensación de atravesamiento entre el frente y el parque.

Este espacio vertical articula en la planta baja la relación entre los servicios y el estar, y separa en la planta alta el mundo de los padres del de los hijos, otorgando un nuevo nivel de privacidad.

Una de las innovaciones funcionales que introduce el proyecto es el uso del retiro sur para el ingreso vehicular, ubicando de este modo la cochera en el centro del terreno.

La misma puede funcionar también como quincho, en contacto directo con la cocina comedor, con la pileta y con el parque, y en el futuro como una posible expansión de la vivienda, desplazando el espacio de estacionamiento a continuación.

Para los cerramientos se utilizaron volúmenes y planos apelando a una variedad material de modo de no afectar el juego formal propuesto, en donde las cintas grises son protagonistas y el resto se subordina hacia estas, disponiendo a su vez las aberturas dentro de un juego de llenos y vacios entre los distintos componentes.


Planos
Realice click en los links para ver los planos.

[1] Implantación
[2] Planta baja
[3] Planta alta
[4] Corte A-A
[5] Corte B-B


Imágenes

Realice click sobre las imágenes para ampliarlas.

Ver ficha técnica y datos de contacto al pie de página.

 
Curso Técnica de presentación para proyectos arquitectónicos
 
 
Si usted es profesional, este es su espacio para publicar su obra o proyecto (en forma gratuita). Para más información visitar la sección contacto: click aquí.
   
   

Noticias
informes especiales
bienal de arquitectura BA11
bienal de arquitectura BA09
publicaciones

Artículos
notas y artículos de interés
arquitectura legal
diseño de iluminación
software de arquitectura y diseño

Recursos
curso de decoracion (gratis/online)
archivo temático
descargas externas
curso de croquis (gratis/online)

Precios y costos
precios de materiales, indices y
costos m2 de construcción

Proyecto
obras construidas
proyectos para concursos
proyectos de estudiantes
arquitectos destacados
obras destacadas

Diseño
diseño industrial y mobiliario
diseño interior y decoración
Casa FOA 2009
Casa FOA 2010
Casa FOA 2011
Casa FOA 2012
Casa FOA 2013
Casa FOA 2014
Estilo Pilar 2010
Estilo Pilar 2012

Construcción
materiales y tecnologías
novedades de empresas
sector inmobiliario

Agenda
cursos y seminarios
congresos y bienales
charlas y eventos
exposiciones y muestras
concursos

Facultad
becas y subsidios
posgrados y maestrías
donde estudiar

Varios
ofertas laborales arquitectura, diseño y construccion
suscripcion newsletter (gratis)
redes sociales
publicidad

Arquimaster en Facebook
Arquimaster en Twitter
Arquimaster en LinkedIn
Arquimaster en Pinterest