Arquimaster - Medio digital de arquitectura, diseño y construccion Estas visitando la version anterior,
para ver la version actual realiza click aca

 

     
       
 
Climanet - Doble Vidrio Hermetico DVH
Matyser - Materiales y servicios para la construccion
Cursos de arquitectura y diseño de espacios
Anclaflex
Curso Introducción a Revit: Modela tus proyectos arquitectonicos
Bara
Vivienda 108 en Pozuelo de Alarcón (Madrid, España) - A-cero (Joaquín Torres architects)
Curso Diseño e impresión 3D de maquetas arquitectónicas
 

Ficha técnica
Obra: Vivienda unifamiliar 108
Ubicación: Pozuelo de Alarcón, Madrid, España
Proyectista: Joaquín Torres Vérez, arquitecto (A-cero)
Colaboradores: Rafael Llamazares de la Fuente, arquitecto socio
A-cero, Joaquín Torres Arquitectura
Arquitecto técnico: Sandra Moreno
Promotor: Urbanizadora Somosaguas S.A.U.
Empresa constructora: Formas & Entornos S.L.
Superficie total construida: 1.021,57 m2
Fecha de proyecto: mayo 2006
Plazo de ejecución: 22 meses
Fecha de fin de obra: octubre 2008
Sitio web: http://www.a-cero.com

Ver planos de la obra

El estudio de Arquitectura A-cero, que dirige Joaquín Torres con su socio arquitecto Rafael Llamazares, presenta esta vivienda a las afueras de Madrid, en el municipio de Pozuelo de Alarcón.

De clara inspiración escultórica, el bloque se presenta vestido de mármol travertino trasventilado, con una colocación estudiada de la piedra, que respeta sus formas curvas y aristas.

Destacan los voladizos laterales que aportan ingravidez al edificio, además de singularidad en diseño y construcción, en la entrada principal existe un quiebro o paño vertical resuelto en piedra granito oscura contrastando con la predominante en la fachada.

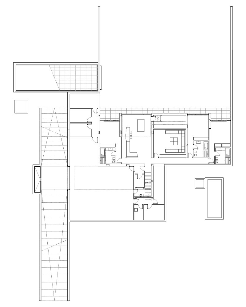
Los ventanales se presentan de grandes dimensiones para facilitar la entrada de la luz al interior de la vivienda en donde nos encontramos en planta baja la zona de recibidor, estar, cocina y servicio, y ya en una planta inferior aunque igualmente volcada al jardín dado el desnivel existente en la parcela, las zonas más íntimas constituidas por los dormitorios y espacio para ocio.

También en el interior y cumpliendo las necesidades del cliente, se han escogido materiales de alta calidad y se ejecutaron unos acabados de primer orden.

Con una superficie construida total de unos 1.000 m2, el resultado es una vivienda unifamiliar que posee diálogo con el entorno natural y que desde el punto de vista del diseño, contiene las señas identificativas del estudio A-cero y su filosofía de entender la arquitectura.


Planos
Realice click en los links para ver los planos.

[1] Planta baja
[2] Planta sótano


Imágenes

Realice click sobre las imágenes para ampliarlas.

Ver ficha técnica y datos de contacto al pie de página.


Acerca de los proyectistas
A-cero, estudio de arquitectura y urbanismo, es una sociedad creada en 1996 cuya actividad se centra en el desarrollo integral de proyectos de arquitectura.

El equipo humano, liderado por Joaquín Torres, ha ido creciendo de forma proporcional a la actividad desarrollada.

Disponemos de instalaciones en Madrid, A Coruña, Dubai y próximamente en República Dominicana.

En los últimos tiempos la demanda de nuestros clientes nos ha hecho ampliar el campo de actuación hasta la gestión de obra, realizando entregas llave en mano de trabajos previamente diseñados por nosotros.

En nuestra trayectoria profesional hemos mantenido colaboraciones con empresas constructoras y promotoras presentándonos a concursos o realizando labores de consultoría con otros estudios de arquitectura e ingeniería desarrollando conjuntamente proyectos, y con bufetes de abogados, colaborando en temas de gestión y planeamiento urbanístico.

Nuestro método de trabajo parte del estudio profundo del programa de necesidades de nuestro cliente.

Los materiales y los detalles se desarrollan simultáneamente a nuestra capacidad de imaginar, proyectar y persuadir.

En este proceso la arquitectura aparece sola.

 
Curso Técnica de presentación para proyectos arquitectónicos
 
 
Si usted es profesional, este es su espacio para publicar su obra o proyecto (en forma gratuita). Para más información visitar la sección contacto: click aquí.
   
   

Noticias
informes especiales
bienal de arquitectura BA11
bienal de arquitectura BA09
publicaciones

Artículos
notas y artículos de interés
arquitectura legal
diseño de iluminación
software de arquitectura y diseño

Recursos
curso de decoracion (gratis/online)
archivo temático
descargas externas
curso de croquis (gratis/online)

Precios y costos
precios de materiales, indices y
costos m2 de construcción

Proyecto
obras construidas
proyectos para concursos
proyectos de estudiantes
arquitectos destacados
obras destacadas

Diseño
diseño industrial y mobiliario
diseño interior y decoración
Casa FOA 2009
Casa FOA 2010
Casa FOA 2011
Casa FOA 2012
Casa FOA 2013
Casa FOA 2014
Estilo Pilar 2010
Estilo Pilar 2012

Construcción
materiales y tecnologías
novedades de empresas
sector inmobiliario

Agenda
cursos y seminarios
congresos y bienales
charlas y eventos
exposiciones y muestras
concursos

Facultad
becas y subsidios
posgrados y maestrías
donde estudiar

Varios
ofertas laborales arquitectura, diseño y construccion
suscripcion newsletter (gratis)
redes sociales
publicidad

Arquimaster en Facebook
Arquimaster en Twitter
Arquimaster en LinkedIn
Arquimaster en Pinterest