Arquimaster - Medio digital de arquitectura, diseño y construccion Estas visitando la version anterior,
para ver la version actual realiza click aca

 

     
       
 
Climanet - Doble Vidrio Hermetico DVH
Matyser - Materiales y servicios para la construccion
Cursos de arquitectura y diseño de espacios
Anclaflex
Curso Introducción a Revit: Modela tus proyectos arquitectonicos
Bara
Casa JD (Mar Azul, Pcia. de Buenos Aires) - BAK arquitectos
Curso Render y collage digital para visualizacion arquitectonica
 

Ficha técnica
Obra: Casa JD (vivienda de veraneo)
Ubicación: Mar Azul, partido de Villa Gesell, provincia de Buenos Aires, Argentina
Arquitectos: María Victoria Besonías, Luciano Kruk
Superficie del terreno: 600 m2
Superficie construida: 149 m2
Año de construcción: 2009
Fotos: Gustavo Sosa Pinilla

Ver planos de la obra

Ver memoria descriptiva

Esta obra es el resultado de un proceso que se inicia con la construcción en el año 2004 de una casa de veraneo en el bosque de Mar Azul con las siguientes premisas.

Construir en el bosque

Proponer alternativas que garanticen la supervivencia de los entornos naturales
Mar Azul es un lugar que conocemos hace muchos años por esa razón cuando en el 2004 construimos la primer obra sabíamos que teníamos que intervenir en un territorio que a pesar de su gran valor paisajístico nunca contó con un sostén legal que resguardara ese patrimonio de la voracidad de los que lotean con un único objetivo: sacar la mayor renta de la tierra. Que tampoco cuenta con un código que, comprendiendo la lógica de ese entorno privilegiado, reglamente resolviendo el desajuste entre ese loteo inapropiado y las posibilidades de construir sin que se pierda la calidad ambiental del sitio. A esta situación descripta se le suma como agravante la proliferación de una tipología "casa pintoresca en un lugar de fantasía", que paulatinamente va "domesticando" ese bosque, dueño aún, de una potente presencia agreste. Operar en ese sitio significó entonces asumir sus desajustes como un desafío y ver, hasta dónde, los arquitectos podemos hacer un aporte alternativo.

La respuesta fue la proposición de una arquitectura de mínimos recursos tanto materiales como formales, no sólo como elección estética sino como principio ético de valorización de un uso más racional de los variados recursos disponibles. Esa arquitectura despojada debía incorporarse al paisaje con voluntad de pertenencia, buscando integrarse a esa realidad preexistente. Para que esto suceda es necesario "saber escuchar" lo que el sitio comunica de manera que los primeros acercamientos deben estar libres de prejuicios respecto del mismo para poder captar no solo los datos tangibles y por lo tanto calificables y mensurables, sino aquellas atmósferas que el lugar brinda y que sólo podremos percibir si nuestra mirada está libre de preconceptos sobre el mismo. Esto quiere decir practicar el ejercicio de "ver por primera vez". Considerar los datos, dejarse invadir por esas sensaciones que el lugar suministra e imaginar como el propio proyecto los capitaliza, es fundamental para que arquitectura y paisaje puedan fundirse.

Habíamos practicado este ejercicio (casi como un vicio profesional) veraneando en Mar Azul en reiteradas oportunidades, de manera que valorábamos la potente presencia paisajística de su bosque, las sensaciones que suministran sus continuos cambios en el tiempo, pero además habíamos experimentado el microclima que provee: la atenuación de los fuertes vientos marinos que se producen debajo de los árboles, la sombra constante que estos suministran protegiendo del calor en verano aunque produciendo un ambiente muy húmedo en invierno, y algo que para nosotros fue determinante en la toma de decisiones a la hora de proyectar, el hecho de que bajo los pinos se ve reducida notablemente la cantidad de luz durante todo el año. También sabíamos que el bosque no requiere de mantenimiento, salvo remover la vegetación seca, si es que no se introducen nuevas especies que rompan esa armonía.

Aprovechar lo que el ambiente ofrece
Reconocer este particular microclima fue determinante, (junto con el bajo presupuesto disponible y la necesidad de mantenimiento nulo de la casa) de las decisiones estético/constructivas que definieron la obra. La necesidad de captar la luz dio lugar a concebir esa primer obra como un "semicubierto" y resolverla entonces con grandes paños de vidrio que desde adentro posibilitaran vistas en todas direcciones y desde afuera reflejaran el paisaje haciendo que la casa se mimetizara con el mismo. La necesidad de acelerar los plazos de ejecución de la obra y evitar su mantenimiento posterior nos decidió a construir con hormigón a la vista. La sombra reinante por otro lado nos permitía utilizar este material ya que la misma suministra suficiente protección térmica desde la primavera hasta entrado el otoño. Su acondicionamiento para el invierno no era demasiado relevante (aunque por supuesto estuvo previsto) ya que su uso es muy limitado dada su condición de casa de veraneo. La aislación hidrófuga se resolvió con un hormigón de gran compacidad y con un estudio de la forma de la envolvente para que la evacuación del agua de lluvia se realizara muy velozmente.

Usar de manera sensata los recursos disponibles
La calidad expresiva del hormigón visto y sus propiedades de resistencia e impermeabilidad ya mencionadas, hicieron innecesario cualquier tipo de acabado superficial, lográndose un bajo costo de ejecución en las terminaciones sin necesidad de mantenimiento futuro. Por otro lado el color y la textura del hormigón realizado con encofrado de tablas de madera resultó de una presencia contundente y mimética a la vez, permitiendo que la obra se exprese en armonía con el paisaje. Es síntesis, una envolvente de dos únicos materiales -hormigón y vidrio- resuelve la integración con el paisaje y da respuesta a los temas formales, estructurales, funcionales, de terminaciones y de mantenimiento.
Con idéntico criterio la resolución de las actividades al aire libre fue el resultado de realizar la menor operación sobre ese ambiente. Se evitó todo tipo de ajardinamiento no sólo por la comodidad de no mantenerlo sino para evitar dejar expresado límites innecesarios en un paisaje por ahora poco construido, ni sectores contrastantes con las características paisajísticas del este ambiente privilegiado. Nos gusta esa marcada homogeneidad del bosque de coníferas solo interrumpida de tanto en tanto por alguna acacia y pastizales de nuestra pampa que son por otra parte la vegetación dominante en los médanos próximos al mar.

Varias casas, algunos interrogantes
La propuesta que nuestro estudio viene realizando en el bosque de Mar Azul, tan preocupada en integrarse a ese ambiente que la origina, y tan alejada de los estereotipos del lugar, ha encontrado muy buena aceptación. Son varios los encargos de casas con un pedido expreso de repetir la misma solución estético constructiva y que valoran tanto las decisiones sobre un uso mas relajado de la vivienda, como la falta de mantenimiento de la construcción. Esto es, sin duda, muy gratificante para nosotros pero a su vez nos plantea una serie de interrogantes que se convierten en materia de reflexión en cada nuevo pedido. Dejarlos planteados es una manera de empezar a buscarle solución.
Nos preguntamos: ¿Si la propuesta se presenta funcional tanto a la unidad ambiental cómo a los requerimientos estéticos, de uso y de mantenimiento de los comitentes, es válido buscar una nueva solución sin otra justificación que no sea probar con algo diferente, apostando sólo a la novedad? Si por el contrario optamos por continuar haciendo casas de hormigón visto, ¿es lícito producir cambios en su apariencia utilizando por ejemplo un encofrado fenólico, manipulando la superficie de terminación con acabados especiales o usando hormigones coloreados? Todos estos procedimientos, ¿no son maniobras de carácter puramente decorativo que van contra los principios de austeridad y sencillez que dieron origen a la propuesta?
Repetir esta propuesta de materialidad como un prototipo donde se reelabore con cada encargo su pertenencia al paisaje y las diferentes maneras de habitarlo, ¿no parece lógico y éticamente correcto?
¿Ese sería entonces el desafío de cada nuevo proyecto? ¿Concentrarse en adaptar este prototipo a los usos específicos de cada comitente y a las particularidades de su entorno? ¿Insistir cada vez con más fuerza -ayudados por la trascendencia- en que lo que allí se construye no puede romper con la unidad paisajista que representa ese bosque? ¿Insistir en encontrar la manera de transformar cada casa en "nido o madriguera (1)"?


(1) termino usado por el arq. Felipe Uribe para referirse nuestras casas de Mar Azul en el nº 17 de la Revista 1:100).

Con estos interrogantes encaramos la Casa JD.


Memoria

El lugar

El terreno de 20x30 metros sobre el que debíamos intervenir se encuentra muy forestado con pinos marítimos de gran porte. Presenta la particularidad de que su frente está muy elevado respecto del nivel de la calle, y si bien esta situación complica la resolución del acceso al predio, ofrece la ventaja de que la casa así elevada, quede muy poco expuesta a las miradas de los que pasan por la calle y además era posible imaginar que desde su interior se pudieran obtener vistas al paisaje por encima de las construcciones vecinas. Además de la diferencia de nivel con la calle en todo su frente, el lote presenta una pendiente en diagonal desde el fondo hacia el mismo de 3.00 m.

El encargo
El pedido del comitente fue una casa para ser usada durante gran parte del año, de sólo dos dormitorios y dos baños, uno de ellos en suite, pero con una zona social suficientemente grande como para poder armar espacios de diferentes usos ya que es habitual recibir muchos amigos. Además se requería, que en ocasiones, algún sector de esta área social pudiera ser transformado en lugar para dormir. La cocina debía estar integrada a la zona social y se resaltó la necesidad de disponer de generosas expansiones al aire libre. La superficie total no debía superar los 150 m2.

La propuesta
El relieve particular del lote, la privacidad resultante de lo elevado del mismo respecto de la calle, las vistas al bosque libres de construcciones próximas y la particularidad del programa requerido, son los temas que hacen singular a esta casa con una propuesta estético constructiva similar a las otras construidas por el estudio en Mar Azul.
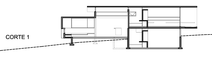
La propuesta fue concebir la vivienda como dos prismas puros, ubicados en un claro entre los árboles, de diferentes alturas, que se interceptan perpendicularmente y a medios niveles. La importante pendiente del terreno fue aprovechada para esconder parte del programa requerido, reduciendo de esta forma la presencia de lo construido. Con esta disposición volumétrica se consiguió dotar a la casa de la variedad de espacios requeridos sin perder independencia de uso entre los mismos. Todos los ambientes de la zona social se vinculan a través de grandes aberturas con terrazas al exterior resueltas con decks de madera y el dormitorio principal elevado cuenta con una terraza de expansión cubierta.

La organización funcional
Se accede a la planta principal a través de un deck elevado respecto del terreno natural, que se desarrolla a lo largo del lado mayor de esta planta, de manera que, abriendo la carpintería corrediza se consigue una total integración entre el interior y el exterior. Este nivel de acceso es un espacio único en donde, quedan definidos los distintos usos, mediante diferencias de alturas producidas por la intersección de los prismas y las sectorizaciones con tabiques de hormigón. De esta manera el espacio al que se ingresa cuenta con un sector para estar frente a la chimenea y también con un banco pensado para servir de asiento para una comida informal en una mesa baja. Desde este sector puede verse de frente el comedor con su expansión a otra terraza, la cocina integrada a este mediante una serie de tabiques de hormigón que además de resolver el equipamiento (mesadas bajas, una barra y la mesa), resguardan de las vistas directas el sector de trabajo de la cocina. Hacia un costado se dispone de otro estar, resuelto alrededor de una salamandra exenta, que puede transformarse en dormitorio. En el centro de la planta, la intersección de los dos prismas, crea un espacio de doble altura donde son protagonistas tanto las escaleras a medios niveles que conducen a los dormitorios, como los efectos lumínicos y la visión del paisaje que se obtiene por la diferencia de altura de la volumetría o a través de grandes aberturas. Bajando y semienterrado en una situación muy reservada se encuentra el baño general y un dormitorio y hacia arriba se desarrolla, aislado del resto de la casa, el dormitorio principal con su baño privado que se prolonga al exterior en un terraza semicubierta. Ambos dormitorios están atravesados por un pino, añoso, muy robusto, que no se quiso derribar.

La construcción
La casa está construida con tres materiales básicos: hormigón a la vista, vidrio y madera en los deck exteriores. Las losas de los diferentes volúmenes apoyan mediante tabiques y vigas invertidas de hormigón visto y están terminadas con una pendiente mínima para que se produzca rápidamente el escurrimiento del agua de lluvia. Se utilizó un hormigón H21 con el agregado de un fluidificante para que esta mezcla con escasa cantidad de agua al fraguar, resulte de mucha compacidad y no requiera de impermeabilización. Los escasos tabiques interiores de ladrillos huecos están terminados en alisado de cemento, el piso es también de paños de alisado de cemento divididos por planchuelas de aluminio. Las aberturas son de aluminio anodizado color bronce oscuro. El sistema de calefacción, dado que no existe gas natural en la zona, se resolvió con un sistema que combina salamandra, estufas a gas envasado y estufas eléctricas.

Mobiliario
Salvo las camas, los sillones y sillas, el resto del equipamiento de esta vivienda está resuelto en hormigón.


Planos
Realice click en los links para ver los planos.

[1] Planta baja
[2] Planta alta
[3] Corte 1
[4] Corte 4
[5] Corte 6
[6] Vista NE
[7] Vista NO
[8] Vista SE
[9] Vista SO


Imágenes
Realice click sobre las imágenes para ampliarlas.

Ver ficha técnica y datos de contacto al pie de página.

 
Curso Infoarquitectura de interiores con Unreal Engine 4
 
 
Si usted es profesional, este es su espacio para publicar su obra o proyecto (en forma gratuita). Para más información visitar la sección contacto: click aquí.
   
   

Noticias
informes especiales
bienal de arquitectura BA11
bienal de arquitectura BA09
publicaciones

Artículos
notas y artículos de interés
arquitectura legal
diseño de iluminación
software de arquitectura y diseño

Recursos
curso de decoracion (gratis/online)
archivo temático
descargas externas
curso de croquis (gratis/online)

Precios y costos
precios de materiales, indices y
costos m2 de construcción

Proyecto
obras construidas
proyectos para concursos
proyectos de estudiantes
arquitectos destacados
obras destacadas

Diseño
diseño industrial y mobiliario
diseño interior y decoración
Casa FOA 2009
Casa FOA 2010
Casa FOA 2011
Casa FOA 2012
Casa FOA 2013
Casa FOA 2014
Estilo Pilar 2010
Estilo Pilar 2012

Construcción
materiales y tecnologías
novedades de empresas
sector inmobiliario

Agenda
cursos y seminarios
congresos y bienales
charlas y eventos
exposiciones y muestras
concursos

Facultad
becas y subsidios
posgrados y maestrías
donde estudiar

Varios
ofertas laborales arquitectura, diseño y construccion
suscripcion newsletter (gratis)
redes sociales
publicidad

Arquimaster en Facebook
Arquimaster en Twitter
Arquimaster en LinkedIn
Arquimaster en Pinterest