Arquimaster - Medio digital de arquitectura, diseño y construccion Estas visitando la version anterior,
para ver la version actual realiza click aca

 

     
       
 
Climanet - Doble Vidrio Hermetico DVH
Matyser - Materiales y servicios para la construccion
Cursos de arquitectura y diseño de espacios
Anclaflex
Curso Introducción a Revit: Modela tus proyectos arquitectonicos
Bara
Casa en Playa del Golf II (Lima, Perú) - Arq. Javier Artadi
Curso Render y collage digital para visualizacion arquitectonica
 

Ficha técnica
Obra: Casa en Playa del Golf II
Proyectista: Arq. Javier Artadi Loayza
Ubicación: Playa del Golf (2º etapa), Asia, Pcia. Cañete, Lima, Perú
Estructuras: Ing. Julio Higashi
Instalación sanitaria: Ing. Jorge Gamboa
Instalación eléctrica: Ing. Jaime Alvarado
Pisos: Ggm. Importaciones S.A.C.
Iluminación: Trazzo iluminación
Superficie terreno: 331.25 m2
Superficie construida: 418.76 m2
Sitio web: http://www.javierartadi.com

Ver planos de la obra

El proyecto está ubicado en la ladera sur del cerro central del condominio Playa del Golf, hacia el kilómetro 100 al sur de Lima.

En la medida en que el terreno está en la parte más profunda de la topografía del lugar, cuando se consolide el desarrollo del condominio, las demás casas vecinas quedarán más afuera que la casa diseñada.

Ante esta condición, cualquier intento por sobresalir hacia el paisaje es inútil.

Ante esta circunstancia, el proyecto usa a su favor esta desventaja concentrando hacia su interior la fuerza de su diseño.

Conceptualmente, la casa parece un pedestal incrustado en el cerro sobre el cual sucede toda la actividad social.

Este gran espacio total está parcialmente cubierto por un gran plano horizontal que brinda de una sola vez toda la sombra necesaria.

Tres piscinas circulares de igual diámetro han sido ubicadas en el limite de la terraza y el vacio hacia el horizonte, elementos geométricos relevantes en la propuesta que se constituyen por la noche en tres lámparas de luz.

Un solitario balcón de cristal que vuela hacia el vacío busca romper la composición general acentuando, por contraste, el carácter sólido y austero de la propuesta.


Planos
Realice click en los links para ver los planos.

[1] Planta ingreso
[2] Planta 1º nivel
[3] Planta 2º nivel
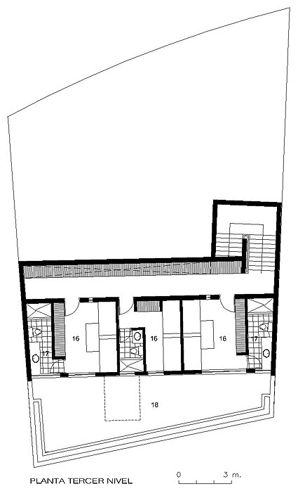
[4] Planta 3º nivel
[5] Corte
[6] Evolución


Imágenes
Realice click sobre las imágenes para ampliarlas.

Ver ficha técnica y datos de contacto al pie de página.

 
Curso Infoarquitectura de interiores con Unreal Engine 4
 
 
Si usted es profesional, este es su espacio para publicar su obra o proyecto (en forma gratuita). Para más información visitar la sección contacto: click aquí.
   
   

Noticias
informes especiales
bienal de arquitectura BA11
bienal de arquitectura BA09
publicaciones

Artículos
notas y artículos de interés
arquitectura legal
diseño de iluminación
software de arquitectura y diseño

Recursos
curso de decoracion (gratis/online)
archivo temático
descargas externas
curso de croquis (gratis/online)

Precios y costos
precios de materiales, indices y
costos m2 de construcción

Proyecto
obras construidas
proyectos para concursos
proyectos de estudiantes
arquitectos destacados
obras destacadas

Diseño
diseño industrial y mobiliario
diseño interior y decoración
Casa FOA 2009
Casa FOA 2010
Casa FOA 2011
Casa FOA 2012
Casa FOA 2013
Casa FOA 2014
Estilo Pilar 2010
Estilo Pilar 2012

Construcción
materiales y tecnologías
novedades de empresas
sector inmobiliario

Agenda
cursos y seminarios
congresos y bienales
charlas y eventos
exposiciones y muestras
concursos

Facultad
becas y subsidios
posgrados y maestrías
donde estudiar

Varios
ofertas laborales arquitectura, diseño y construccion
suscripcion newsletter (gratis)
redes sociales
publicidad

Arquimaster en Facebook
Arquimaster en Twitter
Arquimaster en LinkedIn
Arquimaster en Pinterest