Arquimaster - Medio digital de arquitectura, diseño y construccion Estas visitando la version anterior,
para ver la version actual realiza click aca

 

     
       
 
Climanet - Doble Vidrio Hermetico DVH
Matyser - Materiales y servicios para la construccion
Cursos de arquitectura y diseño de espacios
Anclaflex
Curso Introducción a Revit: Modela tus proyectos arquitectonicos
Bara
Vivienda en Las Rozas (Madrid, España) - A-cero
Curso Fotorrealismo de espacios interiores con Lumion desde cero
 

Ficha técnica
Nombre: Casa en Las Rozas
Proyecto: A-cero (Joaquín Torres architects)
Tipología: Vivienda unifamiliar
Ubicación: Las Rozas, Madrid, España
Superficie construida: 762,47 m2
Superficie del terreno: 1368 m2
Año: 2010
Sitio web: http://www.a-cero.com

 

Ver planos de la obra

English version

El estudio de arquitectura A-cero presenta su nueva vivienda. Un conjunto de volúmenes y planos superpuestos en un juego perfecto que difumina los límites entre arte y arquitectura.

Continuando con la estética de A-cero, voladizos, bloques y láminas de corte minimalista articulan el diseño de este proyecto residencial de referencias esculturales.

Se trata de una edificación situada en una zona residencial de Las Rozas. La construcción se extiende sobre una parcela de 1368 m2 con una ligera pendiente. El mármol travertino se impone en el exterior de la vivienda, cuya estructura consta de muros y pilares de hormigón armado sobre los que se apoyan los forjados y vigas que constituyen los diferentes pórticos de la casa.

En total el inmueble consta de 762,47 m2 de superficie construida distribuida en tres niveles: sótano, planta baja y primer nivel.

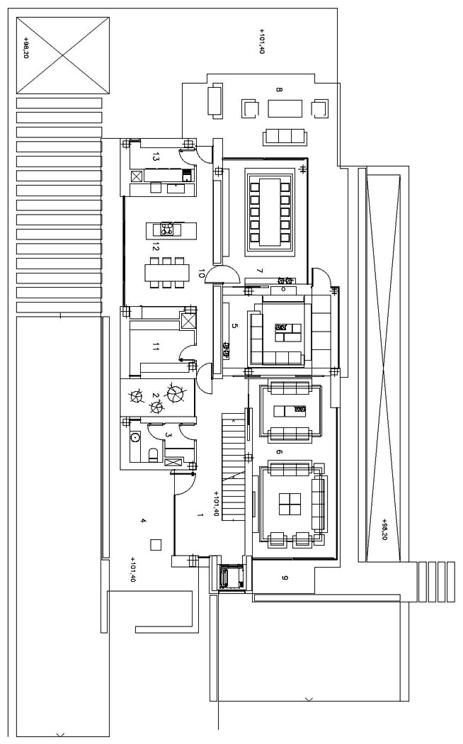
El acceso peatonal tiene lugar por la planta baja donde se localizan las estancias más sociales (sala de estar, salón y comedor) a continuación unas de otras en el lado derecho de la casa. En la otra ala se halla un aseo de cortesía, un patio interior, la cocina-office, una despensa y un cuarto de limpieza. Al fondo se encuentra el porche principal que comunica con el comedor. Unas escaleras interiores y un ascensor comunican este nivel con el sótano y la primera planta.

El primer piso consta de 273,46m2 y alberga las siguientes habitaciones: dos dormitorios para los hijos con sus respectivas zonas de estar, vestidores y cuartos de baño; un dormitorio de invitados con cuarto de baño; el dormitorio principal con dos vestidores y cuarto de baño; un estudio que comunica con una pasarela-biblioteca (a la que también se accede desde el dormitorio principal) y dos pequeñas terrazas.

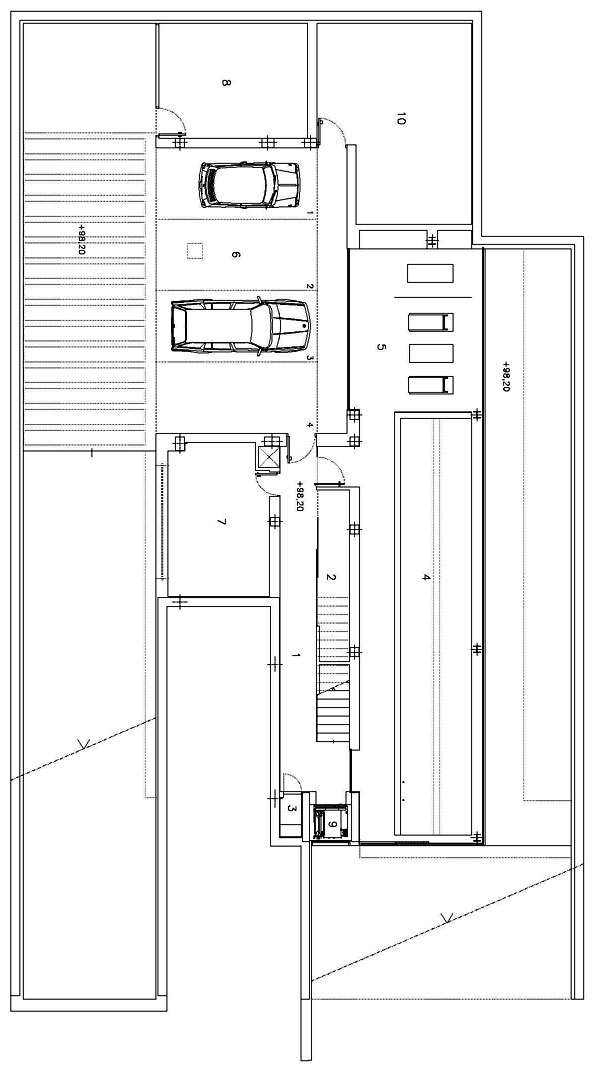
En el sótano se encuentra el cuarto de instalaciones, trastero, cuarto de aperos para el jardín y bicicletas, piscina interior, gimnasio, sauna, sala de masajes, sala de cine y bodega. Excepto el trastero, el garaje y la zona de instalaciones (con suelos de hormigón pulido), el resto de la planta cuenta con solados de tarima de madera de ipé.

La vivienda cuenta con dos piscinas y dos jacuzzi de idénticas dimensiones para exterior e interior.

Los interiores destacan por su distribución diáfana. Zonas abiertas que le dan a la vivienda un punto cómodo y habitable.

Prácticamente toda la vivienda consta de suelos de mármol apomazado que sólo en ciertas zonas, como el garaje, la piscina interior o la cocina, es sustituido por madera ipé, porcelanato u hormigón pulido.

El mármol color biege se une al blanco de todas las paredes y techos aportando una gran claridad y luminosidad a la vivienda en la línea de A-cero. Además, esta combinación cromática crea una sensación acogedora y de amplitud muy adecuada en esta residencia cuyas dimensiones no son excepcionalmente grandes.

Destaca la chimenea como un elemento esencial en la sala de estar y las diferentes piezas de mobiliario en color oscuro que contrastan con los colores claros dominantes.

Diseño, funcionalidad y calidad son los tres conceptos que han marcado la hoja de ruta de esta vivienda donde elegancia, sobriedad y sencillez se imponen en la línea de la arquitectura A-cero.


Planos
Realice click en los links para ver los planos.

[1] Planta baja
[2] Planta alta
[3] Planta sótano


Imágenes
Realice click sobre las imágenes para ampliarlas.

Ver ficha técnica y datos de contacto al pie de página.


Acerca de los proyectistas
A-cero, estudio de arquitectura y urbanismo, es una sociedad creada en 1996 cuya actividad se centra en el desarrollo integral de proyectos de arquitectura.

El equipo humano, liderado por Joaquín Torres, ha ido creciendo de forma proporcional a la actividad desarrollada.

Disponemos de instalaciones en Madrid, A Coruña, Dubai y próximamente en República Dominicana.

En los últimos tiempos la demanda de nuestros clientes nos ha hecho ampliar el campo de actuación hasta la gestión de obra, realizando entregas llave en mano de trabajos previamente diseñados por nosotros.

En nuestra trayectoria profesional hemos mantenido colaboraciones con empresas constructoras y promotoras presentándonos a concursos o realizando labores de consultoría con otros estudios de arquitectura e ingeniería desarrollando conjuntamente proyectos, y con bufetes de abogados, colaborando en temas de gestión y planeamiento urbanístico.

Nuestro método de trabajo parte del estudio profundo del programa de necesidades de nuestro cliente.

Los materiales y los detalles se desarrollan simultáneamente a nuestra capacidad de imaginar, proyectar y persuadir.

En este proceso la arquitectura aparece sola.


English version

House in Las Rozas

A-cero presents its new house: a built set of volumes and sheets combined as a perfect play that mixes the limits between art and architecture.

According to A-cero aesthetics, modern projecting, blocks and plates define the design of this residential project with sculptural references. The house is located in Las Rozas, one of the wealthiest towns of Madrid.

The dwelling's plot has a surface of 1.368 m2 with a light slope that A-cero has used in order to adapt the building's three floors: basement, ground floor and first floor.

The building's surface is 762,47 m2. The pedestrian access takes place by the ground floor where are located the most social rooms (living room, lounge and dining room) in the right side of the house.

In the left side are the following rooms: a bathroom, cleaning room, a courtyard, kitchen-office, a larder and a cleaning room. In this level is also a porch that communicates with the dining room. An interior stair and an elevator communicate this level with the basement and the first floor.

The first floor has 273,46 m2 and includes the following rooms: two children bedrooms with dressing-rooms, bathrooms and a living room; a guests' bedroom with bathroom; the main bedroom with two dressing-rooms and bathroom; a study that he communicates with a footbridge-library (to which also one gains access from the main bedroom) and two small courtyards.

The basement includes facility quarters, storage room, quarter of implements for the garden and bicycles, interior swimming pool, gymnasium, sauna, massages room, cinema room and cellar.

The housing is provided with two swimming pools and two jacuzzi (for exterior and interior)
Interiors stand out for their diaphanous distribution.

It is a comfortable and habitable dwelling with ample areas. The beige marble with the wait walls and roofs produce a lot of clarity and luminosity in interiors. Furthermore, these colours create a spaciousness sensation in the house.

Design, functionality and quality are the main concepts that have established this house's design where elegance, modernity and simplicity stand out according to A-cero's architecture.

 
Curso Infoarquitectura de interiores con Unreal Engine 4
 
 
Si usted es profesional, este es su espacio para publicar su obra o proyecto (en forma gratuita). Para más información visitar la sección contacto: click aquí.
   
   

Noticias
informes especiales
bienal de arquitectura BA11
bienal de arquitectura BA09
publicaciones

Artículos
notas y artículos de interés
arquitectura legal
diseño de iluminación
software de arquitectura y diseño

Recursos
curso de decoracion (gratis/online)
archivo temático
descargas externas
curso de croquis (gratis/online)

Precios y costos
precios de materiales, indices y
costos m2 de construcción

Proyecto
obras construidas
proyectos para concursos
proyectos de estudiantes
arquitectos destacados
obras destacadas

Diseño
diseño industrial y mobiliario
diseño interior y decoración
Casa FOA 2009
Casa FOA 2010
Casa FOA 2011
Casa FOA 2012
Casa FOA 2013
Casa FOA 2014
Estilo Pilar 2010
Estilo Pilar 2012

Construcción
materiales y tecnologías
novedades de empresas
sector inmobiliario

Agenda
cursos y seminarios
congresos y bienales
charlas y eventos
exposiciones y muestras
concursos

Facultad
becas y subsidios
posgrados y maestrías
donde estudiar

Varios
ofertas laborales arquitectura, diseño y construccion
suscripcion newsletter (gratis)
redes sociales
publicidad

Arquimaster en Facebook
Arquimaster en Twitter
Arquimaster en LinkedIn
Arquimaster en Pinterest