 |
 |
 |
 |
 |
 |
 |
 |
 |
 |
 |
| |
La intervención
propuesta contempla 3 tipos de obra:
1) Construcción
nueva, correspondiente al edificio principal (a)
y al edificio del Concejo
Deliberante (b).
2) Reforma de las construcciones existentes, edificio
histórico (a), ex Hacienda (b) y Biblioteca
(c).
3) Tratamientos exteriores en general.
Construcción
nueva (1):
a) Edificio Municipal
El sistema de fundación elegido es un entramado
de vigas soleras rectangulares del tipo elásticas
de hormigón armado, desde el que se eleva
un sistema de columnas y vigas metálicas conformando
pórticos. Los mismos sostienen por un lado
a las losas de estructura mixta: metálica
y de hormigón alivianado de los 2 niveles
interiores y por otro lado a la estructura de techos,
compuesta de un entramado de vigas laminadas de madera,
conformando un casetonado de módulos regulares,
que acompañan en ambas direcciones los apoyos
de columnas y cerramientos perimetrales.
Este sistema estructural conforma la nave principal
del edificio que en sus extremos se cierra con
mamposterías
mixtas de ladrillos cerámicos huecos y ladrillos
comunes a la vista con cámara de aislación
térmica entre ambas. La nave a su vez está cerrada
por sus dos laterales, uno de mayor altura, construido
en mampostería mixta de ladrillos cerámicos
huecos y piedra partida de la zona a la vista con
junta cerrada, y el otro, compuesto por un canalón
de recolección de agua de lluvia sostenido
desde columnas, todo de hormigón armado y
carpinterías de aluminio anodizado ámbar
a nivel superior. A nivel inferior, en este lateral,
el cerramiento es el compuesto por las edificaciones
existentes a preservar dentro del predio.
Para todos los casos en que se utilizan mampuestos
ya sean muros simples o mixtos, la construcción
contempla columnas, vigas y losas de hormigón
armado encadenadas y antisísmicas.
Las terminaciones de las mamposterías interiores
son, en general de revoques completos (gruesos y
finos) impermeables según el caso, terminación
pintura látex.
Los cerramientos o aberturas exteriores son de
aluminio color ámbar. En la transición entre
las mamposterías de cierre y la cubierta de
techos y entre las carpinterías de aluminio
se han diseñado unos tabiques de cerramiento
a modo de paneles de cierre con terminación
exterior de madera de ciprés.
Se utilizan las mismas en los accesos, circulación
de plantas altas en donde hay ingreso de luz cenital
para oficinas, circulación principal pública
de planta baja, en patios interiores y entradas de
luz en cubierta de techos.
La resolución adoptada para los cerramientos
de los espacios de trabajo "oficinas" se
utiliza un sistema de tabiques armados en seco
tipo "Durlock" compuestos
de perfilerías de chapa plegada galvanizada
y revestidos en ambas caras con placas de roca
de yeso con juntas cerradas, sujeto todo por medio
de
tornillos auto perforantes y terminado con pintura
látex para interiores. Para casos específicos
se utilizan dobles placas y aislación acústica
en dichos tabiques. Las carpinterías interiores
en general son marcos y puertas placas de madera.
La cubierta de techos es un paquete compuesto por
chapa trapezoidal color negro Número 25, clavadores
de madera, aislación de lana de vidrio, membrana
de barrera de vapor y aislación hidrófuga
y paneles fenólicos color blanco en la cara
visible desde el interior, todo sobre la estructura
antes mencionada. Las terminaciones de los extremos
y soluciones de encuentros en general son en chapa
color negro ídem espesor, conformando cenefas,
canaletas, etc. resueltas con estructura de tubos
metálicos soldados no aparentes. Cabe destacar
que a nivel de desagües pluviales hay 2 canaletas
intermedias en la cubierta principal repartiendo
la cantidad de agua de lluvia, primero entre los
patios interiores y el tramo final, hacia el canalón
de recolección ubicado más abajo.
Los pisos o solados interiores son rústicos
en el sector general de circulación pública,
y cerámicos para alto tránsito de
40x40 cm en los sectores de trabajo.
Los cielorasos son desmontables livianos de terminación
texturada suspendidos desde estructura metálica
compuesta de perfilería de aluminio color.
Las instalaciones tienen un mismo sentido de control
y distribución desde el sector de apoyo
o servicios del edificio ubicado sobre el lateral
alto
de la nave principal.
En éste espacio en diferentes sectores en
el sentido longitudinal y en diferentes alturas,
se encuentran ubicados los controles de energía
eléctrica, calefacción, computación,
incendio, cloacas, agua fría y agua caliente.
Se utilizan materiales aprobados por las normativas
específicas y vigentes para cada tipo de instalación,
como caños semipesados y bandejas porta cables
y cables ignífugos eléctricos, cañería
de hierro negro revestido epoxi para gas, PVC 3,2
para desagües cloacales, polipropileno termo
fusión para agua, cañería especial
para transmisión de agua caliente para calefacción,
etc.
El sistema de manejo y transmisión de datos
y telefonía se desarrolla por piso ductos
que atraviesan los espacios de trabajo en forma
de peine.
La estrategia de ubicación y manejo de las
instalaciones tiene directa relación con el
diseño de las bandejas y las plantas en general,
permitiendo modificaciones de espacios físicos
de trabajo a futuro sin alterar ubicación
de sanitarios, etc.
La calefacción es por pisos y losas radiantes,
controlada independientemente por sectores permitiendo
un importante control y ahorro de energía.
El canalón de recolección de agua de
lluvia alimenta tanques de agua subterráneos
que se utilizan, previo bombeo y filtrado por decantación
para las descargas directas de inodoros y riego de
espacios verdes, atendiendo la reducción del
consumo de agua potable para tal fin.
Existen en el edificio dos elevadores o ascensores,
uno público ubicado en el sector central y
otro de uso interno o privado para el personal ubicado
en el sector de acceso de los empleados en general,
ambos diseñados a partir de un tubo o núcleo
de hormigón armado y en relación directa
con escaleras. Hay además escaleras complementarias
públicas metálicas que distribuyen
la circulación principal a las bandejas desde
la planta baja.
El sistema de seguridad contra incendio y las salidas
de emergencia está de acuerdo a las ordenanzas
vigentes, contemplando los anchos de puertas, ubicaciones
de gabinetes de mangueras de incendio y extintores.
El equipamiento es de sillas, escritorios, muebles,
en general construidos con placas de fibra de madera
revestida con melanina y tapacantos de madera de
lenga, diseñados para cada destino y uso en
forma diferente, ya sea mostradores de atención
al público, escritorios individuales, mesas
de trabajo, cajas de cobro, etc.
b) Edificio Concejo Deliberante
La imagen y selección de materiales y detalles
constructivos está directamente relacionada
con el edificio del palacio municipal, pero el
sistema estructural es diferente, ya que se trata
de columnas
y tabiques de hormigón armado y a la vista
que se fundan por medio de bases continuas de gran
dimensión arriostradas entre sí.
Estas columnas y tabiques sustentan dos losas del
tipo
casetonado alivianado y una tercera bandeja metálica.
Todo resuelto en función de las normativas
antisísmicas vigentes.
La resolución de la estructura y cubierta
de techos es metálica y liviana no aparente
desde el interior, dejando a la vista un cielorraso
suspendido de placas de roca de yeso con juntas cerradas
y terminado con pintura látex.
Reforma de construcciones existentes (2):
a) Edificio histórico
La intervención planteada en este edificio
es la siguiente: Preservando la forma y ornamentaciones
existente y original de la ochava y recuperando su
color original (previa consulta a reconocido historiador
local), se realizan sólo trabajos de completamiento
de mamposterías en el perímetro de
los volúmenes, sobre las calles Mitre y San
Martín. Se eliminan la mayoría de los
tabiques divisorios no portantes interiores y se
genera un espacio del tipo entrepiso liviano (estructura
metálica perdida y hormigón alivianado)
con sus correspondientes cielorrasos del tipo desmontable
desde estructura metálica liviana, en cada
uno de los volúmenes laterales al hall de
ingreso, vinculados entre sí, a través
de un conector aéreo metálico liviano
con cerramiento de vidrio.
La conexión del edificio original con el
nuevo es a través de una losa alta de hormigón
armado perforada, sostenida por columnas circulares
y desde bases de hormigón arriostradas.
Esta losa se conecta a su vez con el canalón
del edificio principal de forma muy liviana y traslúcida
por medio de aberturas de aluminio color.
b) Ex Hacienda
En este edificio la intervención es aún
menor, tratando de preservar la imagen exterior,
sólo se interviene en el interior modificando
mamposterías no portantes, generando nuevos
espacios de trabajo para las oficinas de "Tribunal
de faltas y Defensa al Consumidor" a través
de tabiquerías metálicas livianas
revestidas en placas de roca de yeso tipo "Durlock".
Se generan a su vez, en los sectores en contacto
con el nuevo edificio proyectado, cerramientos
y tratamientos exteriores con revoques y pintura.
c) Biblioteca
Preservando el ingreso actual, se reforma el sector
de contacto con el nuevo edificio a nivel de carpinterías,
a través de una carpintería de aluminio
color. En el interior se reforman tabiques no portantes
y se genera una escalera para acceso a sector de
archivo de libros, ubicado en planta alta existente.
En general se trata de reformas de tabiquerías,
con sus respectivos tratamientos de revoques y
pintura.
Tratamientos
exteriores en general (3):
Se trata de la unificación de veredas, parquización,
incorporación de especies nativas y equipamiento
urbano tanto del perímetro de veredas
urbanas, como de los espacios "patios" interiores,
descubiertos en general y playa de estacionamiento.
Se proponen luminarias metálicas, cestos de
residuos combinados de metal y madera, bancos de
hormigón y madera y solados rústicos.
|
| |
| |
Ficha técnica
Nombre: Proyecto
Edificio Municipal de Esquel
Premio: Ganador del
Concurso Provincial de Anteproyectos Edificio
Municipal Ciudad de Esquel
Autores: EESCALA (Mar del Plata) y Arq. Marcelo Ferretti (Esquel)
Lugar: Calle San Martín e/ Perito Moreno y Mitre, Ciudad de Esquel,
Provincia de Chubut, Argentina
Comitente:
Municipalidad de Esquel
Programa: 1) Construcción nueva, correspondiente al edificio principal
y al edificio del Concejo Deliberante. 2) Reforma de las construcciones existentes,
edificio histórico, ex Hacienda y Biblioteca. 3) Tratamientos exteriores
en general.
Superficie: 5200 m2
Fecha: 2010
Ver
planos del proyecto
|
|
Ver
planos del proyecto
El proyecto presentado por el
equipo conformado por EESCALA Estudio
de Diseño
Arquitectónico (Mar del
Plata) y Arq.
Marcelo Ferretti (Esquel) resultó ganador del
Concurso Provincial de Anteproyectos Edificio
Municipal Ciudad de Esquel.
Principios rectores básicos
Articulación de sitios y edificios de interés
patrimonial.
Conservación de la escala apropiada para la ciudad
sin provocar rupturas notorias.
Introducción de nuevos espacios de carácter
público.
Adecuación del proyecto a los condicionantes climáticos.
Selección de lenguajes y materiales conocidos
por la gente local.
Utilización de un lenguaje basado en la adecuación
a lo pre-existente y no en la adición compositiva.
Asegurar buena conectividad interna entre los diferentes
componentes del programa.
Lograr fluidez tanto en los trámites de la gente,
como en el funcionamiento interno de la municipalidad.
Reforzar la transparencia de la gestión pública
local.
Incorporar principios de sustentabilidad.
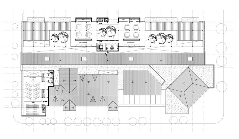
Planos
Realice click en los links para ver los planos.
[1] Planta
baja
[2] Planta
1º piso
[3] Planta
2º piso
[4] Corte
AA
[5] Corte
BB
[6] Corte
CC
[7] Corte
DD
[8] Corte
EE
[9] Corte
FF
[10] Corte
GG
Implantación
El nuevo edificio se ubica consolidando la manzana,
cosiendo los vacios producidos entre los edificios
a conservar.
Se pretende enfáticamente recomponer las fachadas
sobre las tres calles, generando así un borde
continuo que resalte el pórtico de acceso a
través del cual el edificio histórico
mira a la plaza. Habiéndose conformado claramente
el perímetro del edificio, se compone un gran
vacío interior que actúa como plaza cívica
y complemento y extensión de la plaza San Martín.
Se consolida así una "calle peatonal cubierta"
que atraviesa la manzana desde el acceso principal
hasta
un acceso secundario ubicado por calle Perito
Moreno.
Esta calle logra integrar todas las edificaciones
proyectadas, sin quitarles independencia y autonomía, pero
dándole a toda la intervención
una clara unidad.
Esta "calle" además permite reducir
el perímetro exterior de los edificios a construir,
re-utilizando las fachadas traseras de las edificaciones
conservadas, como cara útil. De esta manera se
minimizan las caras de la edificación expuestas
al exterior (reduciendo su respectivo costo), optimizando
así el presupuesto asignado para la intervención.
El otro gran vacío propuesto, es un gran patio
accesible desde Perito Moreno, donde se encuentran las
cocheras descubiertas (con posibilidad de cubrirse a
futuro) y la entrada independiente de empleados. Este
espacio, podría albergar eventualmente,
posibles ampliaciones del edificio.
Morfología
Considerando que la intervención propone conservar
el edificio histórico y el edificio actual de
Hacienda/Biblioteca, ambos con lenguajes y estilos diferentes,
la morfología y los materiales a utilizar en el
nuevo edificio juegan un papel fundamental en la inserción
de esta nueva pieza, tanto en el terreno, como en su
entorno urbano. Por lo tanto, se busca minimizar su impacto
visual, evitando destacarlo como un agregado, o como
un tercer estilo arquitectónico. Valiéndose
de materiales similares, se proponen para el nuevo edificio
fachadas de ladrillo visto y carpinterías repetitivas,
que incorporen al edificio ladrillero (de Hacienda/Biblioteca)
en un basamento continuo a lo largo de toda la manzana,
que permita resaltar al edificio histórico tanto
por su color (se decide recuperar el color original de
este edificio, aludiendo así a su importancia
histórico-simbólica), como por sus materiales,
por su rotación a 45 grados y por un pequeño
retranqueo en planta, que lo realce como pieza
a distinguir y como portal de acceso a la Municipalidad.
Por encima de este basamento continuo ladrillero,
el nuevo edificio será trabajado con transparencias
(vidrio) y una repetición alternada de paneles
opacos verticales (paneles de madera) que buscan enfatizar
la longitudinalidad del basamento y la liviandad de la
cubierta. Se busca disminuir los nuevos elementos compositivos,
a fin de reducir perceptualmente la escala del edificio.
Independientemente del basamento perimetral del edificio,
los volúmenes que se encuentran en el interior
del edificio, las caras sur de los patios internos, y
la sucesión de volúmenes de servicio que
dan hacia el patio de cocheras, han sido trabajados en
piedra, buscando una caracterización del interior
a través de las texturas y la luz, diferente
a la de las fachadas.
Así como se plantea el acceso a la Municipalidad
por la esquina de Mitre y San Martín a través
del edificio histórico, sobre la otra esquina,
a las calles San Martín y Perito Moreno, se propone
la entrada al Concejo Deliberante, identificable gracias
a un gran semicubierto que resalta la entrada y sutilmente
diferencia el poder Ejecutivo del Poder Legislativo.
Del mismo modo y siguiendo con el mismo criterio de independencia
de poderes se propone el acceso a Tribunal de Faltas
desde el exterior sobre calle San Martín.
Funcionamiento
El edificio se estructura a partir de una calle
cubierta que atraviesa la manzana de lado a lado.
Esta calle
hace de complemento o extensión de la plaza
San Martín y actúa como lugar de
encuentro, diálogo y debate. Se busca acentuar
su carácter
de "lugar exterior cubierto y protegido",
incorporándose en el mismo elementos naturales
como árboles, piedras, plantas colgantes,
y lucarnas que permitan el ingreso de la luz natural.
Los árboles estructurales de madera que
en ella se encuentran ayudan a enfatizar su carácter
convocante y jerárquico. A ambos lados de
la "calle
cubierta" en el nivel de acceso se encuentran
las funciones más convocantes. A un lado
se ubican las secretarías que requieren
mayor dispersión
de gente y amplios lugares de espera. Sobre el
otro lado se proponen diversos usos: entrada a
la gran sala
general de reuniones y usos múltiples, relaciones
con sectores interiores de la biblioteca, y conexiones
con el concejo deliberante y defensa del consumidor,
y la posibilidad de ubicar una cafetería
en relación directa al acceso.
Los niveles superiores están caracterizados por
un escalonamiento en corte que acompaña la pendiente
de la cubierta y que permite un balconeo constante hacia
la calle, englobando a este espacio como corazón
del proyecto.
Todas las áreas de trabajo están concebidas
como espacios abiertos que representan y fomentan
la transparencia gubernamental, dejando hacia atrás
las oficinas cerradas que requieren mayor privacidad
y los núcleos de servicio. Los tres patios
interiores llevan luz natural a los espacios de trabajo
y permiten
la ventilación del edificio en épocas
calurosas, logrando la circulación cruzada
de aire gracias a las carpinterías ubicadas
por sobre la calle central.
Estos patios están
caracterizados en forma independiente por el tipo
y color de los arboles
que allí se encuentran -ñire, raulí y
fresnos-, buscando dar una identidad y carácter
especial a cada espacio. Se decide ubicar en el nivel
2 las salas de reuniones de las secretarías,
de manera que desde allí puedan ser accesibles
a todas las áreas, y obteniendo así un
espacio de mayor intimidad, dominante para con el
resto de las
circulaciones públicas. Estos espacios son
flexibles y divisibles en 4 salas más pequeñas
de manera de optimizar su rendimiento. Las lucarnas
propias
de estos espacios permiten la entrada de luz natural
y vistas
desde la altura hacia el Cerro la Cruz.
A su vez, este nivel está pensado para albergar
futuros crecimientos, tanto nuevas dependencias como
extensiones de las actuales. Estos espacios podrían
ser completados a futuro según requerimiento,
y de una manera rápida y sin mayores complicaciones.
Las secretarías se han pensado de manera de posibilitar
diferentes armados y flexibilidad de usos, pero a su
vez generando una clara definición de los espacios
públicos, los lugares de espera, los espacios
de atención, los espacios de trabajo, las oficinas,
y las circulaciones privadas. Estas últimas cosen
el edificio de un extremo a otro, y del primero al último
nivel, permitiendo una fluida conexión interna
entre secretarías.
Sobre la circulación principal o calle pública
se encuentra ubicado un salón de reuniones de
uso general, el que puede ser utilizado específicamente
para desarrollar trabajos desde Secretarías, como
eventos relacionados con las funciones del edificio.
El mismo tiene a su lado (fuera del programa) ideado
un espacio (café) cuyo propósito es servir
de apoyo al salón de reuniones, considerando
la posibilidad de ser propio o concesionado.
En función de los requerimientos del programa,
se reformaron los actuales edificios correspondientes
a la "Biblioteca" y "Hacienda",
como así también las funciones interiores
del edificio histórico de la esquina de la
Plaza. La Biblioteca y el Tribunal de faltas poseen
accesos
independientes y exteriores desde la calle San Martín,
mientras que la oficina de Defensa al Consumidor
tiene directa relación con el edificio nuevo
y la "calle
cubierta".
El edificio histórico es re-jerarquizado en
su valor patrimonial al pasar a ser el acceso principal
al edificio. Este espacio sirve además como
lugar de exposiciones temporales, cartelera de información,
y comunicación con la gente. En sus laterales,
las funciones se encuentran directamente relacionadas
con la Intendencia y Gobierno de la Municipalidad.
En planta alta la reforma contempla la ubicación
de la intendencia y su sala de reuniones, conectándolas
a través de un puente liviano sobre el acceso,
dotando así al intendente de un espacio jerárquico
con vistas sobre la plaza, el ingreso y el corazón
del proyecto.
Imágenes
Realice click sobre las imágenes para ampliarlas.
|