Arquimaster - Medio digital de arquitectura, diseño y construccion Estas visitando la version anterior,
para ver la version actual realiza click aca

 

     
       
 
Climanet - Doble Vidrio Hermetico DVH
Matyser - Materiales y servicios para la construccion
Cursos de arquitectura y diseño de espacios
Anclaflex
Curso Introducción a Revit: Modela tus proyectos arquitectonicos
Bara
Remodelación y Ampliación del Aeropuerto Internacional Alte. Marcos Zar (Trelew, Chubut, Argentina) - Arq. Juan Carlos Sabaté
Curso Fotorrealismo de espacios interiores con Lumion desde cero
 

Ficha técnica
Obra: Aeropuerto Internacional de Trelew Alte. Marco A. Zar.
Comitente: London Supply S.A.
Proyecto: Arq. Juan Carlos Sabaté
Desarrollo de proyecto y coordinación: Arq. Gabriela Salvaneschi
Proyecto estructural: Ing. Jorge Fontán Balestra
Gerenciamiento de proyecto y obra: Sabaté & Asociados
Colaboradores: Arq. Tabaré Ferreyra, Arq. Verónica Gordillo
Dirección de obra: Arq. Fernando Diaz
Colaborador: Arq. Christian Mistó
Ubicación: Ciudad de Trelew, Provincia de Chubut, Argentina
Superficie cubierta: 4143 m2
Tiempo de obra: 10 meses
Inauguración: agosto 2010

Ver planos de la obra

Transformándose en el primer Aeropuerto Temático de la Argentina la propuesta para la remodelación y ampliación del Aeropuerto Internacional de Trelew se basó en dos aspectos relevantes:

Optimizar el funcionamiento de la terminal aérea, y transformar la imagen conceptual, logrando jerarquización, integración y unidad edilicia.


Imagen

La fachada del edificio existente no era homogénea ya que, correspondía a tres etapas de obras diferentes, por este motivo se puso especial énfasis en unificar la misma, plasmándose arquitectónicamente a través de dos grandes pórticos, construidos en Pórfido Patagónico, piedra natural de la zona y de excelencia en el mundo, que le otorga a la obra una fisonomía estética diferencial y un valor agregado regional.

Asimismo estos pórticos contribuyen a una lectura unificada de la fachada, brindando al edificio la identidad y el carácter de la majestuosidad de la Patagonia, acentuando y diferenciando los accesos principales.

La misma piedra es reconocida en el interior sirviendo de encuadre al amplio Hall de Arribos.

En el espacio central y a modo de atractivo turístico se recreó un Jardín Temático, con elementos de la época paleontológica que brindarán gran luminosidad y calidez al Hall.

En diversos sectores del Aeropuerto se conciben, zonas jerarquizadas para exponer y exhibir elementos arqueológicos reforzando el interés turístico y el bienestar del pasajero, valorizando lo autóctono y regional.


Funcionalidad

La propuesta funcional del nuevo proyecto es concebida en dos plantas, lo cual permite convertir la planta alta en Sala Embarque, facilitando esto el uso de pasarelas de embarque/desembarque móviles de pasajeros a las aeronaves.

El conjunto presenta dos Accesos, diferenciándose claramente los sectores de Partidas y Arribos de pasajeros.

Los mismos son remarcados con la incorporación de marquesinas para la protección de los pasajeros al descender y ascender de los vehículos.

Se refuerza claramente la diferenciación de áreas de uso restringido (Lado Aire) y de uso público (Lado Tierra), optimizando las circulaciones y la seguridad.


Etapabilidad

La obra debió realizarse de tal manera que permitiera la operación del aeropuerto sin interferir en su normal funcionamiento.

Para ello se programó la ejecución en 3 etapas continuas, tratando de minimizar al máximo posibles molestias a los pasajeros.


Planos
Realice click en los links para ver los planos.

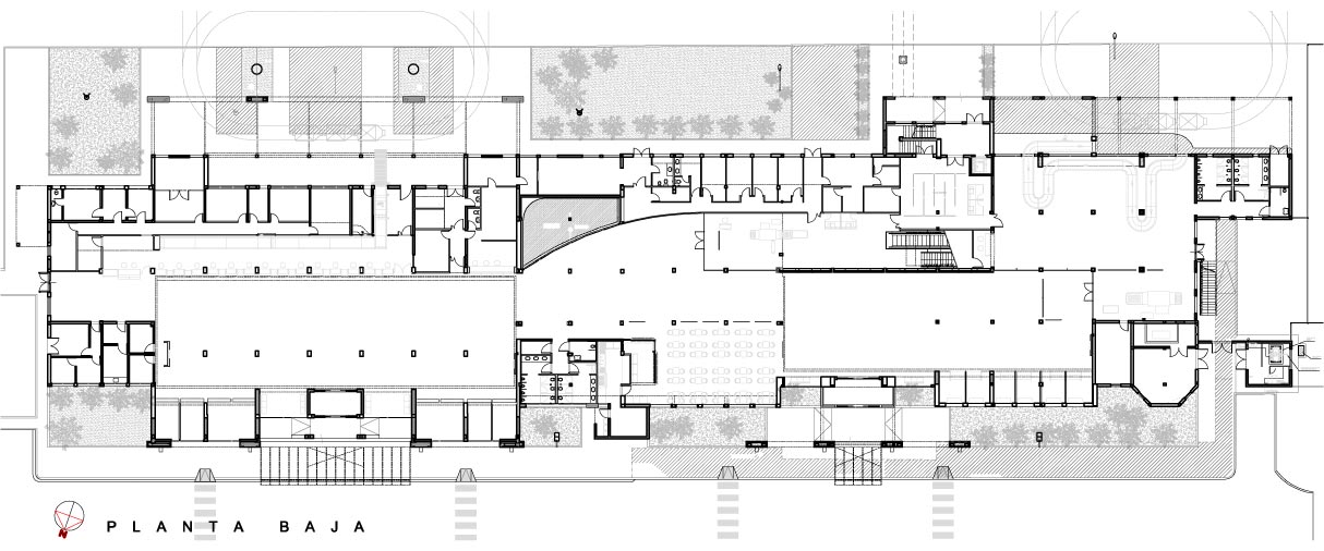
[1] Planta baja
[2] Planta alta
[3] Vista norte


Imágenes
Realice click sobre las imágenes para ampliarlas.

Ver ficha técnica y datos de contacto al pie de página.


Acerca del proyectista
Juan Carlos Sabaté es Arquitecto, titular del estudio Sabaté Asociados. Graduado en 1975 en la Universidad de Buenos Aires. Fue docente de la Cátedra de Diseño de la Facultad de Arquitectura de la Universidad de Buenos Aires y ha obtenido premios en Concursos de Arquitectura y otros.

Fue Director General Adjunto de Planeamiento de la Municipalidad de la Ciudad de Buenos Aires. Realizó para la Unión Obrera de la Construcción varios obras de Centros Hospitalarios y Gremiales siendo Director de Arquitectura.

El Arq. Juan Carlos Sabaté viene desarrollando servicios relativos a Proyectos y Dirección de Obra desde 1974.

Desde 1995 realiza Proyectos de Arquitectura y Gerenciamiento de Proyecto y Construcción y asesoramiento aeroportuario, participando de los siguientes desarrollos:

Ampliación y remodelación del Aeropuerto Internacional Alte. Marcos Zar, Trelew, Chubut, Argentina (2009-2010)

Ampliación Aeropuerto Internacional Malvinas Argentinas, Ushuaia, Argentina (2006-2007)

Ampliación Aeropuerto Internacional El Calafate, El Calafate, Santa Cruz (2005-2006)

Emprendimiento Turístico, Cultural y Medio Ambiental Eco Lodge Iguazú (2005)

Ampliación Aeropuerto Trelew, Chubut, Argentina (2004)

Ampliación Aeropuerto Bahía Blanca, Buenos Aires, Argentina
(2004)

Plan Federal Aeroportuario Argentina, Buenos Aires, Argentina (2002-2003)

Aeropuerto Internacional El Calafate, El Calafate, Santa Cruz
(1999-2000)

Aeropuerto Internacional Malvinas Argentinas, Ushuaia, Argentina (1995-1999)

Además ha realizado clínicas asistenciales, establecimientos comerciales, establecimientos industriales, oficinas comerciales, etc.

 
Curso Infoarquitectura de interiores con Unreal Engine 4
 
 
Si usted es profesional, este es su espacio para publicar su obra o proyecto (en forma gratuita). Para más información visitar la sección contacto: click aquí.
   
   

Noticias
informes especiales
bienal de arquitectura BA11
bienal de arquitectura BA09
publicaciones

Artículos
notas y artículos de interés
arquitectura legal
diseño de iluminación
software de arquitectura y diseño

Recursos
curso de decoracion (gratis/online)
archivo temático
descargas externas
curso de croquis (gratis/online)

Precios y costos
precios de materiales, indices y
costos m2 de construcción

Proyecto
obras construidas
proyectos para concursos
proyectos de estudiantes
arquitectos destacados
obras destacadas

Diseño
diseño industrial y mobiliario
diseño interior y decoración
Casa FOA 2009
Casa FOA 2010
Casa FOA 2011
Casa FOA 2012
Casa FOA 2013
Casa FOA 2014
Estilo Pilar 2010
Estilo Pilar 2012

Construcción
materiales y tecnologías
novedades de empresas
sector inmobiliario

Agenda
cursos y seminarios
congresos y bienales
charlas y eventos
exposiciones y muestras
concursos

Facultad
becas y subsidios
posgrados y maestrías
donde estudiar

Varios
ofertas laborales arquitectura, diseño y construccion
suscripcion newsletter (gratis)
redes sociales
publicidad

Arquimaster en Facebook
Arquimaster en Twitter
Arquimaster en LinkedIn
Arquimaster en Pinterest