Arquimaster - Medio digital de arquitectura, diseño y construccion Estas visitando la version anterior,
para ver la version actual realiza click aca

 

     
       
 
Climanet - Doble Vidrio Hermetico DVH
Matyser - Materiales y servicios para la construccion
Cursos de arquitectura y diseño de espacios
Anclaflex
Curso Introducción a Revit: Modela tus proyectos arquitectonicos
Bara
Proyecto Casa Sustentable (Posadas, Misiones, Argentina) - Arq. Bárbara Berson (1er. Premio en concurso)
Curso Postproducción de planimetría arquitectónica en Photoshop
 

Ficha técnica
Proyecto: Casa Sustentable
Autor: Arq. Bárbara Berson
Concurso: 1er. Concurso de Casas Sustentables CAPBA AAPE
Premio: 1er. Premio
Ubicación: Posadas, Misiones, Argentina
Fecha: 2010

Ver planos del proyecto

El proyecto de la arquitecta Bárbara Berson obtuvo el 1er. Premio en el 1er. Concurso de Casas Sustentables, "Aplicando el sentido común para proyectar y construir de manera eficiente",
organizado por el Colegio de Arquitectos de la Provincia de Buenos Aires (CAPBA)
y la Asociación Argentina de Poliestireno Expandido (AAPE).


Memoria del proyecto

Se ha realizado el análisis del clima y se pudo detectar que la temperatura efectiva en días típicamente cálidos de verano es superior a 26.3 ºC.

Las temperaturas de verano, se encuentran en la zona 3, este es el momento del año donde utilizaremos ventilación cruzada, ya que las temperaturas superan el límite máximo de confort.

Esto producirá en las personas una sensación de refrescamiento, aumentando la evaporación de humedad de la piel.

En los meses de otoño y primavera la temperatura y humedad se encuentran muy cerca de la zona de confort, durante el día.

En los meses de invierno, nos encontramos en la zona 7, por lo tanto vamos a requerir sistemas solares pasivos, buena orientación de los principales locales y buena aislación térmica.

La vivienda se encuentra en Posadas, Misiones.

Para proyectar esta vivienda se ha realizado un análisis detallado del clima de la región.

De aquí se obtuvieron los siguientes datos:

Existen temperaturas máximas de bulbo seco superan los 34 ºC y las medias superan los 26 ºC.

Los vientos predominantes son del norte sur y este.

Las precipitaciones medias anuales alcanzan los 1700 mm y es en los meses de enero y octubre cuando se producen las lluvias más abundantes.

La vivienda busca conectarse fuertemente con su entorno, de modo que cada decisión a la hora de diseñarla contempla y da respuesta a cada uno de los problemas de su emplazamiento.

Se han desarrollado los siguientes criterios bioambientales al momento de proyectar la vivienda.


Fragmentación de la vivienda

Debido a que la casa se encuentra en un clima cálido se toma la decisión de fragmentarla generando de esta forma más espacios con conexión a las brisas que refrescan la vivienda, favorecer la corriente de aire en el interior de la misma.


Ventilación cruzada

Espacios angostos conforman la vivienda para permitir la ventilación cruzada de los locales.


Orientación Norte/Sur

Todos los espacios buscan la mejor orientación tanto de visuales como para protección a través de los aleros.


Volumen elevado

El sector de los dormitorios se encuentra elevado del terreno de forma solidaria con el volumen que se encuentra por detrás para que las brisas puedan llegar a refrescarlo.


Muros aislados/no aislados térmicamente

Existen diferentes muros debido a que los muros exteriores deben estar aislados con EPS para proteger a los ambientes del clima exterior.


Cubiertas aisladas/no aisladas térmicamente

Las cubiertas que se encuentran sobre el estar y los dormitorios están aisladas térmicamente con EPS para que no ingrese el calor en el verano ni se pierda temperatura en invierno.

El sobre techo no se encuentra aislado, es el encargado de dar sombra de la cubierta de los dormitorios.


Sobre techo

En el espacio ocupado por los dormitorios podemos encontrar un sobre techo, el cual es utilizado como embudo para atraer las brisas hacia el sector del estar.

También tiene la función de proteger a las habitaciones de los rayos del sol.


Aleros reguladores

Estos son los encargados de regular el ingreso del sol al interior de la vivienda, según la necesidad de invierno y restringiendo la entrada en verano.


Espacios exteriores de sombra

Debido al clima tan cálido de la zona los espacios exteriores de uso son muy importantes.

Es por eso que existe una pérgola que recorre la casa longitudinalmente, donde cada uno de los locales puede generar una expansión a esta.


Cubiertas recolectoras

Las cubiertas de esta vivienda cumplen una función de recolectar el agua de lluvia para el llenado de la pileta y el riego de la huerta, de esta forma se produce un ahorro de agua potable.


Cubiertas captadoras de energía

En el sobre techo se colocarán colectores solares, que se encuentran en el ángulo necesario para obtener una mejor captación solar, la mayor cantidad de horas.


Huerta

La huerta será la encargada de abastecer en parte el alimento de la familia.


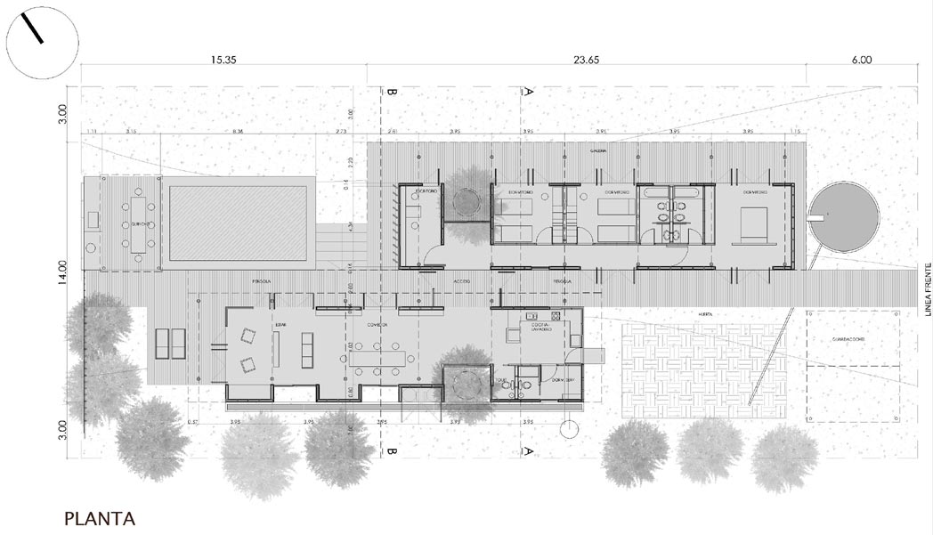
Planos
Realice click en los links para ver los planos.

[1] Implantación
[2] Planta baja
[3] Planta de techos
[4] Corte 1
[5] Corte 2
[6] Vista este
[7] Vista oeste
[8] Vista norte
[9] Vista sur


Imágenes
Realice click sobre las imágenes para ampliarlas.

Ver ficha técnica y datos de contacto al pie de página.

 
Curso Dibujo arquitectonico con acuarela y tinta
 
 
Si usted es profesional, este es su espacio para publicar su obra o proyecto (en forma gratuita). Para más información visitar la sección contacto: click aquí.
   
   

Noticias
informes especiales
bienal de arquitectura BA11
bienal de arquitectura BA09
publicaciones

Artículos
notas y artículos de interés
arquitectura legal
diseño de iluminación
software de arquitectura y diseño

Recursos
curso de decoracion (gratis/online)
archivo temático
descargas externas
curso de croquis (gratis/online)

Precios y costos
precios de materiales, indices y
costos m2 de construcción

Proyecto
obras construidas
proyectos para concursos
proyectos de estudiantes
arquitectos destacados
obras destacadas

Diseño
diseño industrial y mobiliario
diseño interior y decoración
Casa FOA 2009
Casa FOA 2010
Casa FOA 2011
Casa FOA 2012
Casa FOA 2013
Casa FOA 2014
Estilo Pilar 2010
Estilo Pilar 2012

Construcción
materiales y tecnologías
novedades de empresas
sector inmobiliario

Agenda
cursos y seminarios
congresos y bienales
charlas y eventos
exposiciones y muestras
concursos

Facultad
becas y subsidios
posgrados y maestrías
donde estudiar

Varios
ofertas laborales arquitectura, diseño y construccion
suscripcion newsletter (gratis)
redes sociales
publicidad

Arquimaster en Facebook
Arquimaster en Twitter
Arquimaster en LinkedIn
Arquimaster en Pinterest