Arquimaster - Medio digital de arquitectura, diseño y construccion Estas visitando la version anterior,
para ver la version actual realiza click aca

 

     
       
 
Climanet - Doble Vidrio Hermetico DVH
Matyser - Materiales y servicios para la construccion
Cursos de arquitectura y diseño de espacios
Anclaflex
Curso Introducción a Revit: Modela tus proyectos arquitectonicos
Bara
Loft en Barcelona (España) - YLAB arquitectos
Curso Postproducción de planimetría arquitectónica en Photoshop
 

Ficha técnica
Nombre: Loft en Barcelona
Arquitectura e interiorismo: YLAB arquitectos
Autores: Tobias Laarmann y Yolanda Yuste López
Proyecto: Reforma interior de vivienda
Ubicación: Barcelona
Promotor: Privado
Superficie: 100 m2 interior y 100 m2 terraza
Año: 2010
Fotos: Raul Candales con Esther Algara
Sitio web: http://www.ylab.es

Ver planos de la obra

English version

El proyecto consiste en la reforma interior de una vivienda situada en la planta principal de una finca antigua en el corazón de un barrio tradicional de Barcelona, con elementos singulares como techos altos o una gran terraza en el patio de manzana.

La propuesta plantea una intervención arquitectónica integral sobre el espacio existente, con una planta muy profunda y estrecha y tan sólo dos fachadas en los extremos, para convertirlo en un loft abierto concebido para tener el máximo de luz y ventilación.

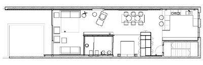
La nueva distribución consiste en un gran espacio común diáfano y espacioso que discurre de forma continua de fachada a fachada, con un núcleo privado semi-cerrado formado por el dormitorio en suite y el aseo de cortesía.

El espacio común, compuesto por el vestíbulo de entrada, el comedor, la biblioteca-estudio con la sala al fondo, en la fachada que da a la terraza, y por la cocina con isla, en la fachada frontal a la calle, consiste en una secuencia de espacios situados a lo largo de una larga pared de obra de ladrillo macizo de elaboración manual.

El pavimento antracita de cemento continuo y la elección de materiales y tonos afines contribuye a reforzar el efecto de continuidad de un extremo a otro de la planta.

El núcleo semi-cerrado que contiene el dormitorio en suite y el aseo se planteó como un gran mueble de madera de roble situado de forma lateral en el centro de la planta, de forma que pudiera ser ventilado e iluminado a través del resto del espacio.

Dos hojas correderas ocultas en el mueble permiten cerrar el espacio y garantizar la privacidad necesaria: la primera para cerrar el dormitorio principal y la segunda como divisoria de la sala, limitando un espacio amueblado con un sofá-cama que se convierte así en una habitación de invitados ocasional.

Este mueble contiene además los distintos espacios de almacenaje de la vivienda como los armarios del vestíbulo de entrada, los del dormitorio, o la librería de la biblioteca-estudio.

Dentro del núcleo privado, el baño principal y el aseo están situados dentro de un marco de madera de roble macizo quedando enmarcados y elevados.

Los cerramientos laterales, al dormitorio y a la sala, así como la separación interior entre el baño y el aseo, están constituidos por hojas deslizantes de vidrio traslúcido que permiten la iluminación y ventilación del dormitorio, conectando todos los ambientes entre sí.

Interiormente se han aplacado las superficies interiores en mosaico de Bisazza y espejos cortados a medida, produciendo un juego de brillos y reflexiones cuyo objetivo es conseguir que la luz se multiplique haciendo del baño un espacio brillante y sofisticado, en contraposición con el resto de ambientes de la vivienda, cálidos y tranquilos.


Planos
Realice click en los links para ver los planos.

[1] Planta
[2] Corte


Imágenes
Realice click sobre las imágenes para ampliarlas.

Ver ficha técnica y datos de contacto al pie de página.


Acerca de los proyectistas
YLAB arquitectos es un estudio de arquitectura de procedencia española-alemana. Tras una amplia experiencia colaborando con importantes estudios internacionales como Renzo Piano Building Workshop, Norman Foster o Jean Nouvel, YLAB funda su estudio en Barcelona en el año 2003. Desde entonces YLAB trabaja en el diseño, gestión y construcción de proyectos de arquitectura e interiorismo.


English version

Loft in Barcelona

The project consists of the inner refurbishment of an apartment located in an old property in the heart of a traditional district of Barcelona, with singular elements like high ceilings with wooden beams or a great terrace in the inner patio.

The proposal is an integral architectonic intervention on the existing space, with a very deep and narrow floor and only two facades in the ends, to turn it into an open loft conceived to have the maximum of light and ventilation.

The new distribution consists of a great open space communal area with a semienclosed private nucleus formed by the suite and the guess bathroom.

Architecture and interior design by YLAB arquitectos.

YLAB Arquitectos is a full service architectural design firm based in Spain specialized in modern design.

YLAB offers a wide range of technical and management services to respond to both commercial and private clients needs integrated services in contemporary design and construction.

 
Curso Dibujo arquitectonico con acuarela y tinta
 
 
Si usted es profesional, este es su espacio para publicar su obra o proyecto (en forma gratuita). Para más información visitar la sección contacto: click aquí.
   
   

Noticias
informes especiales
bienal de arquitectura BA11
bienal de arquitectura BA09
publicaciones

Artículos
notas y artículos de interés
arquitectura legal
diseño de iluminación
software de arquitectura y diseño

Recursos
curso de decoracion (gratis/online)
archivo temático
descargas externas
curso de croquis (gratis/online)

Precios y costos
precios de materiales, indices y
costos m2 de construcción

Proyecto
obras construidas
proyectos para concursos
proyectos de estudiantes
arquitectos destacados
obras destacadas

Diseño
diseño industrial y mobiliario
diseño interior y decoración
Casa FOA 2009
Casa FOA 2010
Casa FOA 2011
Casa FOA 2012
Casa FOA 2013
Casa FOA 2014
Estilo Pilar 2010
Estilo Pilar 2012

Construcción
materiales y tecnologías
novedades de empresas
sector inmobiliario

Agenda
cursos y seminarios
congresos y bienales
charlas y eventos
exposiciones y muestras
concursos

Facultad
becas y subsidios
posgrados y maestrías
donde estudiar

Varios
ofertas laborales arquitectura, diseño y construccion
suscripcion newsletter (gratis)
redes sociales
publicidad

Arquimaster en Facebook
Arquimaster en Twitter
Arquimaster en LinkedIn
Arquimaster en Pinterest