Arquimaster - Medio digital de arquitectura, diseño y construccion Estas visitando la version anterior,
para ver la version actual realiza click aca

 

     
       
 
Climanet - Doble Vidrio Hermetico DVH
Matyser - Materiales y servicios para la construccion
Cursos de arquitectura y diseño de espacios
Anclaflex
Curso Introducción a Revit: Modela tus proyectos arquitectonicos
Bara
Proyecto Casa Sustentable (Zona bioambiental I, Argentina) - Darío Berent (2do. Premio categoría estudiantes en concurso)
Curso Narrativa visual para ArchViz en 3D
 

Ficha técnica
Proyecto: Casa Sustentable
Autor: Darío Berent (Universidad Católica de Santa Fe)
Concurso: 1er. Concurso de Casas Sustentables CAPBA AAPE
Premio: 2do. Premio Categoría Estudiantes
Ubicación: Zona bioambiental I, Argentina
Fecha: 2010

Ver planos del proyecto

El proyecto de Darío Berent (Universidad Católica de Santa Fe) obtuvo el 2do. Premio Categoría Estudiantes en el 1er. Concurso de Casas Sustentables, "Aplicando el sentido común para proyectar y construir de manera eficiente", organizado por el Colegio de Arquitectos de la Provincia de Buenos Aires (CAPBA) y la Asociación Argentina de Poliestireno Expandido (AAPE).


Clima y región
Reflexiones preliminares


La zona determinada para el concurso (zona bioambiental I: muy cálida) está caracterizada por temperaturas relativamente elevadas con pocas variaciones estacionales, fuertes lluvias (1600 mm anuales) y un alto contenido de humedad, los vientos que predominan son del sudeste, nordeste y este. Los inviernos son cortos y los veranos prolongados.

La rigurosidad del clima ha desarrollado desde los habitantes primigenios de estas tierras una cultura que se manifiesta esencialmente en los espacios exteriores y abiertos en donde muchas actividades requieren tan sólo de un baño de sombra para poder desarrollarse. De esta manera, la conformación espacial de ciudades y pueblos han generado una forma de ocupación y apropiación de estos espacios muy particulares.


La propuesta

Concebimos a la vivienda como un ámbito de relaciones entre espacio interior y espacio exterior. Esta relación se resuelve y hace efectiva a partir de situaciones de transición, límites difusos, sombras, sonidos y texturas que facilitan las expansiones y estimulan las experiencias dentro y fuera de la casa.

La vivienda se emplaza en el terreno generando al menos dos patios con diferentes cualidades y jerarquías. Uno como prolongación lógica de los ambientes principales de la casa y otro con carácter de servicio alojando las instalaciones de abastecimiento y reutilización.

Los ámbitos sociales, intermedios e íntimos del programa quedan definidos a partir de una graduación funcional desde la calle hacia el interior del lote manteniendo una relación constante con el exterior.


Recursos y medioambiente

El ambiente natural aparece como criterio fundamental que modela nuestro proyecto. Esta manifestación encierra dos premisas básicas que involucran de manera directa al medio:

Una, que se expresa en ese ámbito de relaciones entre espacio interior y exterior con situaciones propositivas (estímulo).

Y otra, que orienta el manejo de los recursos disponibles optimizando la gestión de energías de la vivienda para reducir su impacto (eficiencia).

El estímulo y la eficiencia son premisas que nos acercan a una ecuación de sustentabilidad que involucre diversos factores: medioambiente, cultura, economía, racionalidad y calidad espacial.

Proponemos el manejo de recursos como:


Materia y técnica local

La elección de materiales y criterios constructivos persiguen economía y disponibilidad local. Estas operaciones se traducen en una la envolvente arquitectónica pensada como un cubrimiento de "espesor", en el cual se resuelvan las cuestiones hidrófugas y térmicas de manera sencilla.

Esta envolvente queda resumida por los siguientes elementos:

Limites superiores: una gran cubierta de chapas sobre estructura de madera que recolecta las aguas de lluvia, una losa canalón sobre el área de servicios.

Limites laterales: una pantalla vegetal orientada y paredes compuestas de ladrillo cerámico donde la disposición, tamaños y diseño de las aberturas son consecuentes con la iluminación natural, el recambio del aire interior y las expansiones visuales y físicas.


Sol y sombras

La casa está orientada con el principio de tapa ambiental/funcional (zona servicios), de esta manera los ambientes principales y de mayor uso reciben iluminación natural durante todo el día con sistemas de control de radiación solar. La disposición busca en forma pasiva evitar ganancias de calor en verano y lograrlas en invierno.


Aire y ventilación

El aire de los ambientes interiores es renovado por flujos de vientos de direcciones predominantes (nordeste y sudeste).


Vegetación y hojas

La vegetación participa en la protección solar aportando sombra y creando un microclima característico. Cumple múltiples roles:

Filtrar la luz. Controlar el porcentaje de radiación.

Oxigenar el aire y refrescarlo por evapotranspiración.

Limpiar la atmosfera.

Ofrecer aromas.


Reutilización de aguas pluviales

Las aguas de lluvia son dirigidas a una primera cisterna de acumulación (capacidad 10 m3), donde es elevada mediante bomba hacia un tanque de reserva (capacidad 1000 litros) para el abastecimiento de depósitos de inodoro, riego de jardín y derivación hacia tanque de expansión (para acondicionamiento térmico).

Mediante un sistema de rebose el excedente de esa cisterna es dirigida a los estanques de piedras, lirios y juncos acuáticos que actúan como filtros naturales de la piscina ecológica. El agua filtrada de dicha piscina se bombea a través de una tubería hasta la fuente del estanque principal, donde el círculo se cierra.


Reutilización de aguas grises

Las aguas jabonosas provenientes de lavabos y duchas, son utilizadas para humectación del suelo vegetal (hortalizas) mediante un proceso de filtrado natural compuesto por cámaras de registro, cámaras interceptoras, estanques de lirios, suelo drenado.


Aguas negras

Las aguas provenientes de inodoros son enviadas a un lecho nitrificante ubicado en el frente del terreno (sistema estático). Esta instalación prevé una futura conexión a red colectora (sistema dinámico).


Acondicionamiento térmico por sistema de agua enfriada

El proyecto contempla la posibilidad de climatización artificial mediante la circulación de agua enfriada. Es un sistema compuesto por un tanque de expansión provisto de aguas de lluvia, una unidad enfriadora central y otras individuales (fancoil) en cada ambiente que son alimentadas por cañería de distribución y retorno. Este sistema adopta las ventajas de los equipos centrales e individuales.


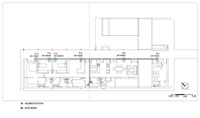
Planos
Realice click en los links para ver los planos.

[1] Implantación
[2] Corte longitudinal
[3] Corte transversal
[4] Vista NO
[5] Vistas NE y SO
[6] Planta de techos
[7] Detalle muro y aberturas
[8] Detalle cubiertas
[9] Detalle muro


Imágenes
Realice click sobre las imágenes para ampliarlas.

Ver ficha técnica y datos de contacto al pie de página.

 
Curso Dibujo arquitectonico con acuarela y tinta
 
 
Si usted es profesional, este es su espacio para publicar su obra o proyecto (en forma gratuita). Para más información visitar la sección contacto: click aquí.
   
   

Noticias
informes especiales
bienal de arquitectura BA11
bienal de arquitectura BA09
publicaciones

Artículos
notas y artículos de interés
arquitectura legal
diseño de iluminación
software de arquitectura y diseño

Recursos
curso de decoracion (gratis/online)
archivo temático
descargas externas
curso de croquis (gratis/online)

Precios y costos
precios de materiales, indices y
costos m2 de construcción

Proyecto
obras construidas
proyectos para concursos
proyectos de estudiantes
arquitectos destacados
obras destacadas

Diseño
diseño industrial y mobiliario
diseño interior y decoración
Casa FOA 2009
Casa FOA 2010
Casa FOA 2011
Casa FOA 2012
Casa FOA 2013
Casa FOA 2014
Estilo Pilar 2010
Estilo Pilar 2012

Construcción
materiales y tecnologías
novedades de empresas
sector inmobiliario

Agenda
cursos y seminarios
congresos y bienales
charlas y eventos
exposiciones y muestras
concursos

Facultad
becas y subsidios
posgrados y maestrías
donde estudiar

Varios
ofertas laborales arquitectura, diseño y construccion
suscripcion newsletter (gratis)
redes sociales
publicidad

Arquimaster en Facebook
Arquimaster en Twitter
Arquimaster en LinkedIn
Arquimaster en Pinterest