Arquimaster - Medio digital de arquitectura, diseño y construccion Estas visitando la version anterior,
para ver la version actual realiza click aca

 

     
       
 
Climanet - Doble Vidrio Hermetico DVH
Matyser - Materiales y servicios para la construccion
Cursos de arquitectura y diseño de espacios
Anclaflex
Curso Introducción a Revit: Modela tus proyectos arquitectonicos
Bara
Vivienda Church Mount (Hampstead, Londres, Reino Unido) - Allan Rosenberg Architects
Curso Dibujo arquitectónico: la perspectiva de un punto
 

Ficha técnica
Nombre: Vivienda Church Mount
Ubicacion: Hampstead, Londres, Reino Unido
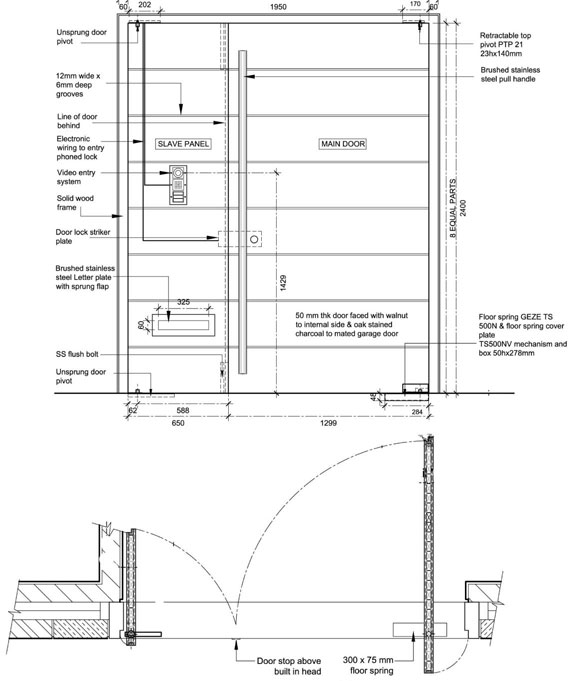
Oficina de arquitectos: Allan Rosenberg Architects
Arquitectos colaboradores: Jenny Torres Arquitecto Junior practicante, Arun Arquitecto Junior
Clientes: Amanda y David Kantor
Ingenieros: C S Cowie Associates
Ingenieros: Global Facility Maintenance Ltd
Arquitecto Paisajista: Philip Nixon Design
Fotos: Tony Murray y Sylvain Deleu
Año del proyecto: 2008-2009

 

Ver planos de la obra

El proyecto Church Mount es una residencia familiar de lujo adecuada a la vida moderna, que cumple con los criterios ambientales y las normas de construcción actuales.

La casa está ubicada en Hampstead, Londres, una zona con estricto control sobre la conservación arquitectónica de los edificios.

Inicialmente el proyecto se trató de una renovación y luego se transformó en una construcción totalmente nueva.

Los permisos de construcción se demoraron a causa de las normas de conservacion de la fachada.

Por dicha razón, el exterior de la vivienda fue estrechamente controlado y contrasta con la arquitectura moderna de su interior.

En consecuencia, exteriormente el proyecto conserva los parámetros esteticos de la zona e interiormente rompe con los esquemas de distribucion interior estandarizada para así lograr una dinámica formal que armoniza el espacio interior y genera un efecto sorpresa sobre la estética de la construcción.

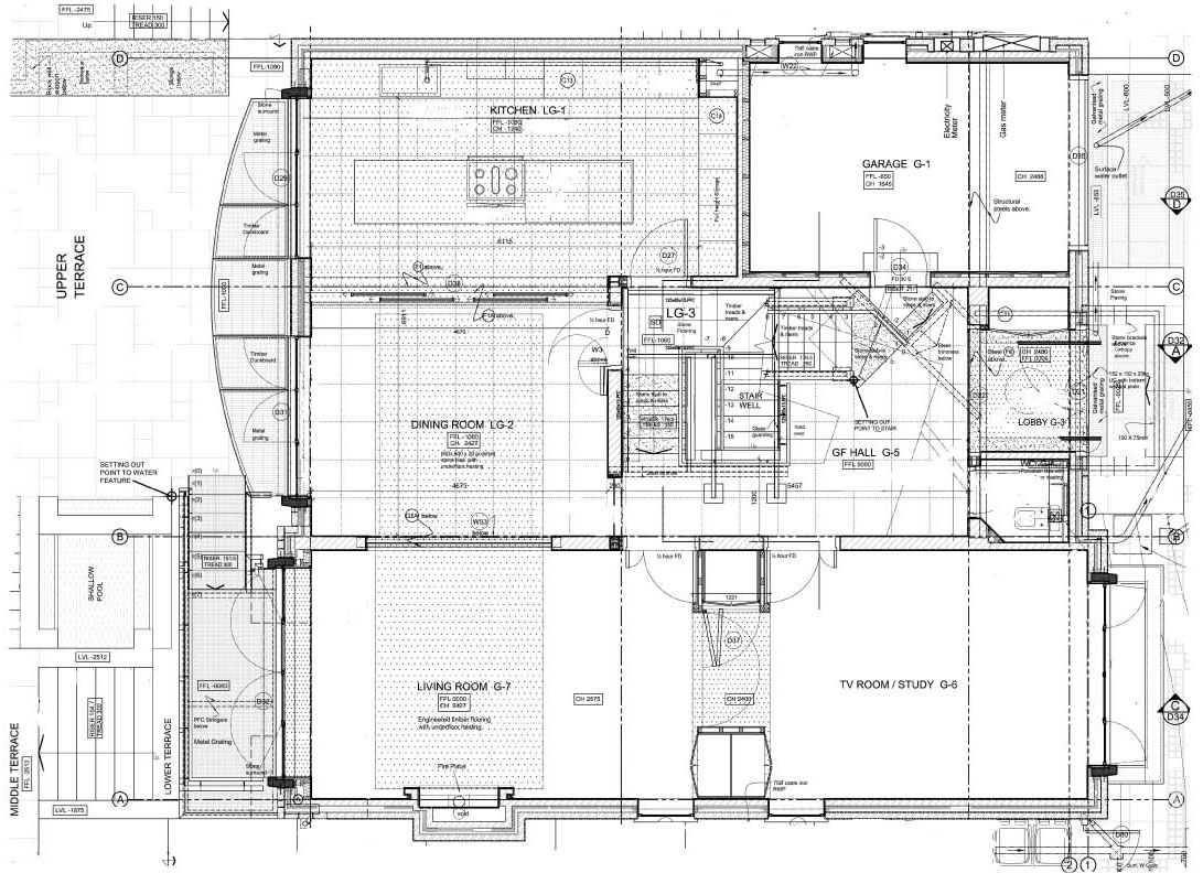
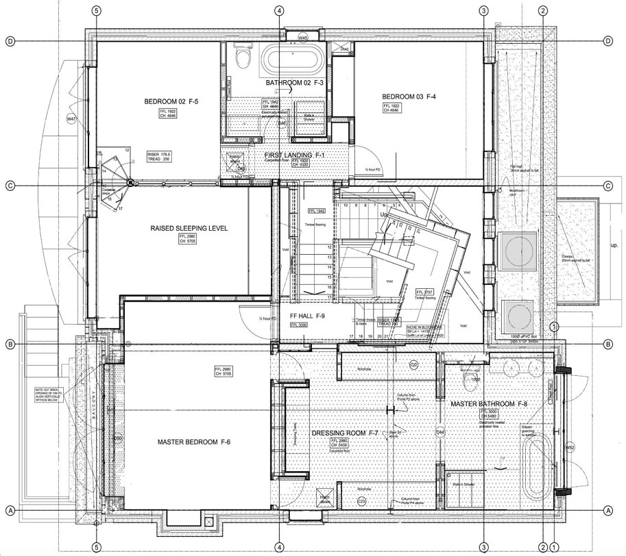
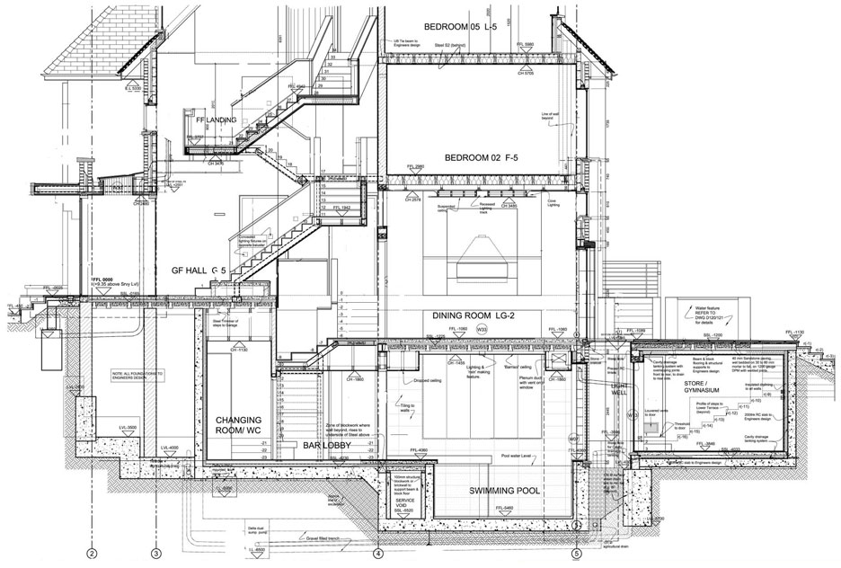
Dividir las zonas de la casa en distintos niveles le otorga al proyecto una sensación dinámica que se traduce en ambientes amplios y llenos de luz, con una gran diversidad de visuales internas y externas y accesos directos a los jardines en todos sus niveles.

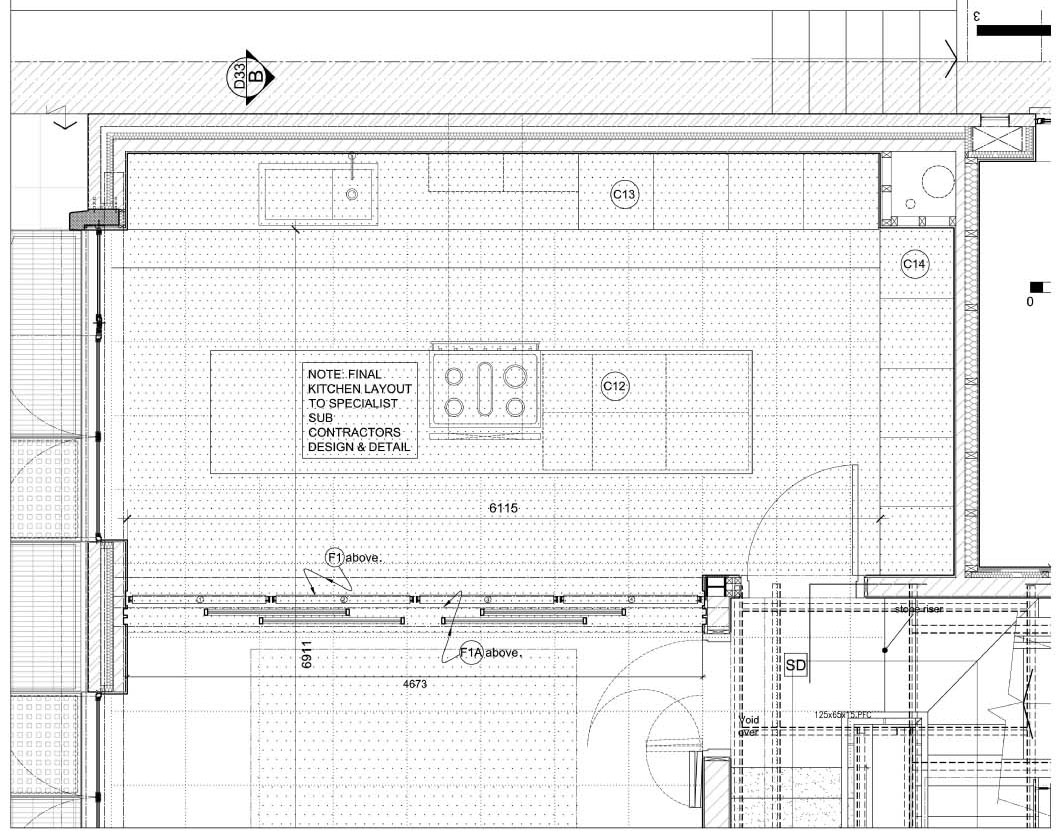
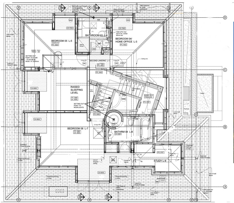
Una escultural escalera se ubica en el hall central conectando los distintos niveles en los que se distribuyen los seis dormitorios, piscina, bar y sala de cine.

Se destacan materiales nobles como madera (nogal) y piedra.


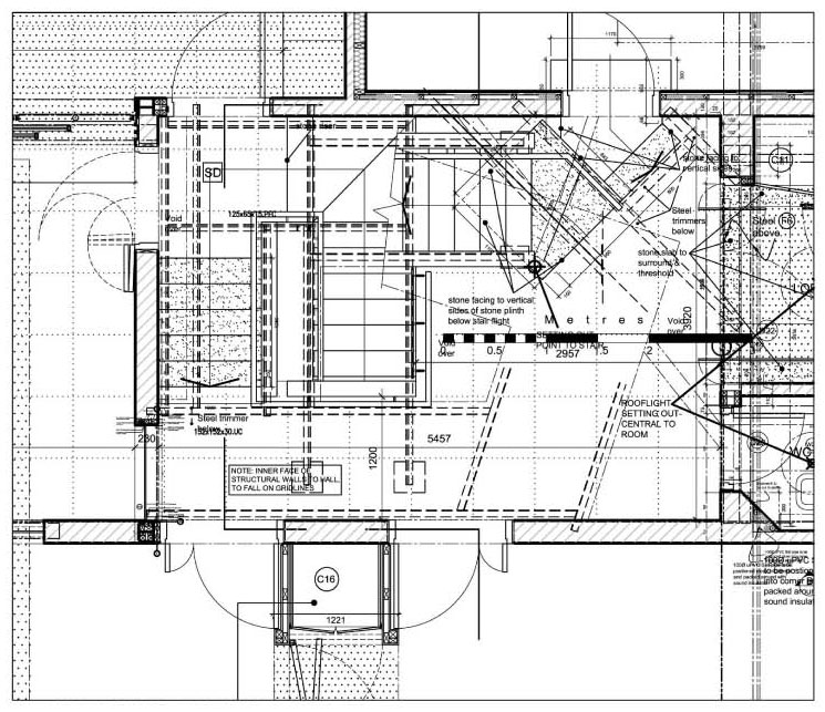
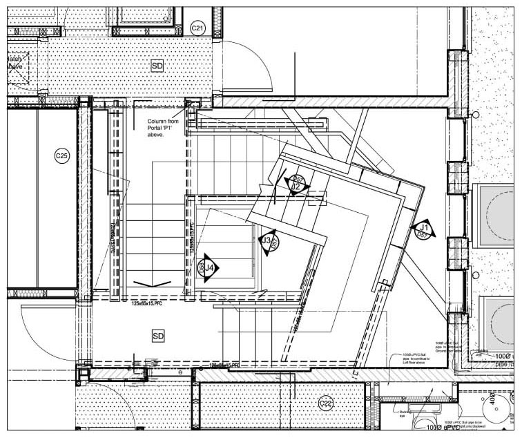
Planos
Realice click en los links para ver los planos.

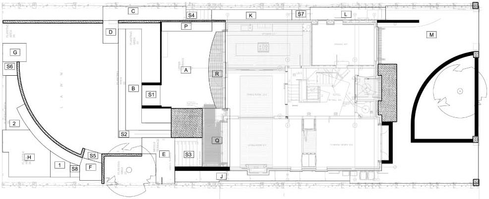
[1] Planta baja
[2] Planta 1º piso
[3] Planta 2º piso
[4] Planta jardines
[5] Planta propuesta inicial
[6] Corte 1
[7] Corte 2
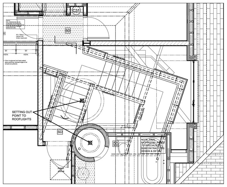
[8] Detalle escalera PB
[9] Detalle escalera 1º piso
[10] Detalle escalera 2º piso
[11] Detalle corte vertical
[12] Detalle cocina
[13] Detalle acceso
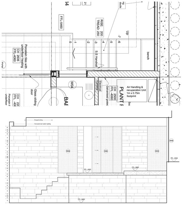
[14] Detalle cubierta
[15] Detalle cerramiento
[16] Detalle piscina
[17] Detalle terraza
[18] Vista lateral


Imágenes

Realice click sobre las imágenes para ampliarlas.

Ver ficha técnica y datos de contacto al pie de página.


Acerca de los proyectistas
El proyecto ha sido enviado por Jenny Torres, quien realizara una práctica empresarial como Arquitecto Junior en la oficina Allan Rosenberg Architects.

Arquitecta Magister en Gestión Urbana. Actualmente estudiante de Animacion interactiva en 3D, especializada en Diseno residencial y diseno interior, desde el año 2008 realizó la práctica empresarial en el Reino Unido para desarrollar proyectos puntuales en areas residenciales alrededor del norte de Londres en la oficina de Allan Rosenberg. Trabajó junto con un equipo internacional de profesionales desde Alemania hasta Sudafrica, lo que la llevo a enriquecer sus habilidades como profesional intercambiar e interactuar con diferentes puntos de vista frente a professionales con diferentes culturas, lo cual dio como resultado la experimentacion reflejada en el diseño dentro de un pais tan regulado como es Inglaterrra en donde logró adquirir conocimientos sobre las regulaciones en contrucción, bioclimática y conjugar esas normas con interesantes procesos de diseño arquitectonico interior.

 
Curso Dibujo arquitectonico con acuarela y tinta
 
 
Si usted es profesional, este es su espacio para publicar su obra o proyecto (en forma gratuita). Para más información visitar la sección contacto: click aquí.
   
   

Noticias
informes especiales
bienal de arquitectura BA11
bienal de arquitectura BA09
publicaciones

Artículos
notas y artículos de interés
arquitectura legal
diseño de iluminación
software de arquitectura y diseño

Recursos
curso de decoracion (gratis/online)
archivo temático
descargas externas
curso de croquis (gratis/online)

Precios y costos
precios de materiales, indices y
costos m2 de construcción

Proyecto
obras construidas
proyectos para concursos
proyectos de estudiantes
arquitectos destacados
obras destacadas

Diseño
diseño industrial y mobiliario
diseño interior y decoración
Casa FOA 2009
Casa FOA 2010
Casa FOA 2011
Casa FOA 2012
Casa FOA 2013
Casa FOA 2014
Estilo Pilar 2010
Estilo Pilar 2012

Construcción
materiales y tecnologías
novedades de empresas
sector inmobiliario

Agenda
cursos y seminarios
congresos y bienales
charlas y eventos
exposiciones y muestras
concursos

Facultad
becas y subsidios
posgrados y maestrías
donde estudiar

Varios
ofertas laborales arquitectura, diseño y construccion
suscripcion newsletter (gratis)
redes sociales
publicidad

Arquimaster en Facebook
Arquimaster en Twitter
Arquimaster en LinkedIn
Arquimaster en Pinterest