Arquimaster - Medio digital de arquitectura, diseño y construccion Estas visitando la version anterior,
para ver la version actual realiza click aca

 

     
       
 
Climanet - Doble Vidrio Hermetico DVH
Matyser - Materiales y servicios para la construccion
Cursos de arquitectura y diseño de espacios
Anclaflex
Curso Introducción a Revit: Modela tus proyectos arquitectonicos
Bara
Edificio de viviendas Elgea (Rosario, Argentina) - Arq. Diego Jobell
Curso Modelado arquitectónico con Rhino 3D y V-Ray
 

Ficha técnica
Obra: Edificio de viviendas Elgea
Ubicación: Mitre 2505, Rosario, Santa Fe, Argentina
Autor: Diego Jobell Arquitecto
Colaboradores: Arquitectos Eleonora Flores, Ariel Acosta, Javier Povrzenic, Sebastián Galván
Comitente: Comat SRL
Asesores estructurales: Ings. C. Torregiani, H.Cervera, P. Biset, A. Salomón
Constructora: Constructora Gonzáles SRL
Impermeabilizaciones: Compañía Americana SRL
Herreria de obra: Rubén Gómez
Instalación sanitaria y calefacción: By Pass Construcciones SRL
Sistema de refrigeración: Bunker SA
Mobiliario de cocina: Reno SA
Pisos de madera: Hernan Suarez & Asoc.
Aberturas de aluminio: Vidriería Rubiolo SRL
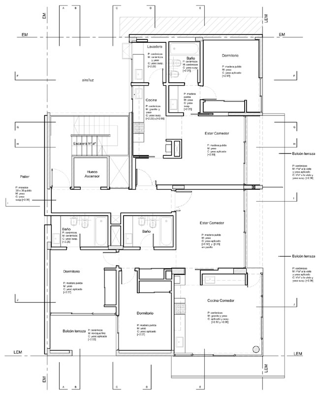
Tipología: Edificio de viviendas en altura con semipisos de uno y dos dormitorios
Superficie construida: 1044 m2
Año de construcción: 2008 /10
Fotografias: Luis Vignoli

 

Ver planos de la obra

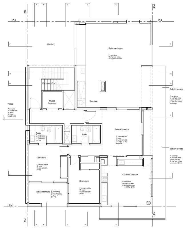
Se trata de un edificio de viviendas inserto en una trama urbana con ciertas limitaciones de alturas, debido a las condicionantes de la zona y tejido, pero que utiliza sus recursos de forma completa, proponiendo grandes y luminosos espacios, con la intención de aprovechar la mayor superficie y orientaciones de sus fachadas, Norte y Este, las cuales permiten volcar la casi totalidad de los ambientes y balcones terrazas a estas y asegurar una excepcional luminosidad y ventilación.

El proyecto contempla una planta baja con oficina, cinco pisos con dos departamentos cada uno, un sexto como piso único, con patio, parrillero y solarium para uso privado y un séptimo con una terraza de generosa superficie para el uso común de los propietarios, emplazado en la intersección de las calles Mitre y Ocampo de la Ciudad de Rosario.

Su ubicación es estratégica, por su proximidad a dos avenidas, 27 de Febrero al sur y Av. Pellegrini al Norte, a la ciudad Universitaria al este y el Parque Independencia hacia el Oeste.

También se encuentra dentro del llamado Segundo anillo perimetral, zona que albergará la descompresión del área central, sector que sin perder aún características de barrio, empieza a transformar su fisonomía como consecuencia de la demanda y el desarrollo inmobiliario, que tuvo lugar en los últimos años.


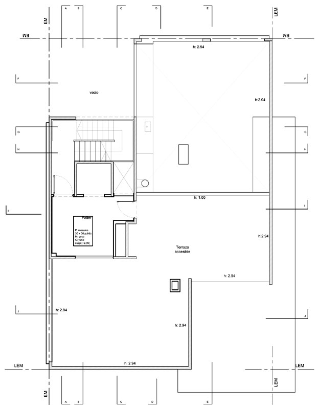
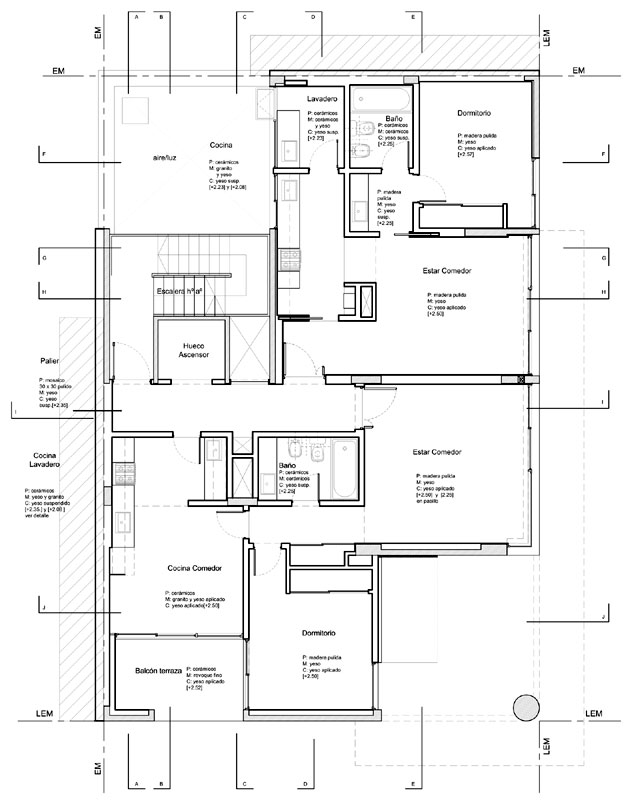
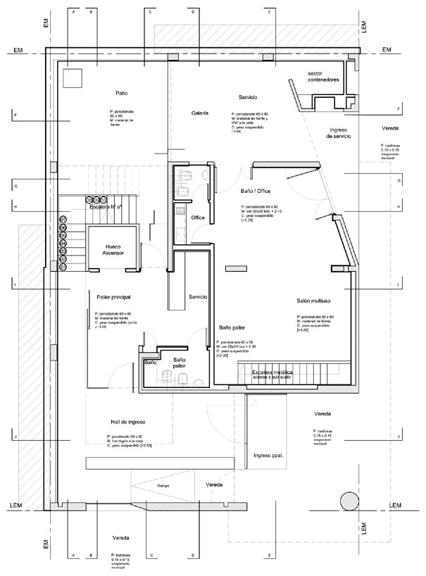
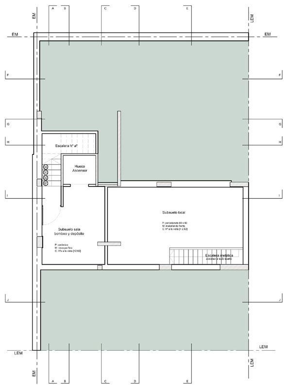
Planos
Realice click en los links para ver los planos.

[1] Planta baja
[2] Planta 1º piso
[3] Planta 2º a 5º piso
[4] Planta 6º piso
[5] Planta 7º piso (terraza)
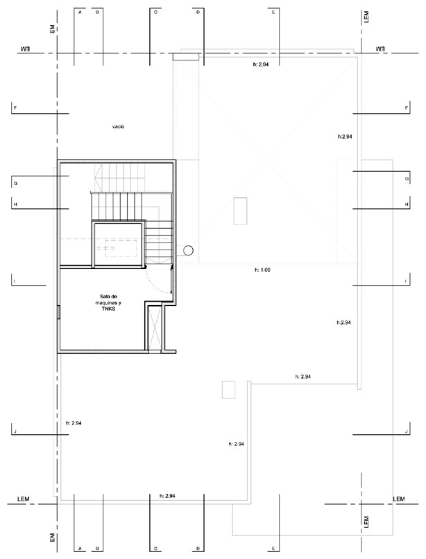
[6] Planta 8º piso (sala máq.)
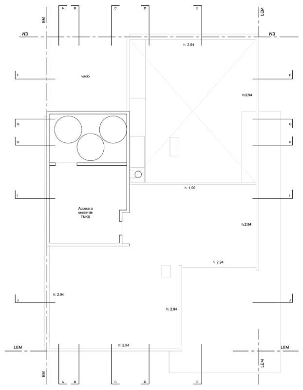
[7] Planta 9º piso (tanques)
[8] Planta subsuelo
[9] Corte
[10] Vista calle Ocampo
[11] Vista calle Mitre
[12] Esquemas


Imágenes

Realice click sobre las imágenes para ampliarlas.

 
Curso Dibujo arquitectonico con acuarela y tinta
 
 
Si usted es profesional, este es su espacio para publicar su obra o proyecto (en forma gratuita). Para más información visitar la sección contacto: click aquí.
   
   

Noticias
informes especiales
bienal de arquitectura BA11
bienal de arquitectura BA09
publicaciones

Artículos
notas y artículos de interés
arquitectura legal
diseño de iluminación
software de arquitectura y diseño

Recursos
curso de decoracion (gratis/online)
archivo temático
descargas externas
curso de croquis (gratis/online)

Precios y costos
precios de materiales, indices y
costos m2 de construcción

Proyecto
obras construidas
proyectos para concursos
proyectos de estudiantes
arquitectos destacados
obras destacadas

Diseño
diseño industrial y mobiliario
diseño interior y decoración
Casa FOA 2009
Casa FOA 2010
Casa FOA 2011
Casa FOA 2012
Casa FOA 2013
Casa FOA 2014
Estilo Pilar 2010
Estilo Pilar 2012

Construcción
materiales y tecnologías
novedades de empresas
sector inmobiliario

Agenda
cursos y seminarios
congresos y bienales
charlas y eventos
exposiciones y muestras
concursos

Facultad
becas y subsidios
posgrados y maestrías
donde estudiar

Varios
ofertas laborales arquitectura, diseño y construccion
suscripcion newsletter (gratis)
redes sociales
publicidad

Arquimaster en Facebook
Arquimaster en Twitter
Arquimaster en LinkedIn
Arquimaster en Pinterest