Arquimaster - Medio digital de arquitectura, diseño y construccion Estas visitando la version anterior,
para ver la version actual realiza click aca

 

     
       
 
Climanet - Doble Vidrio Hermetico DVH
Matyser - Materiales y servicios para la construccion
Cursos de arquitectura y diseño de espacios
Anclaflex
Curso Introducción a Revit: Modela tus proyectos arquitectonicos
Bara
Casa en El Nacional Club de Campo (Gral. Rodríguez, Pcia. Buenos Aires) por Vanguarda Architects
Curso Modelado arquitectónico con Rhino 3D y V-Ray
 

Ficha técnica
Obra: Casa en El Nacional Club de Campo
Ubicación: Gral. Rodríguez, Pcia. Buenos Aires, Argentina
Proyecto: Vanguarda Architects
Estilo: Actual Racionalista
Desarrollo: 2 plantas, 9 ambientes y 1 suite
Superficie: 502 m2
Año: 2010
Fotos: gentileza de Luis Abregú
Sitio web: https://vanguardaarquitectos.com.ar

 

Ver planos de la obra

La principal sensación que transmite es transgresión a la fuerza de gravedad, con un juego volumétrico que se combina con los vidrios plenos, proyectados para aprovechar la relación con el entorno.

Con una superficie de 500 m2, distribuidos en 9 ambientes, en la planta baja se encuentra lo que llamamos el sector social de la vivienda, marcado por el acceso, living, comedor, cocina con desayunador, la sala de televisión y en la parte exterior un quincho con su galería.

Cada uno de los espacios cuenta con un diseño exclusivo acorde al modo de vida de sus propietarios y el estilo actual racionalista se percibe en cada rincón.

En la planta alta se encuentra la suite principal que cuenta con un amplio baño y su vestidor. En el otro extremo dos suites secundarias que se conectan a través de un pasillo que balconea con la parte social en toda su extensión. El vidrio que lo compone genera una integración del espacio propio del diseño.

En la totalidad de la casa se combinan, en su justa cantidad, elementos tales como la madera, el acero y el vidrio lo que logra una perfecta armonía.

La seriedad del estilo, se rompe con la utilización de colores estridentes tanto en algunas paredes como en los mobiliarios.

La unión de los espacios genera una espacialidad sin fin pensada para aprovechar el entorno, que culmina con una envolvente desmaterializada que cubre la caja arquitectónica.


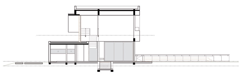
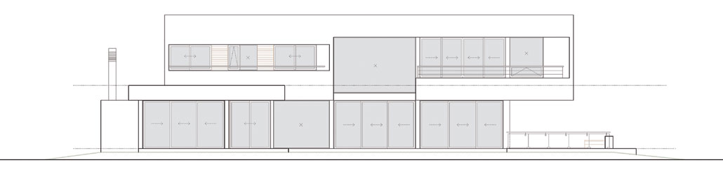
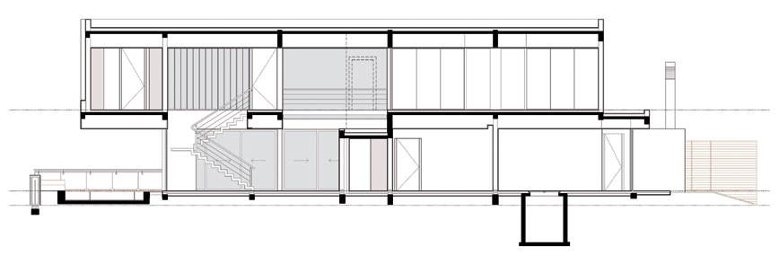
Planos
Realice click en los links para ver los planos.

[1] Planta baja
[2] Planta alta
[3] Corte AA
[4] Corte BB
[5] Corte CC
[6] Corte DD
[7] Corte EE
[8] Vista frente
[9] Vista contrafrente
[10] Vista lateral izquierdo
[11] Vista lateral derecho


Imágenes

Realice click sobre las imágenes para ampliarlas.

 
Curso Dibujo arquitectonico con acuarela y tinta
 
 
Si usted es profesional, este es su espacio para publicar su obra o proyecto (en forma gratuita). Para más información visitar la sección contacto: click aquí.
   
   

Noticias
informes especiales
bienal de arquitectura BA11
bienal de arquitectura BA09
publicaciones

Artículos
notas y artículos de interés
arquitectura legal
diseño de iluminación
software de arquitectura y diseño

Recursos
curso de decoracion (gratis/online)
archivo temático
descargas externas
curso de croquis (gratis/online)

Precios y costos
precios de materiales, indices y
costos m2 de construcción

Proyecto
obras construidas
proyectos para concursos
proyectos de estudiantes
arquitectos destacados
obras destacadas

Diseño
diseño industrial y mobiliario
diseño interior y decoración
Casa FOA 2009
Casa FOA 2010
Casa FOA 2011
Casa FOA 2012
Casa FOA 2013
Casa FOA 2014
Estilo Pilar 2010
Estilo Pilar 2012

Construcción
materiales y tecnologías
novedades de empresas
sector inmobiliario

Agenda
cursos y seminarios
congresos y bienales
charlas y eventos
exposiciones y muestras
concursos

Facultad
becas y subsidios
posgrados y maestrías
donde estudiar

Varios
ofertas laborales arquitectura, diseño y construccion
suscripcion newsletter (gratis)
redes sociales
publicidad

Arquimaster en Facebook
Arquimaster en Twitter
Arquimaster en LinkedIn
Arquimaster en Pinterest