 |
 |
 |
 |
 |
 |
 |
 |
 |
 |
 |
 |
 |
| |
Ficha técnica
(*) Proyecto conjunto de tres equipos:
LGR (Gabriel Lanosa, Josu González
Ruiz / Javier Fernández Castro)
AFRA (Saturnino Armendares, Pablo Ferreiro)
Fernández Prieto y asociados arquitectos
Comitente: Comisión de Homenaje Ley Nacional 13062.
Dirección Nacional de Arquitectura.
Dirección Provincial de Arquitectura
Ubicación: Museo Quinta 17 de Octubre, San Vicente, Provincia de Buenos
Aires, Argentina
Colaboradores:
Lilian Timisky Arq., Ciro Spiteri, Lucas Bianchi, Matías Tozzini, Elías
García, Sol Rodríguez
Calculo estructural: Daniel Isola, Ing.
Encofrados: Peri
Hormigón: Valfos
Instalación eléctrica: GF SA Ing. Consultores, N.
Brandeburgo Ing.
Instalación sanitaria, gas e incendio: Jorge Labonia, Arq. y
asoc.
Aire acondicionado: Alphil System SRL, Marcelo Mangudo Ing.
Iluminación: Tecnoilar, Artemide
Grabados: Grabado Sólido, Carlos Muniagurria
Bronces: Fundición Buchhass
Mural: Lilian Lucía Luciano
Construcción: Centro Construcciones
Imágenes [de
arriba a abajo]:
[1] Vista Plaza del Encuentro
[2] Vista hacia Plaza del Encuentro
[3] Vista oratorio
[4] Vista hacia Plaza del Pueblo
[5] Vista de conjunto
[6] Vista interior panteón
[7] Vista exterior panteón
[8] Vista interior panteón
[9] Implantación general
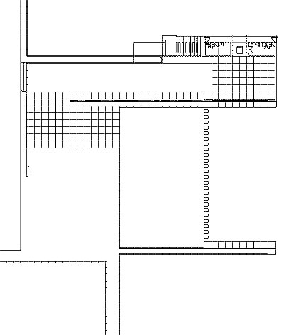
[10] Planta conjunto
[11] Detalle conjunto
[12]
Detalle planta
[13] Cortes y vistas
|
| |
| |
Descargas: Planta
de implantación
del Mausoleo en el predio del Museo Quinta
17 de Octubre |
|
Introducción.
El proyecto surgió de un Concurso Nacional de
Ideas por invitación. El jurado consideró oportuno
destacar tres de las propuestas por considerarlas portadoras
de sendos valores que el proyecto definitivo debía
expresar. En aquellos trabajos originales estaban presentes
como elaboraciones y citas: la plaza como espacio del mito
originario del 17 de octubre, como escenario de diálogo
entre el pueblo y sus líderes; el recorrido como
construcción histórica permanente, como camino
jalonado de avances y retrocesos; el panteón como
recinto de protección, como ámbito de homenaje.
Fue así que los tres estudios seleccionados (*)
constituyeron un equipo único de trabajo, que bajo
la supervisión
de la Comisión Nacional de Homenaje encaró el
proyecto definitivo.
Este trabajo conjunto, por su indudable trascendencia,
ha significado un doble compromiso. En primer término,
el político, el militante, la tarea de concretar
la última casa de los constructores del estado de
justicia social en la Argentina moderna. Unido a este desafío,
la necesidad de establecer un compromiso profesional, la
tarea de interpretar valores y significados que hoy ya
no son patrimonio exclusivo de un movimiento político
sino del conjunto de la sociedad, y además hacerlo
dando testimonio de este tiempo, proyectando un monumento
contemporáneo.
En esta tarea los profesionales no somos solamente depositarios
de un saber técnico para la materialización
de una obra, somos ante todo constructores de significados.
Se trata entonces de participar en la construcción
de nuestra memoria histórica, de rendir homenaje
a nuestros históricos líderes populares,
y de entender a la propia arquitectura como concreción
de un contexto capaz de enmarcar y propiciar estas prácticas. Estos han sido nuestros principios en la tarea de intentar
articular memoria, homenaje y arquitectura.
Los principios. Memoria, homenaje, arquitectura.
MEMORIA interpretación del pasado y proyección
de futuro
La memoria es evocación de sentidos pasados, pero
es también posibilidad de continuidades presentes
y proyecciones futuras. El homenaje no es entonces un
ejercicio de nostalgia por un tiempo perdido, es por
el contrario reafirmación de compromisos, recreación
de valores compartidos que aún son un desafío
presente y futuro.
Las dos vidas que recordamos son el símbolo de
la lucha por la justicia social, de la tarea revolucionaria
del siglo XX, con evidentes proyecciones continuadas
y recreadas en este nuestro tiempo.
HOMENAJE conmemoración masiva e introspección
La conmemoración tiene dos modalidades necesariamente
complementarias y disímiles, la masividad y la
introspección. Conjugar la requerida presencia
e importancia de la obra posible marco de conmemoraciones
masivas, con escalas más pequeñas y apropiables,
propicias para el encuentro personal y la emoción
singular, ha sido también una premisa. El peronismo
se ha propuesto como sinónimo de inclusión.
La plaza, el sitio de su origen, escenario del protagonismo
popular es un espacio abierto, incluyente y referencial.
ARQUITECTURA inserción en
el paisaje y monumento
Las formas tradicionales del monumento son objetuales,
excluyentes, impuestas por escala y distancia a un territorio
al que subordinan. La arquitectura que proponemos aspira
en cambio a incluir, abarcar, insertarse. Como el movimiento
que la inspira, no es un dogma a priori, es un constante
construir desde las propias circunstancias. Sólo
podrá ser de ese sitio, comprenderse en ese paisaje.
En ello radica su originalidad.
Su lenguaje no podrá ser otro que el de la modernidad.
Fue el primer peronismo el que introdujo la arquitectura
moderna como lenguaje de la obra pública estatal,
a través de innumerables y calificados ejemplos
en todo el país. Viviendas populares, hospitales,
centros educacionales, oficinas de correo, sedes de empresas
públicas, aeropuertos, etc., son ejemplos concretos
de esta obra. Los lenguajes son portadores de significado.
Frente a una estética monumental clásica,
la del orden del siglo XIX cuyos valores el peronismo
vino a suplantar, la obra se propondrá como contemporánea,
constructora de nuevos sentidos. No intentará copiar
estéticas ajenas sino proponer las propias. Austeras,
contemporáneas, incluyentes.
La quinta. El proyecto se encuentra
emplazado en el Museo Quinta 17 de octubre, en la ciudad
de San Vicente, Provincia
de Buenos Aires. El conjunto, circunscripto por un muro
bajo de bloques policromados surgido de la inspiración
de Benito Quinquela Martín, presenta dos áreas
netamente diferenciadas.
La primera que podemos denominar patrimonial, constituye
el núcleo original de la quinta, organizado con
una traza orgánica y ajardinada, propia de las
construcciones pintoresquistas suburbanas destinadas
a segunda residencia en la década del '40.
Es
posible reconocer en la casa principal, anterior al peronismo,
el imaginario que Evita llevará adelante como
modelo de vivienda para los trabajadores. El chalet del
matrimonio presidencial, no distaba en configuración
ni en calidad constructiva de las soluciones que desde
el gobierno se propondrían como vivienda social
de baja densidad. Además de este chalet principal,
se encuentran también en este sector la piscina,
la torre mirador y un conjunto de construcciones de servicio.
La otra área, que denominamos de interpretación
o temática, constituye un espacio incorporado
en forma relativamente reciente al uso público
a partir de la construcción del museo, con sus
salas de exposición y auditorio, la recuperación
y exhibición del tren presidencial, y cercana
al acceso la implantación de las esculturas rescatadas,
originalmente pensadas para el monumento al descamisado.
Estas representan uno de los momentos más emotivos del
recorrido, donde en las mismas piezas de mármol
puede apreciarse la conmemoración que el peronismo
pretendía hacer de los derechos sociales y la
reacción destructiva de que fueron objeto durante
la dictadura del '55. La mayor superficie de esta segunda área
está ocupada por un frondoso bosque en el que
canalizaciones pluviales conforman un pequeño
arroyo y espejo de agua, conformando un espacio de alto
valor paisajístico.
Lindante al museo y con el telón de fondo del
bosque se encuentra el emplazamiento elegido para el
Parque de Homenaje, precedido por una hilera de fresnos
y dos importantes montes de eucaliptos.
El parque de homenaje.
En función de aquellos lineamientos y reconociendo
estas preexistencias como entorno de actuación,
hemos redefinido el programa como un Parque de Homenaje.
El mausoleo, tradicionalmente entendido, es un monumento
funerario grandilocuente, que impone distancia y subordinación
al observador. La propuesta por el contrario se materializa
en un gran espacio público, recorrible, apropiable,
en el cual el visitante es sujeto activo, parte indispensable
de la ceremonia. La arquitectura propiciará entonces
la procesión hacia el encuentro con los líderes,
generando diversas instancias de aproximación
sucesiva, donde cada elemento, cada clima generado, irá permitiendo
el paulatino pasaje desde el exterior masivo hacia el
interior introspectivo. El pueblo no es aquí convocado
como espectador de un monumento sino como protagonista
de una plaza.
La geometría del nuevo parque es de un trazado
regular, una nueva impronta sumada al territorio. Se
inserta reorganizando el área de interpretación,
donde la nueva presencia pasa a ser eje de la composición
ordenando definitivamente el predio.
Desde el ingreso, tras atravesar la hilera de fresnos
y los montes de eucaliptos, se accede a la plaza
central y a la plaza
del pueblo, en la que suelo, minerales y
plantaciones características de cada una de las
provincias representan la presencia federal.
En contigüidad se suceden diversos escenarios: el
memorial, la línea de la vida, la plaza
del encuentro,
el panteón propiamente dicho, y el regreso hacia
el bosque y el lago o la reincorporación al circuito
de interpretación en el museo y el tren.
Acceso y plaza central.
La primer instancia de este camino jalonado hacia el
encuentro, es el atravesar entre los fresnos y el enmarque
de los montes de eucaliptos.
Una plaza primera se convierte en nuevo foco, nodo del área
de interpretación, combinando en su tratamiento
un piso regulado con un césped enmarcado.
La primera visión distante, entre los fresnos
y a través de los eucaliptos, marca una fuerte
horizontal, que subraya y contiene el fondo del bosque.
El diálogo entre naturaleza vertical y artificio
horizontal se construye sutilmente entre los árboles
y la construcción.
La arquitectura aparece como un mero plano de convocatoria.
Traspasados los árboles
logra divisarse otra vertical, la del panteón que con su altura genera
la monumentalidad requerida. La visión nocturna lo transforma en un
faro convocante. La arquitectura es entonces relectura abstracta del paisaje.
Planos verticales y horizontales interpretan con un lenguaje sobrio y despojado
la planicie y el bosque.
La plaza del abrazo.
El segundo hito del recorrido, la plaza del abrazo, recibe
al visitante como explanada pensada para el homenaje
externo y masivo. En su lateral, recortando la perspectiva
del museo colindante, se dispone un podio para la fijación
de las placas conmemorativas. Este está sostenido
dramáticamente por dos columnas-mástiles
con las banderas de la Argentina y del Justicialismo.
En el muro-fachada, en el ingreso a la procesión
rumbo al encuentro, aparece grabada la única imagen
figurativa de todo el parque, el abrazo de Perón
y Evita en el balcón de la Casa Rosada el 17 de
octubre de 1951. La elección de esta imagen dentro
de la abundante iconografía del peronismo, viene
a subrayar esa conjunción entre amor y política.
Nos recuerda que además de ser la pareja política
que construyó un nuevo poder popular en la Argentina,
fue también una pareja amorosa, dos vidas complementadas.
Bajo la imagen, se inicia un curso de agua, que acompañará el
recorrido en el interior y hacia el encuentro.
La línea de la vida.
El homenaje introspectivo, requiere de un esfuerzo, del
recorrido de un camino. Entre el borde del bosque y el
muro-fachada se enmarca un sendero, reforzado por el
curso de agua.
El curso de agua, metáfora evidente de la vida,
acompaña al interior del muro diversas fechas
biográficas de los líderes: sus nacimientos,
su primer encuentro, el octubre de los orígenes,
las muertes. Se construye así un nuevo espacio
más íntimo, a escala del visitante, donde
la abundante vegetación esconde la perspectiva
del panteón, sólo divisable a la distancia
y desde el exterior.
La plaza del encuentro.
A medida que se acerca el final del recorrido, la perspectiva
se focaliza, accediendo a una última plaza. Traspasando
un ajustado pórtico se ingresa, mediante un abrupto
cambio de escala en un espacio monumental. De las ramas
del bosque que conformaba un túnel permitiendo
ajustadamente el paso, se accede a una nave de hormigón
de proporciones monumentales. Al final del recorrido
la mirada reconoce la frase testamento: "Mi único
heredero es el pueblo".
Se construye así un nuevo sitio, el lugar para
asumir y renovar el compromiso. Se dispone un lugar para
la guardia de honor, mientras un tratamiento sutil del
muro y el permanente paso del agua conforman el espacio
de las ofrendas florales. El material predominante elegido,
un hormigón especial pigmentado con los colores
de la tierra, deja paso a la presencia armónica
de nuevos materiales, el vidrio que permitirá la
visión de los cuerpos y el mármol traslúcido
que permitirá imponentes efectos de luminosidad
indirecta.
La línea de la vida transmuta en un muro en cuyas
operaciones de plegado se esconden los programas accesorios,
el resguardo de las instalaciones y el espacio del tanatorio.
El panteón.
La plaza del encuentro está cubierta en su área
central por una nave de grandes proporciones, determinando
la perspectiva del panteón y asumiendo la escala
vertical, ahora en visión interna.
Este espacio
resulta el de mayor calificación del conjunto,
el definitivamente conformado. En él cambian las
visuales, la luz, las texturas, los reflejos. El tímpano
orientado hacia el parque, de mármol traslúcido,
permite de día tamizar los haces de luz natural
y de noche reflejar hacia el exterior su condición
de faro. El orientado hacia el bosque es transparente.
Un gran prisma vidriado es el contenedor de la caja de
los cuerpos y el foco de la perspectiva principal. En
su fondo se recorta un gran eucalipto, el árbol
de mayor altura del bosque. La muerte tiene así como
fondo la continuidad de la vida.
Nada compite con la presencia de los cuerpos. La sobriedad
del entorno sólo es alterada con el trabajo de
la cubierta de su caja. En ella, íntegramente
trabajada en bronce, una composición nuevamente
despojada y abstracta conjuga los valores del peronismo
como palabras verbalizadas, junto a íconos de
sus realizaciones. La emoción de la presencia
de los cuerpos no requiere aditamento alguno.
El frente traslúcido provoca yuxtaposiciones y
reflejos entre el observador y lo expuesto. El pueblo
y sus líderes están unidos en nueva comunión.
|