Arquimaster - Medio digital de arquitectura, diseño y construccion Estas visitando la version anterior,
para ver la version actual realiza click aca

 

     
       
 
Climanet - Doble Vidrio Hermetico DVH
Matyser - Materiales y servicios para la construccion
Cursos de arquitectura y diseño de espacios
Anclaflex
Curso Introducción a Revit: Modela tus proyectos arquitectonicos
Bara
Casa de playa en El Chipe (Piura, Perú) - Artadi Arquitectos
Curso Modelado arquitectónico con Rhino 3D y V-Ray
 

Ficha técnica
Obra: Casa de playa en El Chipe
Ubicación: El Chipe,Piura, Perú
Arquitectura: Javier Artadi, Artadi Arquitectos
Fotografia: Alexander Kornhuber
Propietario: Cliente privado
Fecha proyecto: 2004
Fecha realización de obra: 2004-2005
Área del terreno: 1,979.40 m2
Área construida: 667.68 m2
Sitio web: http://www.javierartadi.com

 

Ver planos de la obra

En un hermoso bosque de algarrobos en el norte del Perú, en El Chipe, Piura, se eligió un terreno para la construcción de una vivienda de carácter permanente.

Además de un programa relativamente completo, las vistas al paisaje natural y el control del calor y las lluvias fueron las condicionantes que definieron el enfoque del trabajo.

La propuesta consiste en una gran caparazón arquitectónica que ha sido abierta en sus dos frentes más largos para conseguir que todos los ambientes tengan vista al bosque y fomentar la ventilación cruzada.

Para este fin también se ha elevado la casa sobre el nivel cero y se ha definido alturas interiores variables que empiezan en una cota alta de +4,00 metros.

Finalmente el techo ha sido curvado hacia el centro del volumen para efectos de resolver el drenaje de lluvias y generar interiormente cambios de presión de aire para su mejor ventilación.

La volumétrica final de la casa, una pieza de líneas geométricas simples, se constituye en un autentico lente-visor abierto al contexto natural.


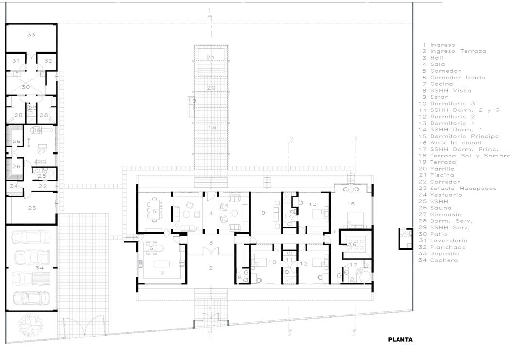
Planos
Realice click en los links para ver los planos.

[1] Planta baja
[2] Corte 1
[3] Corte 2
[4] Corte 3
[5] Vista 1
[6] Vista 2
[7] Vista 3
[8] Vista 4
[9] Vista 5
[10] Esquema 1
[11] Esquema 2
[12] Esquema 3


Imágenes

Realice click sobre las imágenes para ampliarlas.


Acerca del proyectista
Javier Artadi concluye sus estudios universitarios en la Facultad de Arquitectura y Urbanismo de la Universidad Ricardo Palma, en Lima, Perú en 1985.

En 1986 abre su estudio privado de arquitectura donde hasta la fecha ha realizado numerosos proyectos de Arquitectura y Urbanismo.

Ha obtenido premios y distinciones en concursos de arquitectura así como en bienales de arquitectura del Perú.

Es profesor de Diseño Arquitectónico en la Facultad de Arquitectura de la Universidad Peruana de Ciencias Aplicadas UPC.

Ha sido finalista en la IV Bienal Iberoamericana de Arquitectura con el proyecto Casa en Playa Las Arenas.

Ha sido invitado a presentar su trabajo en eventos de arquitectura en Latinoamérica, Estados Unidos y Europa.

Su obra ha sido publicada en revistas de arquitectura de los cuatro continentes como Interni de Italia, Abstract de Bélgica, Escala de Colombia, Architectural Digest de Estados Unidos, Interior Digest de Rusia y Architectural Record donde su Casa de Las Arenas fue elegida una de las record houses del 2006 y en libros especializados como La Casa Frente al Mar, editado en España y La Casa Latinoamericana, editado por Electa-Mondadori, en Italia.

Su obra es permanentemente investigada por alumnos de arquitectura de todo el mundo por su fuerte relación entre arquitectura moderna y el paisaje característico de la costa desértica del Perú.

 
Curso Tecnicas de postproduccion para fotografia arquitectonica
 
 
Si usted es profesional, este es su espacio para publicar su obra o proyecto (en forma gratuita). Para más información visitar la sección contacto: click aquí.
   
   

Noticias
informes especiales
bienal de arquitectura BA11
bienal de arquitectura BA09
publicaciones

Artículos
notas y artículos de interés
arquitectura legal
diseño de iluminación
software de arquitectura y diseño

Recursos
curso de decoracion (gratis/online)
archivo temático
descargas externas
curso de croquis (gratis/online)

Precios y costos
precios de materiales, indices y
costos m2 de construcción

Proyecto
obras construidas
proyectos para concursos
proyectos de estudiantes
arquitectos destacados
obras destacadas

Diseño
diseño industrial y mobiliario
diseño interior y decoración
Casa FOA 2009
Casa FOA 2010
Casa FOA 2011
Casa FOA 2012
Casa FOA 2013
Casa FOA 2014
Estilo Pilar 2010
Estilo Pilar 2012

Construcción
materiales y tecnologías
novedades de empresas
sector inmobiliario

Agenda
cursos y seminarios
congresos y bienales
charlas y eventos
exposiciones y muestras
concursos

Facultad
becas y subsidios
posgrados y maestrías
donde estudiar

Varios
ofertas laborales arquitectura, diseño y construccion
suscripcion newsletter (gratis)
redes sociales
publicidad

Arquimaster en Facebook
Arquimaster en Twitter
Arquimaster en LinkedIn
Arquimaster en Pinterest