Arquimaster - Medio digital de arquitectura, diseño y construccion Estas visitando la version anterior,
para ver la version actual realiza click aca

 

     
       
 
Climanet - Doble Vidrio Hermetico DVH
Matyser - Materiales y servicios para la construccion
Cursos de arquitectura y diseño de espacios
Anclaflex
Curso Introducción a Revit: Modela tus proyectos arquitectonicos
Bara
Edificio Seguros Guayana Puerto Ordaz (Venezuela) - Morasso arquitectos
Curso Sketching arquitectónico: del papel a Photoshop
 

Ficha técnica
Obra: Edificio Seguros Guayana
Ubicación: Puerto Ordaz, Ciudad Guayana, Venezuela
Proyecto arquitectónico: Arq. Juan Ignacio Morasso Tucker y Arq. Dolores Elena Morasso
Colaboradores: Arq. Carla Tamayo y Arq. Alejandro Jack Barrios
Construcción: Stock Ingeniería
Fecha proyecto: 2005
Fecha construcción: 2005-2007
Ingeniero estructural: Eliud Hernández
Ingeniero sanitarias: Emonca ingeniería
Instalaciones contra incendios: Ing. Ricardo Ortega
Ingeniero electrico: Piero Gallo
Ingeniero mecánico: Juan Ignacio vera
Revestimientos de fachadas: macuples y Onelite
Vidrios: Macuples
Iluminación: Lumilux y Bticino
Ascensor: Shindler
Estructura metálica: Stock Ingeniería
Señalización: Edison publicidad
Mobiliario: Spazio Mobile
Persianas: Isorama
Sitio web: http://www.morasso-arquitectos.com

 

Ver planos de la obra

Este proyecto se hizo realidad gracias a la integración casi orquestal de dos oficinas venezolanas: Morasso arquitectos y Morasso, Seijas y asociados.

El trabajo en conjunto de los arquitectos Juan Ignacio Morasso (encargado del diseño de la edificación) y la arquitecta Dolores Elena Morasso (encargada del diseño interior) dieron como resultado una pieza que calza armónicamente en el contexto urbano y genera una propuesta interesante y diferente para la avenida Las Américas de Puerto Ordaz en el sector Altavista, una arteria principal de ciudad Guayana.

El proyecto se concibió para uso exclusivo de la compañía aseguradora Seguros Guayana. Esta edificación, con casi 5000 m2 de construcción, se encuentra proyectada en el terreno un área total de 3000 m2.

El volumen de forma rectangular se ubica longitudinalmente con sus caras de mayor longitud hacia el norte y el sur, lo cual favorece su ubicación con relación a la insolación solar.

Hacia el oeste existe un volumen cúbico asimétrico con funciones especificas y que urbanisticamente da una respuesta al futuro paseo peatonal que vendrá desde el centro de la ciudad y genera una ruptura tipo ranura entre las dos piezas, la cual sirve como acceso y elemento conector entre ellos.

Hacia la parte posterior o fachada norte, por razones de visuales es la fachada más sólida de aluminio blanco con aberturas y ventanas recedidas creando jardineras hacia las oficinas como elementos de control solar.

Existe un estacionamiento de vehículos de empleados con capacidad aproximada de 44 vehículos, al igual que el área de inspección y peritaje de siniestros para la compañía, donde se genera un techo suspendido sobre dos columnas centrales y vuelan hacia los lados en Cantilever.

La edificación consta de 4 niveles, incluyendo el nivel planta baja y techo visitable, la cual contempla el comedor de empleados y un área de terraza al aire libre para eventos especiales y esparcimiento.

El edificio tiene en la parte superior un alero perimetral con función de protección solar a lo largo que sobresale ligeramente sobre el plano de la fachada acristalada para generar sombra a manera de paraguas y controlador solar.

Este alero ubicado a 16 metros de altura sirve igualmente para mantener la altura del contexto inmediato y alinearse con los edificios aledaños.

Hacia el lado este se ubica verticalmente la escalera metálica externa de emergencia de todo el edificio a manera de elemento independiente, la cual cuelga de una pared portante sin estructura vertical.

A nivel de calle se propone elevar la edificación por encima del nivel de acera para dar más relevancia al volumen del edificio, generando una terraza privada y definiendo con ello el área de acera y el acceso a la edificacion, creando así el paisajismo adecuado y las delimitaciones del lindero de la parcela con su entorno urbano.

Hacia el lado oeste se encuentra proyectado a futuro un paseo peatonal tipo Boulevar, el cual se está considerando como pieza clave en el diseño de la edificación la cual se intervendrá con tratamiento de pisos uniformes, iluminación peatonal adecuada, mobiliario y paisajismo urbano.

La sala de conferencias principal, con capacidad de más de 20 personas ubicada en el nivel de presidencia, es un gran elemento tipo óvalo suspendido de la placa que se incrusta en el volumen central como espacio organizador de las circulaciones y las funciones externas.

Este óvalo se proyecta hasta el nivel techo para generar una entrada de luz cenital a todo el borde del cerramiento.


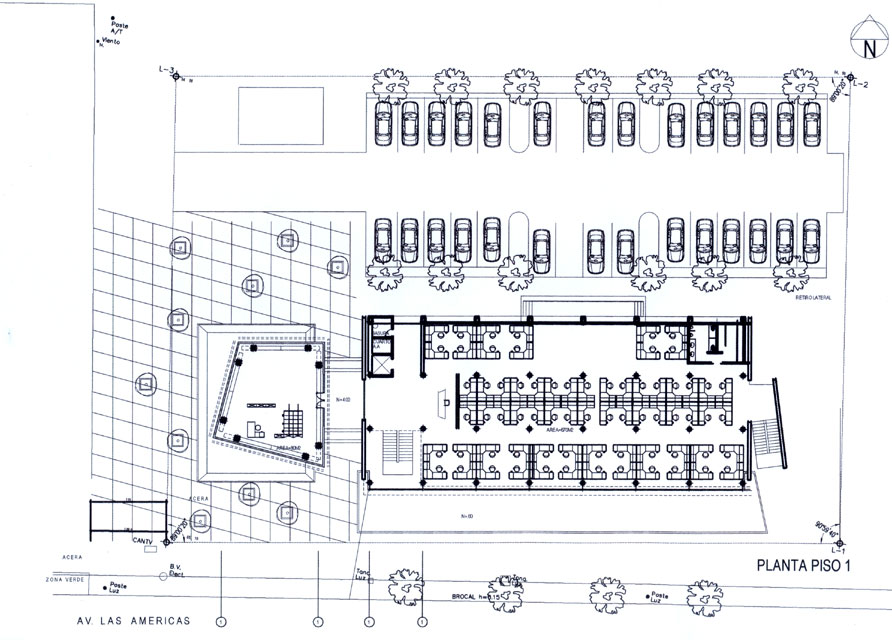
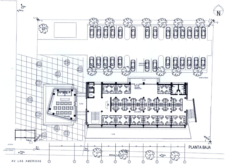
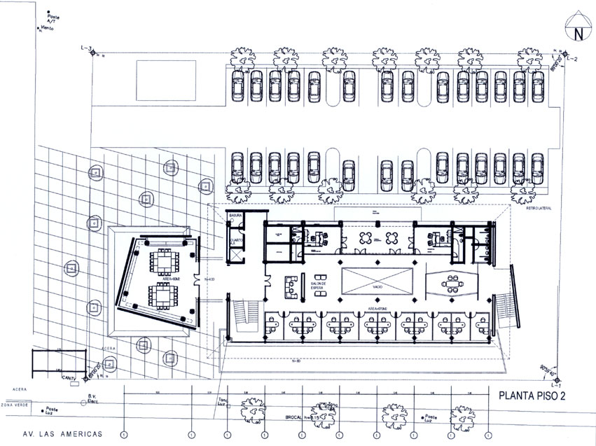
Planos
Realice click en los links para ver los planos.

[1] Planta baja
[2] Planta 1º nivel
[3] Planta 2º nivel
[4] Planta de techos
[5] Corte 1
[6] Corte 2
[7] Corte 3
[8] Vista 1
[9] Vista 2
[10] Planta baja c/ mobiliario
[11] Planta 1º c/ mobiliario


Imágenes

Realice click sobre las imágenes para ampliarlas.

 
Curso Tecnicas de postproduccion para fotografia arquitectonica
 
 
Si usted es profesional, este es su espacio para publicar su obra o proyecto (en forma gratuita). Para más información visitar la sección contacto: click aquí.
   
   

Noticias
informes especiales
bienal de arquitectura BA11
bienal de arquitectura BA09
publicaciones

Artículos
notas y artículos de interés
arquitectura legal
diseño de iluminación
software de arquitectura y diseño

Recursos
curso de decoracion (gratis/online)
archivo temático
descargas externas
curso de croquis (gratis/online)

Precios y costos
precios de materiales, indices y
costos m2 de construcción

Proyecto
obras construidas
proyectos para concursos
proyectos de estudiantes
arquitectos destacados
obras destacadas

Diseño
diseño industrial y mobiliario
diseño interior y decoración
Casa FOA 2009
Casa FOA 2010
Casa FOA 2011
Casa FOA 2012
Casa FOA 2013
Casa FOA 2014
Estilo Pilar 2010
Estilo Pilar 2012

Construcción
materiales y tecnologías
novedades de empresas
sector inmobiliario

Agenda
cursos y seminarios
congresos y bienales
charlas y eventos
exposiciones y muestras
concursos

Facultad
becas y subsidios
posgrados y maestrías
donde estudiar

Varios
ofertas laborales arquitectura, diseño y construccion
suscripcion newsletter (gratis)
redes sociales
publicidad

Arquimaster en Facebook
Arquimaster en Twitter
Arquimaster en LinkedIn
Arquimaster en Pinterest