Arquimaster - Medio digital de arquitectura, diseño y construccion Estas visitando la version anterior,
para ver la version actual realiza click aca

 

     
       
 
Climanet - Doble Vidrio Hermetico DVH
Matyser - Materiales y servicios para la construccion
Cursos de arquitectura y diseño de espacios
Anclaflex
Curso Introducción a Revit: Modela tus proyectos arquitectonicos
Bara
Vivienda Colombres 1760 - Estudio LGR (G. Lanosa y J. González Ruiz)
Curso Postproducción de render arquitectónico con SketchUp y Photoshop
 

Ficha técnica
Obra: Vivienda individual, reciclaje y ampliación
Ubicación: Colombres 1760, Boedo, Ciudad de Buenos Aires
Proyecto y dirección de obra: Arquitectos Gabriel Lanosa y Josu González Ruiz, estudio LGR
Superficie del terreno: 146 m2
Superficie cubierta: 126 m2
Duración de obra: 5 meses
Año: 2003

La casa de habitaciones sucesivas y patio lateral es un objeto de vanguardia.

Flexible, indeterminado, neutro, abstracto, debiera ser analizado desde esta perspectiva por los buscadores de novedad.

El problema es su vejez, el descrédito de conformar buena parte de nuestra ciudad, el no venir de Ámsterdam, el cargar con el estigma de entrar en la carpeta de los cataloguistas.

Organismo de adaptación infinita, es una lección de Arquitectura.

Boedo Sur, campo de pruebas de la adaptación sin arquitectos, suma a estas aptitudes "tipológicas", su particular condición topográfica.

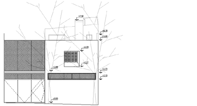
La pendiente de las calles que resuelve el desnivel entre San Juan y Caseros dejó a las construcciones más antiguas en su nivel original.

A la altura de nuestra obra esta diferencia de nivel alcanza 1.80m, situación más que oportuna para una obra que abre su patio lateral, norte, al espacio publico.

Decidimos explotar esta condición a la vez de duplicar la superficie de expansión.

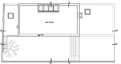
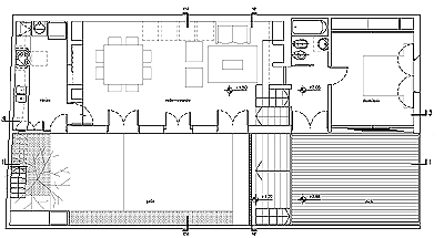
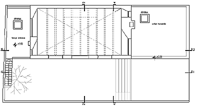
Liberamos el patio, ocupado por construcciones parásitas, y retiramos los primeros 5m de tierra en todo el ancho del lote.

Sobre la mitad cubierta se construyeron el estudio y sobre él el dormitorio.

Sobre la otra mitad, la entrada (cochera) patio semicubierto por el deck descubierto, todo esto vinculado a medios niveles con la altura existente, lo que produjo una fluida vinculación de todos los espacios.

Sobre esta altura existente se decidió conservar la caja original de la construcción, la más noble y sólida, con sus gruesos muros de adobe y techo de tiranteria de pinotea y ladrillo de panza, y una altura libre de 5.00m.

Se eludieron estrategias como componer por oposición o por asimilación.

Hemos optado por la convivencia, lo existente y lo nuevo se fusionan en una nueva totalidad atemporal.

Lo moderno afirma la simetría de lo antiguo, lo viejo impone axialidades a lo nuevo.

Todo es blanco.

Se utilizaron técnicas constructivas convencionales y materiales baratos y en bruto de manera no convencional, esto además de achicar costos produjo un efecto de extrañamiento como resultado de esta operación de recontextualización, estimulando la memoria.

 
Curso de Introduccion a Sketchup: Visualizacion arquitectonica y modelado D
 
Si usted es profesional, este es su espacio para publicar su obra o proyecto (en forma gratuita). Para más información visitar la sección contacto: click aquí.
   
   

Noticias
informes especiales
bienal de arquitectura BA11
bienal de arquitectura BA09
publicaciones

Artículos
notas y artículos de interés
arquitectura legal
diseño de iluminación
software de arquitectura y diseño

Recursos
curso de decoracion (gratis/online)
archivo temático
descargas externas
curso de croquis (gratis/online)

Precios y costos
precios de materiales, indices y
costos m2 de construcción

Proyecto
obras construidas
proyectos para concursos
proyectos de estudiantes
arquitectos destacados
obras destacadas

Diseño
diseño industrial y mobiliario
diseño interior y decoración
Casa FOA 2009
Casa FOA 2010
Casa FOA 2011
Casa FOA 2012
Casa FOA 2013
Casa FOA 2014
Estilo Pilar 2010
Estilo Pilar 2012

Construcción
materiales y tecnologías
novedades de empresas
sector inmobiliario

Agenda
cursos y seminarios
congresos y bienales
charlas y eventos
exposiciones y muestras
concursos

Facultad
becas y subsidios
posgrados y maestrías
donde estudiar

Varios
ofertas laborales arquitectura, diseño y construccion
suscripcion newsletter (gratis)
redes sociales
publicidad

Arquimaster en Facebook
Arquimaster en Twitter
Arquimaster en LinkedIn
Arquimaster en Pinterest