Arquimaster - Medio digital de arquitectura, diseño y construccion Estas visitando la version anterior,
para ver la version actual realiza click aca

 

     
       
 
Climanet - Doble Vidrio Hermetico DVH
Matyser - Materiales y servicios para la construccion
Cursos de arquitectura y diseño de espacios
Anclaflex
Curso Introducción a Revit: Modela tus proyectos arquitectonicos
Bara
Casa en Isla de Pucusana (Lima, Perú) - Artadi Arquitectos
Curso Idea y visualización arquitectónica con Blender
 

Ficha técnica
Nombre: Casa en Isla de Pucusana
Ubicación: Isla de Pucusana, Lima, Perú
Proyectista: Javier Artadi
Sitio web: http://www.javierartadi.com

 

Ver planos de la obra

Construida en una formación rocosa en la Isla de Pucusana, a ochenta kilómetros de la ciudad de Lima, esta pequeña casa sintetiza la relación entre una arquitectura de geometría abstracta y el paisaje natural de nuestra costa.

Aunque emplazada en un terreno de mínimas dimensiones, la casa cuenta con un programa completo de vivienda junto al mar: sala de estar comedor, cocina, patio y terraza en el tercer nivel, cuatro dormitorios y sus baños en los pisos medios y altos, y dormitorio del servicio, cisterna y cuarto de botes en el primero.

Volumétricamente consiste en un paralelepípedo sólido cuya masa ha sido liberada tanto en un sentido vertical (tierra-cielo) como en el horizontal (tierra mar). Esta constante sensación de materia-vacío culmina al volar hacia el mar al plano ingrávido de la terraza.

El tema central de la propuesta, la comunicación con la naturaleza, se manifiesta principalmente en el trabajo de los diferentes tipos de vistas.

Así, por ejemplo, el dormitorio principal y la ventana de ingreso tienen vistas unidireccionales con el objeto de enmarcar fotográficamente el paisaje mientras que en el tercer piso la actividad social de la terraza motiva el manejo de vistas estereoscópicas, lo que permite apreciar al mismo tiempo cielo, arena y mar.

El estudio de los diferentes registros de luz natural también contribuye a este fin: ingreso vertical de luz al ascender por la escalera para lograr una conexión con el cielo horizontal al descenderla para una mejor visión del paisaje marino.

Los conceptos que soportan este proyecto revelan nuestra idea de lo que debía significar esta casa para el lugar: un gesto arquitectónico al lado del mar que busca valorar la especial geografía en esta parte del litoral peruano.


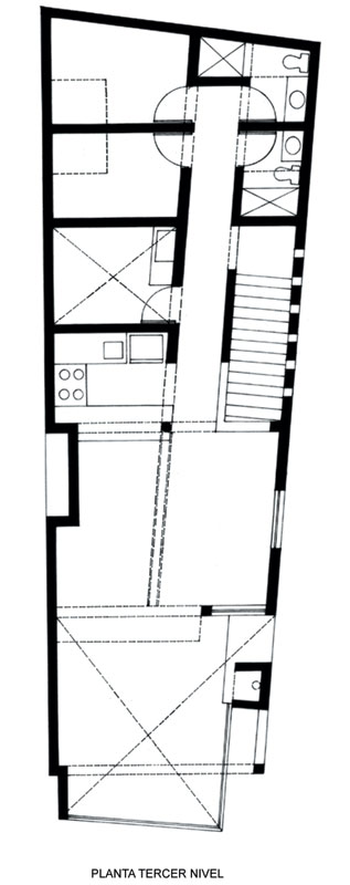
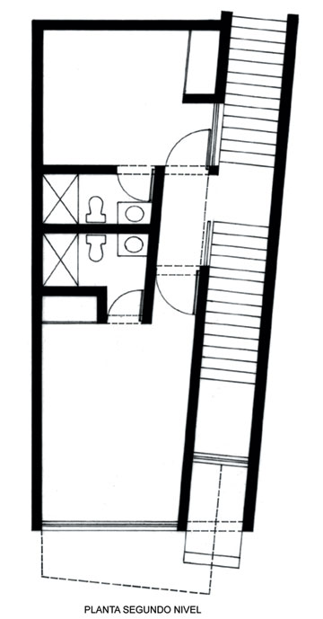
Planos
Realice click en los links para ver los planos.

[1] Planta baja
[2] Planta 1º piso
[3] Planta 2º piso
[4] Vista
[5] Axonométrica
[6] Evolución
[7] Ubicación


Imágenes

Realice click sobre las imágenes para ampliarlas.


Acerca del proyectista
Javier Artadi concluye sus estudios universitarios en la Facultad de Arquitectura y Urbanismo de la Universidad Ricardo Palma, en Lima, Perú en 1985.

En 1986 abre su estudio privado de arquitectura donde hasta la fecha ha realizado numerosos proyectos de Arquitectura y Urbanismo.

Ha obtenido premios y distinciones en concursos de arquitectura así como en bienales de arquitectura del Perú.

Es profesor de Diseño Arquitectónico en la Facultad de Arquitectura de la Universidad Peruana de Ciencias Aplicadas UPC.

Ha sido finalista en la IV Bienal Iberoamericana de Arquitectura con el proyecto Casa en Playa Las Arenas.

Ha sido invitado a presentar su trabajo en eventos de arquitectura en Latinoamérica, Estados Unidos y Europa.

Su obra ha sido publicada en revistas de arquitectura de los cuatro continentes como Interni de Italia, Abstract de Bélgica, Escala de Colombia, Architectural Digest de Estados Unidos, Interior Digest de Rusia y Architectural Record donde su Casa de Las Arenas fue elegida una de las record houses del 2006 y en libros especializados como La Casa Frente al Mar, editado en España y La Casa Latinoamericana, editado por Electa-Mondadori, en Italia.

Su obra es permanentemente investigada por alumnos de arquitectura de todo el mundo por su fuerte relación entre arquitectura moderna y el paisaje característico de la costa desértica del Perú.

 
Curso Tecnicas de postproduccion para fotografia arquitectonica
 
 
Si usted es profesional, este es su espacio para publicar su obra o proyecto (en forma gratuita). Para más información visitar la sección contacto: click aquí.
   
   

Noticias
informes especiales
bienal de arquitectura BA11
bienal de arquitectura BA09
publicaciones

Artículos
notas y artículos de interés
arquitectura legal
diseño de iluminación
software de arquitectura y diseño

Recursos
curso de decoracion (gratis/online)
archivo temático
descargas externas
curso de croquis (gratis/online)

Precios y costos
precios de materiales, indices y
costos m2 de construcción

Proyecto
obras construidas
proyectos para concursos
proyectos de estudiantes
arquitectos destacados
obras destacadas

Diseño
diseño industrial y mobiliario
diseño interior y decoración
Casa FOA 2009
Casa FOA 2010
Casa FOA 2011
Casa FOA 2012
Casa FOA 2013
Casa FOA 2014
Estilo Pilar 2010
Estilo Pilar 2012

Construcción
materiales y tecnologías
novedades de empresas
sector inmobiliario

Agenda
cursos y seminarios
congresos y bienales
charlas y eventos
exposiciones y muestras
concursos

Facultad
becas y subsidios
posgrados y maestrías
donde estudiar

Varios
ofertas laborales arquitectura, diseño y construccion
suscripcion newsletter (gratis)
redes sociales
publicidad

Arquimaster en Facebook
Arquimaster en Twitter
Arquimaster en LinkedIn
Arquimaster en Pinterest