Arquimaster - Medio digital de arquitectura, diseño y construccion Estas visitando la version anterior,
para ver la version actual realiza click aca

 

     
       
 
Climanet - Doble Vidrio Hermetico DVH
Matyser - Materiales y servicios para la construccion
Cursos de arquitectura y diseño de espacios
Anclaflex
Curso Introducción a Revit: Modela tus proyectos arquitectonicos
Bara
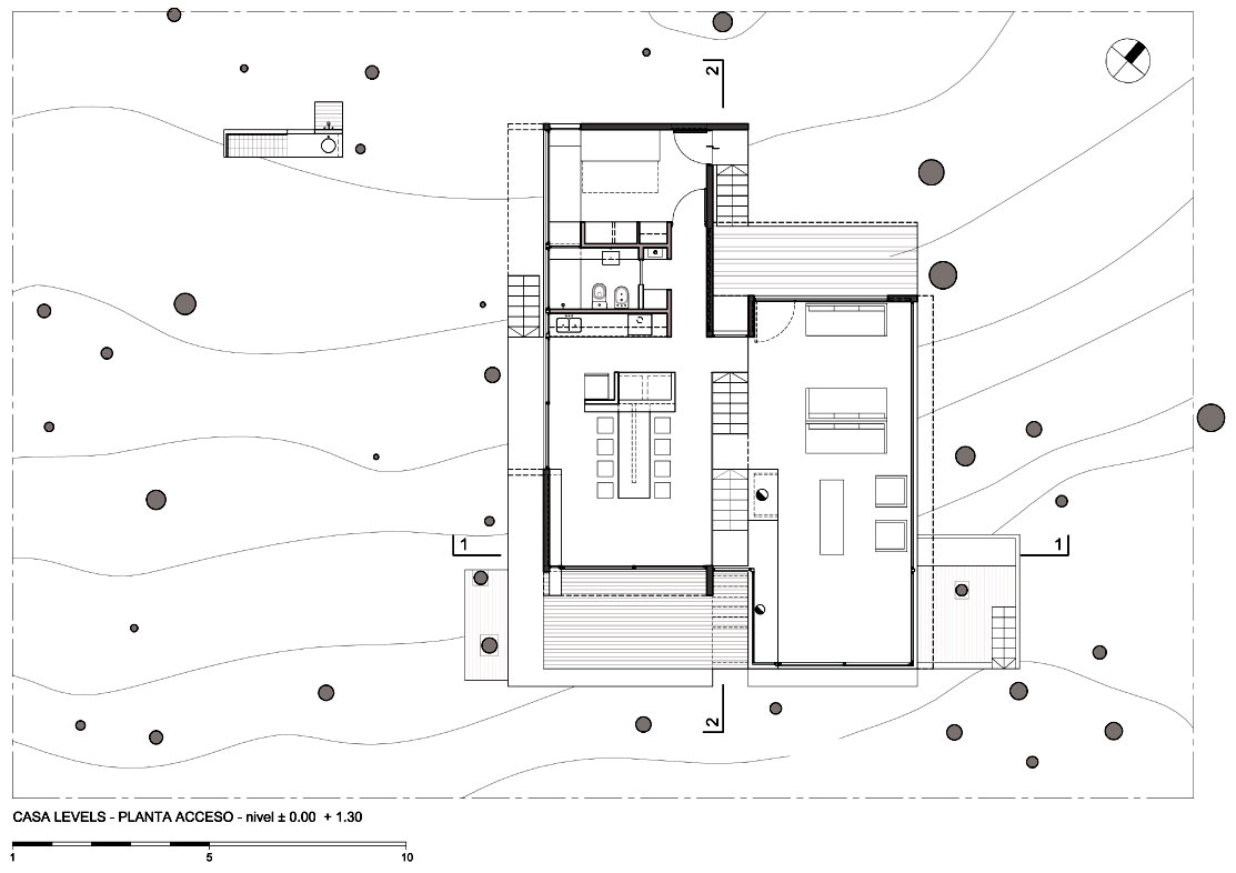
Casa Levels (Vivienda de veraneo en el Bosque de Mar Azul, Pcia. Buenos Aires) - Arqs. María Victoria Besonías y Luciano Kruk
Curso Dibujo y modelado de entornos urbanos con AutoCAD y SketchUp
 

Ficha técnica
Obra: Casa Levels (Vivienda de veraneo)
Ubicación: Bosque de Mar Azul, Pcia. de Buenos Aires, Argentina
Arquitectos: María Victoria Besonías, Luciano Kruk
Colaboradores: Arq. Nuria Jover, Enzo Vitali
Superficie del terreno: 600 m2
Superficie construida: 187.02 m2
Año de construcción: 2011
Fotos: Gustavo Sosa Pinilla

 

Ver planos de la obra

La obra es el resultado de un proceso que se inicia con la construcción en el año 2004 de una casa de veraneo en el bosque de Mar Azul con la premisa de construir en el bosque proponiendo alternativas que garanticen la supervivencia de los entornos naturales y una arquitectura de mínimos recursos tanto materiales como formales.


El lugar

El terreno sobre el que debíamos intervenir, forestado con pinos marítimos de gran porte, presenta un desnivel de aproximadamente 3 metros en el sentido de su frente.

En relación con la calle un extremo del mismo se encuentra elevado mientras que el opuesto presenta una depresión, que unas acacias de gran tamaño, ocultan de las vistas desde la calle.


El encargo

El pedido del comitente fue una casa de hormigón a la vista para ser usada durante gran parte del año, por una familia ensamblada.

Era muy importante que el área social resultara de importante tamaño y también que el dormitorio principal pudiera funcionar como un sector de gran independencia y equipado como para no depender del resto de la casa.

Se requirió expresamente que la casa contara con múltiples lugares de guardado ya que la idea es habitarla durante los tres meses de verano de forma continuada.


La propuesta

El relieve particular del lote, su relación con la calle y el requerimiento de un programa extenso resuelto en sectores con cierta independencia, son los temas que hacen singular a esta casa con una propuesta estético constructiva similar a las otras construidas por el estudio en Mar Azul.

Se concibió la vivienda resuelta en cuatro sectores conectados a medios niveles, por una única escalera.

Esta decisión nos permitió reducir las superficies de circulación al mínimo e ir acomodando los diversos usos acompañando la pendiente natural del lote e incluso enterrando parte de los mismos, reduciendo de esta forma, la presencia de lo construido.

La escalera por supuesto se transforma en el organizador no sólo funcional sino espacial haciendo de nexo en aquellos espacios que se necesitan integrar.

Con esta disposición volumétrica y cuidando de mantener la mayor cantidad de vegetación se consiguió dotar a la casa de la variedad y la flexibilidad de espacios requeridos sin perder independencia de uso entre los mismos y proponiendo, para todos ellos, una franca integración con el paisaje a través de aberturas que lo van enmarcando.


Planos
Realice click en los links para ver los planos.

[1] Planta baja
[2] Planta alta
[3] Corte 1
[4] Corte 2


Imágenes

Realice click sobre las imágenes para ampliarlas.

 
Curso Ilustración arquitectónica: capta la personalidad de una ciudad
 
 
Si usted es profesional, este es su espacio para publicar su obra o proyecto (en forma gratuita). Para más información visitar la sección contacto: click aquí.
   
   

Noticias
informes especiales
bienal de arquitectura BA11
bienal de arquitectura BA09
publicaciones

Artículos
notas y artículos de interés
arquitectura legal
diseño de iluminación
software de arquitectura y diseño

Recursos
curso de decoracion (gratis/online)
archivo temático
descargas externas
curso de croquis (gratis/online)

Precios y costos
precios de materiales, indices y
costos m2 de construcción

Proyecto
obras construidas
proyectos para concursos
proyectos de estudiantes
arquitectos destacados
obras destacadas

Diseño
diseño industrial y mobiliario
diseño interior y decoración
Casa FOA 2009
Casa FOA 2010
Casa FOA 2011
Casa FOA 2012
Casa FOA 2013
Casa FOA 2014
Estilo Pilar 2010
Estilo Pilar 2012

Construcción
materiales y tecnologías
novedades de empresas
sector inmobiliario

Agenda
cursos y seminarios
congresos y bienales
charlas y eventos
exposiciones y muestras
concursos

Facultad
becas y subsidios
posgrados y maestrías
donde estudiar

Varios
ofertas laborales arquitectura, diseño y construccion
suscripcion newsletter (gratis)
redes sociales
publicidad

Arquimaster en Facebook
Arquimaster en Twitter
Arquimaster en LinkedIn
Arquimaster en Pinterest