Arquimaster - Medio digital de arquitectura, diseño y construccion Estas visitando la version anterior,
para ver la version actual realiza click aca

 

     
       
 
Climanet - Doble Vidrio Hermetico DVH
Matyser - Materiales y servicios para la construccion
Cursos de arquitectura y diseño de espacios
Anclaflex
Curso Introducción a Revit: Modela tus proyectos arquitectonicos
Bara
Vivienda A&T (Posadas, Misiones) - Módulo 3 arquitectura (Arqs. Martín Botterón y Kuki Gómez)
Curso Dibujo arquitectónico expresivo con marcadores de colores
 

Ficha técnica
Proyecto: Vivienda A&T
Ubicación: Posadas, Misiones, Argentina
Autor: Módulo 3 arquitectura (Arqs. Martín Botterón y Kuki Gómez)
Propietario: Aristóbulo Yegros
Construcción: Ing Yegros SRL
Cálculo: Ing. Aristóbulo Yegros y Rosana Labarba
Superficie a construir: 191 m2
Año de proyecto: 2009
Estado actual: en construcción
Sitio web: http://www.estudiomodulo3.com

Ver planos del proyecto

Desde la expresividad formal y cromática, esta vivienda unifamiliar irrumpe en un entorno austero y sin fuertes preexistencias, exhibiendo una provocadora fachada que rompe con la ortogonalidad compositiva tradicional que impera en la zona.

Los planos verticales, horizontales e inclinados, al cruzarse entre sí, generan un sinfin de tensiones y sensaciones que invitan a recorrer visualmente la vivienda desde múltiples puntos, haciendo única cada perspectiva visual.

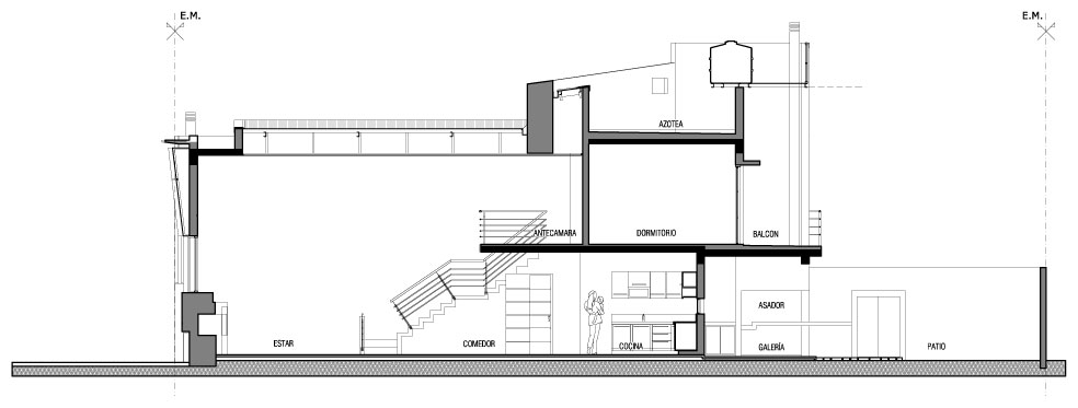
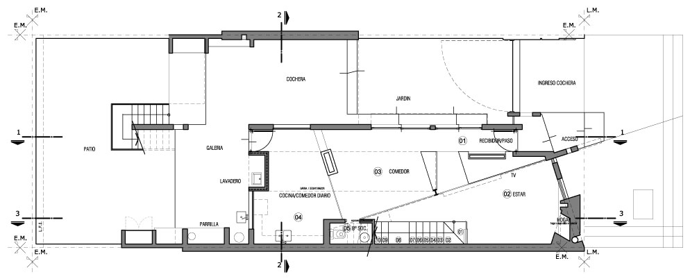
Internamente la vivienda, a partir de un planteo funcional sencillo, adquiere un tinte vanguardista, gracias a un espacio fluído único, en planta baja, que va concatenando los distintos usos que allí se dan, comenzando por el living en doble altura y culminando en la cocina, pasando previamente por el comedor.

Materiales nobles y modernos, como la madera y el microcemento, en los pisos, losa expuesta, en los cielorrasos y grandes aberturas de aluminio que aportan gran luminosidad, hacen del area pública un acogedor lugar para realizar las distintas actividades hogareñas.

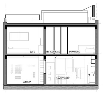
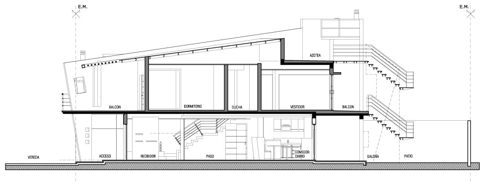
Por su parte la planta alta alberga a los 2 dormitorios y a la suite, que también se conecta con el patio de la vivienda a través de una escalera desnuda que, naciendo en la galería de la planta baja, concluye su recorrido en la azotea de la vivienda, por encima de los dormitorios.

Actualmente la vivienda se encuentra en etapa de construcción.


Planos
Realice click en los links para ver los planos.

[1] Planta baja
[2] Planta alta
[3] Planta de techos
[4] Corte 1
[5] Corte 2
[6] Corte 3
[7] Vista frente
[8] Vista contrafrente


Imágenes
Realice click sobre las imágenes para ampliarlas.

Acerca de los proyectistas
Módulo 3 surge en el año 2005 con el firme propósito de dar respuestas integrales a las exigencias actuales del mercado, traducidas en un diseño innovador y exclusivo, rigurosidad técnica en la materialización de las obras y coherencia estética en la decoración de las mismas.

A estos tres esenciales componentes, diseño/construcción/decoración, se los ha denominado módulos, a los que se le da dedicación con alto compromiso y seriedad, garantizando así, un producto de diseño vanguardista, plasmado con un estricto profesionalismo constructivo y acabado con un exclusivo gusto estético.

Módulo 3 está integrado por:

Arq. Martín Botterón: Arquitecto, egresado de la carrera de Grado en la Facultad de Arquitectura, Diseño y Urbanismo, Universidad Nacional del Litoral (UNL), Santa Fe, Argentina (2000). Arquitecto y Especialista en Pericias y Tasaciones, egresado de la carrera de Posgrado en la Facultad de Arquitectura, Diseño y Urbanismo, Universidad Nacional del Litoral (UNL), Santa Fe, Argentina (2004). Beta Tester de Artlanstis Renders & Studio, de Abvent Group (Francia).

Arq. Kuki Gómez: Arquitecto, egresado de la carrera de Grado en la Facultad de Arquitectura, Diseño y Urbanismo, Universidad Nacional Córdoba, Córdoba, Argentina (1998).

Vilma César: Decoradora de Interiores, egresada del I.S.E.T. Posadas, Misiones (año 2000).

En Módulo 3 nos proponemos crear espacios únicos e innovadores que brinden a nuestros clientes la experiencia de una arquitectura exclusiva y de vanguardia. Proyectamos comprendiendo las ilusiones, sueños y expectativas de quiénes buscan un diseño audaz y original.

Desde el momento que plasmamos la primera línea en el papel comenzamos a vivir junto al cliente cada rincón de su futuro hábitat, convirtiéndonos en una parte importante de la materialización de sus anhelos. Somos incansables en la búsqueda de ese espacio, ese lugar único, su lugar, que contenga al propietario y lo haga sentir intensamente complacido.

 
Curso Diseño arquitectónico de exteriores con V-Ray
 
 
Si usted es profesional, este es su espacio para publicar su obra o proyecto (en forma gratuita). Para más información visitar la sección contacto: click aquí.
   
   

Noticias
informes especiales
bienal de arquitectura BA11
bienal de arquitectura BA09
publicaciones

Artículos
notas y artículos de interés
arquitectura legal
diseño de iluminación
software de arquitectura y diseño

Recursos
curso de decoracion (gratis/online)
archivo temático
descargas externas
curso de croquis (gratis/online)

Precios y costos
precios de materiales, indices y
costos m2 de construcción

Proyecto
obras construidas
proyectos para concursos
proyectos de estudiantes
arquitectos destacados
obras destacadas

Diseño
diseño industrial y mobiliario
diseño interior y decoración
Casa FOA 2009
Casa FOA 2010
Casa FOA 2011
Casa FOA 2012
Casa FOA 2013
Casa FOA 2014
Estilo Pilar 2010
Estilo Pilar 2012

Construcción
materiales y tecnologías
novedades de empresas
sector inmobiliario

Agenda
cursos y seminarios
congresos y bienales
charlas y eventos
exposiciones y muestras
concursos

Facultad
becas y subsidios
posgrados y maestrías
donde estudiar

Varios
ofertas laborales arquitectura, diseño y construccion
suscripcion newsletter (gratis)
redes sociales
publicidad

Arquimaster en Facebook
Arquimaster en Twitter
Arquimaster en LinkedIn
Arquimaster en Pinterest