Arquimaster - Medio digital de arquitectura, diseño y construccion Estas visitando la version anterior,
para ver la version actual realiza click aca

 

     
       
 
Climanet - Doble Vidrio Hermetico DVH
Matyser - Materiales y servicios para la construccion
Cursos de arquitectura y diseño de espacios
Anclaflex
Curso Introducción a Revit: Modela tus proyectos arquitectonicos
Bara
Vivienda en Francisco Álvarez (Moreno, Pcia. de Buenos Aires) - Arq. José Pablo Lotorto
Curso Dibujo arquitectónico expresivo con marcadores de colores
 

Ficha técnica
Programa: Vivienda unifamiliar
Ubicación: Francisco Álvarez, Moreno, Pcia. Buenos Aires, Argentina
Proyecto: Arquitecto José Pablo Lotorto
Dirección de obra: José Pablo Lotorto
Calculo estructural: José Pablo Lotorto
Colaboradores: María Eugenia Suarez (renders)
Fotografías: Pedro Funes
Materiales: estructura: hormigón armado; mampostería: bloque cerámico; carpinterías: aluminio alta prestación (Hydro Rotonda 700); vidrios: dobles herméticos; pisos: madera natural y microcemento (Duropisos); calefacción: central por radiadores (Triangular); cañerías sanitarias: polipropileno (IPS); griferías: bronce cromado (FV)
Superficie terreno: 736 m2
Superficie obra: 333 m2
Fecha proyecto: 2009
Fecha construcción: 2010/2011

 

Ver planos de la obra

Francisco Álvarez es un lugar tranquilo, ubicado a unos 45 km al oeste de la Capital Federal, que durante las últimas décadas, al ritmo de la expansión del área metropolitana, transformó su perfil agropecuario para convertirse en una zona urbanizada de baja densidad, caracterizada por la presencia de viviendas de fin de semana y conjuntos habitacionales privados.

En este sitio, en un pequeño condominio se proyectó y construyo la obra, la cual debía responder a las necesidades de una pareja joven cuya premisa principal fue tener una casa conceptualmente austera, que integrara las actividades internas con el exterior y simplificara las funciones cotidianas.

Despojada, de lenguaje simple, se resolvió mediante operaciones de yuxtaposición entre volúmenes y planos. Dos prismas, dispuestos en forma de ángulo, obturan las visuales desde las calles.

Una cinta de hormigón cose lúdicamente los dos cuerpos otorgando unidad formal. La ubicación de la escalera en la rotula formal aseguró, de forma clásica, la conexión vertical de manera simple y efectiva.

El leve retranco de las fachadas de la planta alta disminuyó el impacto de los volúmenes sobre los lugares de aproximación, reduciendo sensiblemente la escala.

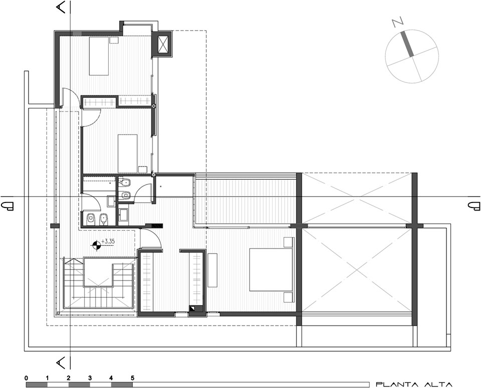
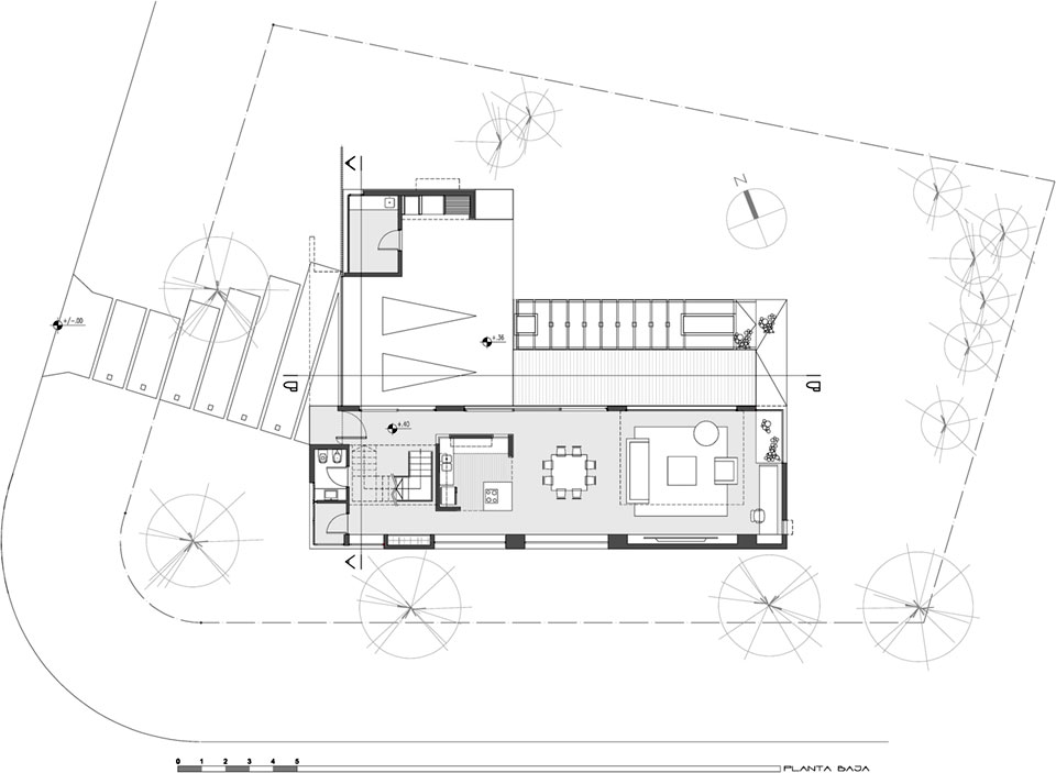
Funcionalmente, se estableció un contrapunto entre los lugares para el recogimiento y aquellos dedicados a la vida social, los dormitorios en la planta superior y la sala de estar, comedor, expansión y servicios en la planta baja, una tipología habitual para viviendas de estas dimensiones.

Sin énfasis sobre lo estructural, la obra oculta ciertos artilugios necesarios para alivianar perceptualmente el peso del hormigón.

Gran parte del entrepiso, conformado por un sistema de losas y vigas cinta, está colgado por tensores de una superestructura dispuesta en la terraza, generando una sensación levitación ante la ausencia de columnas y la continuidad del plano horizontal. A su vez, los pliegues de la losa, rigidizan estructuralmente y consolidan este precepto formal.

Las interfaces más complejas de resolver suelen ser los huecos, que además de responder a las exigencias técnico-constructivas deben consolidar la idea de arquitectura. En este sentido existe un fuerte contraste entre los aventanamientos exteriores e interiores de la casa.

Las ventanas a la calle son de reducido tamaño o poseen poca transparencia, en cambio las internas al jardín son amplias y predominan por sobre los planos llenos.

Mientras las primeras se disponen horizontalmente en función de la altura de observación y según el uso de cada local, las otras liberan las visuales panorámicamente sin direccionamientos.

También se cuidó el diseño del mobiliario fijo. En la planta baja se dispuso un mueble multifunción de grandes dimensiones, 2.70 m de alto por 18.00 m de largo, que soporta simultáneamente sistemas de audio, video, guardado de vajilla, bodega, guardarropa y oculta los equipos de acondicionamiento de aire, a la vez que alterna e integra las carpinterías.

La tectónica se trató siguiendo un criterio de simpleza con reminiscencias del pasado y lo natural. Todos los paramentos se revistieron con revoques texturados, piedra natural y madera de guayubira.

Tanto en el interior como en el exterior se limitó la variedad de pisos, cemento micro alisado y entablados de incienso, cada uno en plantas diferentes. Se construyeron tradicionales cielos armados de yeso y el hormigón se dejó visto.

El estudio de las condiciones climáticas y de asoleamiento se considero en el proyecto de los elementos pasivos de control solar y de los sistemas térmicos, a fin de asegurar el confort deseado.

La casa propone diferentes interpretaciones, sin caer en posturas extremas sobre dogmas teóricos, sean estos estéticos, funcionales o tecnológicos.


Planos
Realice click en los links para ver los planos.

[1] Planta baja
[2] Planta alta
[3] Corte A
[4] Corte B
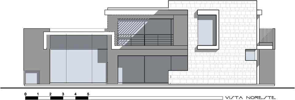
[5] Vista noreste
[6] Vista noroeste
[7] Vista suroeste


Imágenes

Realice click sobre las imágenes para ampliarlas.

 
Curso Diseño y modelado arquitectónico 3D con Revit
 
 
Si usted es profesional, este es su espacio para publicar su obra o proyecto (en forma gratuita). Para más información visitar la sección contacto: click aquí.
   
   

Noticias
informes especiales
bienal de arquitectura BA11
bienal de arquitectura BA09
publicaciones

Artículos
notas y artículos de interés
arquitectura legal
diseño de iluminación
software de arquitectura y diseño

Recursos
curso de decoracion (gratis/online)
archivo temático
descargas externas
curso de croquis (gratis/online)

Precios y costos
precios de materiales, indices y
costos m2 de construcción

Proyecto
obras construidas
proyectos para concursos
proyectos de estudiantes
arquitectos destacados
obras destacadas

Diseño
diseño industrial y mobiliario
diseño interior y decoración
Casa FOA 2009
Casa FOA 2010
Casa FOA 2011
Casa FOA 2012
Casa FOA 2013
Casa FOA 2014
Estilo Pilar 2010
Estilo Pilar 2012

Construcción
materiales y tecnologías
novedades de empresas
sector inmobiliario

Agenda
cursos y seminarios
congresos y bienales
charlas y eventos
exposiciones y muestras
concursos

Facultad
becas y subsidios
posgrados y maestrías
donde estudiar

Varios
ofertas laborales arquitectura, diseño y construccion
suscripcion newsletter (gratis)
redes sociales
publicidad

Arquimaster en Facebook
Arquimaster en Twitter
Arquimaster en LinkedIn
Arquimaster en Pinterest