Arquimaster - Medio digital de arquitectura, diseño y construccion Estas visitando la version anterior,
para ver la version actual realiza click aca

 

     
       
 
Climanet - Doble Vidrio Hermetico DVH
Matyser - Materiales y servicios para la construccion
Cursos de arquitectura y diseño de espacios
Anclaflex
Curso Introducción a Revit: Modela tus proyectos arquitectonicos
Bara
Condominio Sol de Acapulco (La Molina, Lima, Perú) - Gomez De La Torre y Guerrero arqs.
Curso ArchViz de interiores: crea diseños 3D surrealistas con Blender
 

Ficha técnica
Nombre: Condominio Sol de Acapulco
Ubicación: Jr. Acapulco Mz A-1 Lote 2, Urbanización El Sol de La Molina, La Molina, Lima, Perú
Proyectistas: Enrique Gómez de la Torre Salas y María del Carmen Guerrero Yábar
Premio: Medalla de Bronce en la categoría Arquitectural Design: Multi Family Housing de la Bienal Internacional de Arquitectura y Diseño de Miami 2009
Sitio web: https://www.gomezdelatorreyguerrero-arquitectos.com

 

Ver planos de la obra

El proyecto Condominio Sol de Acapulco participó de la Bienal Internacional de Arquitectura y Diseño de Miami 2009, obteniendo la Medalla de Bronce en la categoría Arquitectural Design: Multi Family Housing.


Introducción

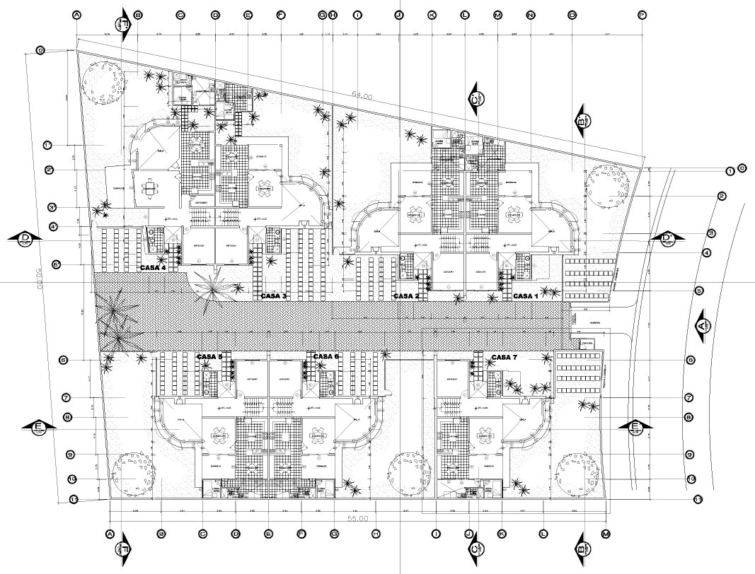
Este complejo de viviendas comprende siete casas de las cuales seis corresponden a un módulo que se repite. Este módulo se une a otro en espejo y forma un patrón. El condominio se estructura formalmente con la presencia de este patrón que delimita una calle interior y que genera espacios libres que aligeran la edificación y permite que cada unidad de vivienda contenga ambientes totalmente iluminados favorecidos con registros visuales a los jardines y a la calle interior.

El planteamiento estético está compuesto por elementos como las paredes perforadas que separan los módulos acabadas con una textura diferenciada, los volúmenes en diagonal de los baños o las estructuras de vidrio tramado de los ingresos y las que están suspendidas de iguales características, ambas en contraste con la gran pared exterior bruñada de la sala.

Estos elementos, por un lado, organizan y generan un ritmo en las elevaciones y por otro plantean un concepto formal masculino que contrasta con la feminidad del volumen curvo interior de la sala, trabajado con columnas redondas y una secuencia de vigas paralelas que le dan una escala acogedora al espacio interior de doble altura. Este contraste, que se acopla formalmente, expresa la armonía de la estructura familiar.


Descripción

Este condominio está compuesto por siete casas distribuidas frente a un eje central vehicular- peatonal. Seis de las siete casas responden a un módulo que se repite, y la otra tiene un diseño similar aplicado a la forma alargada del terreno. El terreno es de 2,500 m2 y el área de terreno de cada casa es de mínimo 300.00m2. Las casas están distribuidas en tres bloques de dos casas pegadas y una suelta.

Precisamente se trabajó el módulo para que, al unirse dos casas, se generaran espacios libres que hicieran verse más ligera la edificación, por otro lado se plantearon curvos los volúmenes de las salas de doble altura para que los jardines se sintieran más amplios espacialmente. El diseño plantea la ubicación de las áreas sociales totalmente separadas para dar mayor privacidad a cada vivienda.

Las fachadas de las casas tienen un cubo de cristal flotante que se impone en su composición y compite con el ingreso de doble altura de trama vidriada que organiza y genera un ritmo en las elevaciones. El pórtico de ingreso marca el acceso al condominio y contiene una puerta corrediza de fierro aluminizado y policarbonato.

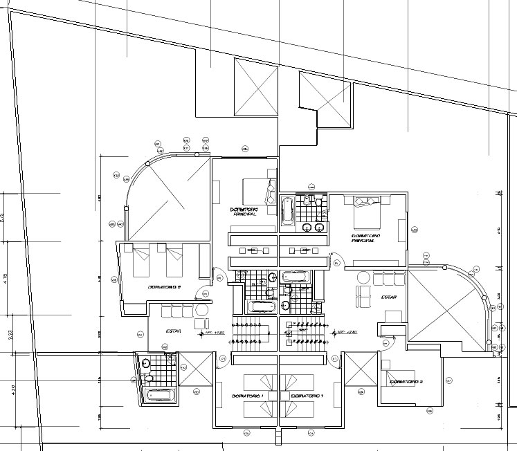
El módulo típico plantea una casa muy iluminada e integrada espacialmente con el exterior, desde la sala totalmente rodeada de jardín con la sinuosidad de la curva de grandes ventanales, hasta el estar familiar en el segundo piso que registra, no sólo el jardín interior sino también, mediante el ingreso vidriado, el espacio de la calle central del condominio. Este diseño también favorece que el usuario, si necesitara más cocheras puede hacerlo abriendo una puerta de garaje en el muro interior del cerco del jardín. Se planteó esta alternativa para que no se densificara la calle central con más autos afectando el área verde.

El primer piso de la casa posee un lobby de ingreso de doble altura, es una estructura de vidrio con aluminio, la cual al iluminarse de noche ofrece un aspecto ornamental muy interesante complementando el mismo efecto que produce el dormitorio volado que también tiene la misma modulación en su estructura de vidrio y aluminio. Este espacio distribuye a los ambientes de la casa en su nivel inferior y la escalera. La sala y el comedor se integran a la terraza y esta a su vez a la cocina, la cual tiene amplias proporciones y está integrada a su comedor de diario. El servicio se encuentra también en el primer piso.

El segundo piso consta del estar familiar, amplio e iluminado, que balconea a la sala y al lobby de ingreso. Rodean al estar los dormitorios y el baño de los dormitorios secundarios. El dormitorio principal tiene su baño y walkin closet incluido.

El condominio presenta elementos estéticos, como el elemento de pared perforada que separa los módulos y que se acaba con una textura que se diferencia, o los volúmenes de baños en diagonal o los volúmenes de vidrio tramados, que le dan gran movimiento a las fachadas y que a la vez se integran por contraste con la estética del volumen de la sala generándose así un conjunto arquitectónico original y armonioso.


Planos
Realice click en los links para ver los planos.

[1] Planta baja
[2] Detalle planta baja
[3] Planta alta
[4] Detalle planta alta
[5] Implantación
[6] Corte 1
[7] Corte 2
[8] Corte 3
[9] Vista 1
[10] Vista 2
[11] Vista 3
[12] Vista 4
[13] Vista 5
[14] Vista 6


Imágenes

Realice click sobre las imágenes para ampliarlas.


Acerca de los proyectistas
Estudio de diseño y construccion, fundado en 1983 por Maria Del Carmen Guerrero Yabar y Cesar Enrique Gomez de la Torre Salas, arquitectos egresados de la Universidad Ricardo Palma.

Ganadores de la medalla de oro en la categoria Arquitectural Design: Single Family Housing y de la medalla de bronce en la categoria Arquitectural Design: Multi Family Housing de la Bienal Internacional de Arquitectura y Diseño de Miami 2009.

 
Curso Diseño y modelado arquitectónico 3D con Revit
 
 
Si usted es profesional, este es su espacio para publicar su obra o proyecto (en forma gratuita). Para más información visitar la sección contacto: click aquí.
   
   

Noticias
informes especiales
bienal de arquitectura BA11
bienal de arquitectura BA09
publicaciones

Artículos
notas y artículos de interés
arquitectura legal
diseño de iluminación
software de arquitectura y diseño

Recursos
curso de decoracion (gratis/online)
archivo temático
descargas externas
curso de croquis (gratis/online)

Precios y costos
precios de materiales, indices y
costos m2 de construcción

Proyecto
obras construidas
proyectos para concursos
proyectos de estudiantes
arquitectos destacados
obras destacadas

Diseño
diseño industrial y mobiliario
diseño interior y decoración
Casa FOA 2009
Casa FOA 2010
Casa FOA 2011
Casa FOA 2012
Casa FOA 2013
Casa FOA 2014
Estilo Pilar 2010
Estilo Pilar 2012

Construcción
materiales y tecnologías
novedades de empresas
sector inmobiliario

Agenda
cursos y seminarios
congresos y bienales
charlas y eventos
exposiciones y muestras
concursos

Facultad
becas y subsidios
posgrados y maestrías
donde estudiar

Varios
ofertas laborales arquitectura, diseño y construccion
suscripcion newsletter (gratis)
redes sociales
publicidad

Arquimaster en Facebook
Arquimaster en Twitter
Arquimaster en LinkedIn
Arquimaster en Pinterest