Arquimaster - Medio digital de arquitectura, diseño y construccion Estas visitando la version anterior,
para ver la version actual realiza click aca

 

     
       
 
Climanet - Doble Vidrio Hermetico DVH
Matyser - Materiales y servicios para la construccion
Cursos de arquitectura y diseño de espacios
Anclaflex
Curso Introducción a Revit: Modela tus proyectos arquitectonicos
Bara
Edificio corporativo Ayasha (Bogotá, Colombia) - Metrópolis (Arq. José Orrego)
Curso ArchViz de interiores: crea diseños 3D surrealistas con Blender
 

Ficha técnica
Nombre: Edificio Ayasha
Ubicación: Bogotá, Colombia
Proyectista: Metrópolis (Arq. José Orrego)
Equipo de diseño: Arq. Alicia Zapata
Diseño estructural: Arq. Giovanny Feria
Iluminación: Arq. Claudia Paz
Área: 6,500 sqm
Fecha: 2010-2011
Fotos: Arq. Claudia Paz
Sitio web: http://www.metropolisperu.com

 

Ver planos de la obra

English version

El Arq. José Orrego de Perú resultó ganador en un concurso de arquitectura privado organizado por una promotora inmobiliaria colombiana para desarrollar un nuevo edificio corporativo.

La propuesta destacó por su carácter icónico que permitía que el edificio destacara en el paisaje urbano.

El edificio, a diferencia de muchos edificios colombianos trabajados con ladrillo y concreto, destacaba por ser un edificio simple con cuatro superficies que definían el volumen.

Cada plano estaba compuesto por una tableta en vidrio negro con fracturas que le dan una expresión contemporánea y tecnológica.

Cada plano está separado del otro por una bruña luminosa que permite que cada pieza de la sensación de flotar en su posición.

Cada fractura está trabajada para tener una expresión de día, por el contraste del vidrio negro con un vidrio frosted.

Para la noche se trabajó un detalle que permite iluminar las fracturas con un sistema de LEDS programables de manera que el edificio adquiere una dimensión dinámica al incorporar movimiento por el manejo de luces en su superficie.

La fachada al anochecer nos ofrecerá movimientos continuos que permitirán destacar las fracturas, que son lo único que se logra distinguir por desmaterializarse las tabletas de vidrio negro.

Todo el conjunto descansa sobre una base formada por un espejo de agua que permite reflejar hacia abajo esta condición dinámica del edificio, generando una simetría vertical.

A pesar que el nombre Ayasha en idioma nativo significa pequeño, este edificio se presenta como un gran referente urbano que destacará en la ciudad por su tratamiento expresión contemporánea.


English version

Ayasha Building

A new corporative building was the objective of the contest organized by a colombian real estate developer, won by peruvian architect José Orrego.

The project tried to emphasize its iconic character, standing out among the urban context.

Differing from other brick and concrete colombian buildings, this one aspired to be a four-surface well defined volume.

Each plane is conformed by a fragmented black pane of glass. The LED lines that cross this big surfaces provide a tech and contemporary look.

These lines are the result of the contrast of two type of glasses: black and frosted.

On the edges, planes are barely detached from eachother by a luminous burnish that gives us the sentation of floating pieces.

At night, the LED lines sick out with a programmed system, so that the whole building adquires a special dynamic and continous movement.

The black pane of glass dematerializes.

The basis of this complex is a water mirror that reflects the building effects and creates a vertical symmetry.

Ayasha means "small" in native lenguage. In spite of that, the building shows itself as a huge urban referent.


Office profile

Metropolis is an architecture office lead by Architect José Orrego since 1989, that works with Architecture Project as well as Interior Design, Landscaping and Urbanism.

To us, the actual building represents itself as a cultural practice that may adopt different forms depending on the phase it's inserted.

Our architecture wants to create a city that enhaces the citizen to live in, and also tries to set an example for those who have the same objective.

That's why we are constantly connected to global reality and cultural networks, because we're seeking to expand our knowledge.

We search the validity of our projects in time, and we've been proposing innovative and creative solutions for our clients for two decades.

We are now one of the well known architecture companies in Lima, Perú.


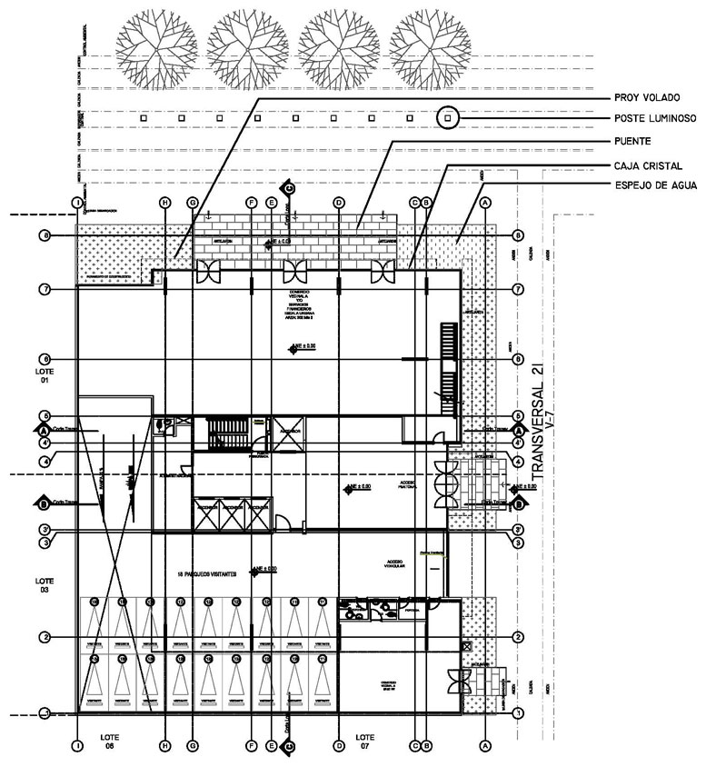
Planos
Realice click en los links para ver los planos.

[1] Planta baja
[2] Planta tipo
[3] Corte
[4] Fachada


Imágenes

Realice click sobre las imágenes para ampliarlas.


Acerca de los proyectistas
Metrópolis es una oficina de arquitectura liderada por el Arquitecto José Orrego que trabaja con proyectos de Arquitectura tanto como con proyectos de Diseño Interior, Paisajismo y Urbanismo.

La oficina propone soluciones creativas e innovadoras para sus clientes y es uno de los estudios de arquitectura más reconocidos de Perú.

 
Curso Diseño y modelado arquitectónico 3D con Revit
 
 
Si usted es profesional, este es su espacio para publicar su obra o proyecto (en forma gratuita). Para más información visitar la sección contacto: click aquí.
   
   

Noticias
informes especiales
bienal de arquitectura BA11
bienal de arquitectura BA09
publicaciones

Artículos
notas y artículos de interés
arquitectura legal
diseño de iluminación
software de arquitectura y diseño

Recursos
curso de decoracion (gratis/online)
archivo temático
descargas externas
curso de croquis (gratis/online)

Precios y costos
precios de materiales, indices y
costos m2 de construcción

Proyecto
obras construidas
proyectos para concursos
proyectos de estudiantes
arquitectos destacados
obras destacadas

Diseño
diseño industrial y mobiliario
diseño interior y decoración
Casa FOA 2009
Casa FOA 2010
Casa FOA 2011
Casa FOA 2012
Casa FOA 2013
Casa FOA 2014
Estilo Pilar 2010
Estilo Pilar 2012

Construcción
materiales y tecnologías
novedades de empresas
sector inmobiliario

Agenda
cursos y seminarios
congresos y bienales
charlas y eventos
exposiciones y muestras
concursos

Facultad
becas y subsidios
posgrados y maestrías
donde estudiar

Varios
ofertas laborales arquitectura, diseño y construccion
suscripcion newsletter (gratis)
redes sociales
publicidad

Arquimaster en Facebook
Arquimaster en Twitter
Arquimaster en LinkedIn
Arquimaster en Pinterest