Arquimaster - Medio digital de arquitectura, diseño y construccion Estas visitando la version anterior,
para ver la version actual realiza click aca

 

     
       
 
Climanet - Doble Vidrio Hermetico DVH
Matyser - Materiales y servicios para la construccion
Cursos de arquitectura y diseño de espacios
Anclaflex
Curso Introducción a Revit: Modela tus proyectos arquitectonicos
Bara
Corporativo IXE/Banco Deuno (Ciudad de México) - usoarquitectura
Curso ArchViz de interiores: crea diseños 3D surrealistas con Blender
 

Ficha técnica
Nombre: Corporativo IXE/Banco Deuno
Ubicación: México DF
Proyectistas: usoarquitectura (Gabriel Salazar y Fernando Castañón)
Colaboradores: Gerardo Gavito y Víctor Acoltzi
Año: 2008
Fotografía: Tygre
Sitio web: http://www.usoarquitectura.com.mx

 

Ver planos de la obra

Ixe Grupo Financiero es un grupo de empresas que nace en 1994 con capital mayoritariamente mexicano. Bajo la bandera de: es lo mismo, pero no es igual, Ixe Grupo Financiero es una empresa con futuro que se concentra en el trabajo en equipo, el respeto mutuo, la honestidad y el espíritu de servicio.

usoarquitectura resumió estos valores en el proyecto interior que desarrolló para las oficinas corporativas que este grupo tanto necesitaba. Este proyecto fue claramente estructurado por las necesidades del cliente y las condiciones espaciales que marcaba el propio edificio. Para Gabriel Salazar y Fernando Castañón, siempre fue muy claro que su proyecto debía rescatar todos los elementos originales y conservar las fachadas del edificio por su valor y calidad arquitectónica. En su momento, este edificio, que lleva la firma del arquitecto Álvarez, fue un ejemplo de flexibilidad para un espacio de oficinas por lo que usoarquitectura marcó su objetivo en mantener la perfecta relación que todos los elementos guardan entre sí, que es el fundamento de la modulación.

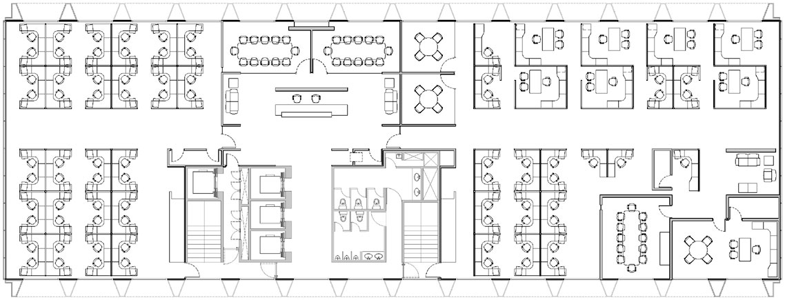
Las áreas de oficina se encuentran ubicadas en los perímetros de las plantas rectangulares de cada nivel. Al centro se ubican dos circulaciones verticales y los servicios, por lo que tal como lo planteó el arquitecto Álvarez en su proyecto original, se utilizó la iluminación natural y se aprovecharon todas las circulaciones por medio de generosos pasillos que le dieron amplitud y flexibilidad al proyecto.

Para mejorar la altura entre pisos, se dejó parte de la losa y estructura aparente, utilizando plafón únicamente en las áreas cercanas a las ventanas. El equipo de usoarquitectura llegó a un grado de máximo detalle en el diseño de los plafones, la iluminación y paleta de acabados, además de que se concentraron en rescatar algunos de los materiales existentes como pisos de granito, cristales e infraestructura para instalaciones y equipos.

Una de las tantas partes que disfrutaron de este proyecto, fue la oportunidad de intervenir los exteriores, haciendo una propuesta de iluminación de la fachada y una plaza de acceso desde la calle. La ubicación privilegiada que tiene este edificio -sobre 2 importantes y transitadas avenidas- dio la oportunidad al equipo de usoarquitectura de destacar la sobriedad y mesura de su estilo arquitectónico, por medio de la luz y darle un protagonismo nocturno especial del que carecía.

El proyecto para las oficinas corporativas de Ixe Grupo Financiero es un orgullo para usoarquitectura, ya que resume dos de las cosas que más les han importado en su carrera profesional. La primera: el respeto por el talento y lo que se puede aprender de otros arquitectos y la segunda: la oportunidad de traducir en un espacio armónico y funcional la forma de trabajar de una empresa.


Planos
Realice click en los links para ver los planos.

[1] Planta


Imágenes

Realice click sobre las imágenes para ampliarlas.


Acerca de los proyectistas
usoarquitectura
es un equipo de profesionales dedicados a la arquitectura y diseño interior. Entendemos la arquitectura como un todo y por eso abordamos los proyectos sin preceptos. Nuestro equipo está integrado por arquitectos, diseñadores, ingenieros y consultores que se desarrollan en todos los campos de la edificación.

Usamos la mejor tecnología, recursos y herramientas para satisfacer las necesidades de nuestros clientes. Diseñamos espacios con la máxima calidad, eficiencia e integración de la arquitectura con nuestra vida cotidiana. Con experiencia e innovación, en cada proyecto logramos los resultados deseados, aportando soluciones y asumiendo riesgos.

Como expertos en el uso del espacio nuestro objetivo es maximizar el valor del mismo. Con herramientas como rapidez de entrega, eficiencia y recursos de alta tecnología buscamos siempre la calidad en el espacio requerido por el cliente.

La historia de un gran proyecto suele ser también la historia de un gran cliente, dispuesto a usar arquitectura y asumir los riesgos que implican las buenas ideas. La arquitectura difumina fronteras y extiende límites, trata de desdibujar lo público y privado, interior y exterior. Las cosas en la naturaleza no suceden aisladas, un acontecimiento desencadena otro. Una arquitectura así es más real para el mundo que vivimos.

usoarquitectura es el proyecto profesional y de vida de Gabriel Salazar y Fernando Castañón. Desde el 2005 han reunido su calidad resolutiva, impecable estética y arriesgadas propuestas en soluciones que permiten que sus clientes usen la arquitectura.

Gabriel Salazar
Egresado de la carrera de arquitectura de la Universidad La Salle de la Ciudad de México en 1997. Tiene una amplia experiencia en el desarrollo de proyectos residenciales de alto nivel, escenografía y oficinas corporativas, además del ejercicio académico participando como docente e impartiendo talleres en importantes casas de estudio de la Ciudad de México.

Fernando Castañón
Egresado de la carrera de arquitectura la Universidad Nacional Autónoma de México, UNAM, en el 2000. Obtuvo la maestría en diseño y teoría de la arquitectura en la Universidad Politécnica de Catalunya, ETSAB en el 2001. Colaboró en el estudio de Monterde Arquitectos en Barcelona en el 2002. Sus estudios en el extranjero le permitieron imprimir una visión diferente a su actividad profesional, misma que combinó con el trabajo docente.

 
Curso Diseño y modelado arquitectónico 3D con Revit
 
 
Si usted es profesional, este es su espacio para publicar su obra o proyecto (en forma gratuita). Para más información visitar la sección contacto: click aquí.
   
   

Noticias
informes especiales
bienal de arquitectura BA11
bienal de arquitectura BA09
publicaciones

Artículos
notas y artículos de interés
arquitectura legal
diseño de iluminación
software de arquitectura y diseño

Recursos
curso de decoracion (gratis/online)
archivo temático
descargas externas
curso de croquis (gratis/online)

Precios y costos
precios de materiales, indices y
costos m2 de construcción

Proyecto
obras construidas
proyectos para concursos
proyectos de estudiantes
arquitectos destacados
obras destacadas

Diseño
diseño industrial y mobiliario
diseño interior y decoración
Casa FOA 2009
Casa FOA 2010
Casa FOA 2011
Casa FOA 2012
Casa FOA 2013
Casa FOA 2014
Estilo Pilar 2010
Estilo Pilar 2012

Construcción
materiales y tecnologías
novedades de empresas
sector inmobiliario

Agenda
cursos y seminarios
congresos y bienales
charlas y eventos
exposiciones y muestras
concursos

Facultad
becas y subsidios
posgrados y maestrías
donde estudiar

Varios
ofertas laborales arquitectura, diseño y construccion
suscripcion newsletter (gratis)
redes sociales
publicidad

Arquimaster en Facebook
Arquimaster en Twitter
Arquimaster en LinkedIn
Arquimaster en Pinterest