Arquimaster - Medio digital de arquitectura, diseño y construccion Estas visitando la version anterior,
para ver la version actual realiza click aca

 

     
       
 
Climanet - Doble Vidrio Hermetico DVH
Matyser - Materiales y servicios para la construccion
Cursos de arquitectura y diseño de espacios
Anclaflex
Curso Introducción a Revit: Modela tus proyectos arquitectonicos
Bara
Local comercial Petatglass (Cuernavaca, Morelos, México) - REC Arquitectura
Curso Diseño arquitectónico integral: del concepto a la realidad
 

Ficha técnica
Nombre: Local comercial o showroom Petatglass
Ubicación: Paseo del Conquistador 53, Cuernavaca Morelos, México
Proyecto: Jonathan Tapia Bernal, Magdalena Ramos Bazan, Carlos Solorzano, Gerardo Recoder
Estructura: Ivan Recoder
Ingenierías: Gustavo Lira Mendoza
Construcción: Víctor Manuel Gómez y Gerardo Recoder
Palapa: Pablo Castro Carvajal
Vidrio: Ricardo Salgado
Año: 2006
Terreno: 41 m2
Construcción: 142 m2
Costo: USD 320/m2
Sitio web: http://www.recarquitectura.com

Ver planos de la obra

English version

La orientación marcó una pauta en el diseño de fachadas ya que por el clima de la región y el empleo de fachadas acristaladas se llegó a considerar al cubo como independiente de climas artificiales, protegiendo con palapas las caras más expuestas, dando así una fachada que se peina.

Con una identidad muy clara y fácil de recordar, el cubo de palapa no causa referencia alguna y responde al sitio indudablemente.

El contexto en Cuernavaca es claro como una postal, el clima y los materiales reflejan a una ciudad que en su urbanización es un desorden, y sin embargo cuenta con un sabor apetecible no sólo para los mexicanos sino también para los extranjeros.

Parece ser que con este edificio se destapan nuevas combinaciones y se quitan estereotipos clásicos a algunos materiales comunes.

A manera de Jenga la construcción racional se coloca y dispone en un eje a la vez, traslapándose y recargándose sobre PTR (perfil tubular rectangular) o muros de block. Una elaboración rápida y económica.

La estética produce un sentido de rareza, duda y simpleza, combinación contemporánea de elementos tradicionales que pueden abrir nuevas posibilidades.

Al requerirse un local para renta que fuera tan versátil y al mismo tiempo un aparador, el cliente permitió crear un showroom del mismo showroom.

Con vidrio soportado en sándwich de ángulos y no en aluminio limpian casi a hueso las fachadas, la estructura ordenadamente expuesta y la palapa en lenguaje de muros y no de techo, marcan una nueva combinación a explotar.


English version

Petatglass

Cuernavaca and its context have permitted REC to generate an architectural field of incomparable experimentation, where principal elements have tried to work with local identity and present technology. For that, by detecting the urban caos which applies appearance of town and its small urban image's adaptability to radical changes, we've generated a binary space which involves tradition with a creative language.

It's about a geometric orthogonal building, discreet and respectful toward the environment which used combination in each of creative phases from the conception to the pragmatic construction, and that works very same as a showroom of itself for brave use of traditional constructive system, a reinterpretation of palapa creates the skin of the facade which has the biggest solar exposition and generates an unique visual mimicry accentuating its presence with a new language.

Because of the short time we had to construct the building, the constructive system gave priority to the crystal and the steel, and so this way the result was one effective construction that was resolved by following a simple program.

As showed in this project, sustainable design is a guideline for the office, avoiding the use of conditioning air commonly used in these areas for volumes fitted with glass, saving money for the client with crossed ventilation, structure consistency, sun and currents of air, because intelligent buildings are not conceived by inserting a PC or sophisticated and expensive materials, but employed obvious criterion.


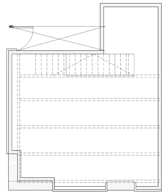
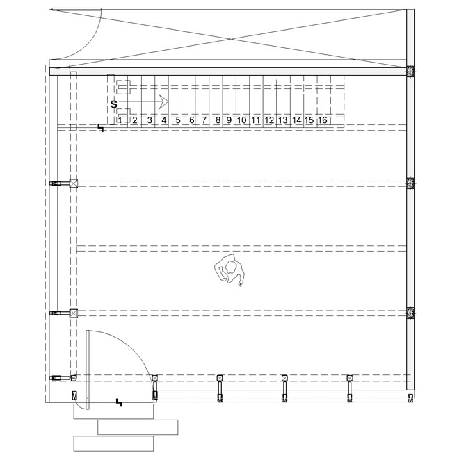
Planos
Realice click en los links para ver los planos.

[1] Planta 1
[2] Planta 2
[3] Planta 3
[4] Planta 4
[5] Corte 1
[6] Corte 2
[7] Fachada 1
[8] Fachada 2
[9] Esquema


Imágenes
Realice click sobre las imágenes para ampliarlas.

Ver ficha técnica y datos de contacto al pie de página.


Acerca de los proyectistas
REC
es una firma mexicana de arquitectura y construcción, que tiene como punto de partida la conciencia e investigación, que se traducen en respuestas viables e innovadoras a lo largo de más de 40 proyectos construidos.

Con vocación y oficio se ha permitido llegar más allá de las recetas pre programadas. Es así que REC ha sido considerado por algunas revistas, como Architectural Record como uno de los despachos emergentes más influyentes y de gran trayectoria.

REC cuenta con trayectoria comprobada en diversos géneros, en donde la solución y propuesta es el sentido común entre cliente, proyecto y arquitecto.

La oficina se desarrolla entre: investigación, docencia, clientes particulares y del sector público, panorama internacional, teorías, sustentabilidad (sistemas pasivos), construcción, herramientas de diseño actuales, conferencias, talleres y sobre todo viabilidad en cada proyecto, en una vocación por desarrollar arte y oficio.

Reinterpretando la frase emblemática de "less is more", como "hacer más con menos".

Gerardo Recoder es arquitecto por la universidad pública UAM México y Maestría en vivienda colectiva por la UPM España. Reconocimientos otorgados por delegación Cuauhtémoc y la UIC Chicago. Finalista en concursos Internacionales. Experiencia como proyectista para: TEN Arquitectos Enrique Norten, Abraham Zabloudovsky, Teodoro González de León, Javier Sánchez, Central de arquitectura, Francisco y Pablo Serrano, en el extranjero en talleres con: Juan Herreros, Félix Claus (Claus&Kaan), Wiel Arets, Dietmar Eberle (Baumschlager&Eberle), Anne Lacaton (Lacaton&Vassal), Frits Van Dongen (CIE), Helio Piñon y Njiric (Njiric&Njiric).

Actualmente imparte la cátedra de proyecto final de carrera en el ITESM, y ha desarrollado más de 1000 viviendas, bancos, centros comerciales, showrooms, escuelas, bibliotecas públicas, oficinas, desarrollos turísticos, galerías de arte, industrias, etc, pero sobre todo una responsabilidad en entender esta contemporaneidad y proponer innovaciones programáticas viables, exploración de materiales, sustentabilidad social y teorías descritas en ensayos.

 
Curso Diseño y modelado arquitectónico 3D con Revit
 
 
Si usted es profesional, este es su espacio para publicar su obra o proyecto (en forma gratuita). Para más información visitar la sección contacto: click aquí.
   
   

Noticias
informes especiales
bienal de arquitectura BA11
bienal de arquitectura BA09
publicaciones

Artículos
notas y artículos de interés
arquitectura legal
diseño de iluminación
software de arquitectura y diseño

Recursos
curso de decoracion (gratis/online)
archivo temático
descargas externas
curso de croquis (gratis/online)

Precios y costos
precios de materiales, indices y
costos m2 de construcción

Proyecto
obras construidas
proyectos para concursos
proyectos de estudiantes
arquitectos destacados
obras destacadas

Diseño
diseño industrial y mobiliario
diseño interior y decoración
Casa FOA 2009
Casa FOA 2010
Casa FOA 2011
Casa FOA 2012
Casa FOA 2013
Casa FOA 2014
Estilo Pilar 2010
Estilo Pilar 2012

Construcción
materiales y tecnologías
novedades de empresas
sector inmobiliario

Agenda
cursos y seminarios
congresos y bienales
charlas y eventos
exposiciones y muestras
concursos

Facultad
becas y subsidios
posgrados y maestrías
donde estudiar

Varios
ofertas laborales arquitectura, diseño y construccion
suscripcion newsletter (gratis)
redes sociales
publicidad

Arquimaster en Facebook
Arquimaster en Twitter
Arquimaster en LinkedIn
Arquimaster en Pinterest