Arquimaster - Medio digital de arquitectura, diseño y construccion Estas visitando la version anterior,
para ver la version actual realiza click aca

 

     
       
 
Climanet - Doble Vidrio Hermetico DVH
Matyser - Materiales y servicios para la construccion
Cursos de arquitectura y diseño de espacios
Anclaflex
Curso Introducción a Revit: Modela tus proyectos arquitectonicos
Bara
Vivienda unifamiliar en urbanización de Aldeamayor de San Martin (Valladolid, España) - ARDIS arquitectura y diseño gráfico
Curso Introducción al dibujo arquitectónico a mano alzada
 

Ficha técnica
Nombre: Vivienda unifamiliar
Ubicación: Aldeamayor de San Martin, Valladolid, España
Arquitectura e interiorismo: ARDIS arquitectura y diseño gráfico
Autores: Alberto Lázaro González, Tamara Recuero de Andrea
Promotor: Privado
Superficie construida: 252 m2
Fecha de inalización: julio de 2011
Sitio web: http://www.ardisvall.com

 

Ver planos de la obra

Proyectada para la coexistencia de un estudio con la vivienda unifamiliar. La necesidad de esta doble función hace que la casa tenga una función pública muy marcada en la parte delantera de la casa, y a su vez una función privada volcada hacia el jardín trasero.

En el exterior esta doble función se marca claramente en los volúmenes. Por una parte el estudio es un volumen revestido con gres porcelánico antracita y un gran ventanal que da a la calle y por otro lado la vivienda familiar que se trata de un volumen blanco de mortero monocapa, y huecos más comedidos.

Una vez en el interior se logra la separación de estas dos actividades bien distintas. El hall hace de nexo entre los dos volúmenes, se trata de un espacio acristalado agradable en el que se encuentra la escalera de subida a la zona pública de estudio.

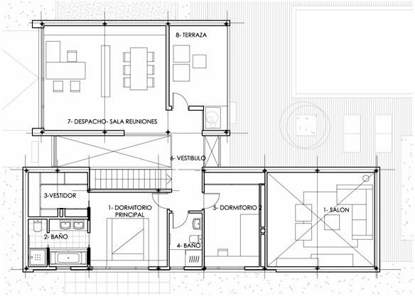
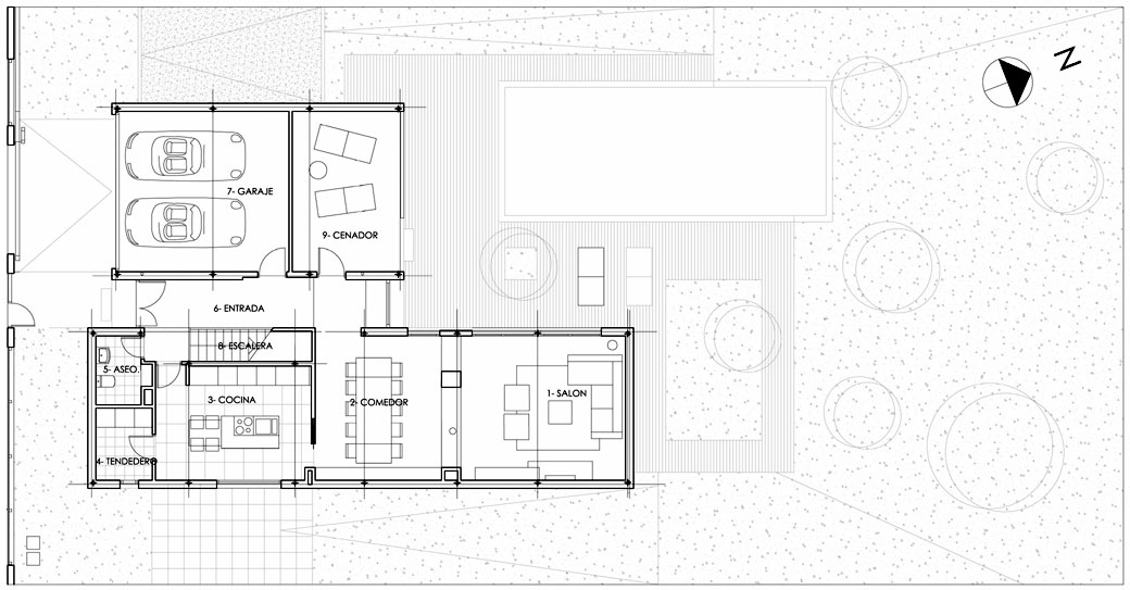
La parte de vivienda divide la zona de día y la de noche por plantas. Así en planta baja esta la cocina, comedor y salón y en la planta alta se encuentran las dos habitaciones. Se han estudiado las vistas para que aun sin puertas de división entre hall y salón comedor nunca se invada la privacidad de la vivienda.

En el jardín posterior privado se encuentra una zona de cenador de verano, la piscina rodeada por el solárium y una zona de jardín con juegos de niños. Este jardín está muy vinculado a la zona de salón- comedor con unos grandes ventanales.

En la elección de los materiales también se diferencian las zonas de la vivienda, así en el hall y el estudio se tratan de materiales vinculados al uso de oficina, con grandes ventanales, revestimiento de gres en fachada que continua en el interior, un mobiliario más sobrio, iluminación técnica, barandilla de acero inoxidable y el color blanco en todas las paredes.

En cambio la zona de vivienda los materiales y el mobiliario tratan de hacer la vivienda más cálida con paredes pintadas, cortinas en tonos tierra, puertas en madera de roble e iluminación cálida.

Se ha estudiado mucho la orientación para conseguir ahorro energético y comodidad, así la fachada principal que tiene orientación sur y unos grandes ventanales se protege del sol del verano con un vuelo, pero a su vez capta todo el calor del sol en invierno cuando el sol está mucho más bajo. Las habitaciones y la cocina tienen una orientación este muy buena por el soleamiento por las mañanas.

El salón tiene orientación oeste y se protege del sol de verano con un porche de aluminio, que se descubre en invierno para captar el sol de la tarde. La piscina se encuentra en el norte de la parcela pero lo suficientemente separada de la casa para conseguir muchas horas de soleamiento en verano.

Tanto en los materiales, como en el mobiliario y en el diseño, se ha tratado de lograr lo que llaman lujo democrático, que es la búsqueda de la comodidad, el sentido práctico, duradero y sin embargo barato de la vivienda.

Materiales de gran calidad y de precio más que razonable. El diseño útil, cómodo, pero sin complicaciones de construcción o mantenimiento. Rapidez de ejecución y costes muy por debajo de la media.


Planos
Realice click en los links para ver los planos.

[1] Planta baja
[2] Planta alta


Imágenes

Realice click sobre las imágenes para ampliarlas.

 
Curso Diseño y modelado arquitectónico 3D con Revit
 
 
Si usted es profesional, este es su espacio para publicar su obra o proyecto (en forma gratuita). Para más información visitar la sección contacto: click aquí.
   
   

Noticias
informes especiales
bienal de arquitectura BA11
bienal de arquitectura BA09
publicaciones

Artículos
notas y artículos de interés
arquitectura legal
diseño de iluminación
software de arquitectura y diseño

Recursos
curso de decoracion (gratis/online)
archivo temático
descargas externas
curso de croquis (gratis/online)

Precios y costos
precios de materiales, indices y
costos m2 de construcción

Proyecto
obras construidas
proyectos para concursos
proyectos de estudiantes
arquitectos destacados
obras destacadas

Diseño
diseño industrial y mobiliario
diseño interior y decoración
Casa FOA 2009
Casa FOA 2010
Casa FOA 2011
Casa FOA 2012
Casa FOA 2013
Casa FOA 2014
Estilo Pilar 2010
Estilo Pilar 2012

Construcción
materiales y tecnologías
novedades de empresas
sector inmobiliario

Agenda
cursos y seminarios
congresos y bienales
charlas y eventos
exposiciones y muestras
concursos

Facultad
becas y subsidios
posgrados y maestrías
donde estudiar

Varios
ofertas laborales arquitectura, diseño y construccion
suscripcion newsletter (gratis)
redes sociales
publicidad

Arquimaster en Facebook
Arquimaster en Twitter
Arquimaster en LinkedIn
Arquimaster en Pinterest