Arquimaster - Medio digital de arquitectura, diseño y construccion Estas visitando la version anterior,
para ver la version actual realiza click aca

 

     
       
 
Climanet - Doble Vidrio Hermetico DVH
Matyser - Materiales y servicios para la construccion
Cursos de arquitectura y diseño de espacios
Anclaflex
Curso Introducción a Revit: Modela tus proyectos arquitectonicos
Bara
Centro de Servicios Edelnor-Minka (Lima, Perú) - Arq. José Orrego
Curso Introducción a Revit: modela tus proyectos arquitectónicos
 

Ficha técnica
Nombre: Centro de servicios Edelnor-Minka
Ubicación: Lima, Perú
Proyecto: Arq. Jose Orrego
Programa: Local multiservicios
Sitio web: http://www.metropolisperu.com

La empresa Edelnor encargó el diseño de un nuevo concepto de centro de servicios que agrupara las funciones que se venían desarrollando en los centros de recaudación, de manera que se ampliaran sus servicios de atención comercial y otros servicios complementarios.

Luego de analizar la problemática propia de las agencias existente se procedió a diseñar un nuevo concepto que integrara las funciones tradicionales de cobranza con una tienda de venta de electrodomésticos, servicios de atención virtual y atención telefónica, atención comercial, venta de seguros, créditos y otros servicios complementarios.

Esta suma de opciones en un sólo lugar permitió crear un formato comercial de vanguardia en nuestro medio.

El proyecto se ubica dentro del Centro comercial Minka como un edificio que forma parte de la oferta comercial, con una imagen propia y contundente.

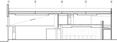
El conjunto tiene dos niveles conformados por una zona de tienda y recaudación en el primer piso y una mezzanine para atención comercial y otros servicios.

La propuesta incluyó la optimización del manejo de las colas en la zona de recaudación y la creación de un ambiente mas amigable y contemporáneo.

Toda la solución arquitectónica y de diseño interior fue envuelta en un tratamiento de superficies y gigantografías de escala monumental que configuran una atmósfera alegre y vivaz que ayuda a crear una experiencia agradable y promotora al publico visitante.

La idea principal en el interior del edificio fue la creación de espacios orgánicos en base a curvas y óvalos en el tratamiento del espacio físico y el tratamiento de techos de manera que den la sensación de un útero que envuelva al visitante.

Este recurso permite que el cliente se sienta abrazado y reconfortado por el espacio arquitectónico y las imágenes sonrientes y amigables de las gigantografias que acompañan el recorrido interior.

Adicionalmente se aprovechó este nuevo concepto para comunicar a través de sus diferentes tratamientos los valores que una empresa como Edelnor.

El exterior del edificio se presenta como una gran caja curva, blanca y transparente que refresca con su presencia el contexto donde se ubica vinculando su interior con el exterior a través de transparencias, vitrinas y dos grandes bocas que actúan como captadores de público para que participen en la experiencia interior de la tienda.

Este nuevo formato comercial crea un nuevo referente para centros de servicio en el medio al introducir un nuevo standard internacional que será replicado en todos los nuevos locales de la compañia.


Realice click sobre los planos para ampliarlos.


Acerca del proyectista
Arq. José Orrego

Arquitecto por la Universidad Ricardo Palma, Lima, Perú (1997).

Miembro del Colegio de Arquitectos del Perú desde 1998.

Ha recibido distintos premios, tales como la medalla de la Ciudad de Miraflores y el premio Padis 2005 por diseño comercial.

Su trabajo es regularmente publicado en distintos medios locales y extranjeros.

Ha participado en conferencias de arquitectura y diseño comercial.

Como proyectista ha participado en concursos privados y se ha especializado en diferentes áreas proyectuales tales como:

Cementerios y culto
Oficinas corporativas
Restaurantes
Proyectos comerciales (desde arquigrafia, módulos, tiendas, cines, tiendas de departamentos, supermercados y centros comerciales de mediano y gran formato)
Casas de playa
Imagen comercial
Reciclajes

Con más de 20 años dedicado exclusivamente al diseño lleva desarrollado hasta la fecha más de 400 proyectos realizados por encargos privados de distinto tipo. En la actualidad lidera una de los estudios de arquitectura más importantes del Perú.

 
Curso ArchViz avanzada con Cinema 4D y Corona Renderer
 
Si usted es profesional, este es su espacio para publicar su obra o proyecto (en forma gratuita). Para más información visitar la sección contacto: click aquí.
   
   

Noticias
informes especiales
bienal de arquitectura BA11
bienal de arquitectura BA09
publicaciones

Artículos
notas y artículos de interés
arquitectura legal
diseño de iluminación
software de arquitectura y diseño

Recursos
curso de decoracion (gratis/online)
archivo temático
descargas externas
curso de croquis (gratis/online)

Precios y costos
precios de materiales, indices y
costos m2 de construcción

Proyecto
obras construidas
proyectos para concursos
proyectos de estudiantes
arquitectos destacados
obras destacadas

Diseño
diseño industrial y mobiliario
diseño interior y decoración
Casa FOA 2009
Casa FOA 2010
Casa FOA 2011
Casa FOA 2012
Casa FOA 2013
Casa FOA 2014
Estilo Pilar 2010
Estilo Pilar 2012

Construcción
materiales y tecnologías
novedades de empresas
sector inmobiliario

Agenda
cursos y seminarios
congresos y bienales
charlas y eventos
exposiciones y muestras
concursos

Facultad
becas y subsidios
posgrados y maestrías
donde estudiar

Varios
ofertas laborales arquitectura, diseño y construccion
suscripcion newsletter (gratis)
redes sociales
publicidad

Arquimaster en Facebook
Arquimaster en Twitter
Arquimaster en LinkedIn
Arquimaster en Pinterest