Arquimaster - Medio digital de arquitectura, diseño y construccion Estas visitando la version anterior,
para ver la version actual realiza click aca

 

     
       
 
Climanet - Doble Vidrio Hermetico DVH
Matyser - Materiales y servicios para la construccion
Cursos de arquitectura y diseño de espacios
Anclaflex
Curso Introducción a Revit: Modela tus proyectos arquitectonicos
Bara
Casa Valles (Zapopan, Jalisco, México) - Sanchez Angulo Arquitectos
Curso Introducción al dibujo arquitectónico a mano alzada
 

Ficha técnica
Nombre: Casa Valles
Ubicación: Fraccionamiento Valle Real, Zapopan, Jalisco, México
Proyectista: Sánchez Angulo Arquitectos (Arq. Jorge Alberto Sánchez Angulo, Arq. Carlos Iram Sánchez Angulo, Arq. Mauricio Silva Núñez)
Fecha de proyecto: 2009
Construcción: Ing. Héctor Zepeda
Fecha de construcción: 2010
Superficie construida: 533 m2 en 3 niveles (sótano, planta baja, planta alta)
Fotografía: Guillermo Peláez
Sitio web: http://www.sanchezangulo.com

 

Ver planos de la obra

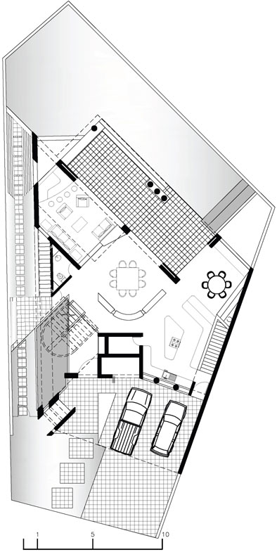
El proyecto consiste en una casa unifamiliar ubicada en Valle Real, un coto residencial en Zapopan, Jalisco.

El terreno está emplazado junto a un terreno boscoso, el cual planteó una de las premisas: conectarse visualmente a este.

El terreno es un polígono irregular con el lado más estrecho al frente.

El proyecto evoluciona ligado a estos condicionantes con un juego de dos volúmenes rotundos, de forma triangular, conectados con un domo lineal pergolado.

En el interior de la casa se creó una doble altura que vincula los dos niveles de la casa y los conecta verticalmente y longitudinalmente creando una vista en los dos sentidos hacia el terreno boscoso vecino.

La planta baja, área de día y social, está resuelta con espacios muy abiertos e interconectados.

El vestíbulo de ingreso a doble altura alberga una escalera escultórica que pende sobre un gran espejo de agua.

La fachada a la calle es básicamente un muro casi ciego para evitar la sobre exposición al soleamiento del poniente, que en la latitud de Guadalajara puede hacer prácticamente inhabitables los espacios sin el uso de aire acondicionado en primavera y verano.

En el sótano ubicamos el "Club de Tobi" para las reuniones sociales del jefe de familia, con el ingreso independiente del resto de la casa por la servidumbre lateral.


Planos
Realice click en los links para ver los planos.

[1] Planta baja
[2] Planta alta
[3] Sección
[4] Croquis 1
[5] Croquis 2


Imágenes

Realice click sobre las imágenes para ampliarlas.

 
Curso Diseño y modelado arquitectónico 3D con Revit
 
 
Si usted es profesional, este es su espacio para publicar su obra o proyecto (en forma gratuita). Para más información visitar la sección contacto: click aquí.
   
   

Noticias
informes especiales
bienal de arquitectura BA11
bienal de arquitectura BA09
publicaciones

Artículos
notas y artículos de interés
arquitectura legal
diseño de iluminación
software de arquitectura y diseño

Recursos
curso de decoracion (gratis/online)
archivo temático
descargas externas
curso de croquis (gratis/online)

Precios y costos
precios de materiales, indices y
costos m2 de construcción

Proyecto
obras construidas
proyectos para concursos
proyectos de estudiantes
arquitectos destacados
obras destacadas

Diseño
diseño industrial y mobiliario
diseño interior y decoración
Casa FOA 2009
Casa FOA 2010
Casa FOA 2011
Casa FOA 2012
Casa FOA 2013
Casa FOA 2014
Estilo Pilar 2010
Estilo Pilar 2012

Construcción
materiales y tecnologías
novedades de empresas
sector inmobiliario

Agenda
cursos y seminarios
congresos y bienales
charlas y eventos
exposiciones y muestras
concursos

Facultad
becas y subsidios
posgrados y maestrías
donde estudiar

Varios
ofertas laborales arquitectura, diseño y construccion
suscripcion newsletter (gratis)
redes sociales
publicidad

Arquimaster en Facebook
Arquimaster en Twitter
Arquimaster en LinkedIn
Arquimaster en Pinterest